Скачать Серия 3.503.1-81 Выпуск 7-1. Дополнение 7. Балки пролетного строения длиной 21 и 24 м, высотой 1,23 м, изготавливаемые в индивидуальной опалубке. Рабочие чертежиДата актуализации: 01.01.2021
|
| Обозначение: | Серия 3.503.1-81 |
| Обозначение англ: | Series 3.503.1-81 |
| Статус: | не определен законодательством |
| Название рус.: | Выпуск 7-1. Дополнение 7. Балки пролетного строения длиной 21 и 24 м, высотой 1,23 м, изготавливаемые в индивидуальной опалубке. Рабочие чертежи |
| Дата добавления в базу: | 01.09.2013 |
| Дата актуализации: | 01.01.2021 |
| Дата введения: | 01.02.1998 |
| Дата окончания срока действия: | 30.06.2003 |
| Область применения: | Настоящий выпуск включает в себя рабочие чертежи сборных предварительно напряженных железобетонных балок пролетных строений длиной 21 и 24 м для мостов и путепроводов, расположенных на автомобильных дорогах общего пользования, разработанные в соответствии со СНиП 2.05.03-84* "Мосты и трубы" |
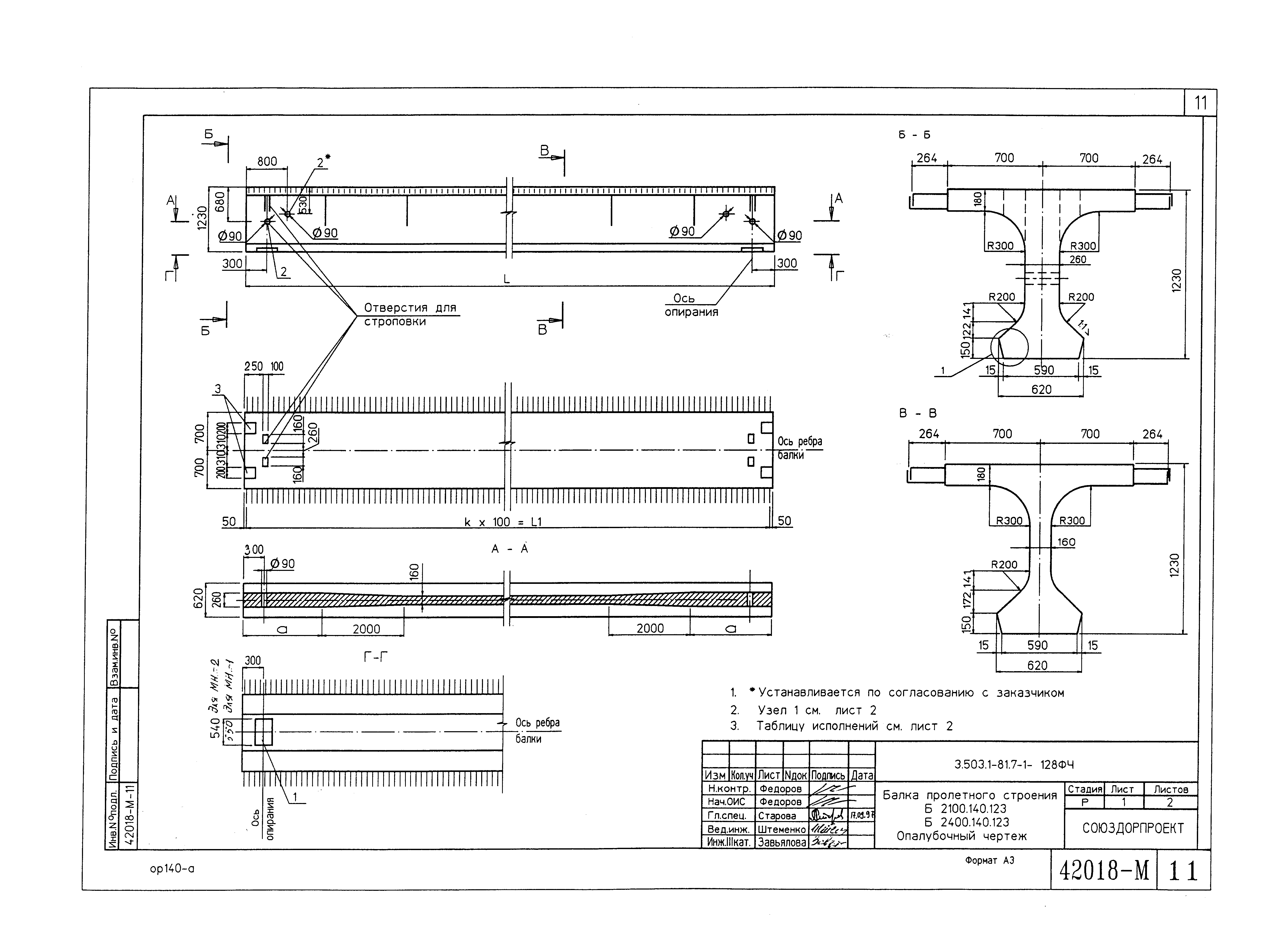
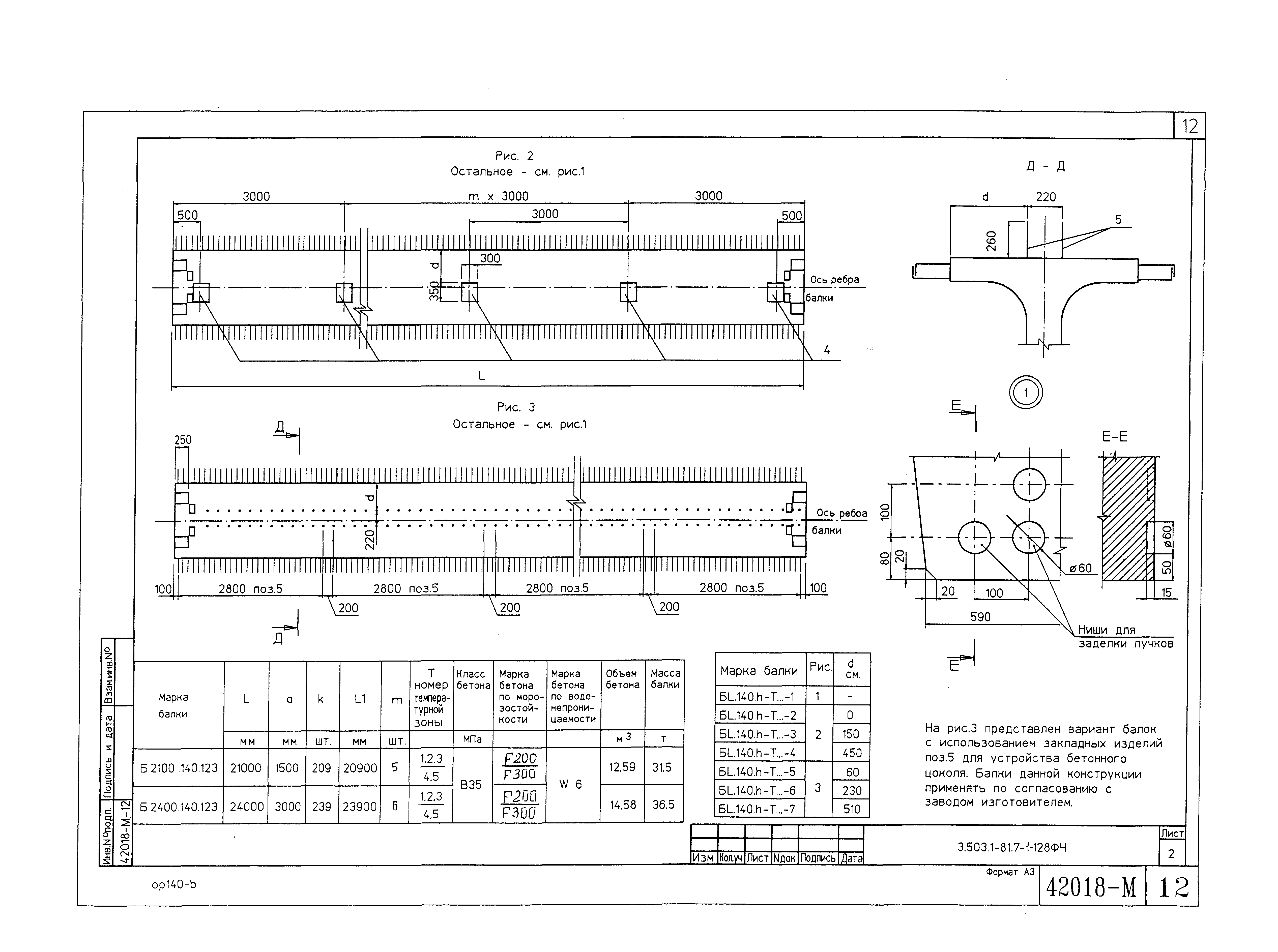
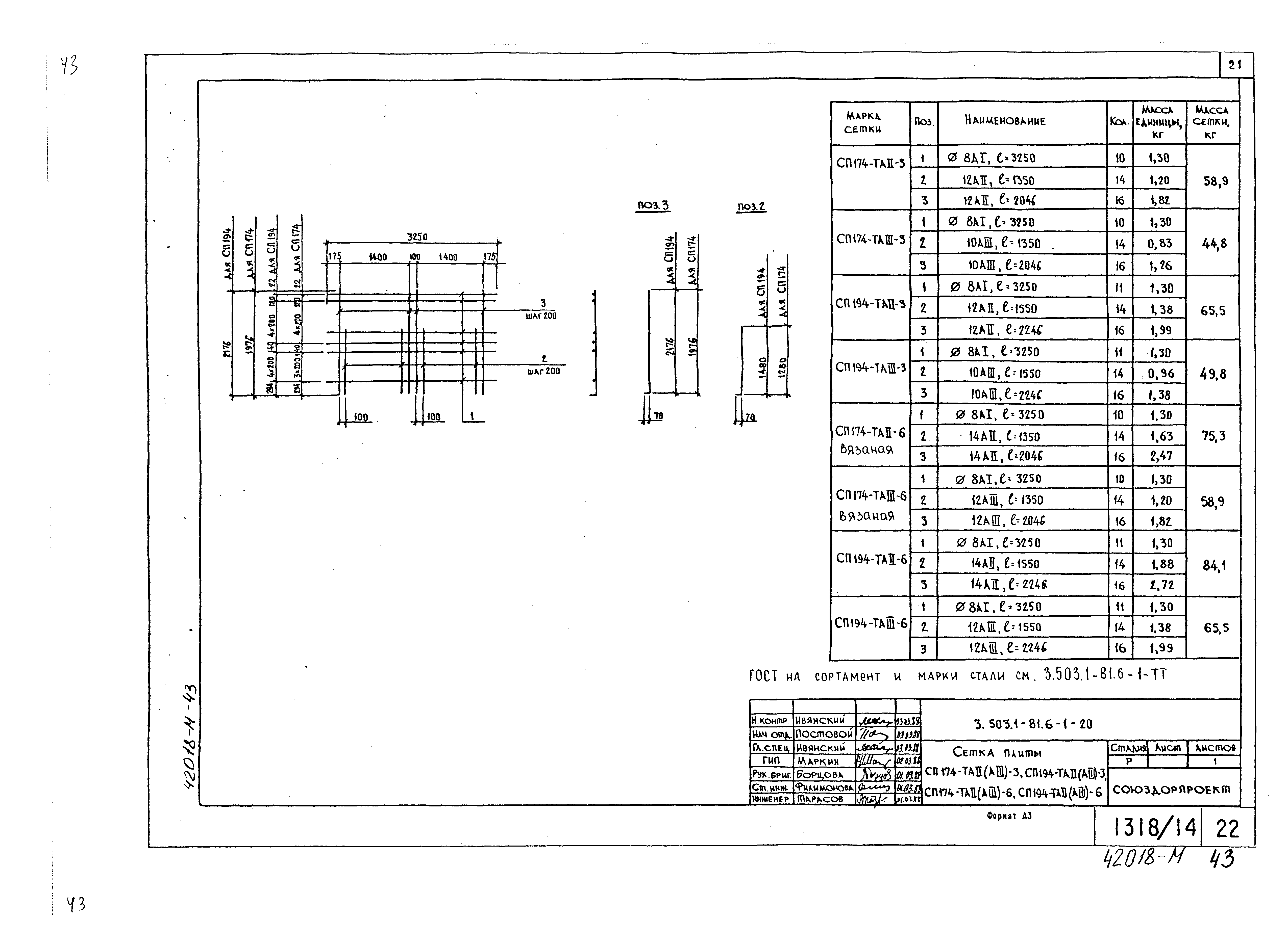
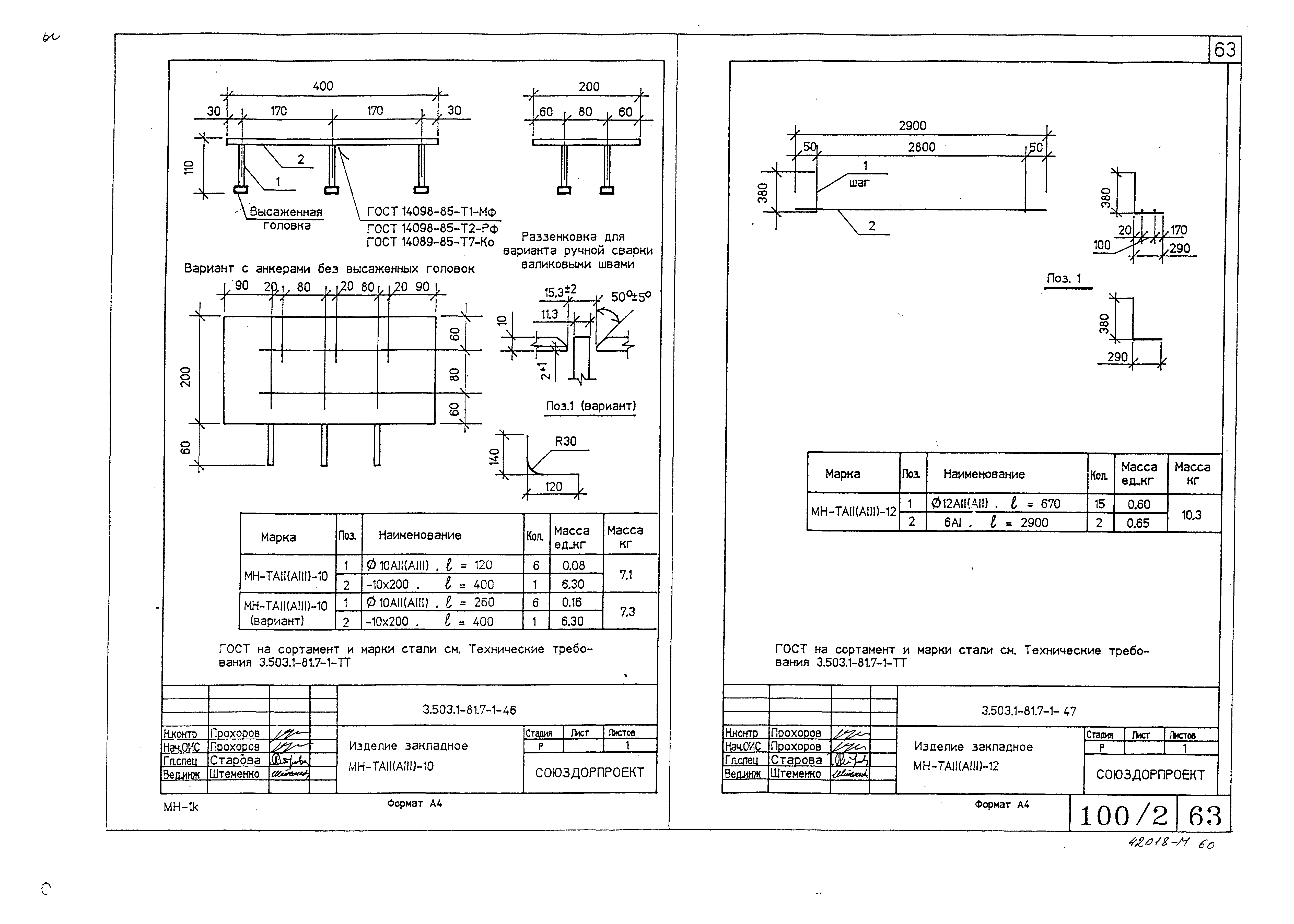
| Оглавление: | 3.503.1-81.7-1-ТТдоп7 Технические требования 3.503.1-81.7-1-128ФЧ Балка пролетного строения Б2100.140.123 и Б2400.140.123. Опалубочный чертеж 3.503.1-81.7-1-129ФЧ Балка пролетного строения Б2100.174.123 и Б2400.174.123. Опалубочный чертеж 3.503.1-81.7-1-130 Балка пролетного строения Б2100.b.123 и Б2400.b.123. Схема армирования балок ненапрягаемой арматурой 3.503.1-81.7-1-131 Балка пролетного строения Б2100.b.123. Схема армирования балок напрягаемой арматурой 3.503.1-81.7-1-132 Балка пролетного строения Б2400.b.123. Схема армирования балок напрягаемой арматурой 3.503.1-81.7-1-133 Пучок из стали класса В 3.503.1-81.7-1-134 Сетка ребра 3.503.1-81.7-1-135 Сетка вута. Сетка торца 3.503.1-81.7-1-136 Фиксатор 3.503.1-81.7-1-137РС Ведомость расхода стали на балку 21 м. Армирование пучками из стали класса В и ненапрягаемой арматурой класса А-II 3.503.1-81.7-1-138РС Ведомость расхода стали на балку 21 м. Армирование пучками из стали класса В и ненапрягаемой арматурой класса А-III 3.503.1-81.7-1-139РС Ведомость расхода стали на балку 24 м. Армирование пучками из стали класса В и ненапрягаемой арматурой класса А-II 3.503.1-81.7-1-140РС Ведомость расхода стали на балку 24 м. Армирование пучками из стали класса В и ненапрягаемой арматурой класса А-III 3.503.1-81.7-1-141 Расчетный лист L = 21 м, h = 1,23 м (балка Б2100.140.123-ТВ) 3.503.1-81.7-1-142 Расчетный лист L = 21 м, h = 1,23 м (балка Б2100.174.123-ТВ…-1(Г8)) 3.503.1-81.7-1-143 Расчетный лист L = 24 м, h = 1,23 м (балка Б2400.140.123-ТВ) 3.503.1-81.7-1-144 Расчетный лист L = 24 м, h = 1,23 м (балка Б2400.174.123-ТВ…-1(Г8)) Чертежи из выпуска 6-1 3.503.1-81.6-1-1 Изделие закладное МН-ТАII(АIII)-1 3.503.1-81.6-1-3 Изделие закладное МН-ТАII(АIII)-5 3.503.1-81.6-1-9 Пучок из стали класса В (узел 1 - лист 3) 3.503.1-81.6-1-10 Каркас анкера 3.503.1-81.6-1-11 Звездочка 3.503.1-81.6-1-12 Стержень-фиксатор 3.503.1-81.6-1-13 Крестовина 3.503.1-81.6-1-14 Спираль 3.503.1-81.6-1-18 Сетка плиты СП140--ТАII(АIII)-4 3.503.1-81.6-1-20 Сетка плиты СП174--ТАII(АIII)-6 3.503.1-81.6-1-21 Сетка плиты СП120--ТАII(АIII)-1 3.503.1-81.6-1-22 Сетка плиты СП120--ТАII(АIII)-2 3.503.1-81.6-1-30 Сетка вута СВ-ТАI-1(2,3) 3.503.1-81.6-1-40 Фиксатор Ф-ТАI-1(2) 3.503.1-81.6-1-42 Фиксатор Ф120-ТАI-1(2…5) Чертежи из выпуска 7-1 3.503.1-81.7-1-28 Сетка плиты СП140--ТАII(АIII)-1 3.503.1-81.7-1-29 Сетка плиты СП140--ТАII(АIII)-3 3.503.1-81.7-1-30 Сетка плиты СП140--ТАII(АIII)-4 3.503.1-81.7-1-31 Сетка плиты СП174--ТАII(АIII)-1, СП174--ТАII(АIII)-2 3.503.1-81.7-1-32 Сетка плиты СП174--ТАII(АIII)-4, СП174--ТАII(АIII)-5 3.503.1-81.7-1-33 Сетка плиты СП174--ТАII(АIII)-6 3.503.1-81.7-1-35 Сетка ребра СР123-ТАI-8 3.503.1-81.7-1-37 Каркас К-ТАI-1, К-ТАI-2, К-ТАI-3 3.503.1-81.7-1-40 Каркас К15-ТАI-1 3.503.1-81.7-1-41 Каркас К15-ТАI-2, К15-ТАI-3 3.503.1-81.7-1-44 Изделие закладное МН-ТАII(АIII)-6 3.503.1-81.7-1-45 Изделие закладное МН-ТАII(АIII)-7 3.503.1-81.7-1-46 Изделие закладное МН-ТАII(АIII)-10 3.503.1-81.7-1-47 Изделие закладное МН-ТАII(АIII)-12 |
| Разработан: | Союздорпроект Минтрансстроя |
| Утверждён: | 22.01.1998 Союздорпроект Минтрансстроя (Soyuzdorproject, Mintransstroy 8пр) |



























































