Скачать Серия 3.503.1-81 Выпуск 7-1. Дополнение 8. Балки пролетного строения длиной 24 м, высотой 12,3 м, армированные пучками из 4 стальных канатов К7 по ГОСТ 13840-68* и изготавливаемые в опалубке балок длиной 24 м по выпуску 5-5. Рабочие чертежиДата актуализации: 01.01.2021
|
| Обозначение: | Серия 3.503.1-81 |
| Обозначение англ: | Series 3.503.1-81 |
| Статус: | не определен законодательством |
| Название рус.: | Выпуск 7-1. Дополнение 8. Балки пролетного строения длиной 24 м, высотой 12,3 м, армированные пучками из 4 стальных канатов К7 по ГОСТ 13840-68* и изготавливаемые в опалубке балок длиной 24 м по выпуску 5-5. Рабочие чертежи |
| Дата добавления в базу: | 01.09.2013 |
| Дата актуализации: | 01.01.2021 |
| Дата введения: | 27.04.1998 |
| Дата окончания срока действия: | 30.06.2003 |
| Область применения: | Настоящий выпуск включает в себя рабочие чертежи сборных предварительно напряженных железобетонных балок пролетных строений длиной 24 м, высотой 1,23 м для мостов и путепроводов, расположенных на автомобильных дорогах общего пользования, разработанные в соответствии со СНиП 2.05.03-84* "Мосты и трубы" |
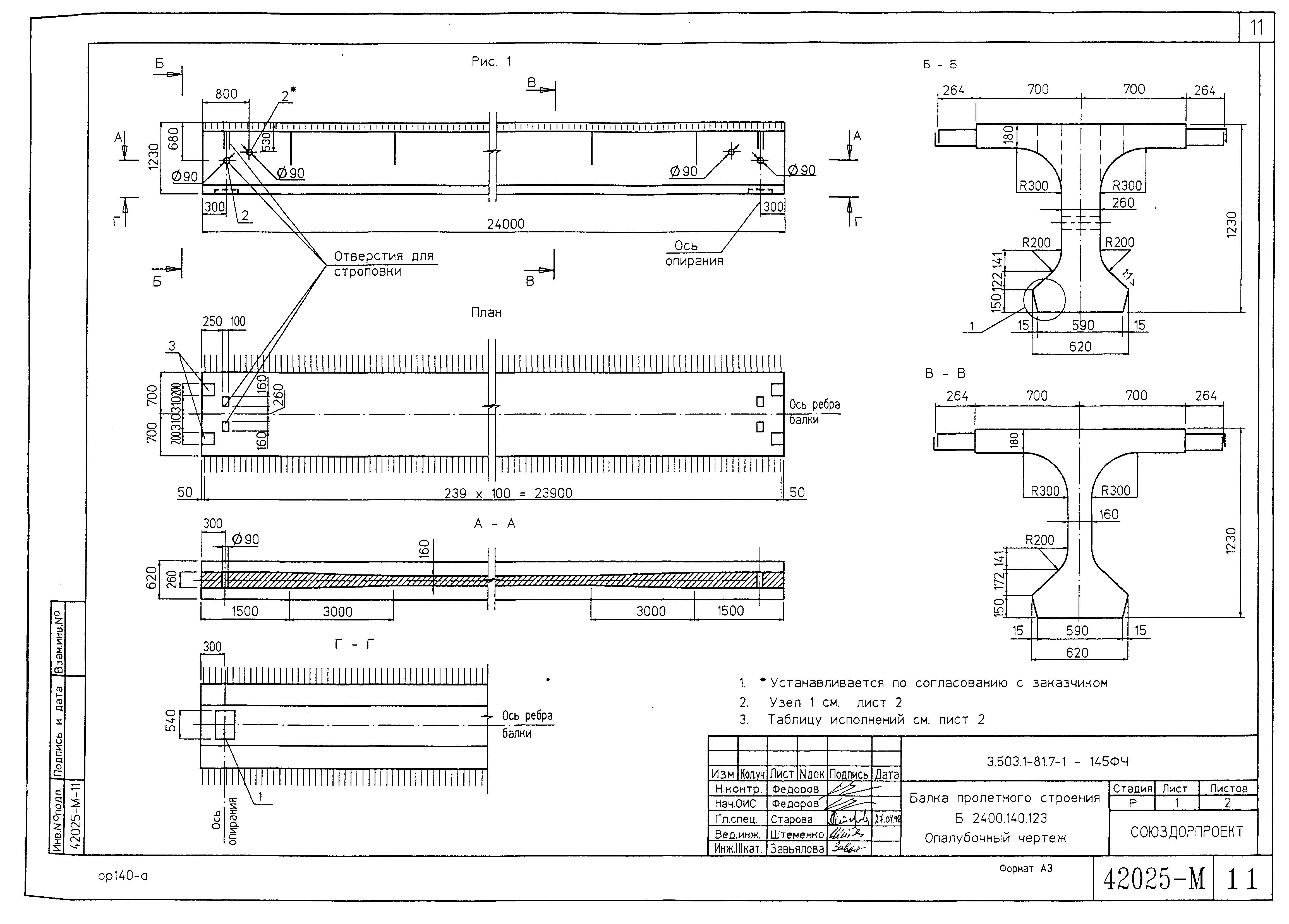
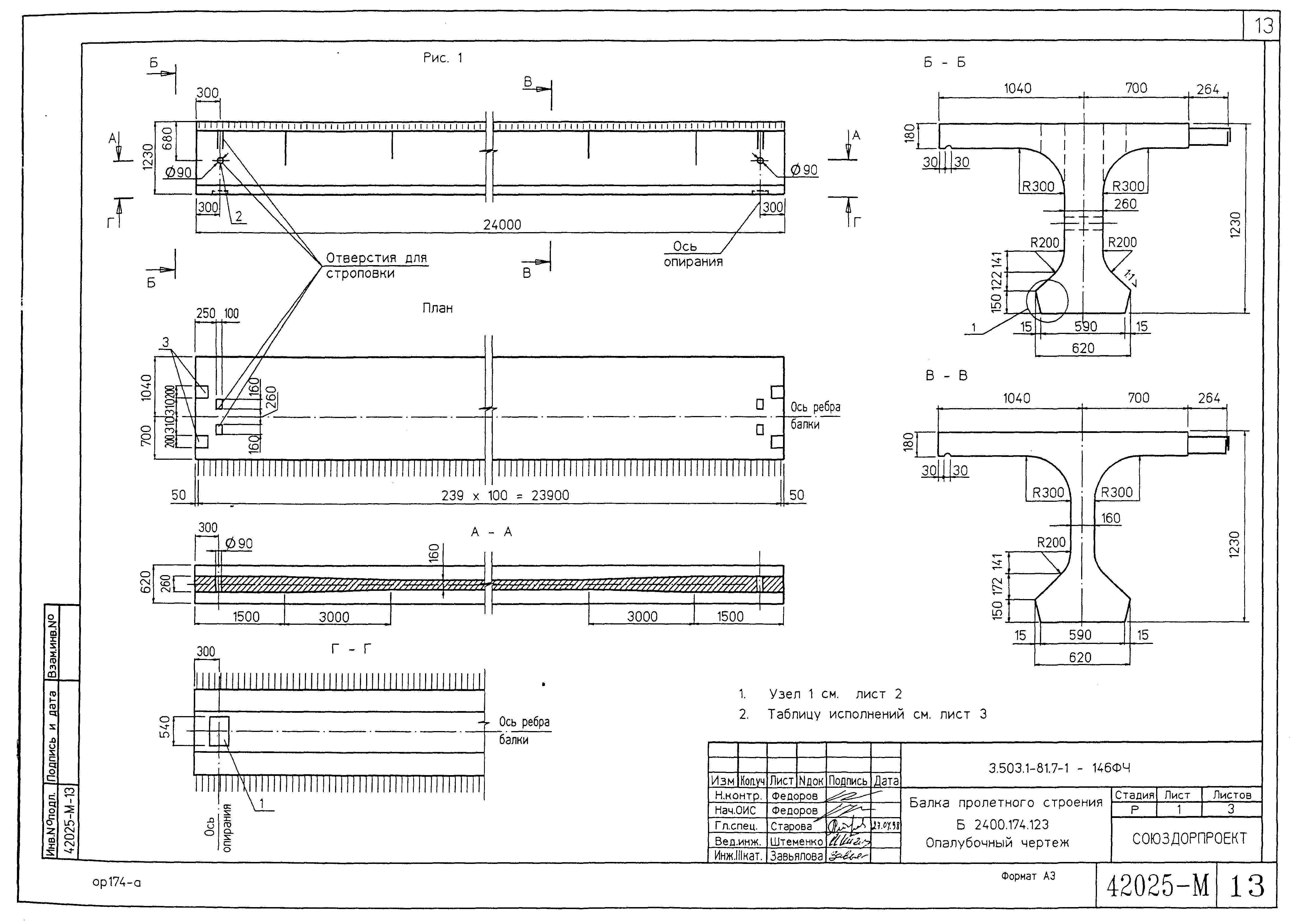
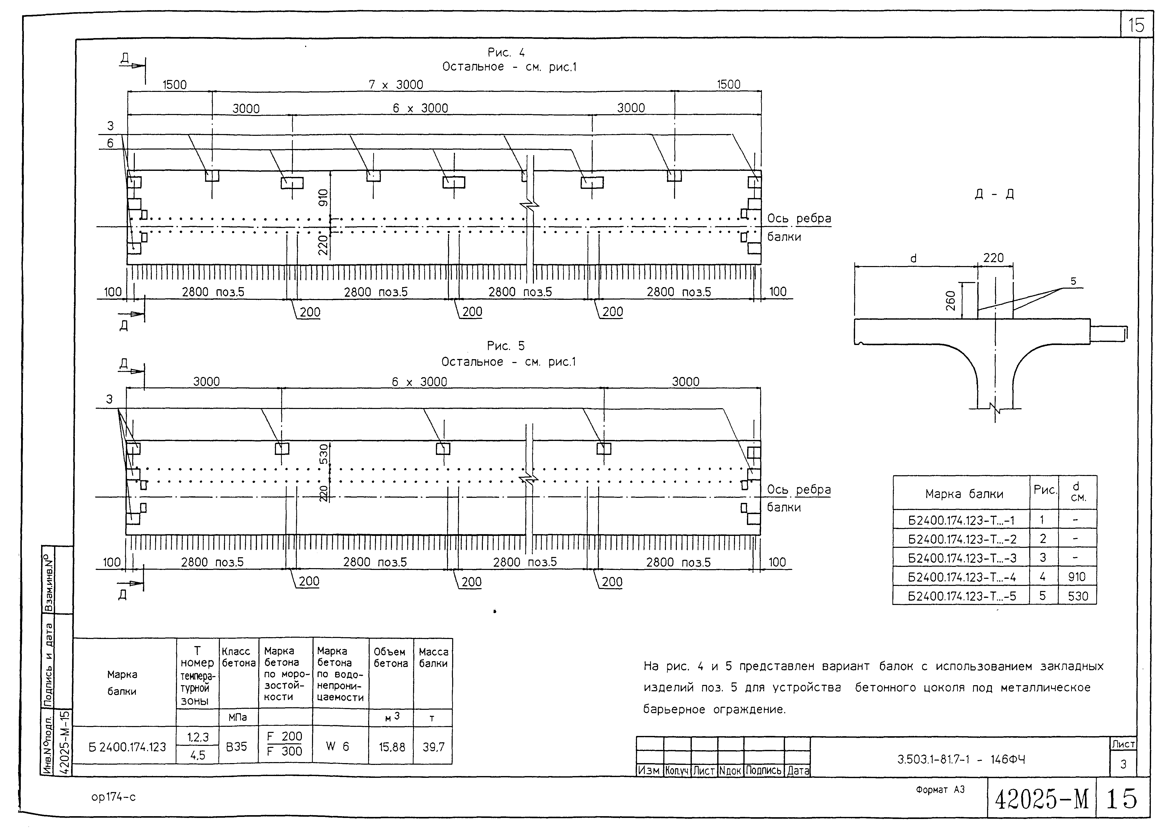
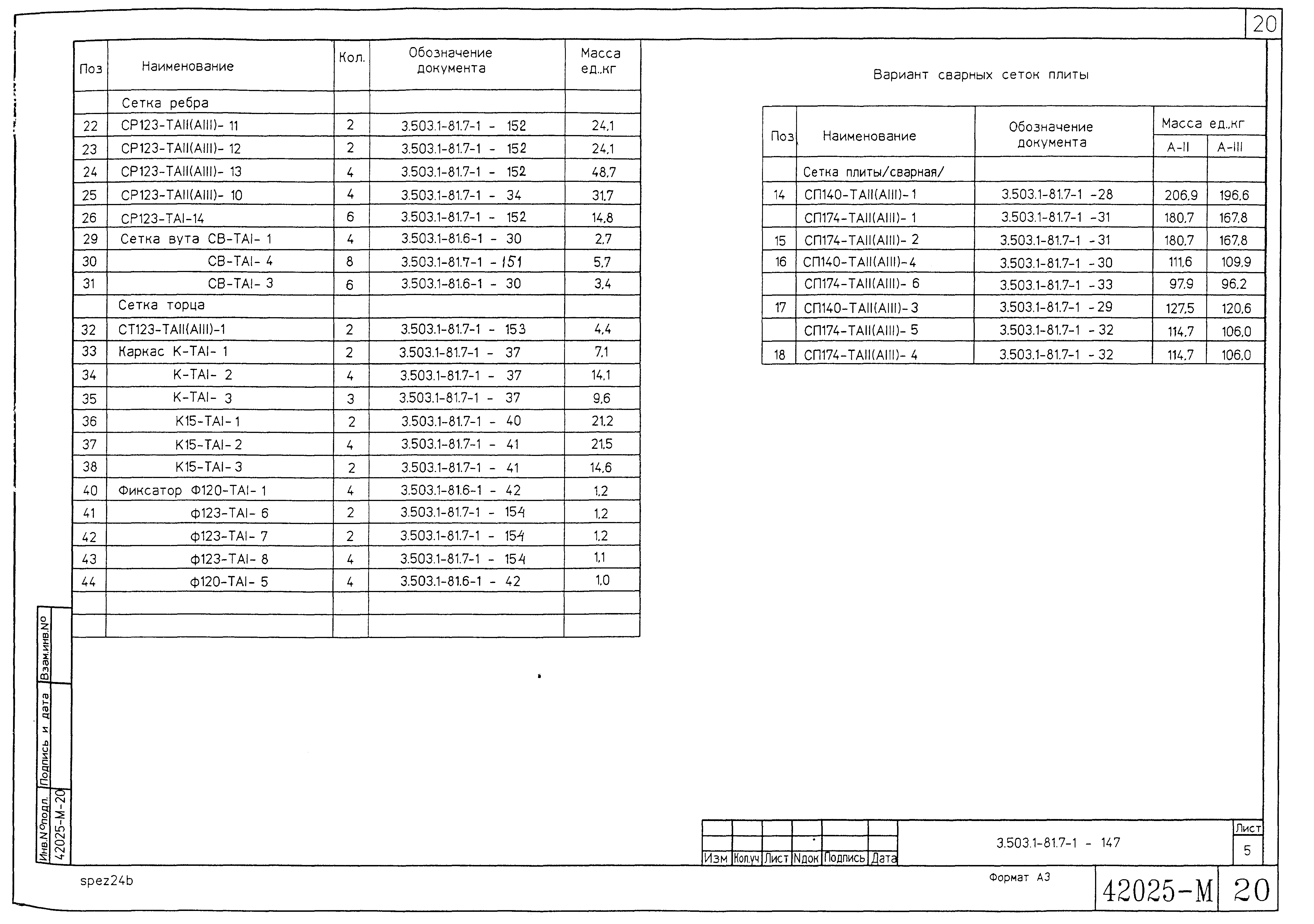
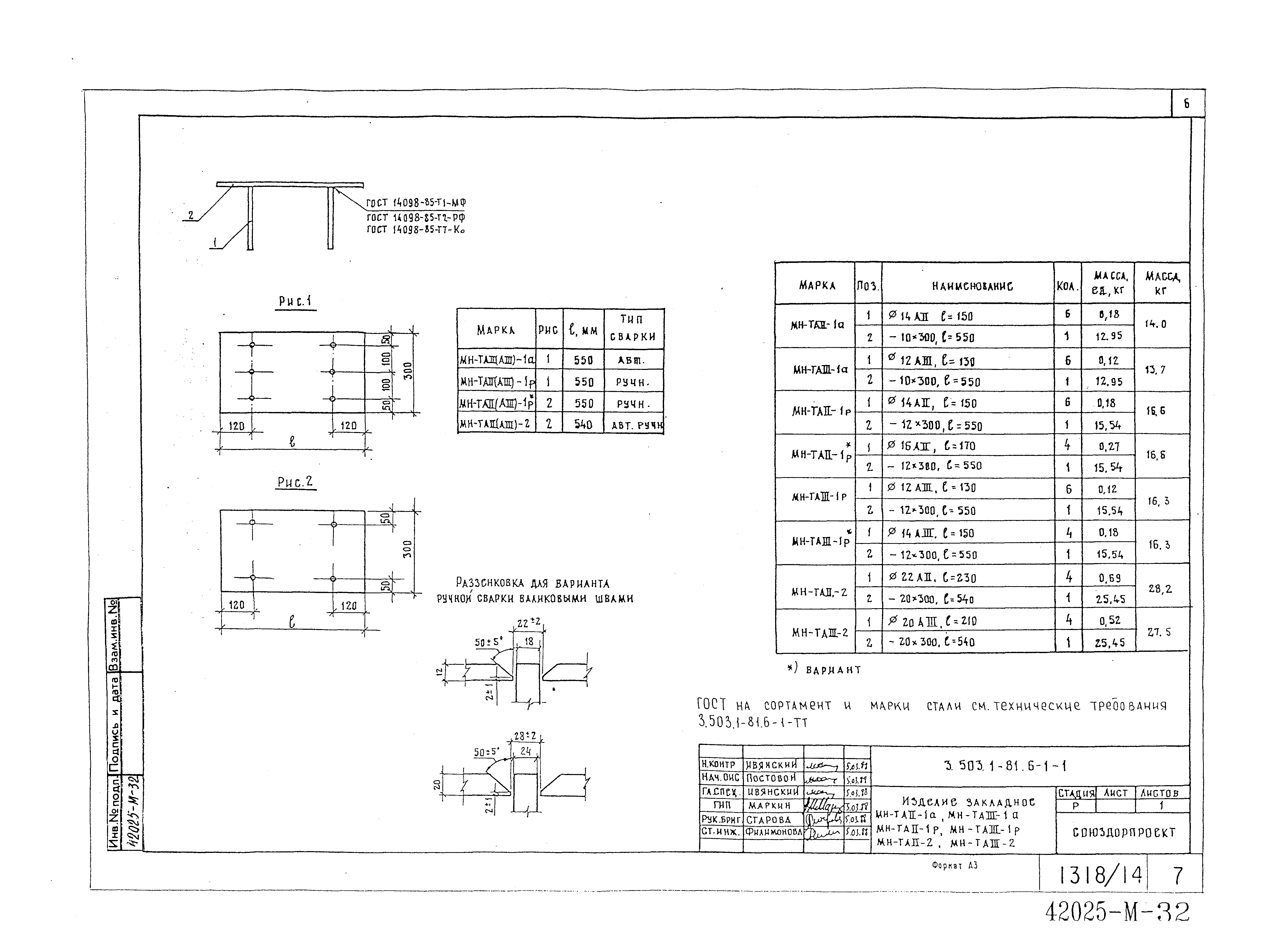
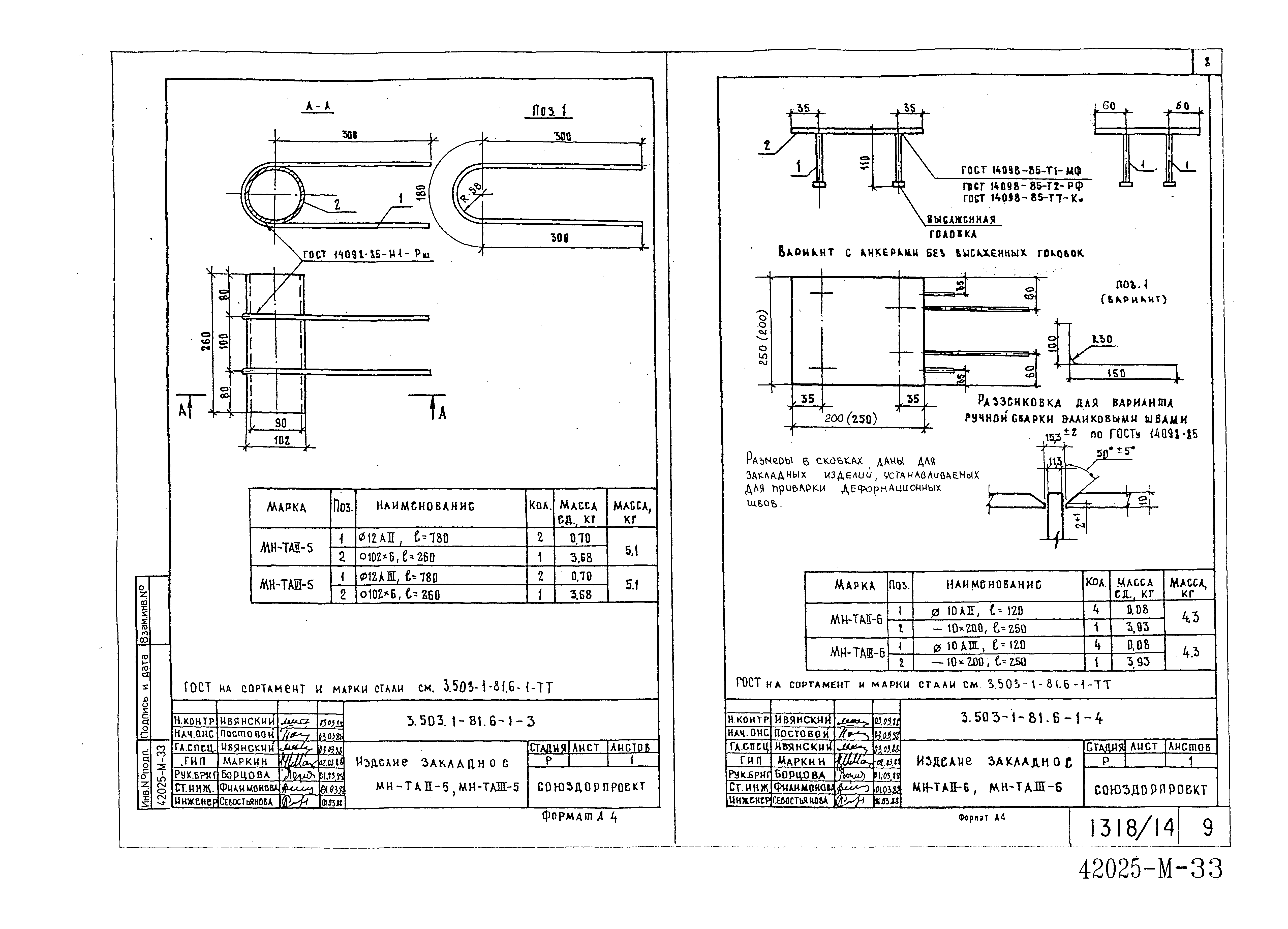
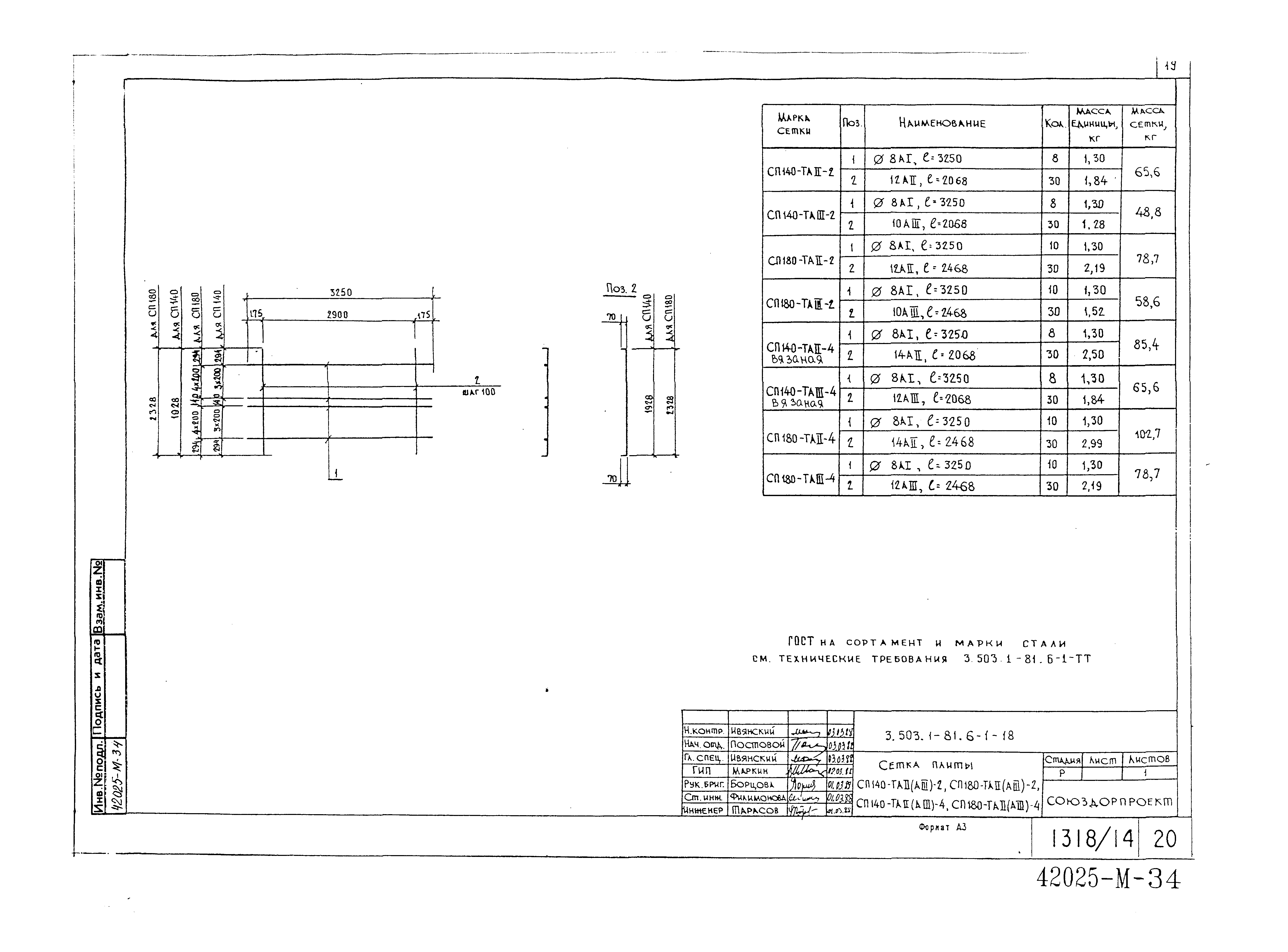
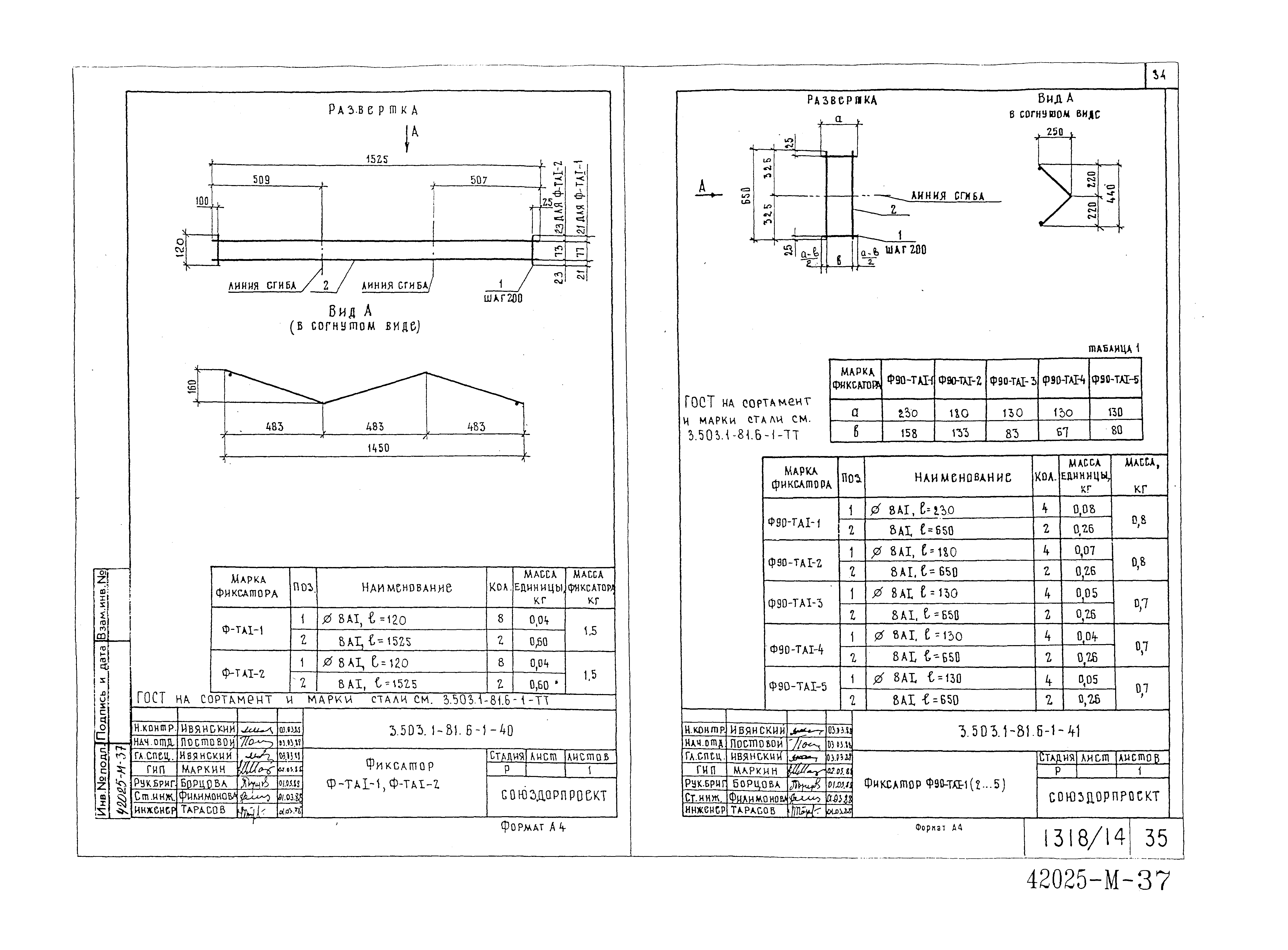
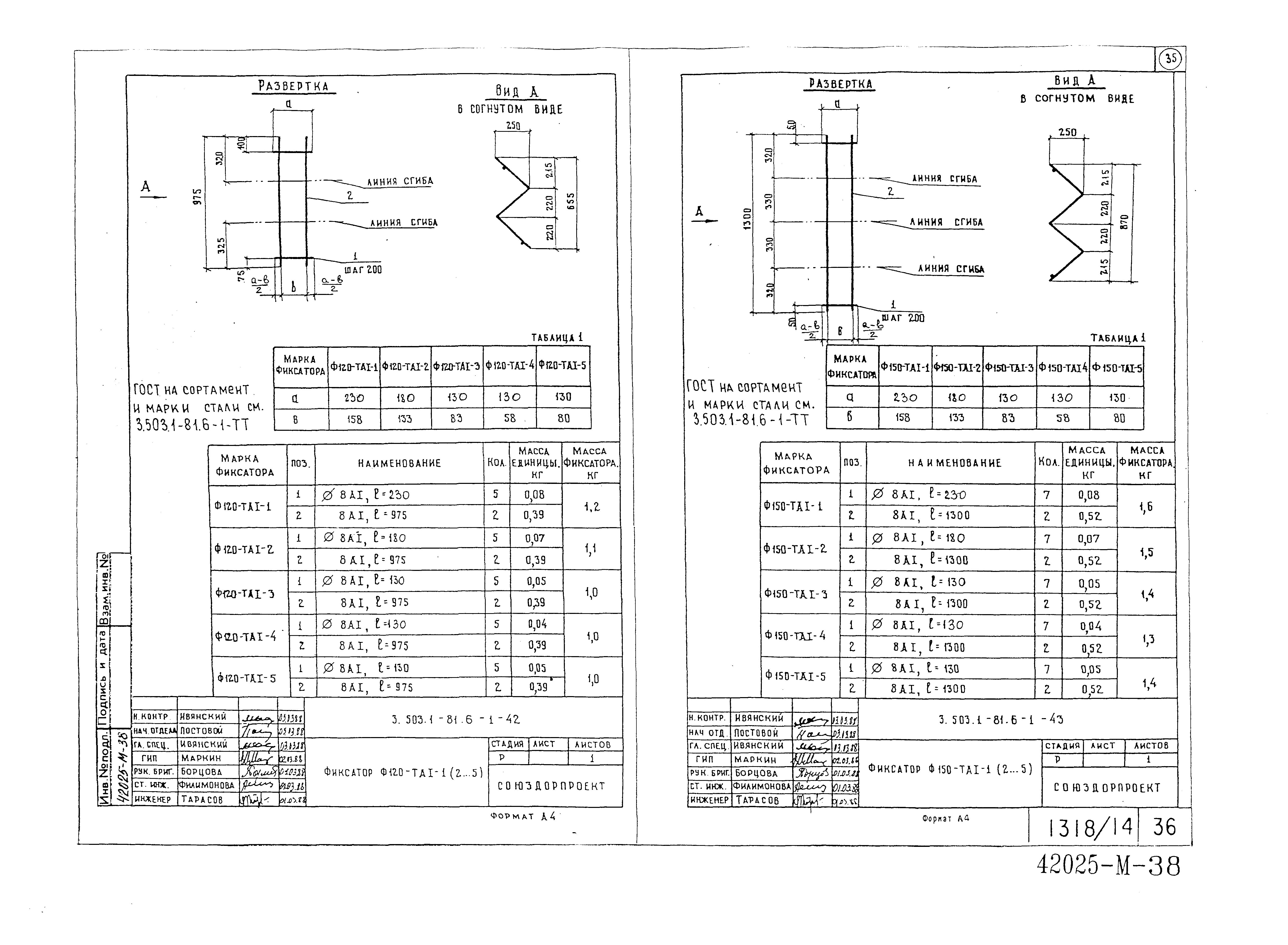
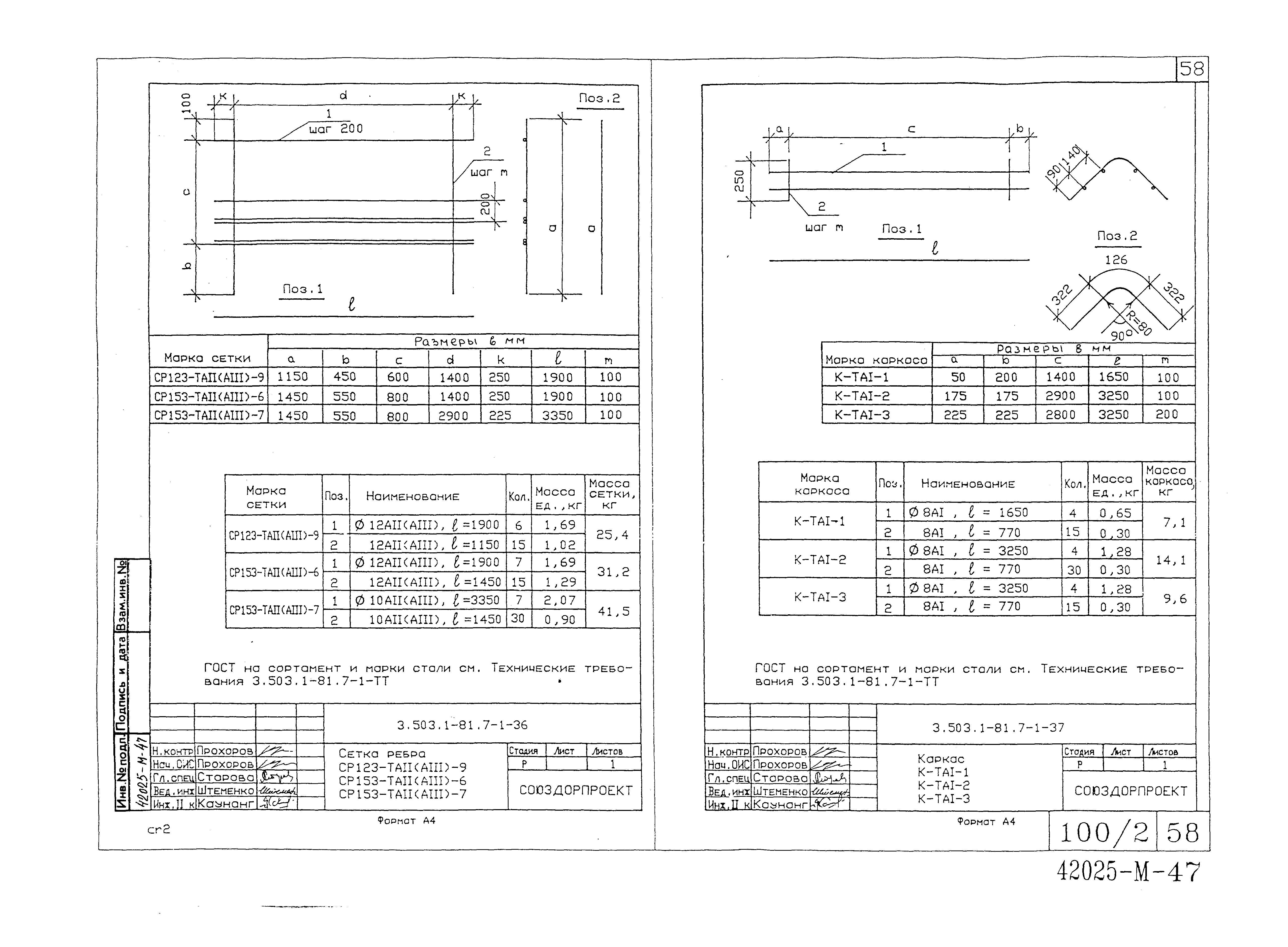
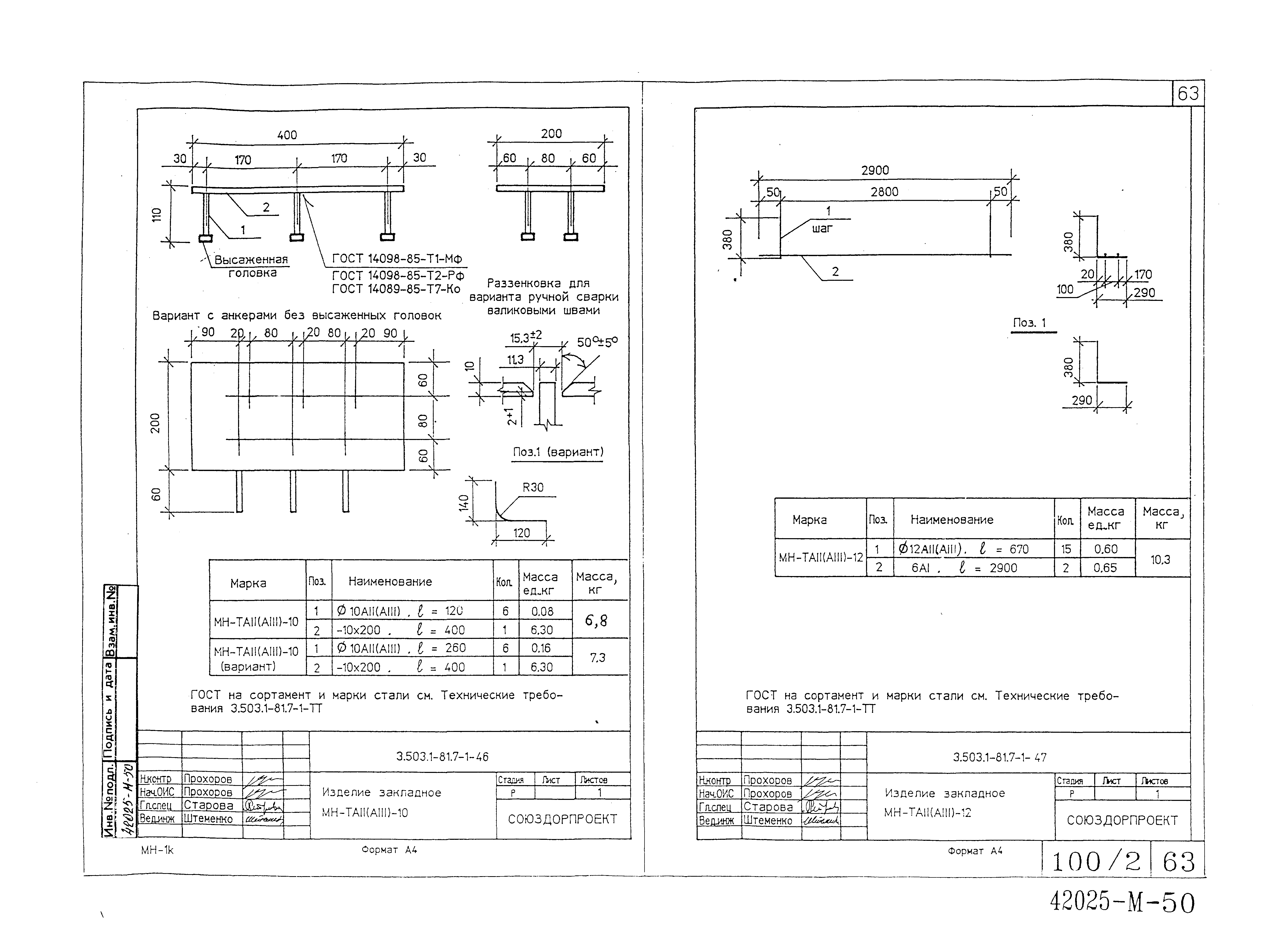
| Оглавление: | 3.503.1-81.7-1-ТТдоп8 Технические требования 3.503.1-81.7-1-145ФЧ Балка пролетного строения Б2400.140.123. Опалубочный чертеж 3.503.1-81.7-1-146ФЧ Балка пролетного строения Б2400.174.123. Опалубочный чертеж 3.503.1-81.7-1-147 Балка пролетного строения Б2400.b.123. Схема армирования балок ненапрягаемой арматурой 3.503.1-81.7-1-148 Балка пролетного строения Б2400.b.123. Схема армирования балок напрягаемой арматурой 3.503.1-81.7-1-149 Пучок из канатов К7 3.503.1-81.7-1-150 Спираль 3.503.1-81.7-1-151 Сетка вута СВ-ТАI-4 3.503.1-81.7-1-152 Сетка ребра СР123-ТАII(АIII)-11(12,13), СР123-ТАI-14 3.503.1-81.7-1-153 Сетка торца СР123-ТАII(АIII)-1 3.503.1-81.7-1-154 Фиксатор 3.503.1-81.7-1-155РС Ведомость расхода стали на балку. Армирование пучками из канатов К7 и ненапрягаемой арматурой класса А-II 3.503.1-81.7-1-156РС Ведомость расхода стали на балку. Армирование пучками из канатов К7 и ненапрягаемой арматурой класса А-III 3.503.1-81.7-1-157 Расчетный лист L = 24 м, h = 1,23 м (балка Б2400.140.123-ТК7) 3.503.1-81.7-1-158 Расчетный лист L = 24 м, h = 1,23 м (балка Б2400.174.123-ТК7…-1(Г8)) Чертежи из выпуска 6-1 3.503.1-81.6-1-1 Изделие закладное МН-ТАII(АIII)-1 3.503.1-81.6-1-3 Изделие закладное МН-ТАII(АIII)-5 3.503.1-81.6-1-18 Сетка плиты СП140--ТАII(АIII)-4 3.503.1-81.6-1-20 Сетка плиты СП174--ТАII(АIII)-6 3.503.1-81.6-1-30 Сетка вута СВ-ТАI-1(2,3) 3.503.1-81.6-1-40 Фиксатор Ф-ТАI-1(2) 3.503.1-81.6-1-42 Фиксатор Ф120-ТАI-1(2…5) Чертежи из выпуска 7-1 3.503.1-81.7-1-28 Сетка плиты СП140--ТАII(АIII)-1 3.503.1-81.7-1-29 Сетка плиты СП140--ТАII(АIII)-3 3.503.1-81.7-1-30 Сетка плиты СП140--ТАII(АIII)-4 3.503.1-81.7-1-31 Сетка плиты СП174--ТАII(АIII)-1, СП174--ТАII(АIII)-2 3.503.1-81.7-1-32 Сетка плиты СП174--ТАII(АIII)-4, СП174--ТАII(АIII)-5 3.503.1-81.7-1-33 Сетка плиты СП174--ТАII(АIII)-6 3.503.1-81.7-1-34 Сетка ребра СР123-ТАI-10 3.503.1-81.7-1-37 Каркас К-ТАI-1, К-ТАI-2, К-ТАI-3 3.503.1-81.7-1-40 Каркас К15-ТАI-1 3.503.1-81.7-1-41 Каркас К15-ТАI-2, К15-ТАI-3 3.503.1-81.7-1-44 Изделие закладное МН-ТАII(АIII)-6 3.503.1-81.7-1-45 Изделие закладное МН-ТАII(АIII)-7 3.503.1-81.7-1-46 Изделие закладное МН-ТАII(АIII)-10 3.503.1-81.7-1-47 Изделие закладное МН-ТАII(АIII)-12 |
| Разработан: | Союздорпроект Минтрансстроя |
| Утверждён: | 27.04.1998 Союздорпроект Минтрансстроя (Soyuzdorproject, Mintransstroy ) |

















































