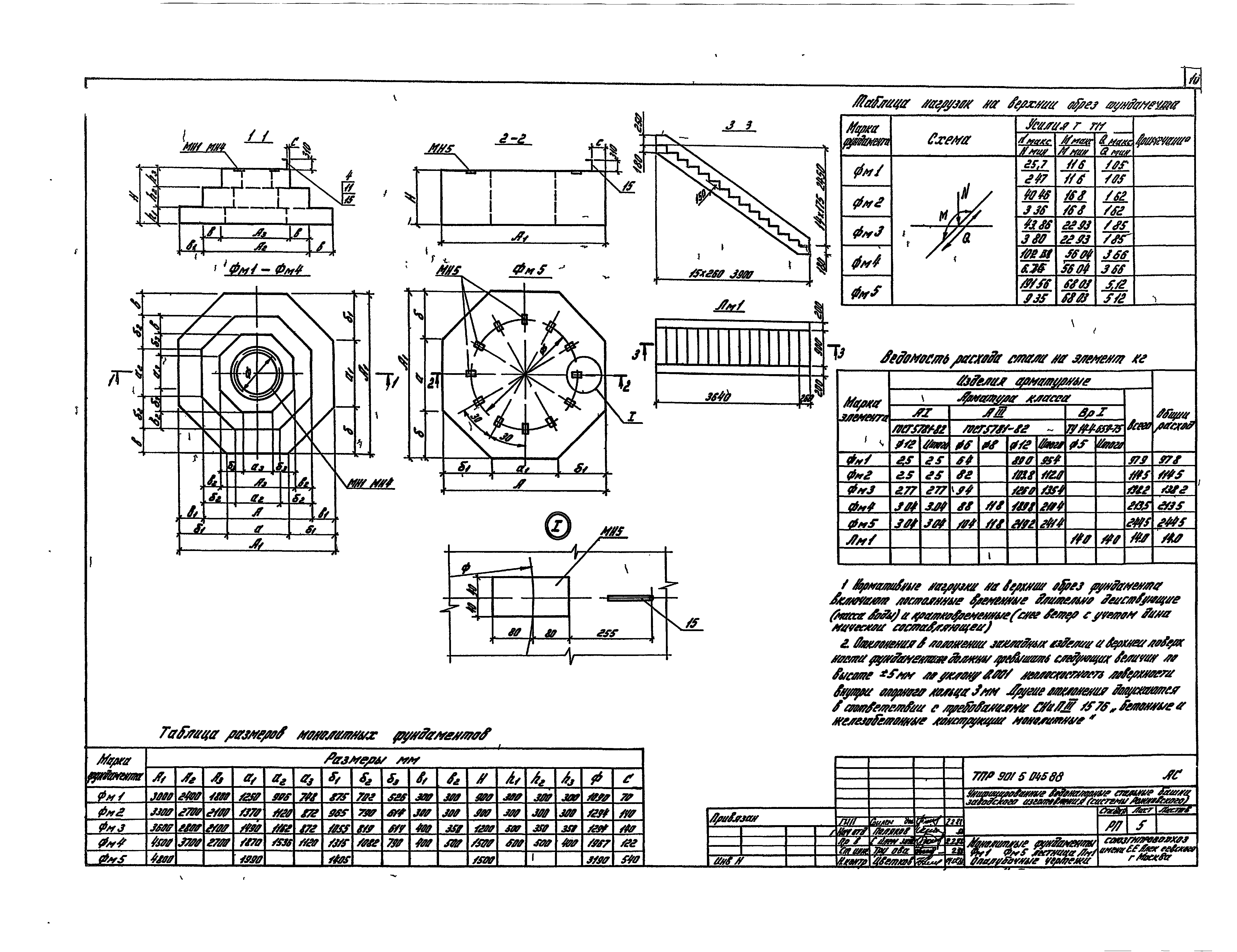
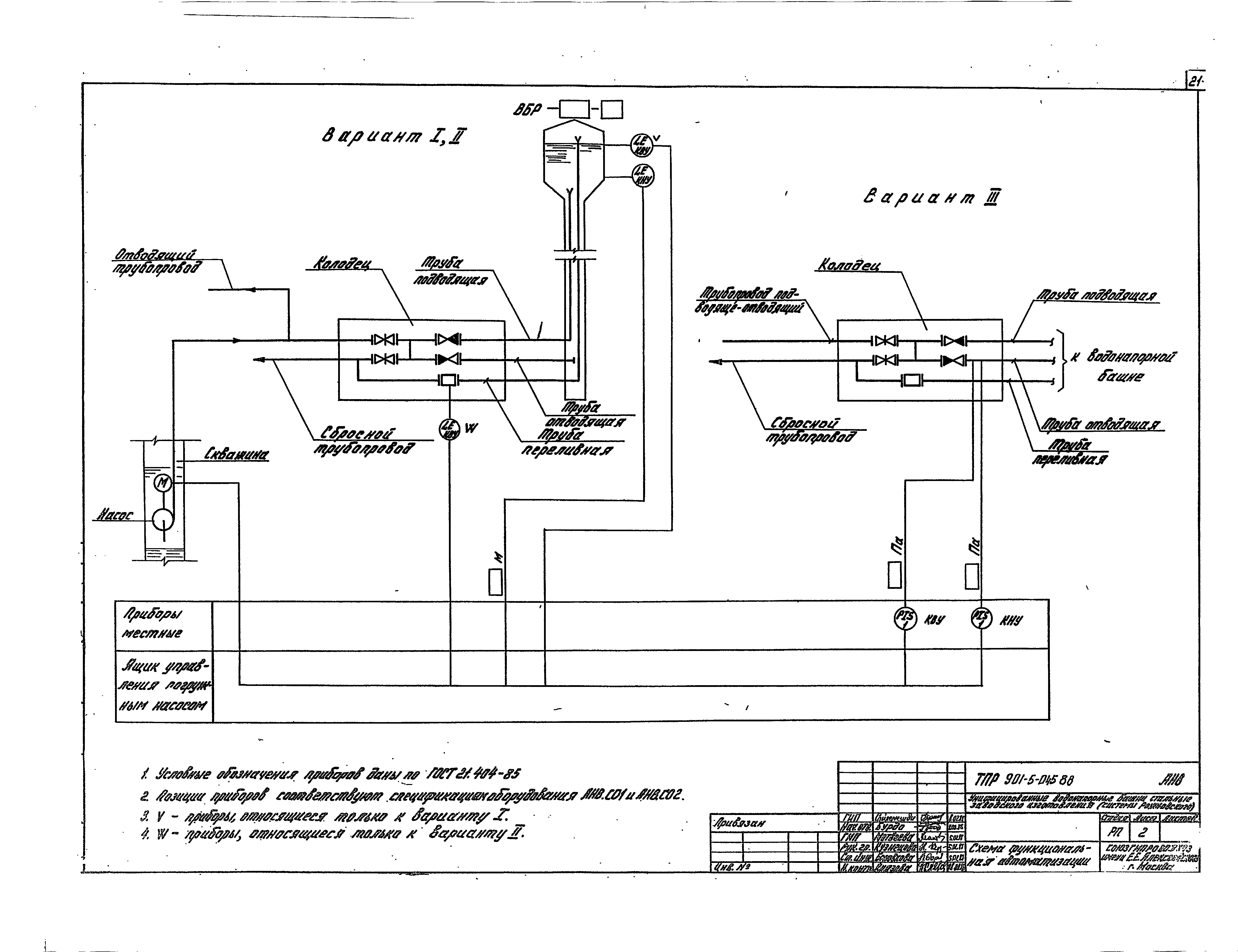
Скачать Типовые проектные решения 901-5-045.88 Альбом I. Пояснительная записка, архитектурно-строительные и технологические решения, автоматизация водоснабжения, организация строительства, спецификация оборудованияДата актуализации: 01.01.2021 Типовые проектные решения 901-5-045.88
Альбом I. Пояснительная записка, архитектурно-строительные и технологические решения, автоматизация водоснабжения, организация строительства, спецификация оборудования| Обозначение: | Типовые проектные решения 901-5-045.88 | | Обозначение англ: | 901-5-045.88 | | Статус: | справочные материалы, мп, тпр | | Название рус.: | Альбом I. Пояснительная записка, архитектурно-строительные и технологические решения, автоматизация водоснабжения, организация строительства, спецификация оборудования | | Дата добавления в базу: | 01.09.2013 | | Дата актуализации: | 01.01.2021 | | Дата введения: | 10.10.1988 | | Разработан: | Союзгипроводхоз Минводхоза СССР ГипроНИсельхоз (Институт Гипронисельхоз )
| | Утверждён: | 10.10.1988 Минводхоз СССР (USSR Minvodkhoz 47)
|
                          
|