Скачать Серия 2.400-7 Выпуск 0. Материалы для проектированияДата актуализации: 01.01.2021
|
| Обозначение: | Серия 2.400-7 |
| Обозначение англ: | Series 2.400-7 |
| Статус: | заменен |
| Название рус.: | Выпуск 0. Материалы для проектирования |
| Дата добавления в базу: | 01.09.2013 |
| Дата актуализации: | 01.01.2021 |
| Дата введения: | 01.10.1989 |
| Дата окончания срока действия: | 01.12.1993 |
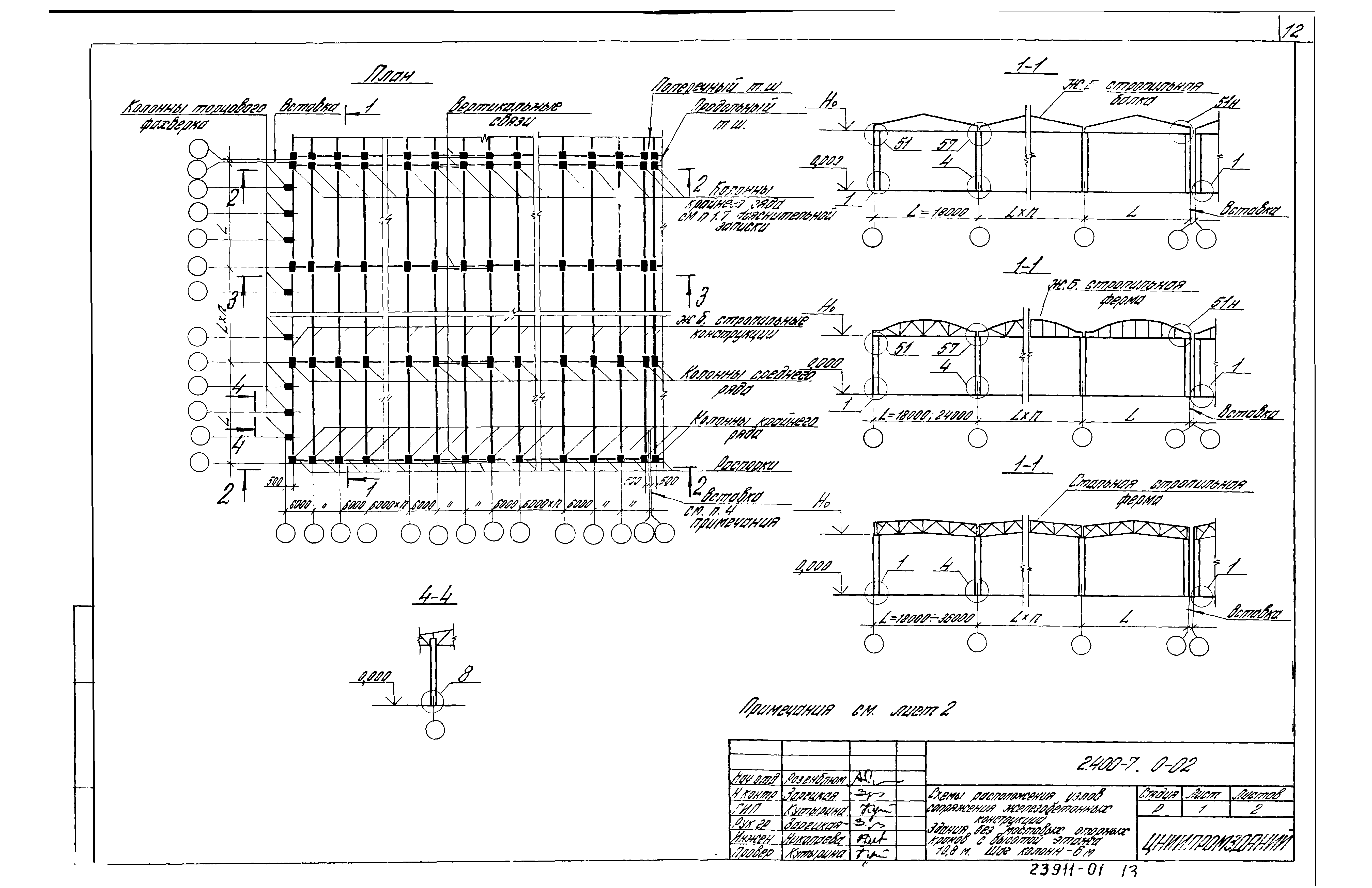
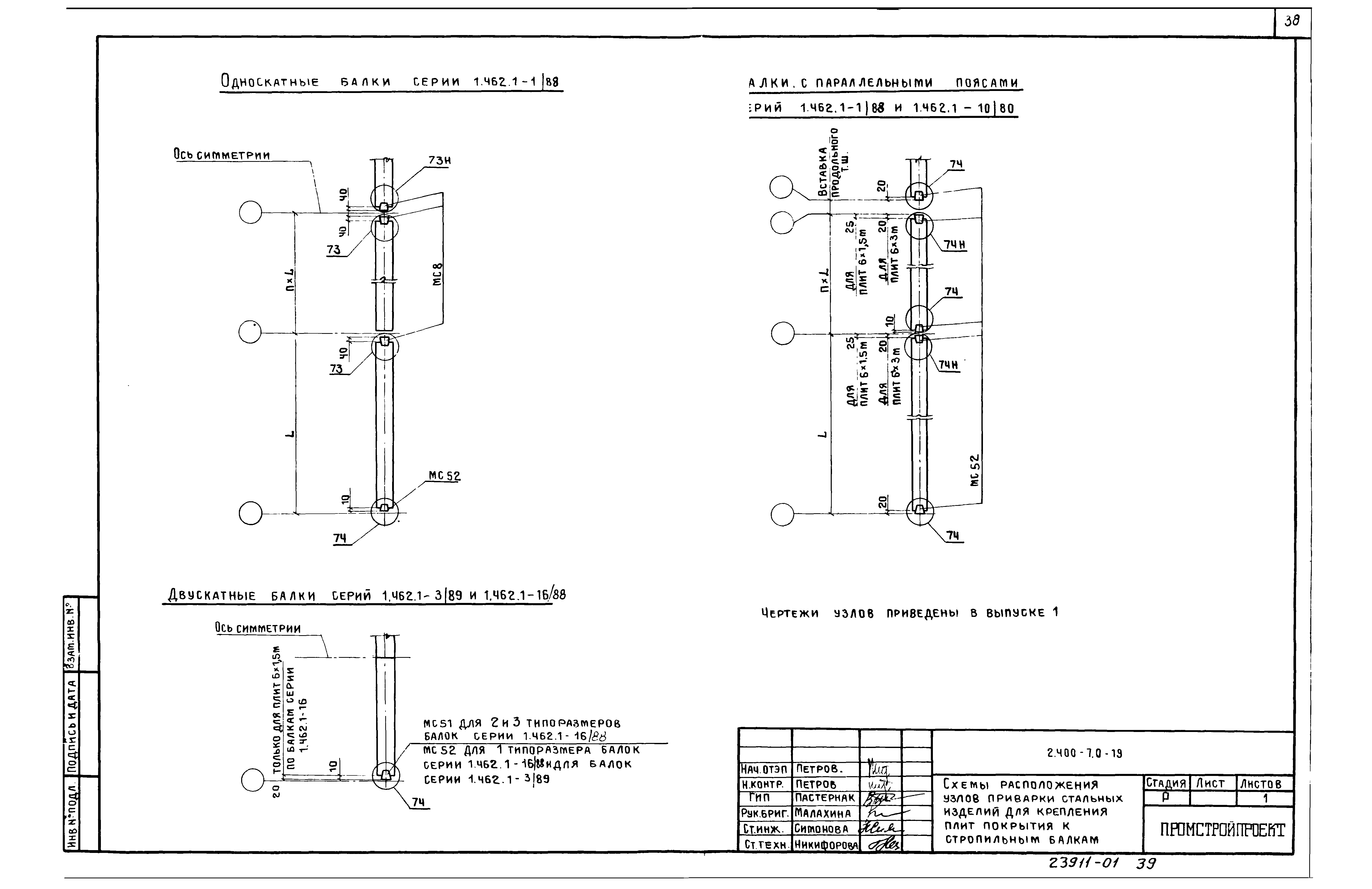
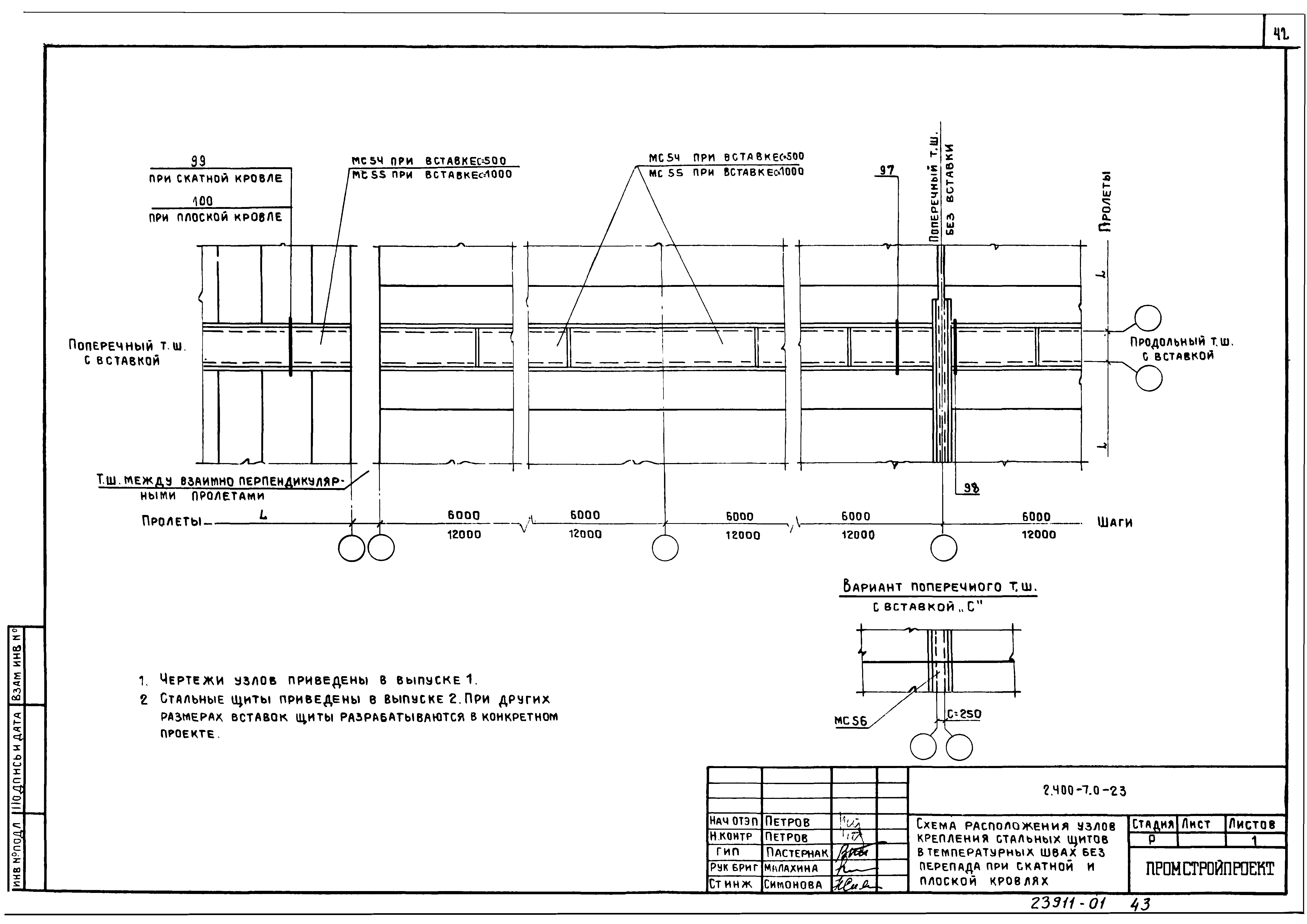
| Оглавление: | 2.400-7.0-ПЗ Пояснительная записка 2.400-7.0-01 Схемы расположения узлов сопряжения железобетонных конструкций здания без мостовых опорных кранов с высотой этажа 3.0, 9.6 м. Шаг колонн - 6м 2.400-7.0-02 Схемы расположения узлов сопряжения железобетонных конструкций здания без мостовых опорных кранов с высотой этажа 10.8 м. Шаг колонн - 6м 2.400-7.0-03 Схемы расположения узлов сопряжения железобетонных конструкций здания без мостовых опорных кранов с высотой этажа 4.8;6.0..9.6 м. Шаг колонн - 6 и 12м 2.400-7.0-04 Схемы расположения узлов сопряжения железобетонных конструкций здания без мостовых опорных кранов с высотой этажа 10.8…14.4 м. Шаг колонн - 6 и 12м 2.400-7.0-05 Схемы расположения узлов сопряжения железобетонных конструкций здания без мостовых опорных кранов с высотой этажа 15.6…18.0 м. Шаг колонн - 6 и 12м 2.400-7.0-06 Схемы расположения узлов сопряжения железобетонных конструкций здания без мостовых опорных кранов с высотой этажа 4.8;6.0…9.6 м. Шаг колонн - 12м 2.400-7.0-07 Схемы расположения узлов сопряжения железобетонных конструкций здания без мостовых опорных кранов с высотой этажа 10.8…4.4 м. Шаг колонн - 12м 2.400-7.0-08 Схемы расположения узлов сопряжения железобетонных конструкций здания без мостовых опорных кранов с высотой этажа 15.6…18.0 м. Шаг колонн - 12м 2.400-7.0-09 Схемы расположения узлов сопряжения железобетонных конструкций здания с мостовыми опорными кранами с высотой этажа 8.4…10.8 м. Шаг колонн - 6м 2.400-7.0-10 Схемы расположения узлов сопряжения железобетонных конструкций здания с мостовыми опорными кранами с высотой этажа 8.4…14.4 м. Шаг колонн - 6 и 12м 2.400-7.0-11 Схемы расположения узлов сопряжения железобетонных конструкций здания с мостовыми опорными кранами с высотой этажа 15.6…18.0 м. Шаг колонн - 6 и 12м 2.400-7.0-12 Схемы расположения узлов сопряжения железобетонных конструкций здания с мостовыми опорными кранами с высотой этажа 8.4…14.4 м. Шаг колонн - 12м 2.400-7.0-13 Схемы расположения узлов сопряжения железобетонных конструкций здания с мостовыми опорными кранами с высотой этажа 15.6-18.0 м. Шаг колонн - 12м 2.400-7.0-14 Схемы расположения и ключ для подбора монтажных узлов и марок стальных изделий для крепления колонн торцевого фахверка к безкаркасным фермам 2.400-7.0-15 Схемы расположения и ключ для подбора монтажных узлов и марок стальных изделий для крепления колонн торцевого фахверка к сегментным фермам 2.400-7.0-16 Схемы расположения и ключ для подбора монтажных узлов и марок стальных изделий для крепления колонн торцевого фахверка к односкатным и двускатным балкам 2.400-7.0-17 Схемы расположения узлов приварки стальных изделий для крепления плит покрытия к стропильным фермам 2.400-7.0-18 Схемы расположения узлов приварки стальных изделий для крепления плит покрытия к подстропильным фермам 2.400-7.0-19 Схемы расположения узлов приварки стальных изделий для крепления плит покрытия к стропильным балкам 2.400-7.0-20 Схемы расположения узлов приварки плит покрытия к стропильным и подстропильным конструкциям 2.400-7.0-21 Схемы расположения узлов заделки швов между плитами по фермам 2.400-7.0-22 Схемы расположения узлов заделки швов между плитами по балкам 2.400-7.0-23 Схемы расположения узлов крепления стальных щитов в температурных швах без перепада при скатной и плоской кровлях 2.400-7.0-24 Установка закладного изделия в колонне продольного фахверка для крепления распорок |
| Разработан: | ЦНИИпромзданий Промстройпроект |
| Утверждён: | 06.05.1989 Главоргпроект Госстроя СССР (4/5-672) |
| Издан: | ЦИТП Госстроя СССР (CITP, Gosstroy (USSR) 1989 г. ) |
| Заменяет собой: |
|
| Чем заменён: |












































