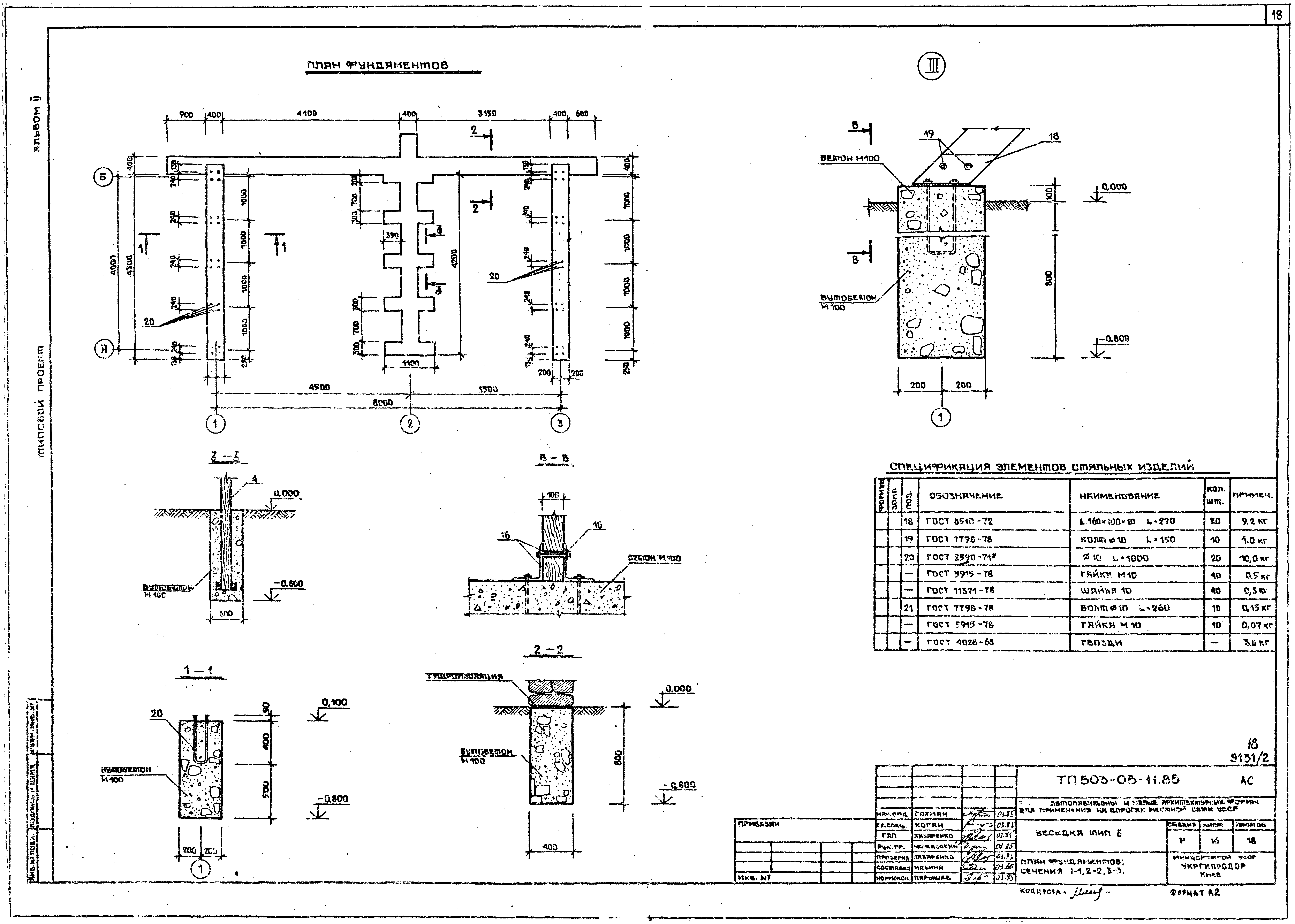
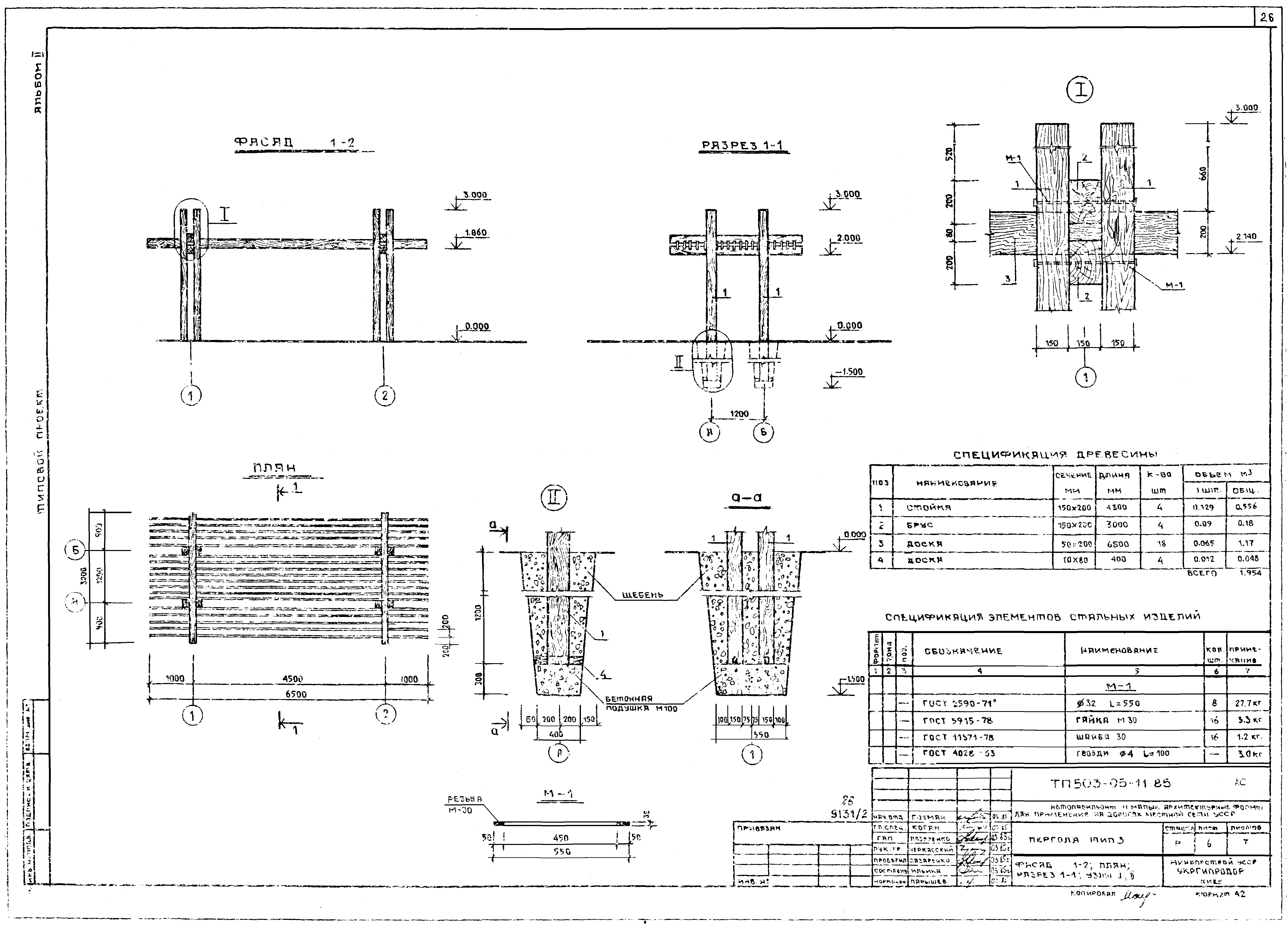
Скачать Типовой проект 503-05-11.85 Альбом II. Малые архитектурные формыДата актуализации: 01.01.2021
|
| Обозначение: | Типовой проект 503-05-11.85 |
| Обозначение англ: | 503-05-11.85 |
| Статус: | не определен законодательством |
| Название рус.: | Альбом II. Малые архитектурные формы |
| Дата добавления в базу: | 01.09.2013 |
| Дата актуализации: | 01.01.2021 |
| Дата введения: | 01.03.1985 |
| Дата окончания срока действия: | 30.06.2003 |
| Разработан: | Укргипродор |
| Утверждён: | 21.02.1985 Миндорстрой УССР (27) |
| Издан: | ЦИТП Госстроя СССР (CITP, Gosstroy (USSR) 1988 г. ) |







































