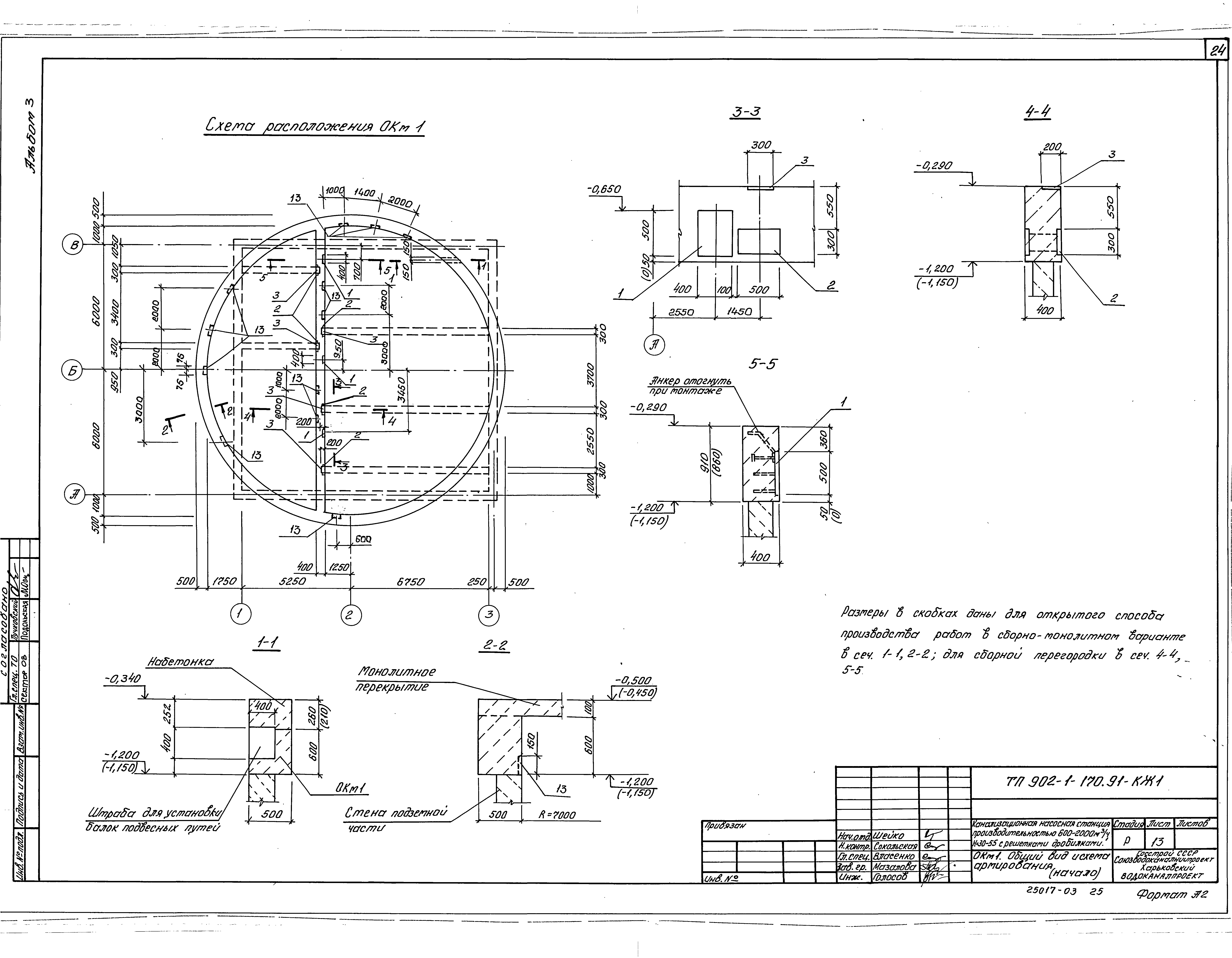
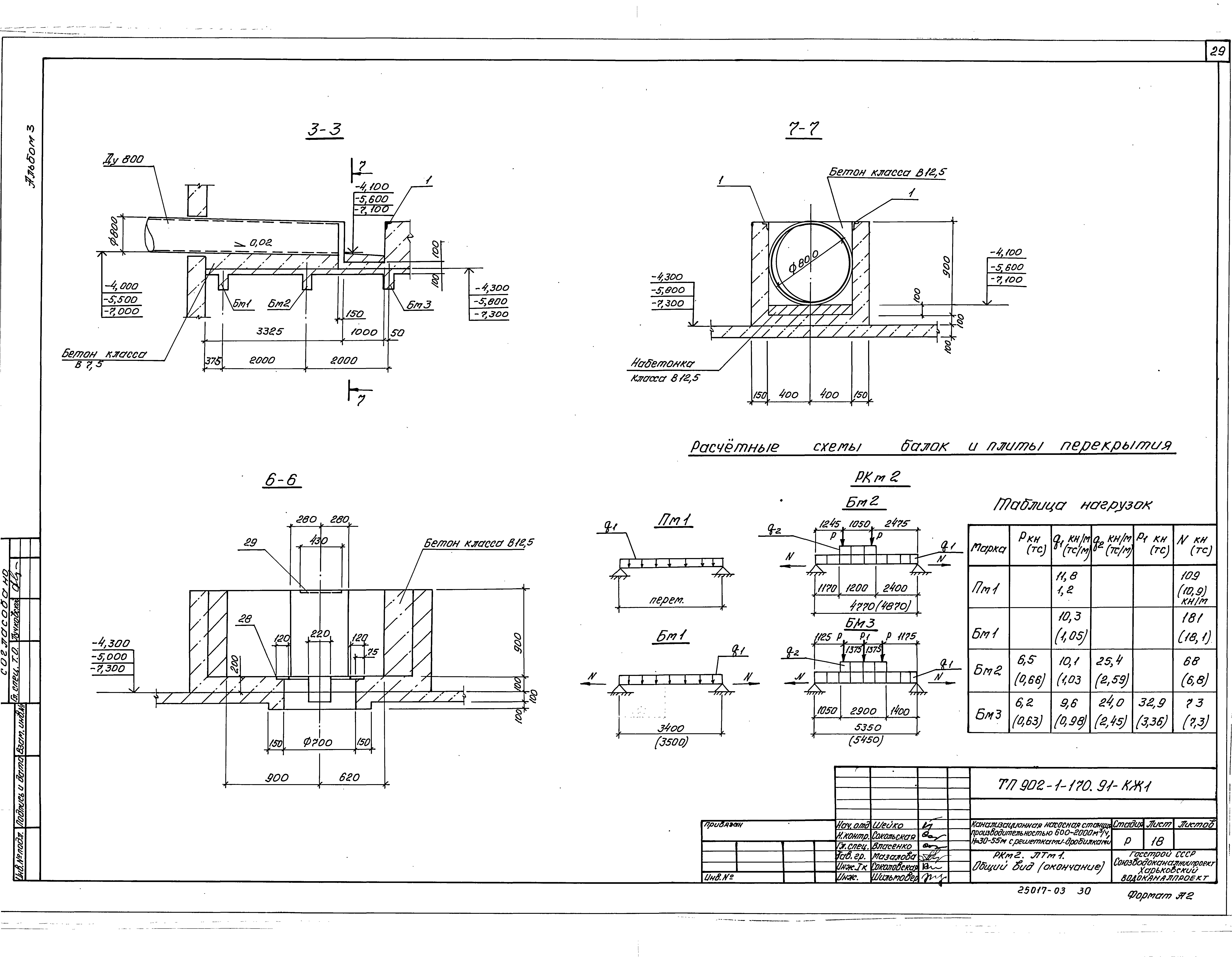
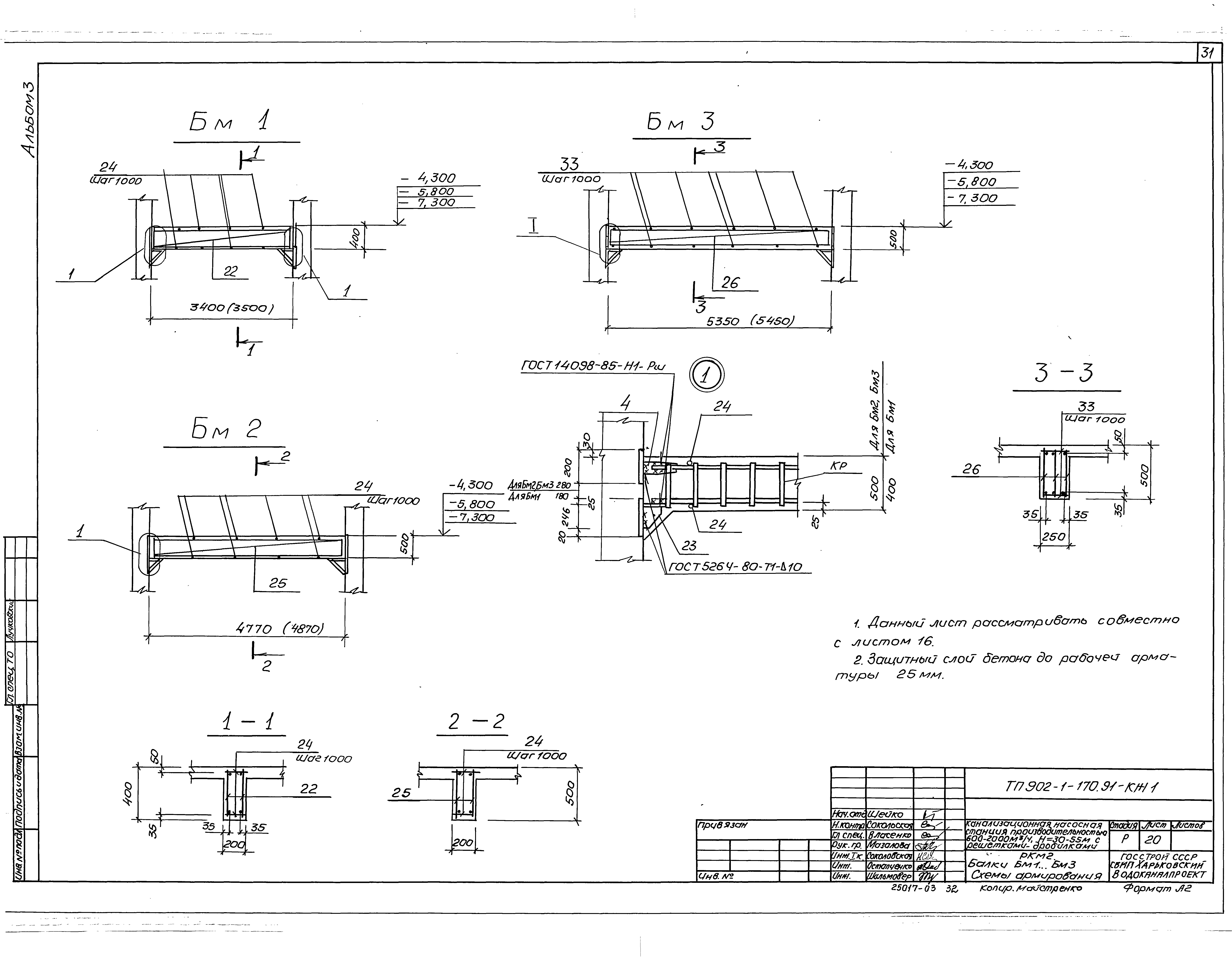
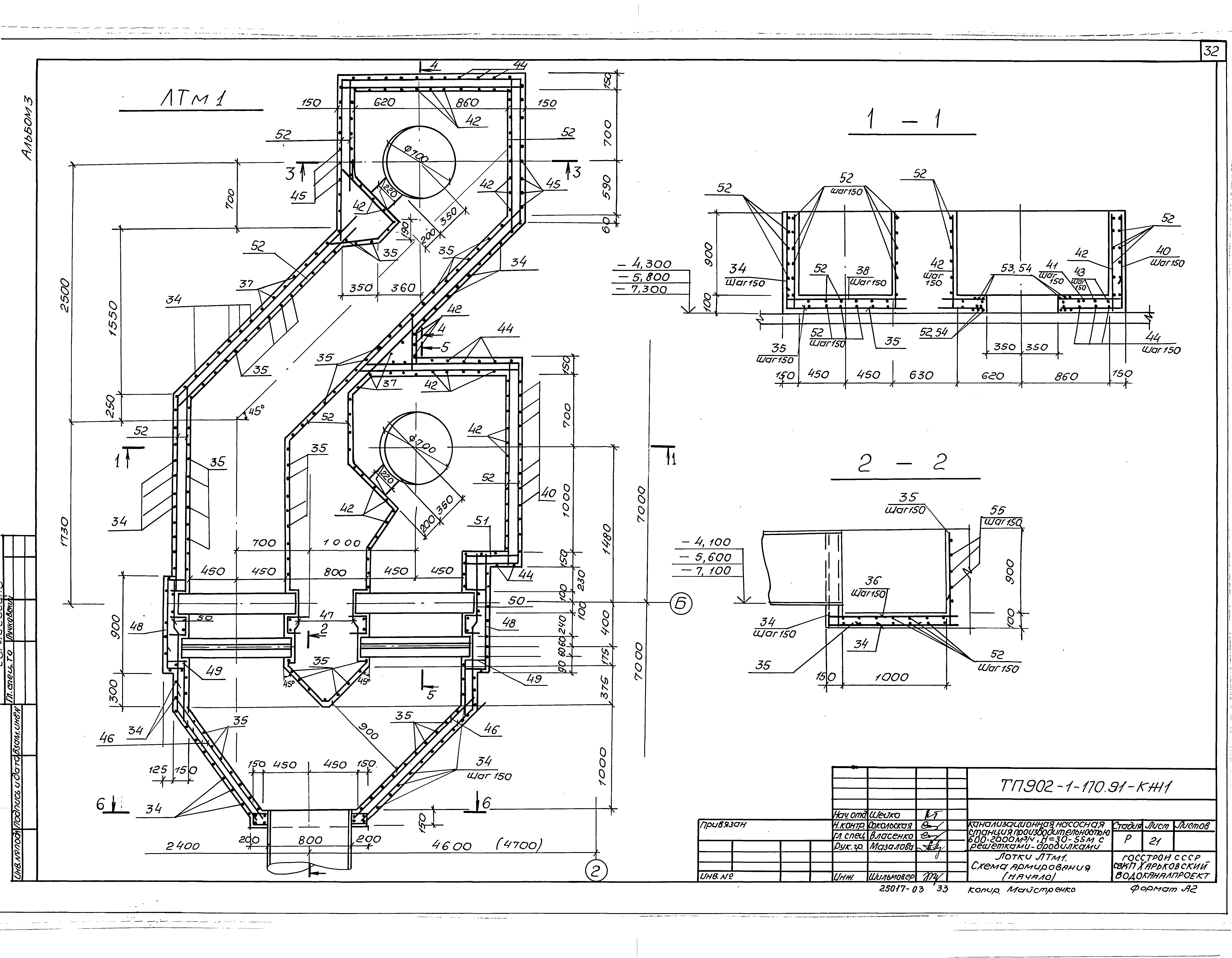
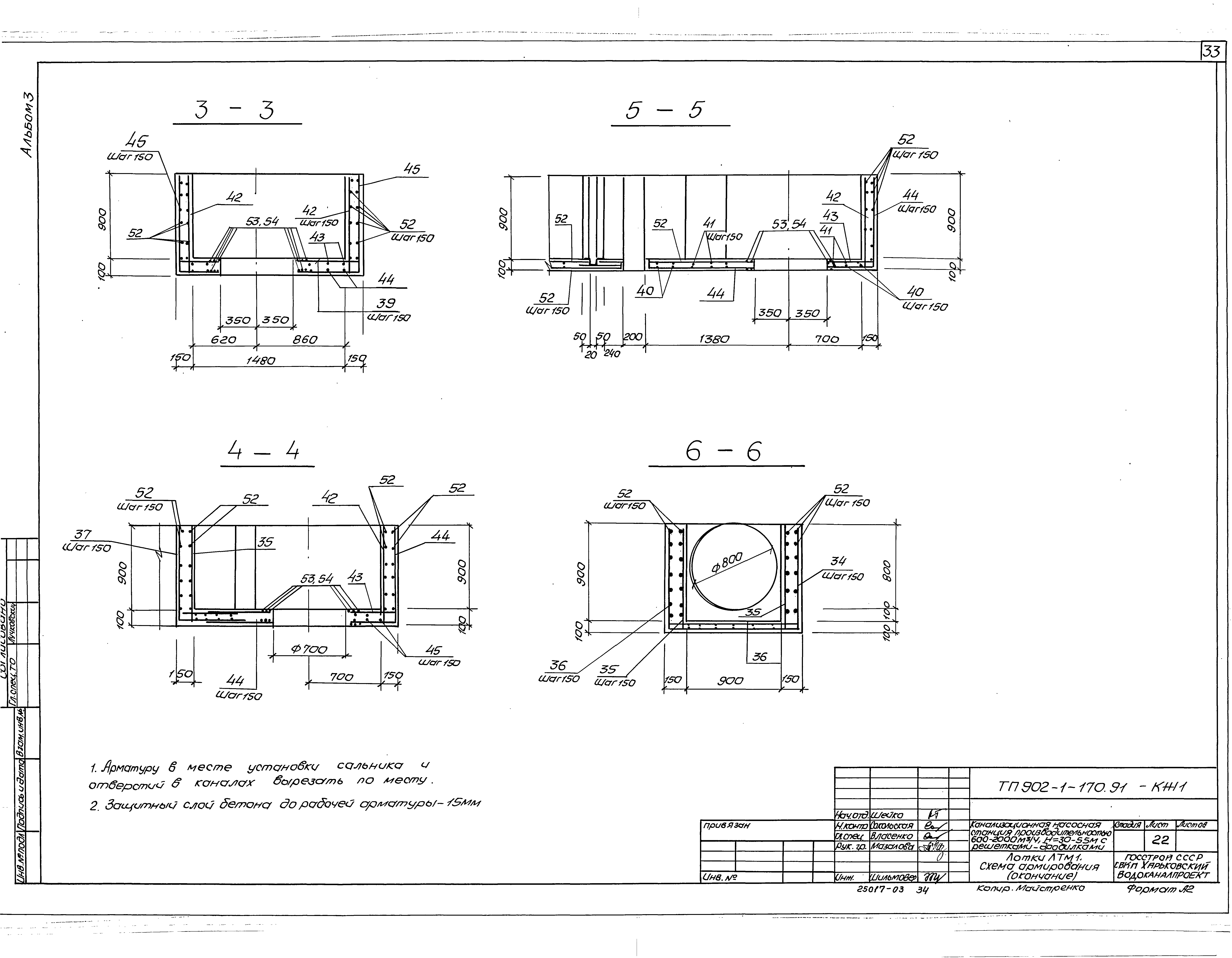
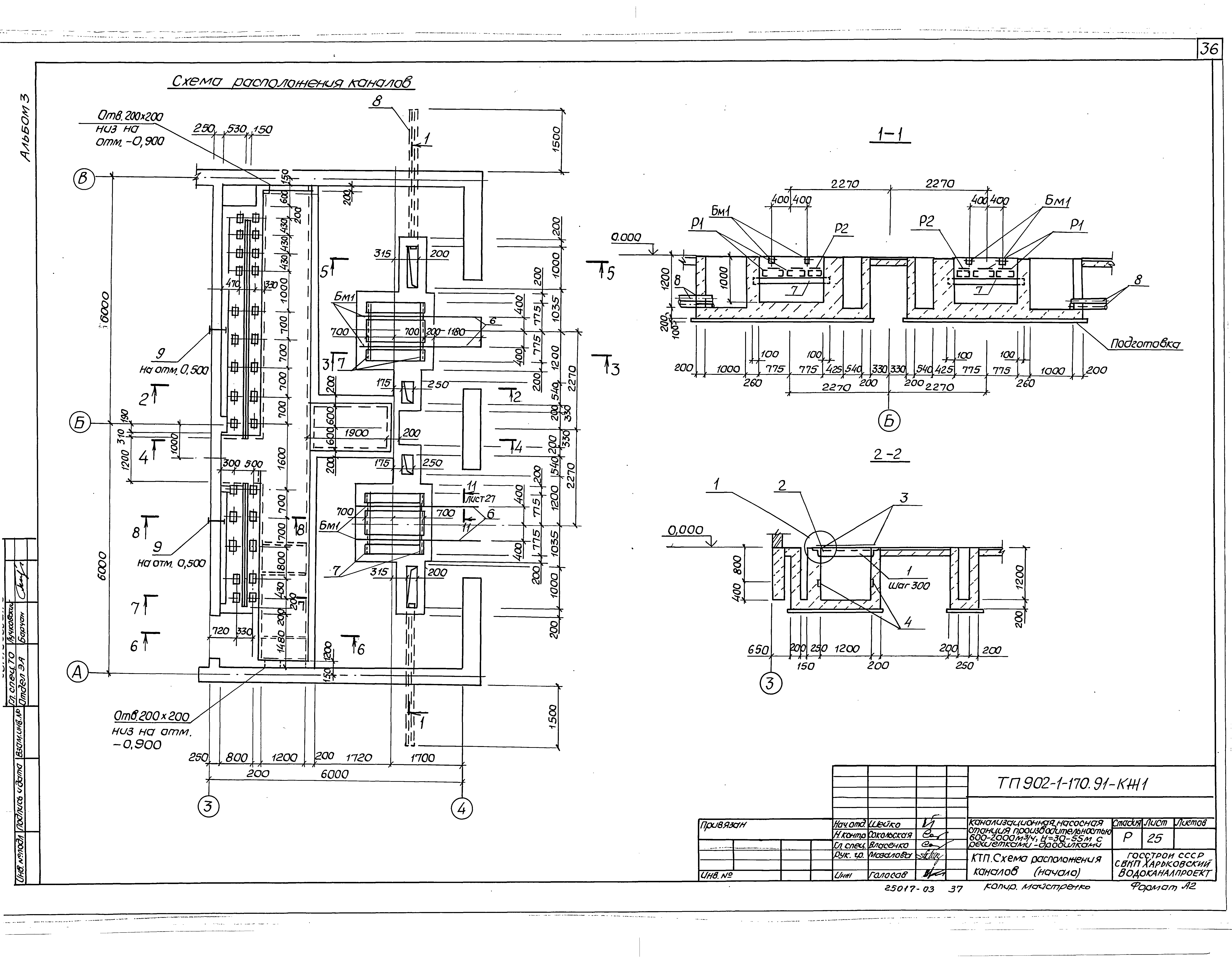
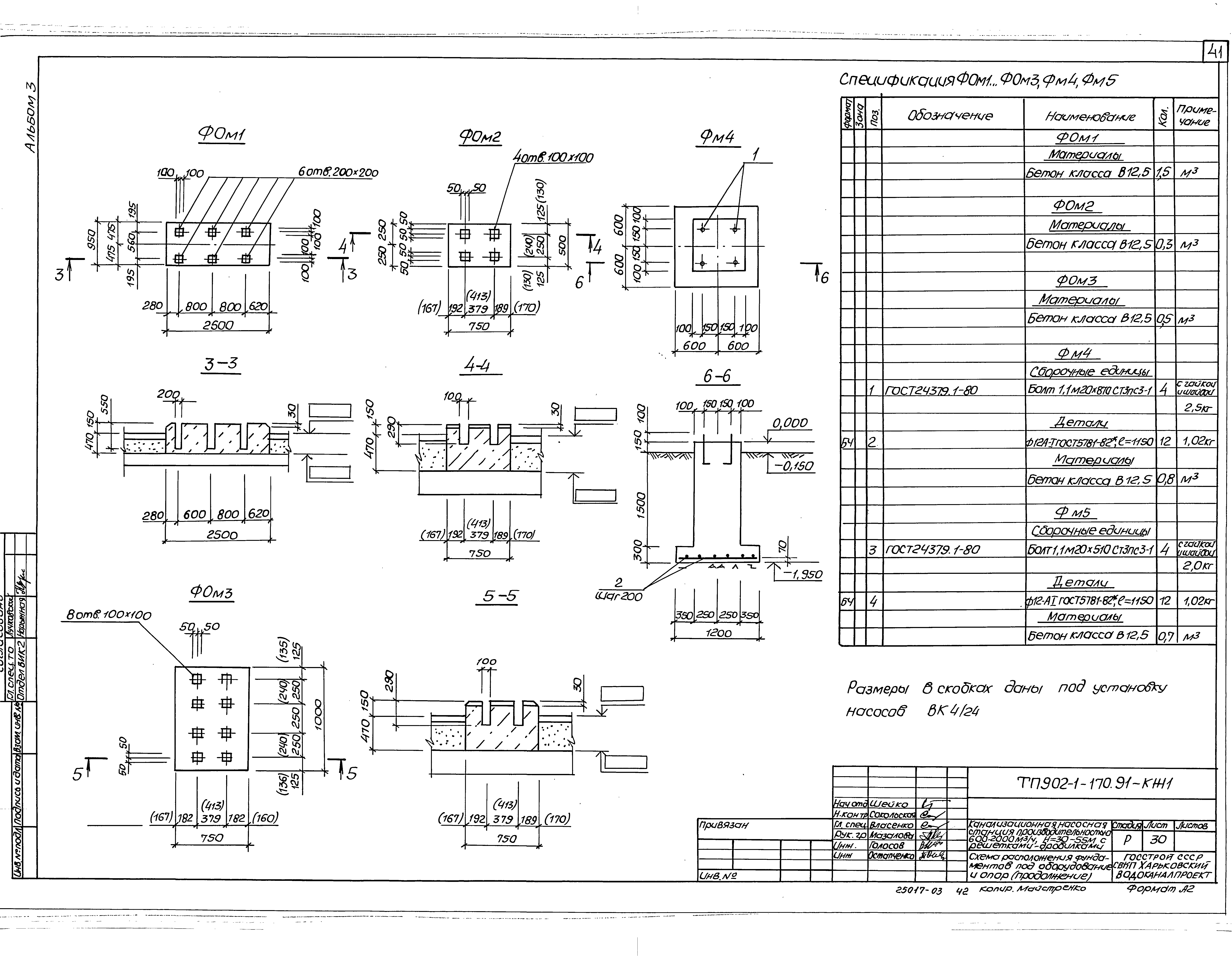
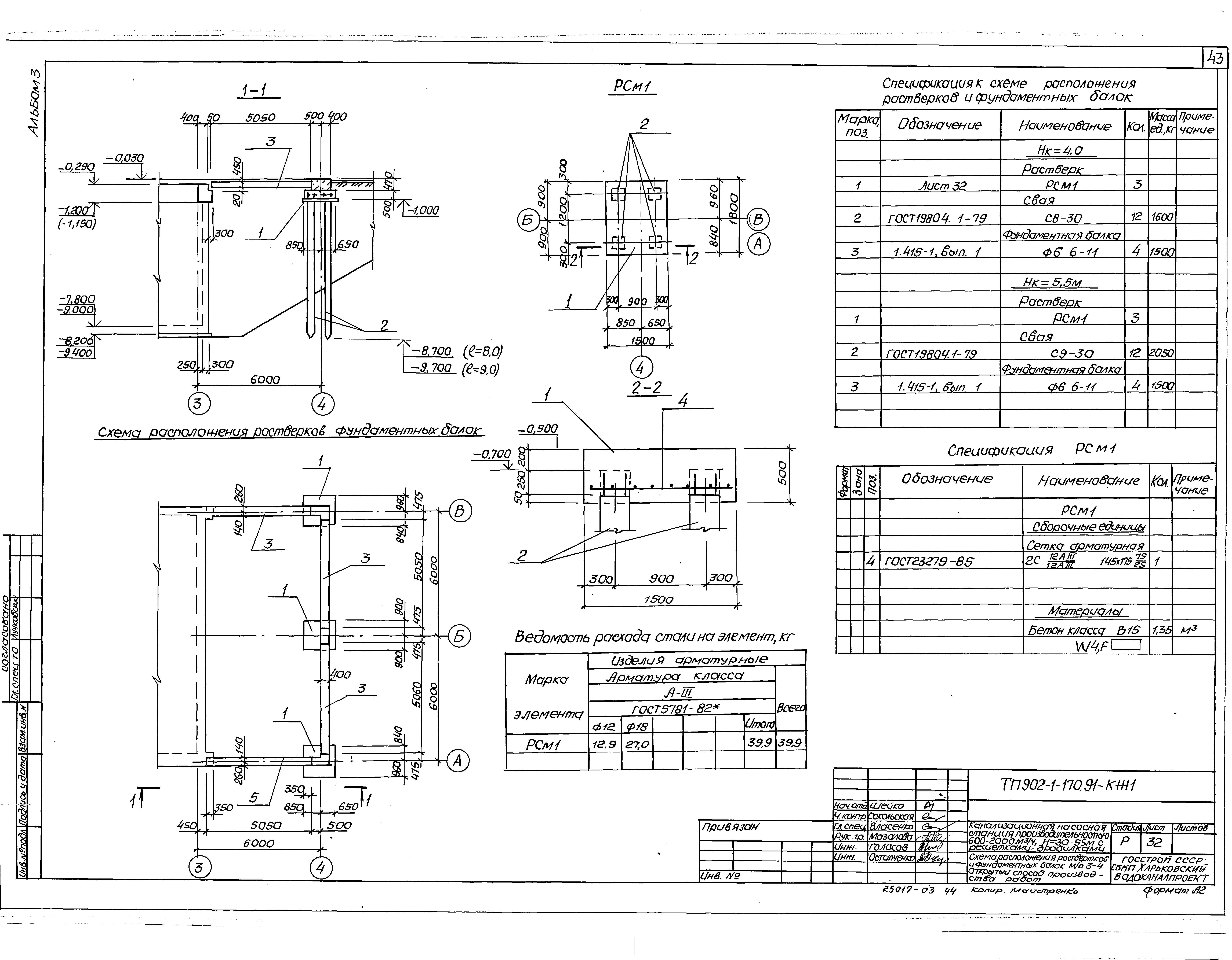
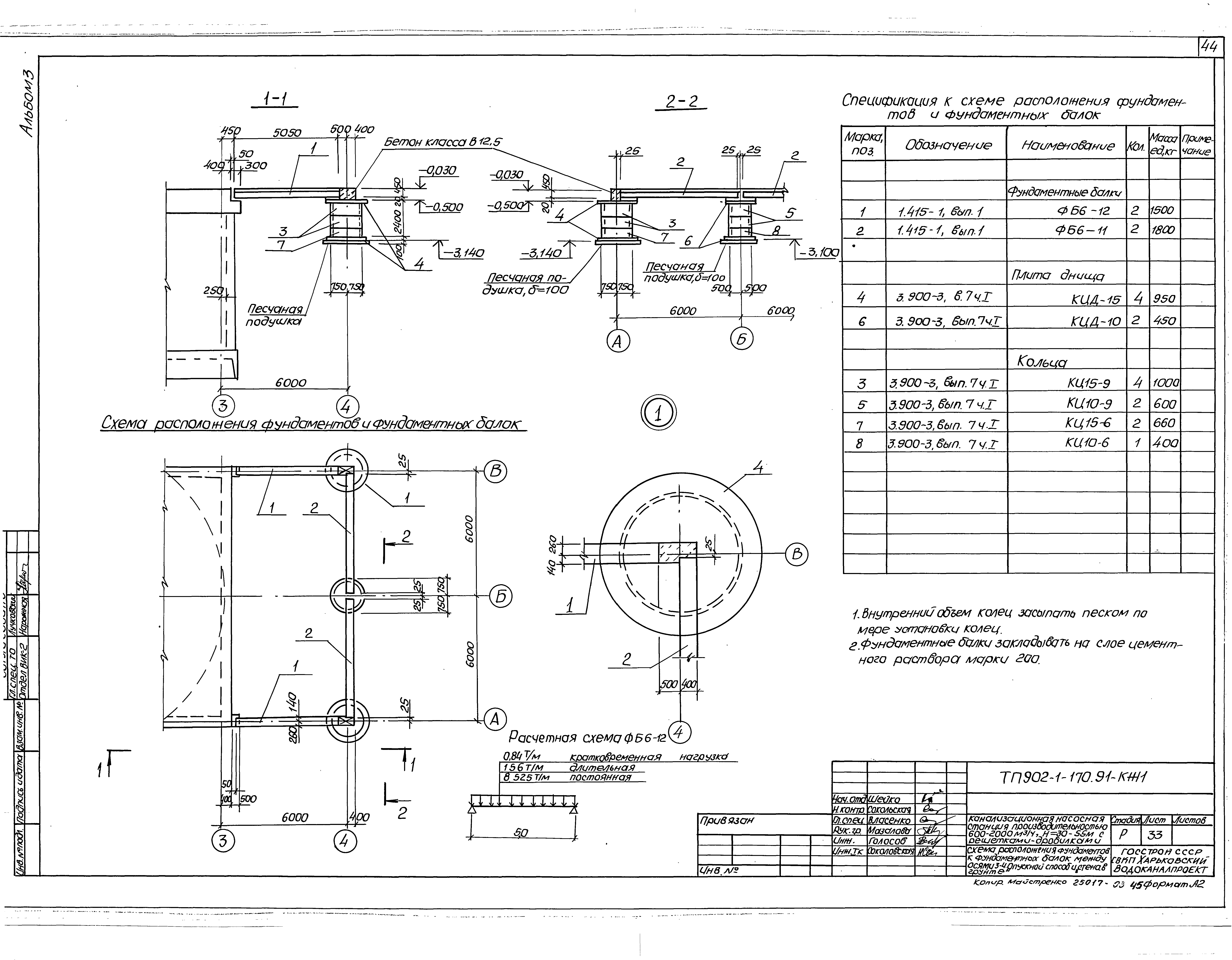
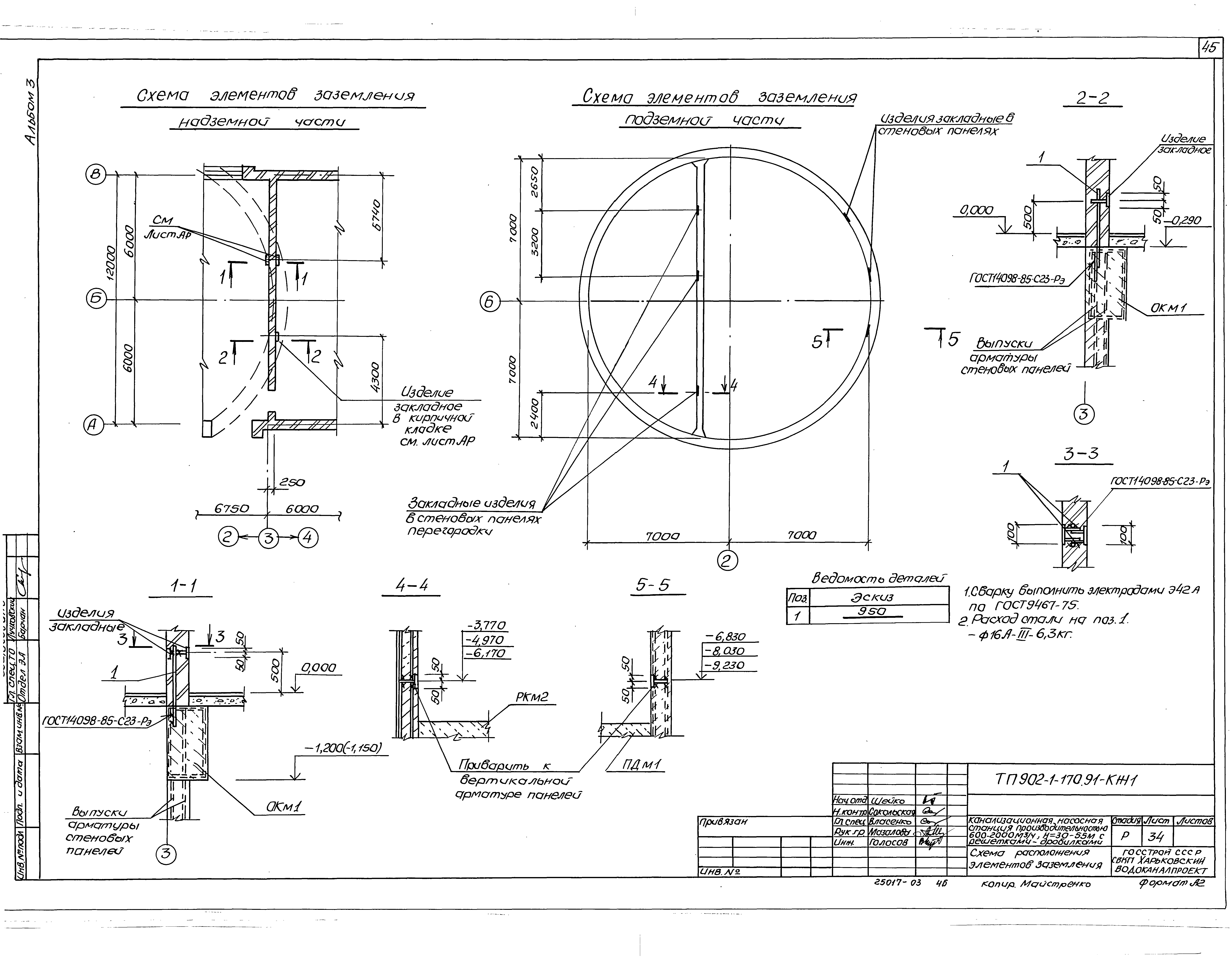
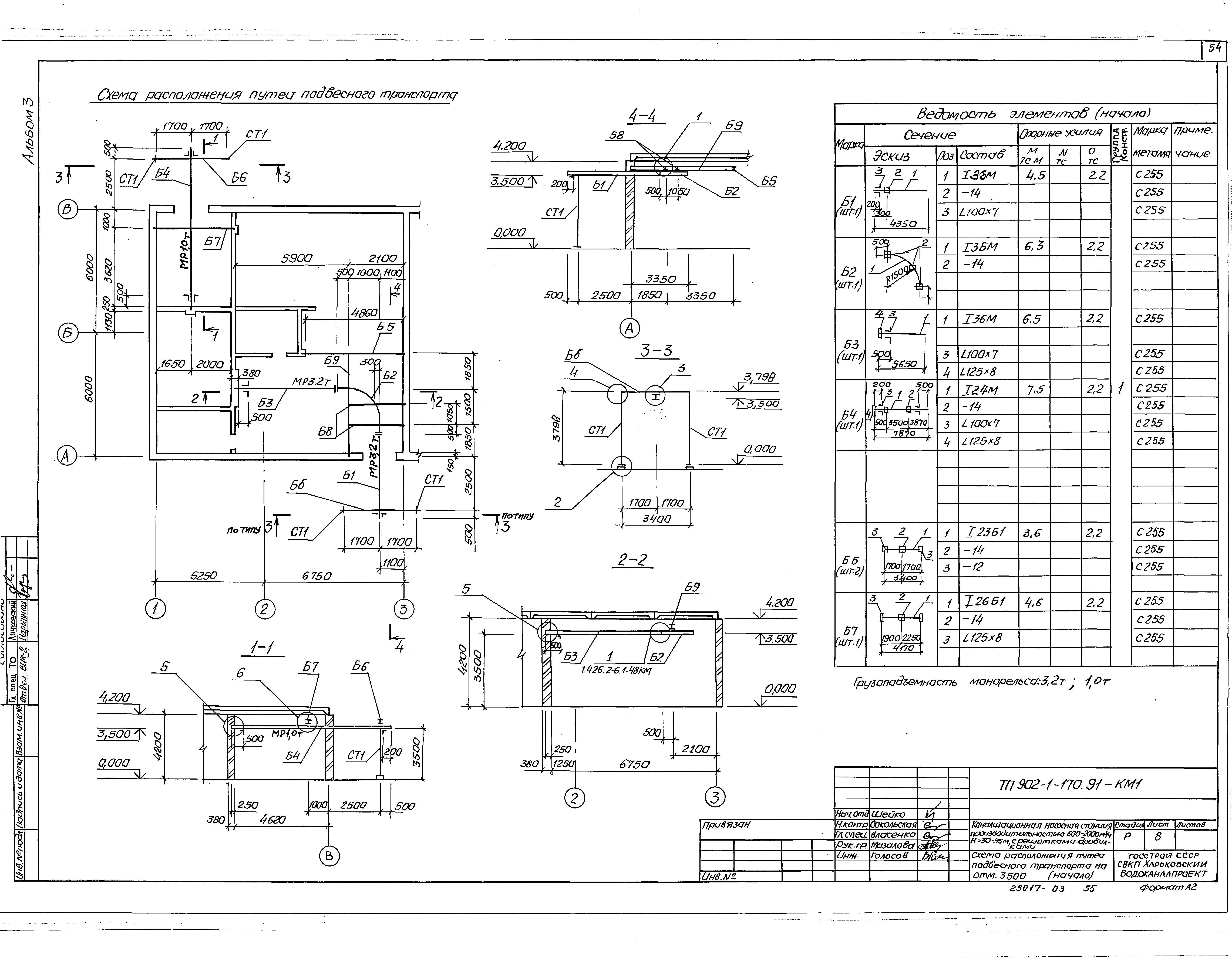
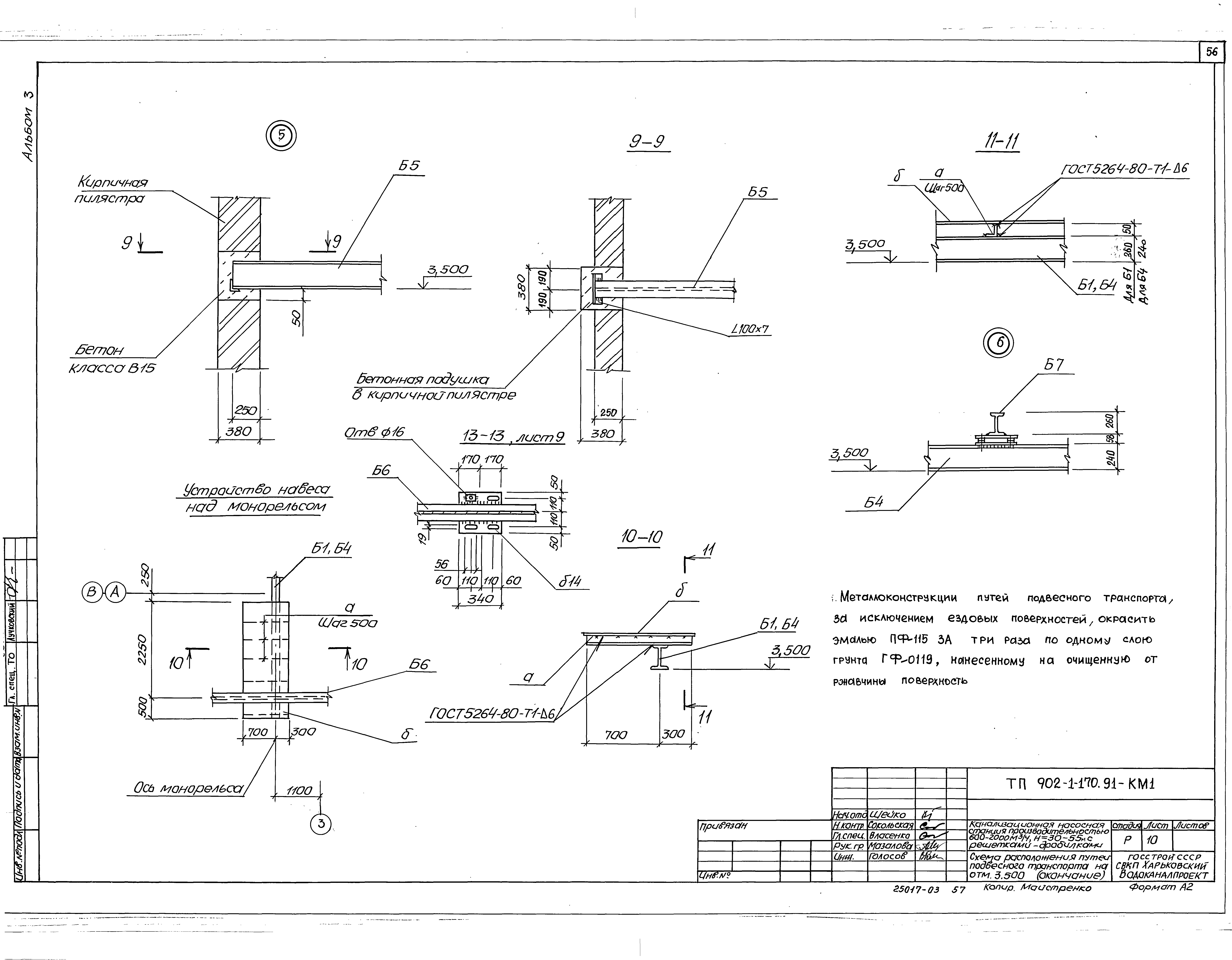
Скачать Типовой проект 902-1-178.91 Альбом 3. Надземная часть и общие чертежи подземной части. Архитектурные решения. Конструкции железобетонные. Конструкции металлическиеДата актуализации: 01.01.2021
|
| Обозначение: | Типовой проект 902-1-178.91 |
| Обозначение англ: | 902-1-178.91 |
| Статус: | не определен законодательством |
| Название рус.: | Альбом 3. Надземная часть и общие чертежи подземной части. Архитектурные решения. Конструкции железобетонные. Конструкции металлические |
| Дата добавления в базу: | 01.09.2013 |
| Дата актуализации: | 01.01.2021 |
| Дата введения: | 15.05.1991 |
| Дата окончания срока действия: | 30.06.2003 |
| Разработан: | Харьковский Водоканалпроект |
| Утверждён: | 15.05.1991 СоюзводоканалНИИпроект (SoyuzvodokanalNIIproject 9) |




























































