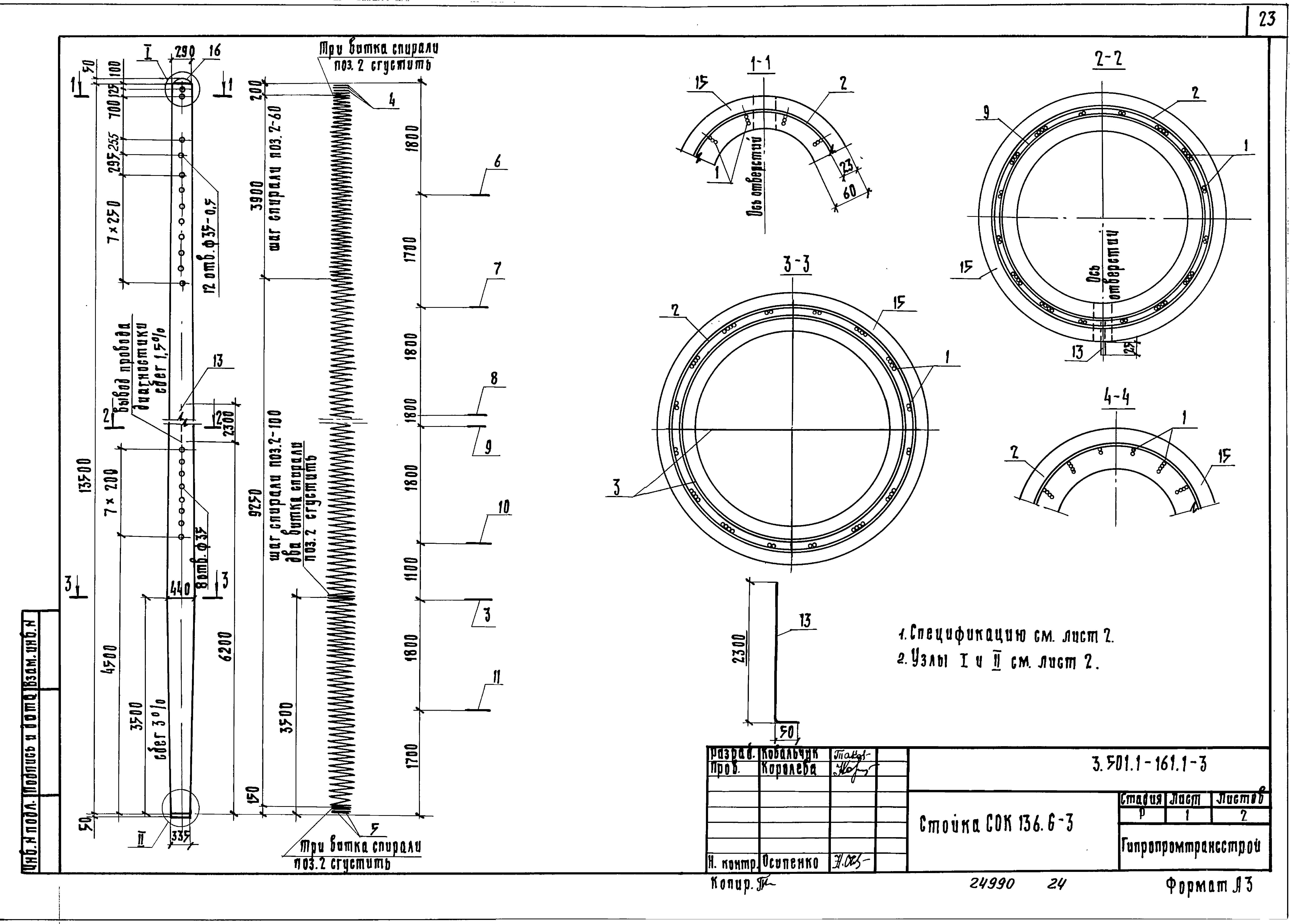
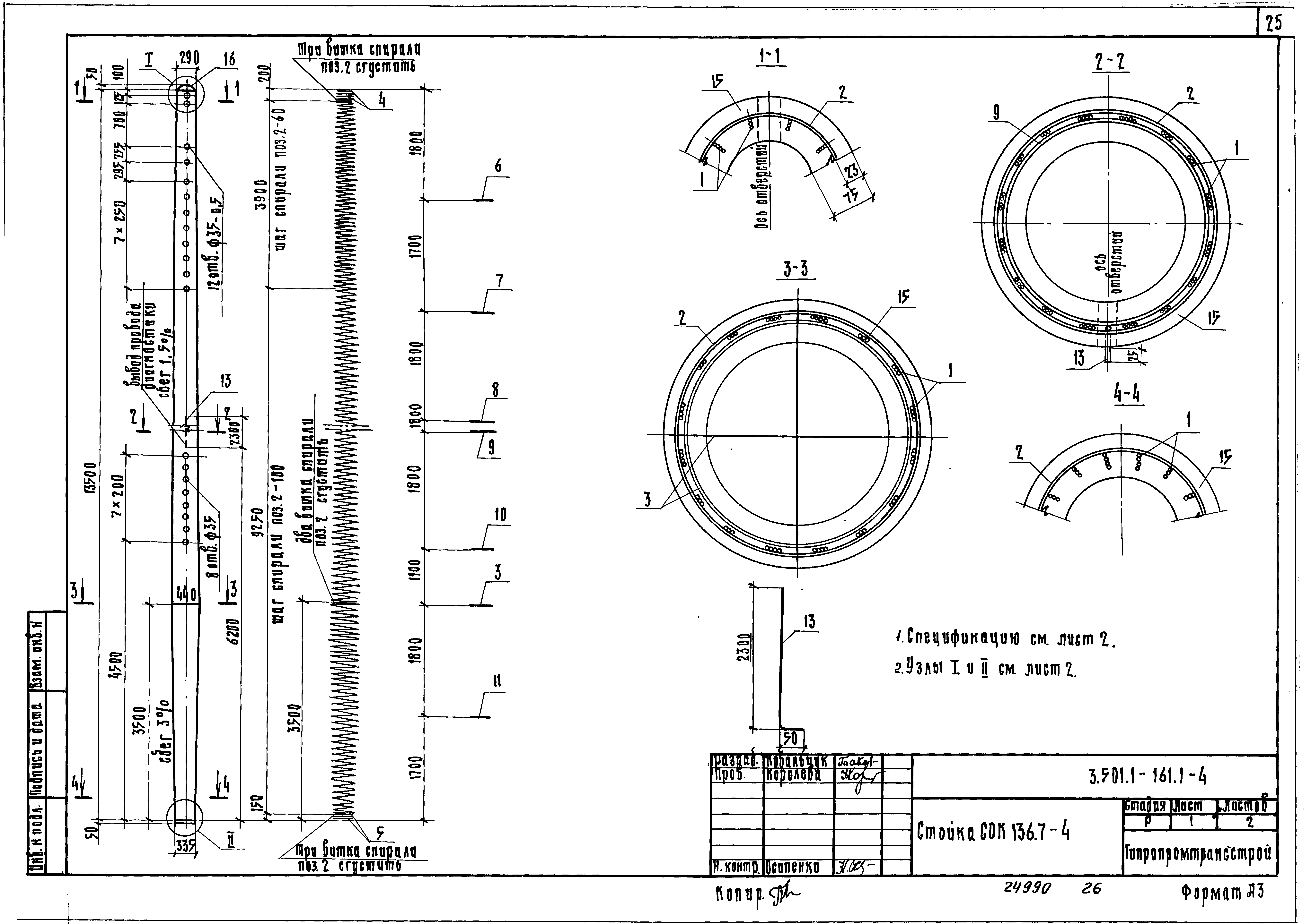
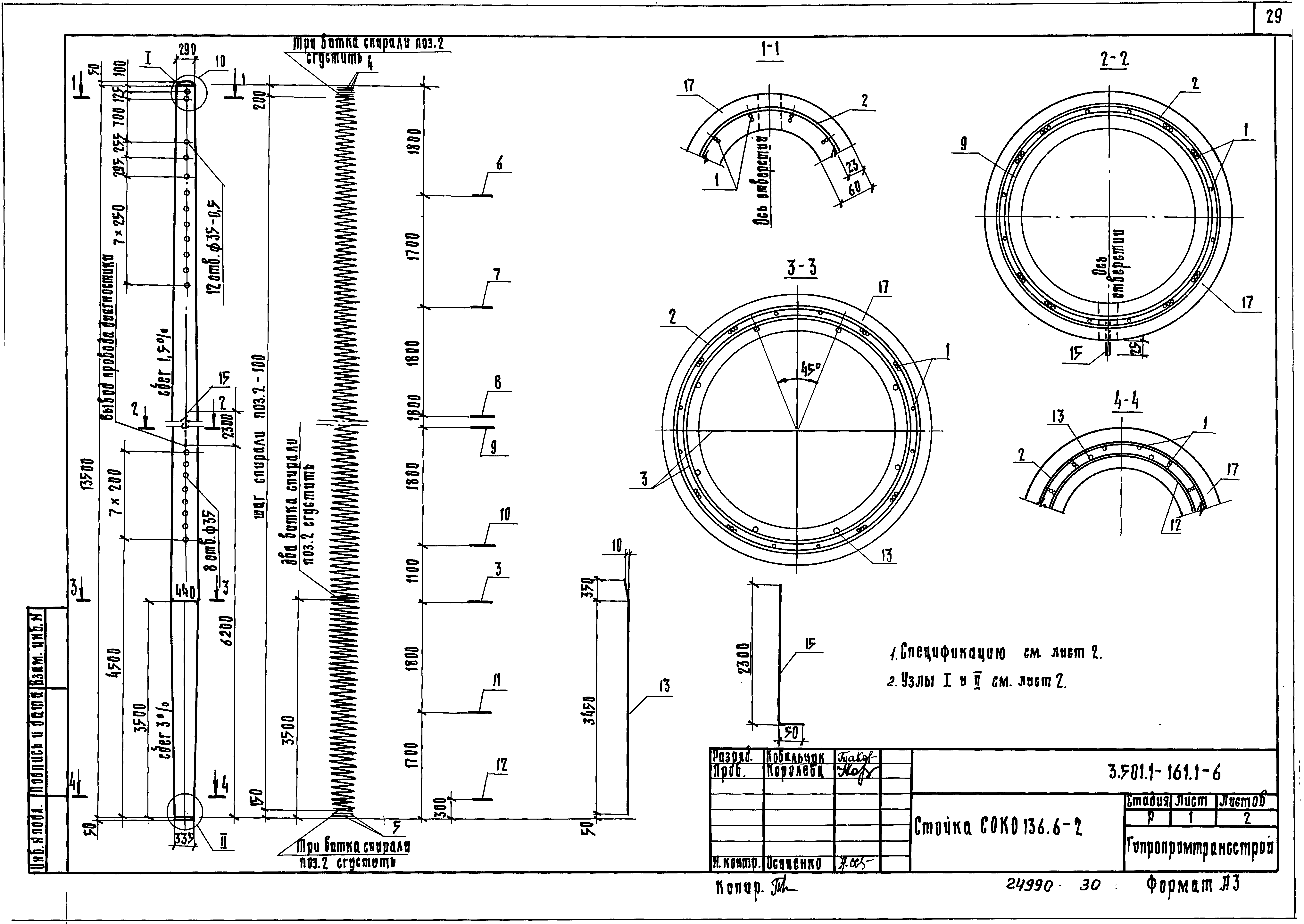
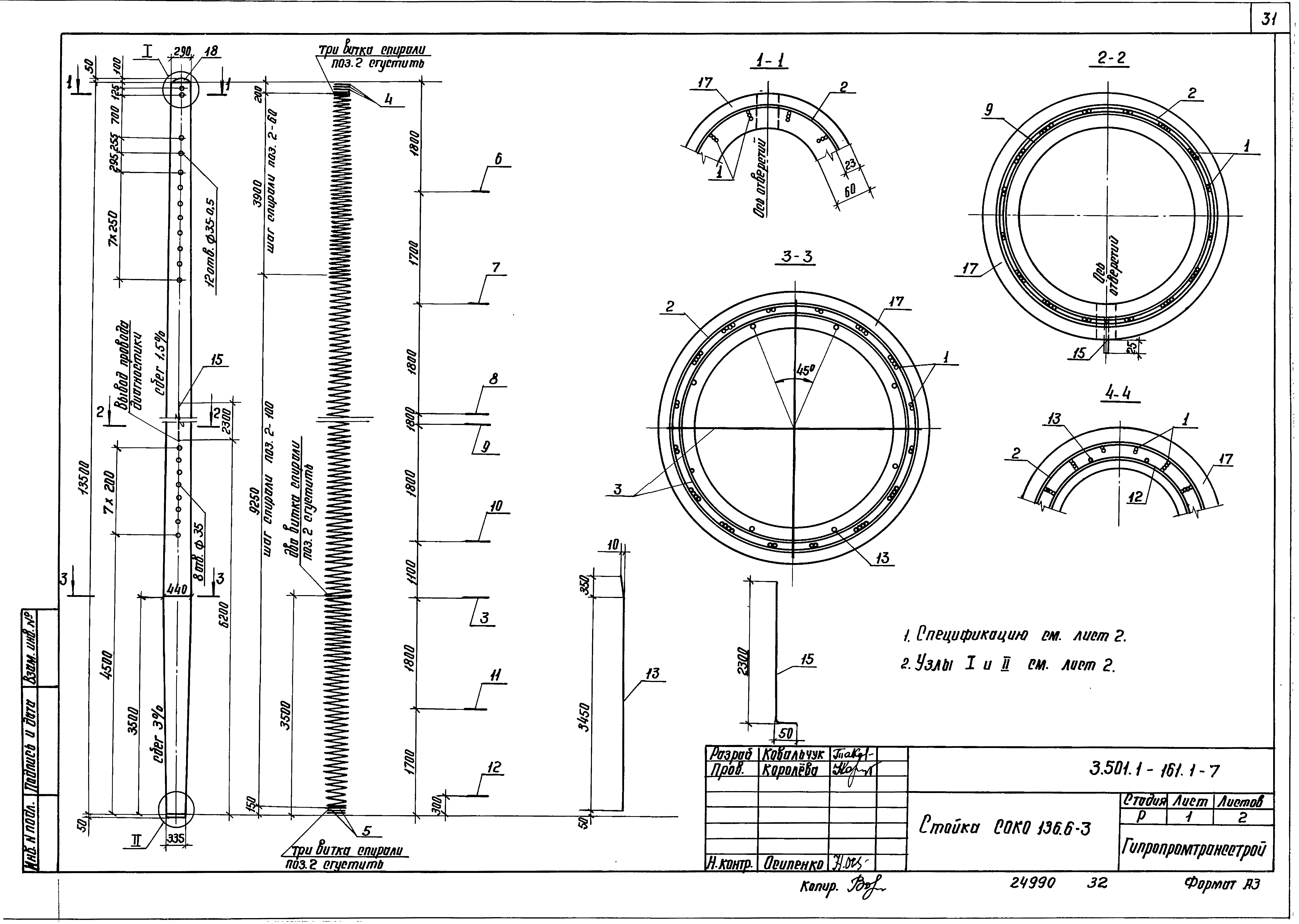
Скачать Серия 3.501.1-161 Выпуск 1. Указания по применению и рабочие чертежиДата актуализации: 01.01.2021 Серия 3.501.1-161
Выпуск 1. Указания по применению и рабочие чертежи| Обозначение: | Серия 3.501.1-161 | | Обозначение англ: | Series 3.501.1-161 | | Статус: | не определен законодательством | | Название рус.: | Выпуск 1. Указания по применению и рабочие чертежи | | Дата добавления в базу: | 01.09.2013 | | Дата актуализации: | 01.01.2021 | | Дата введения: | 01.01.1992 | | Дата окончания срока действия: | 30.06.2003 | | Разработан: | Гипропромтрансстрой
| | Утверждён: | 18.02.1991 МПС СССР (USSR Ministry of Railroads ЦЭТ-39)
|
                                              
|