Скачать Типовой проект 284-5-18 Часть 0. Общая частьДата актуализации: 01.01.2021
|
| Обозначение: | Типовой проект 284-5-18 |
| Обозначение англ: | 284-5-18 |
| Статус: | не определен законодательством |
| Название рус.: | Часть 0. Общая часть |
| Дата добавления в базу: | 01.09.2013 |
| Дата актуализации: | 01.01.2021 |
| Дата введения: | 01.01.1972 |
| Дата окончания срока действия: | 30.06.2003 |
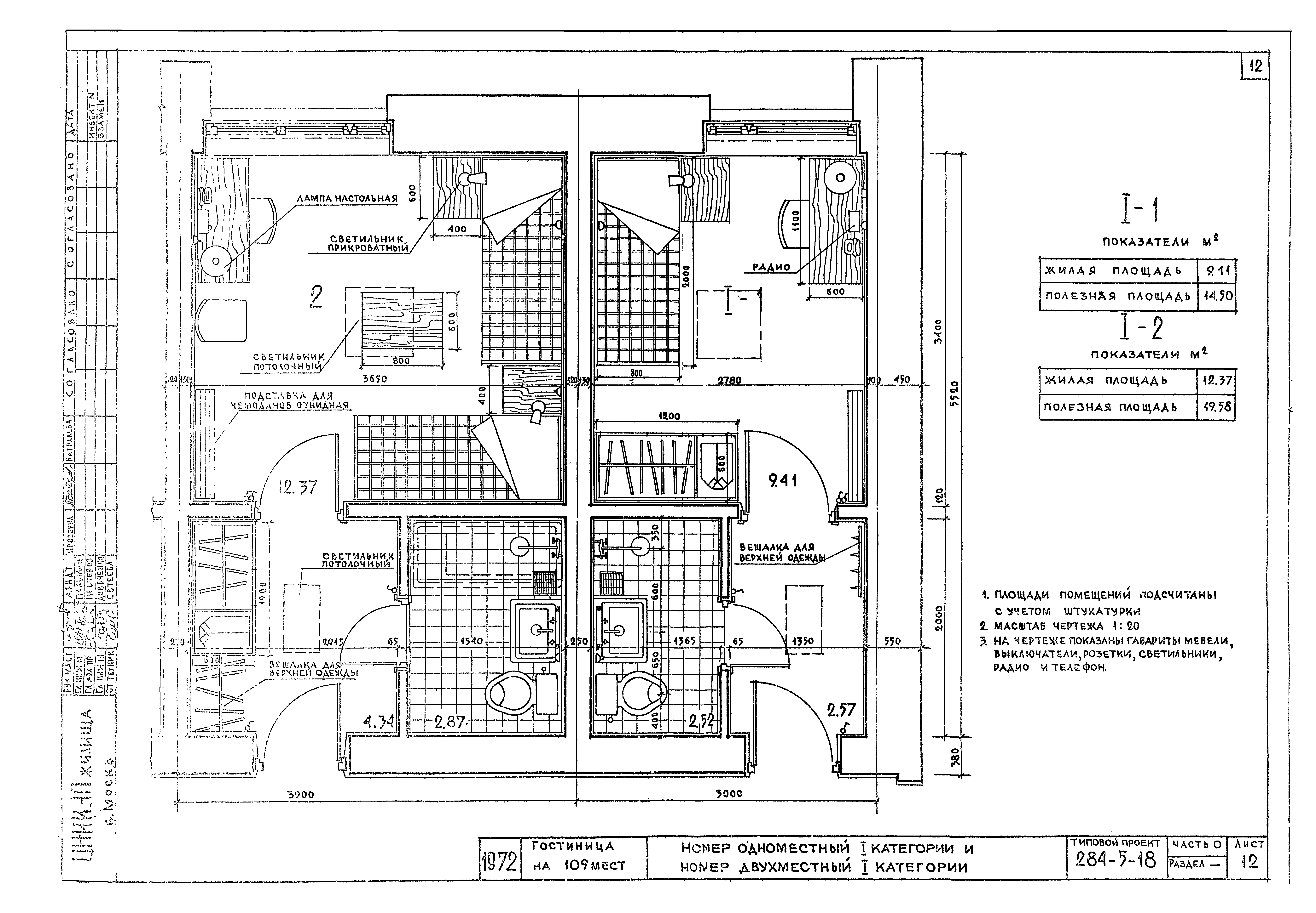
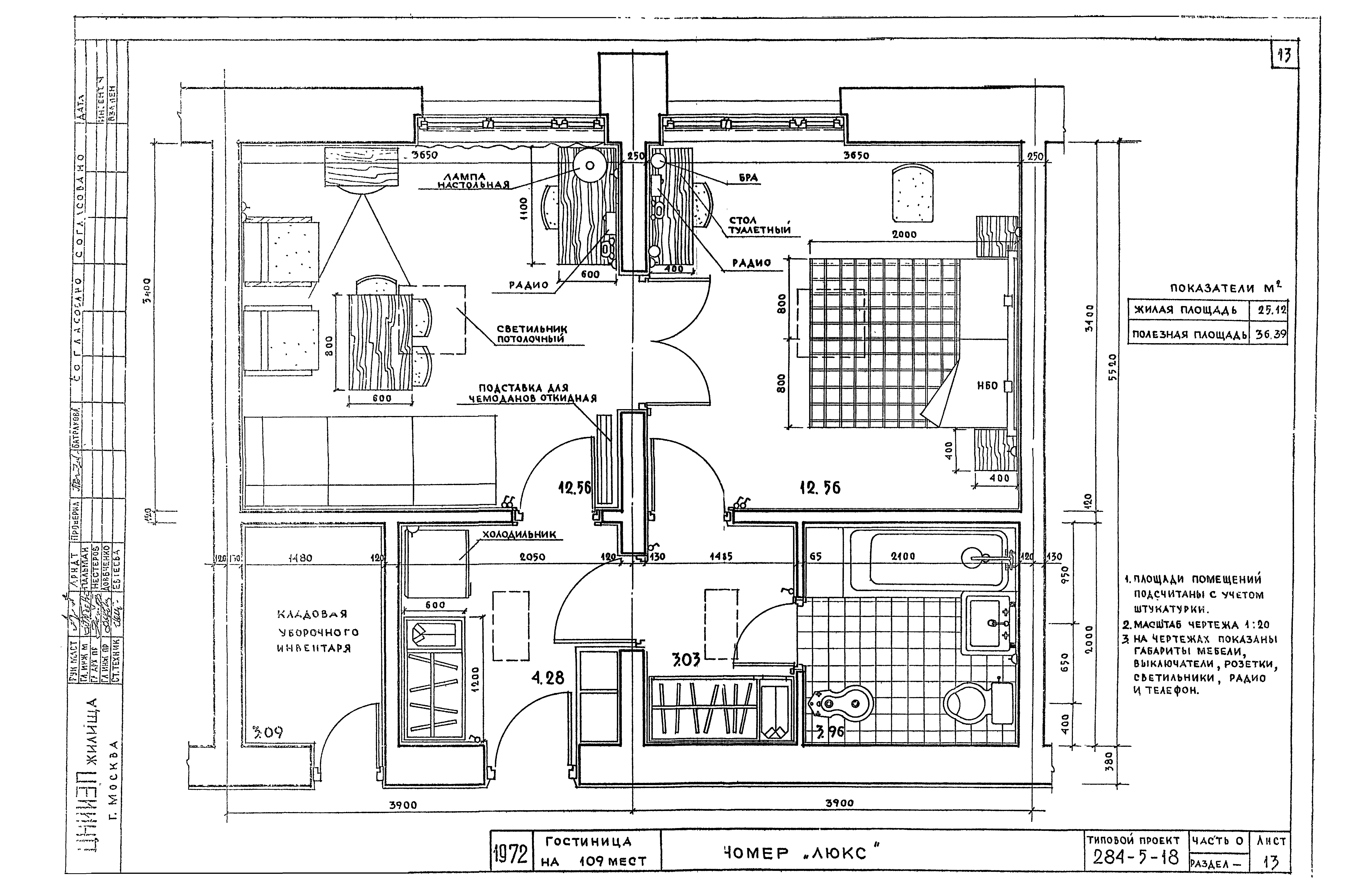
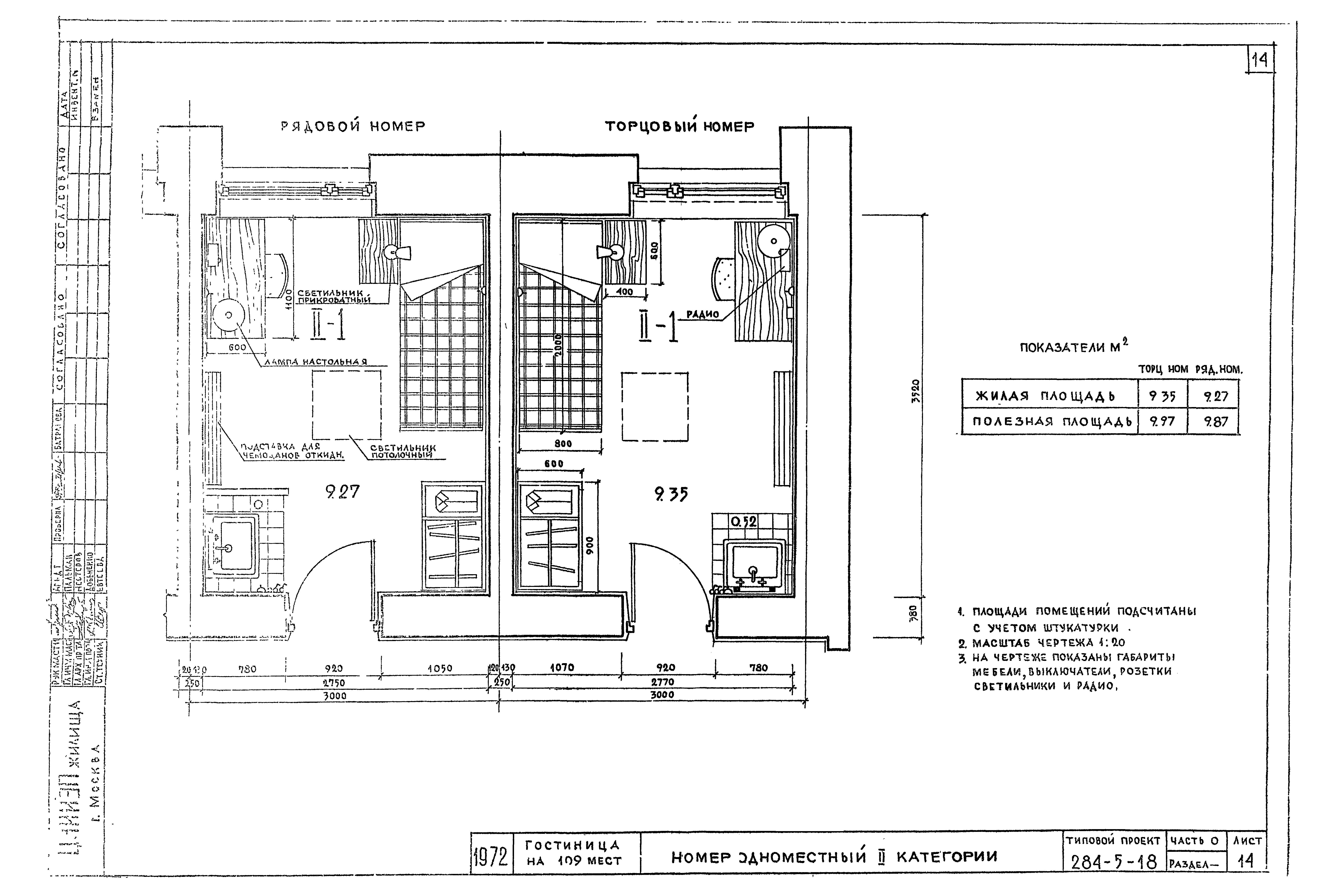
| Оглавление: | 284-5-18 Заглавный лист 284-5-18 Схема генерального плана 284-5-18 Фасады 1. Вариант сплошных простенков-лопаток 284-5-18 Фасады 2. Вариант прерывистых простенков-лопаток 284-5-18 Фасады 1 жилого корпуса, разрез /для привязки/ 284-5-18 Фасады 2 жилого корпуса, разрез /для привязки/ 284-5-18 Фасады 1 общественного корпуса; разрез /для привязки/ 284-5-18 Фасады 2 общественного корпуса; разрез /для привязки/ 284-5-18 План цокольного этажа и технического подполья /для привязки/ 284-5-18 План 1 этажа /для привязки/ 284-5-18 План 2(3) этажа. Фрагмент плана 3 этажа /для привязки/ 284-5-18 Номер одноместный 1 категории и номер двухместный 1 категории 284-5-18 Номер "Люкс" 284-5-18 Номер одноместный 2 категории 284-5-18 Номер двухместный второй категории /2 варианта/ 284-5-18 Номер четырехместный 2 категории 284-5-18 План зала ресторана и вестибюля 284-5-18 Интерьер вестибюлей 284-5-18 Фрагмент фасадов /варианты 1 и 2/ входы в жилой корпус 284-5-18 Строительные конструкции, отделка, инженерное оборудование, технико-экономические показатели /для привязки/ 284-5-18 Указания по производству работ 284-5-18 Комплектация проекта 284-5-18 Указания по применению и привязке проекта |
| Разработан: | ЦНИИЭП жилища |
| Утверждён: | 01.01.1972 Государственный комитет по гражданскому строительству и архитектуре при Госстрое СССР |























