Скачать Типовой проект 284-5-18 Часть 01. Раздел 01-1. Архитектурно-строительные чертежи ниже отм. 0.00. Жилой корпусДата актуализации: 01.01.2021
|
| Обозначение: | Типовой проект 284-5-18 |
| Обозначение англ: | 284-5-18 |
| Статус: | не определен законодательством |
| Название рус.: | Часть 01. Раздел 01-1. Архитектурно-строительные чертежи ниже отм. 0.00. Жилой корпус |
| Дата добавления в базу: | 01.09.2013 |
| Дата актуализации: | 01.01.2021 |
| Дата введения: | 01.01.1972 |
| Дата окончания срока действия: | 30.06.2003 |
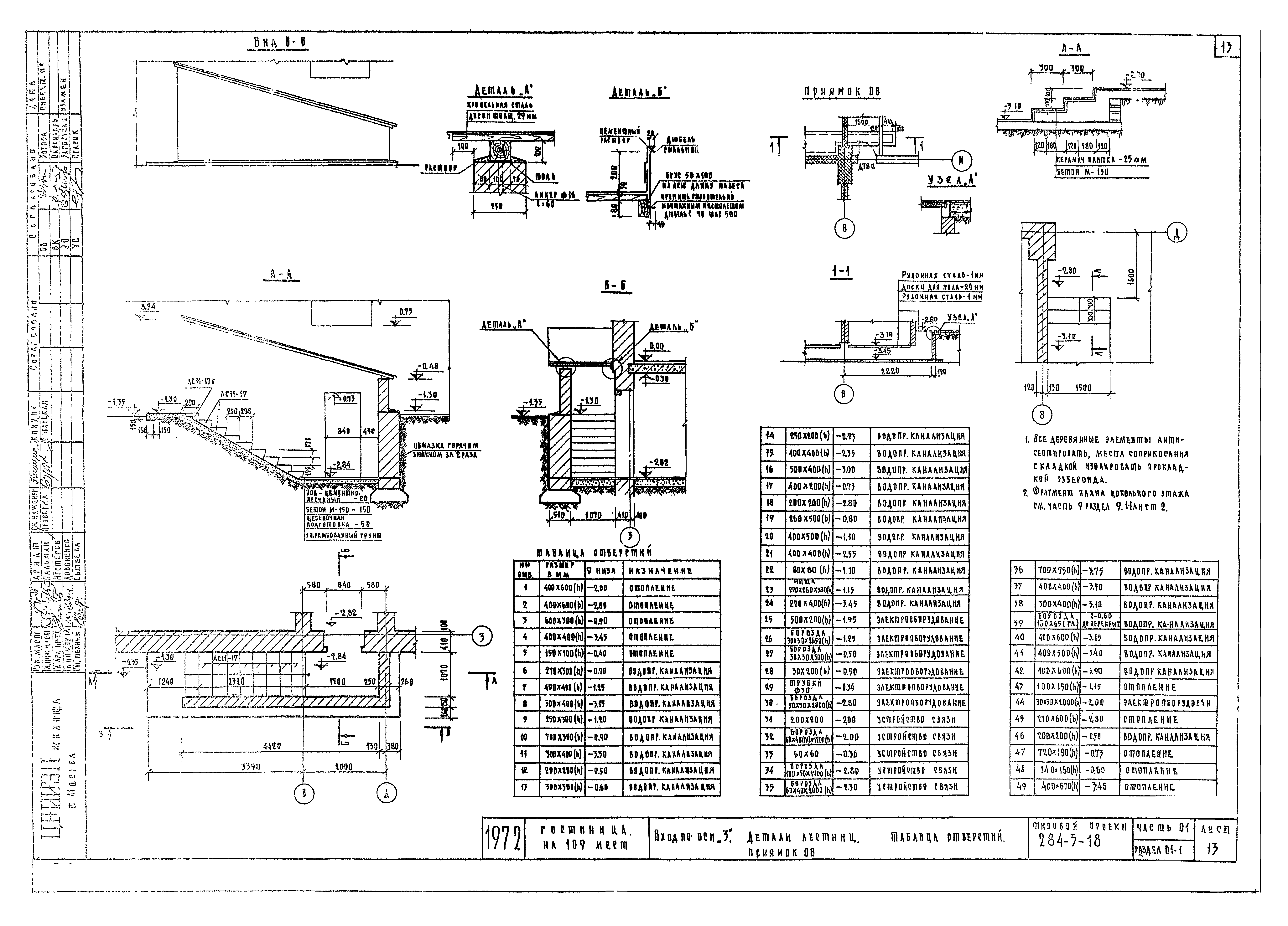
| Оглавление: | 284-5-18 Заглавный лист 284-5-18 Технические указания к проекту 284-5-18 Схема производства земляных работ 284-5-18 Планы фундаментов в осях 3-23 284-5-18 Развертки фундаментов 284-5-18 Сечения фундаментов 284-5-18 Кладочный план цокольного этажа 284-5-18 Монтажный план раскладки перемычек в перекрытии на цокольном этажом 284-5-18 Таблица типов перемычек при толщине стен 510,550,640,680мм 284-5-18 Разрезы 1-1,2-2,3-3,4-4 284-5-18 Развертки стен с каналами по оси "В" и по оси "Д" 284-5-18 Вход по оси "3". Детали лестниц. Таблица отверстий. Приямок ОВ 284-5-18 Детали лестниц в осях "21-23" и лестниц вестибюля. Детали цоколя 284-5-18 План перекрытия цокольного этажа в осях 3-23 284-5-18 Монолитные участки №1 и №2 опалубки и армирование. Деталь "В" 284-5-18 Монтаж подземной части 284-5-18 График производства работ 284-5-18 Ведомость основных машин, оборудования, приспособлений и инструментов 284-5-18 Спецификация изделий |
| Разработан: | ЦНИИЭП жилища |
| Утверждён: | 01.01.1972 Госкомитет по гражданскому строительству и архитектуре при Госстрое СССР (National Committee on Nonindustrial Construction and Architecture, USSR Gosstroy ) |




















