Скачать Типовой проект 284-5-18 Часть 01. Раздел 01-2. Архитектурно-строительные чертежи ниже отм. 0.00. Общественный корпусДата актуализации: 01.01.2021
|
| Обозначение: | Типовой проект 284-5-18 |
| Обозначение англ: | 284-5-18 |
| Статус: | не определен законодательством |
| Название рус.: | Часть 01. Раздел 01-2. Архитектурно-строительные чертежи ниже отм. 0.00. Общественный корпус |
| Дата добавления в базу: | 01.09.2013 |
| Дата актуализации: | 01.01.2021 |
| Дата введения: | 01.01.1972 |
| Дата окончания срока действия: | 30.06.2003 |
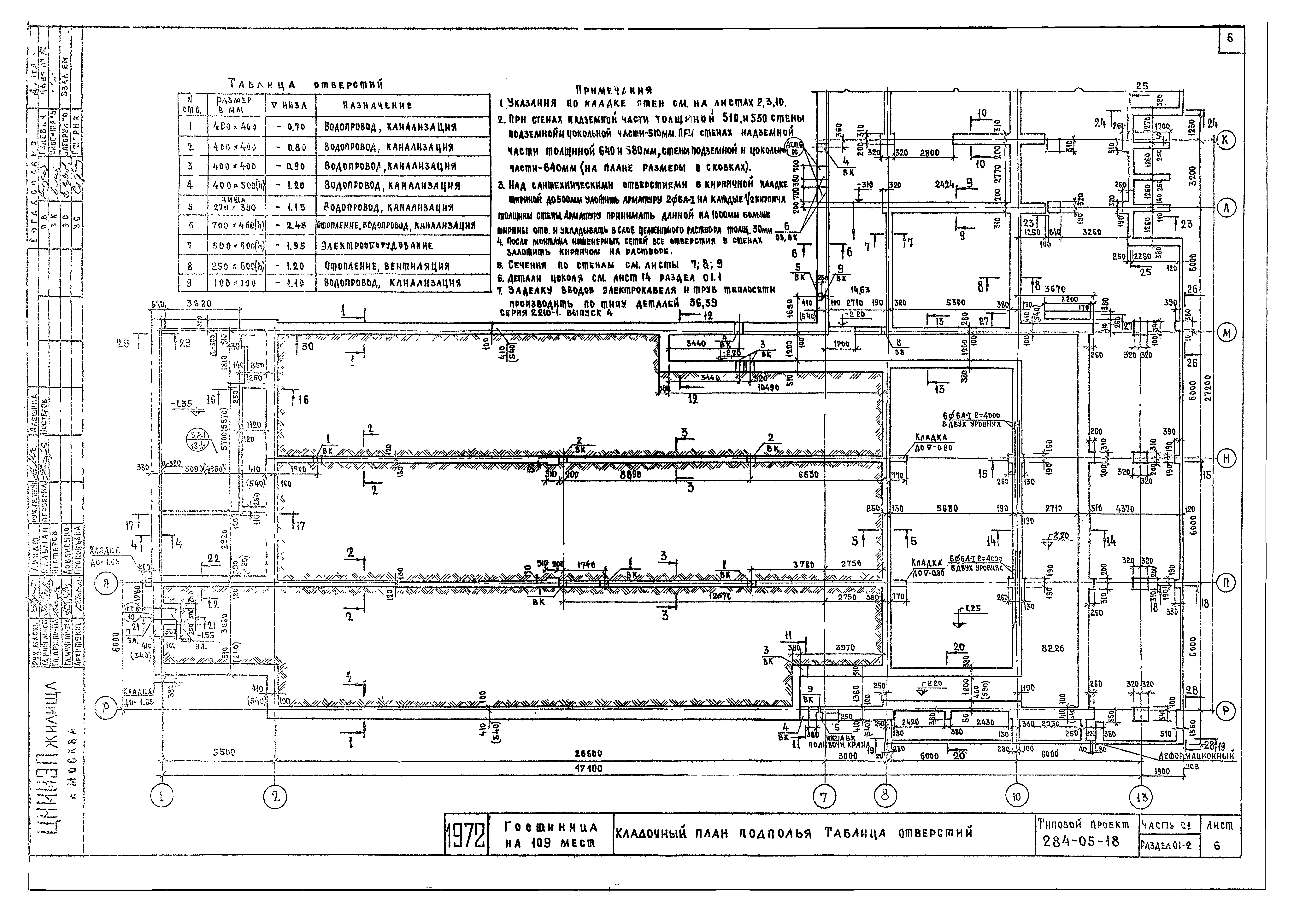
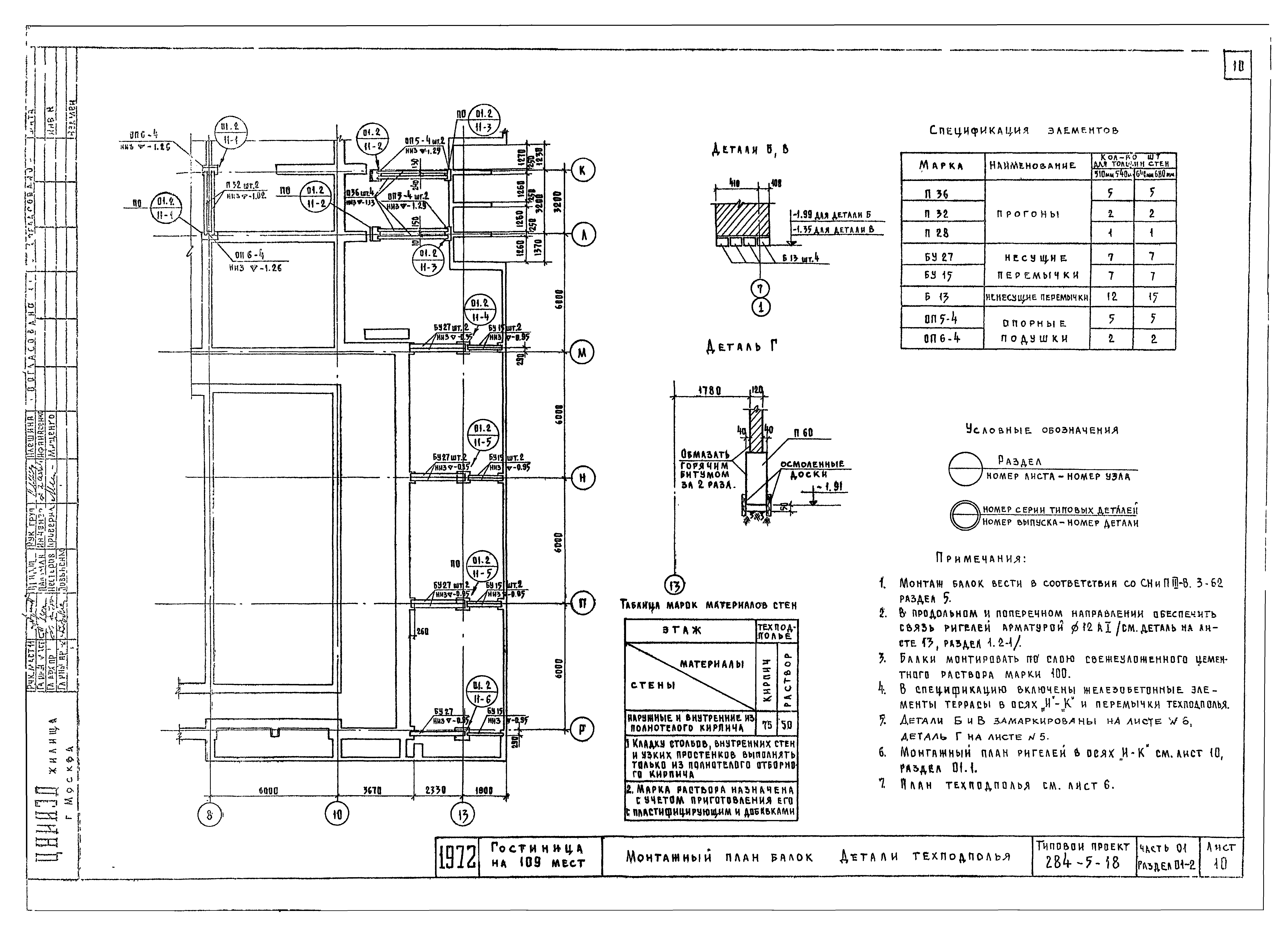
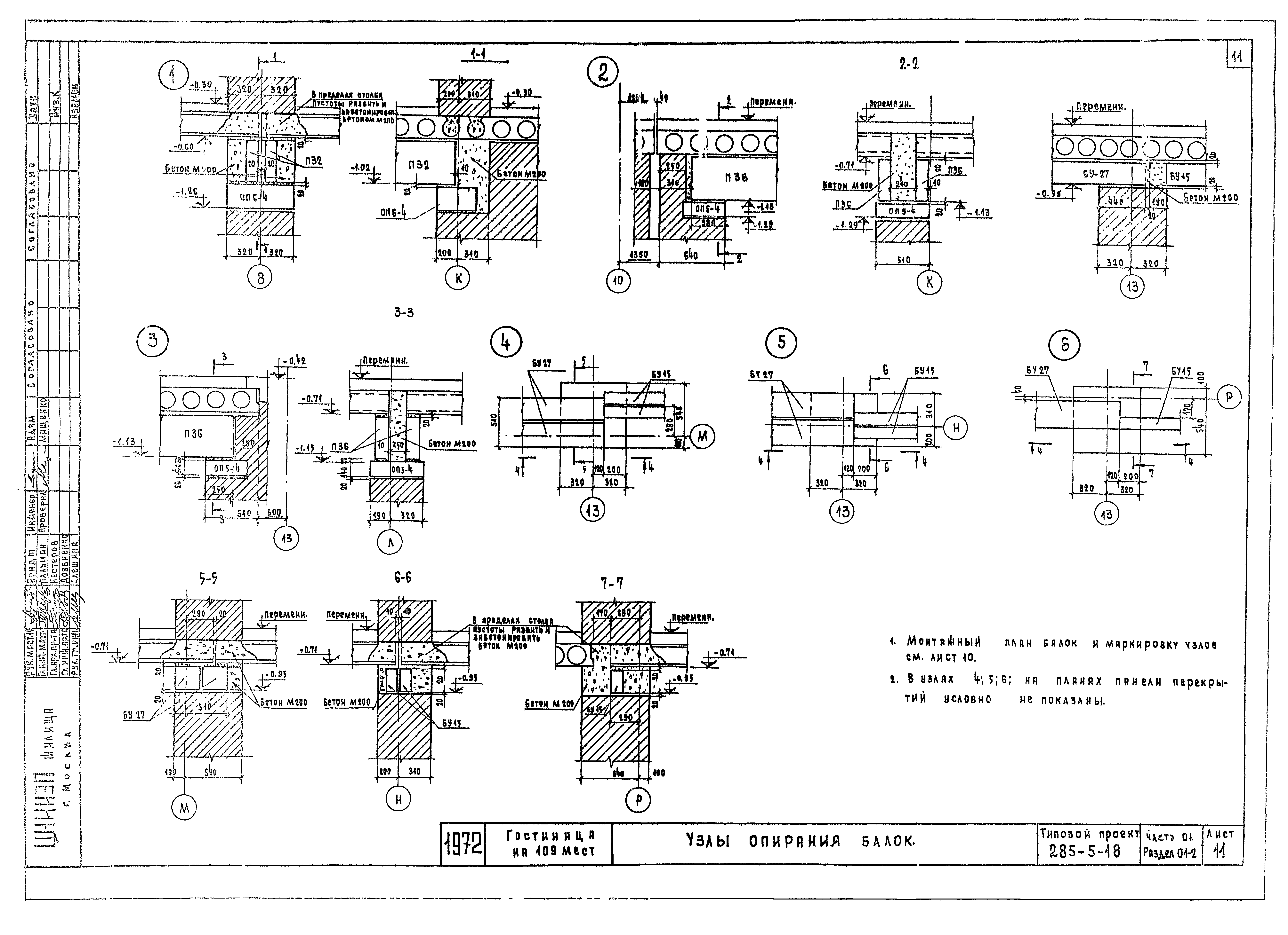
| Оглавление: | 284-5-18 Заглавный лист 284-5-18 Технические указания по проекту 284-5-18 Схема производства земляных работ 284-5-18 План фундаментов 284-5-18 Кладочный план подполья. Таблица отверстий 284-5-18 Сечения фундаментов с 1-1 по 15-15 284-5-18 Сечения фундаментов с 16-16 по 22-22 284-5-18 Сечения фундаментов с 23-23 по 32-32 284-5-18 Монтажный план балок. Детали техподполья 284-5-18 Узлы опирания балок 284-5-18 План перекрытия техподполья 284-5-18 Перекрытие техподполья. Сечения 284-5-18 Монтаж подземной части 284-5-18 График производства работ 284-5-18 Ведомость основных машин, оборудования, приспособлений и инструментов 284-5-18 Спецификация изделий |
| Разработан: | ЦНИИЭП жилища |
| Утверждён: | 01.01.1972 Госкомитет по гражданскому строительству и архитектуре при Госстрое СССР (National Committee on Nonindustrial Construction and Architecture, USSR Gosstroy ) |


















