Скачать Типовой проект 284-5-18 Часть 1. Раздел 1.1-1. Архитектурно-строительные чертежи выше отм. 0.00. Жилой корпус. Здание с фасадами I, IIДата актуализации: 01.01.2021
|
| Обозначение: | Типовой проект 284-5-18 |
| Обозначение англ: | 284-5-18 |
| Статус: | не определен законодательством |
| Название рус.: | Часть 1. Раздел 1.1-1. Архитектурно-строительные чертежи выше отм. 0.00. Жилой корпус. Здание с фасадами I, II |
| Дата добавления в базу: | 01.09.2013 |
| Дата актуализации: | 01.01.2021 |
| Дата введения: | 01.01.1972 |
| Дата окончания срока действия: | 30.06.2003 |
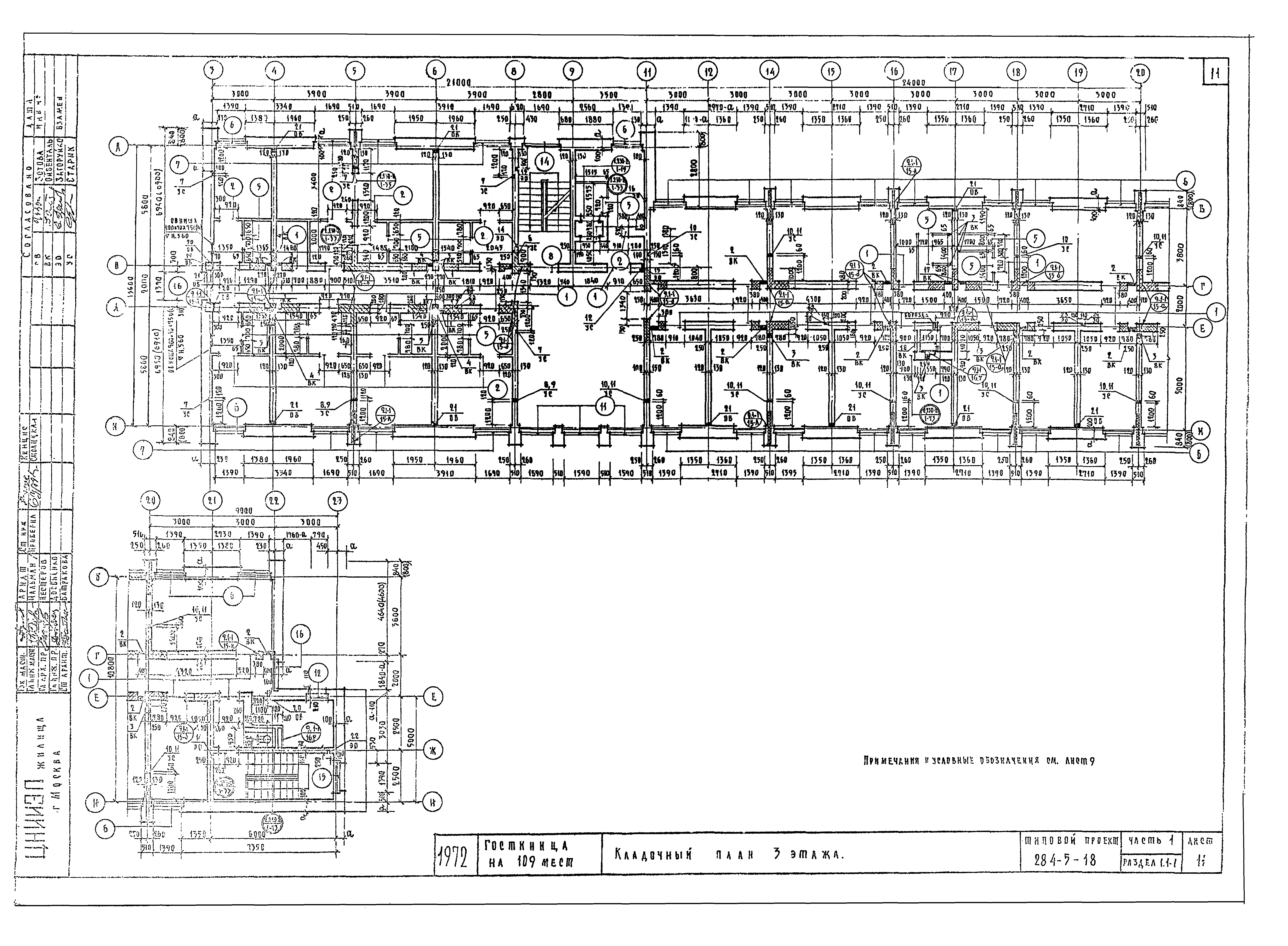
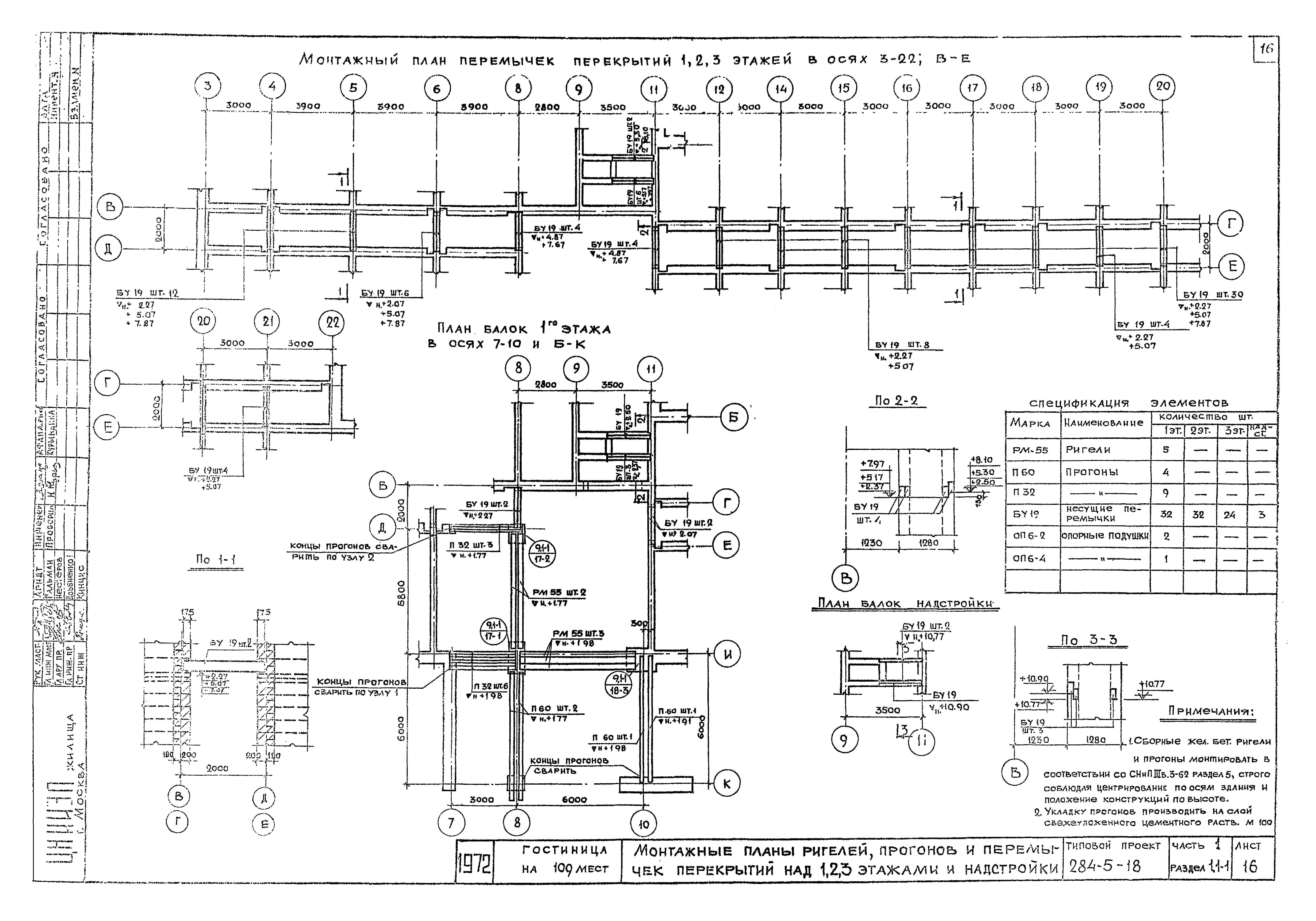
| Оглавление: | 284-5-18 Заглавный лист 284-5-18 Технические указания к проекту 284-5-18 Указания по производству работ 284-5-18 План строительной площадки 284-5-18 Фасады 1 по осям "И", "А-Б", "3", "23", "22". Вариант сплошных простенков-лопаток 284-5-18 Кладочный план 1 этажа 284-5-18 Кладочный план 2 этажа 284-5-18 Кладочный план 3 этажа 284-5-18 Кладочный план на отм 8.40 284-5-18 Таблица отверстий 284-5-18 Разрезы 1-1, 2-2,3-3,4-4 284-5-18 Таблица типов перемычек 284-5-18 Монтажные планы ригелей прогонов и перемычек перекрытий над 1,2,3 эт и надстр 284-5-18 План перекрытия 1 этажа в осях "3-23" 284-5-18 План перекрытия 2 этажа в осях "3-25" 284-5-18 План перекрытия 3 этажа в осях "3-23". План перекрытия надстройки и в осях 8-11 "А-В" 284-5-18 План перекрытия вентканалов. Монолитные участки перекрытия 284-5-18 Монолитные участки №№3,4,5,6,7,8. Опалубка и армирование 284-5-18 Схема возведения надземной части здания 284-5-18 График производства работ 284-5-18 Таблица исходных данных 284-5-18 Ведомость основных машин, оборудования приспособлений и инструментов 284-5-18 Спецификация изделий 284-5-18 Фасады 2 по осям "И", "А,Б", "3", "23", "22". Вариант прерывистых простенок-лопаток |
| Разработан: | ЦНИИЭП жилища |
| Утверждён: | 01.01.1972 Госкомитет по гражданскому строительству и архитектуре при Госстрое СССР (National Committee on Nonindustrial Construction and Architecture, USSR Gosstroy ) |





























