Скачать Типовой проект 284-5-18 Часть 6. Раздел 6-1. Раздел 6-2. Устройство связи. Жилой корпус. Общественный корпусДата актуализации: 01.01.2021
|
| Обозначение: | Типовой проект 284-5-18 |
| Обозначение англ: | 284-5-18 |
| Статус: | не определен законодательством |
| Название рус.: | Часть 6. Раздел 6-1. Раздел 6-2. Устройство связи. Жилой корпус. Общественный корпус |
| Дата добавления в базу: | 01.09.2013 |
| Дата актуализации: | 01.01.2021 |
| Дата введения: | 01.01.1972 |
| Дата окончания срока действия: | 30.06.2003 |
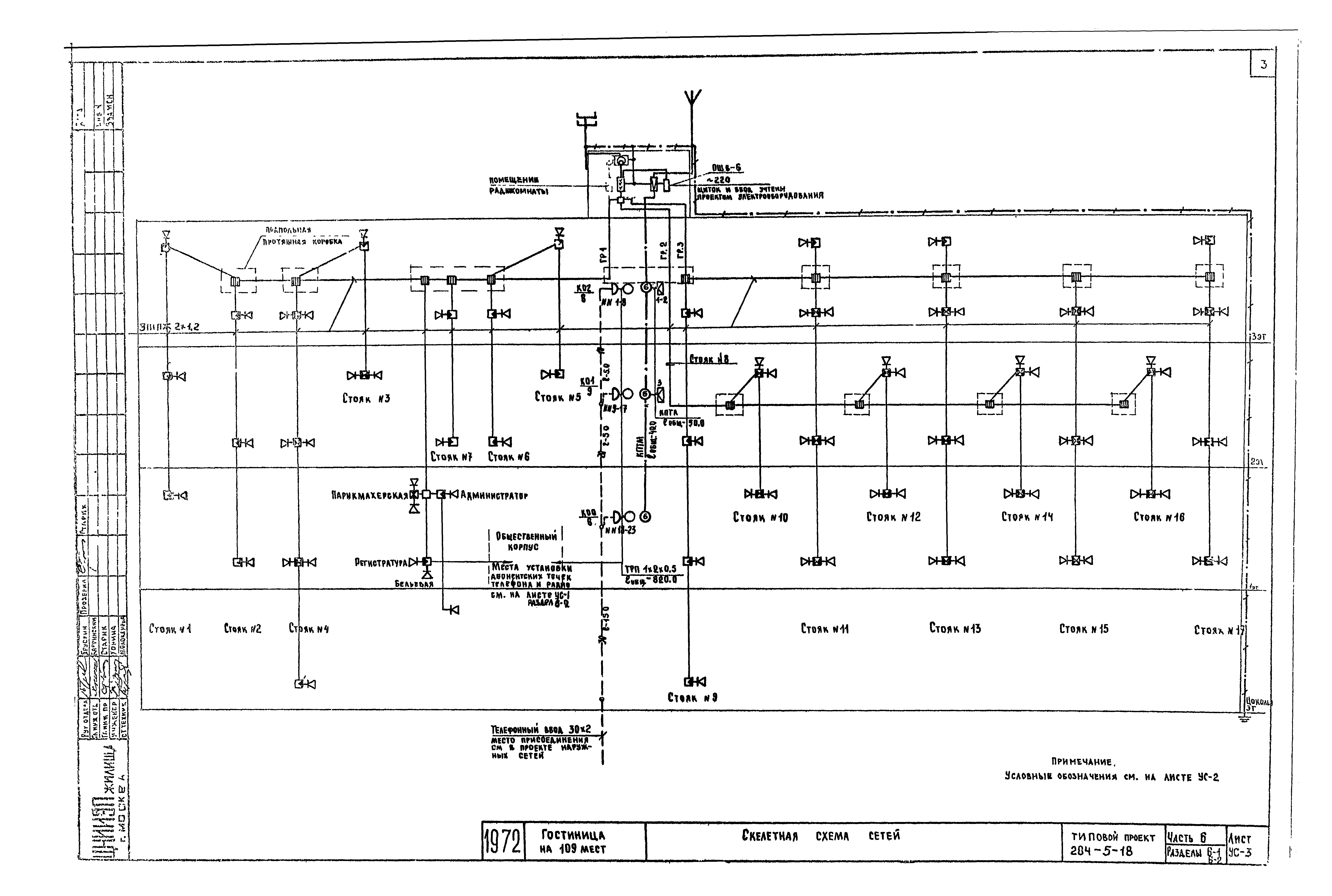
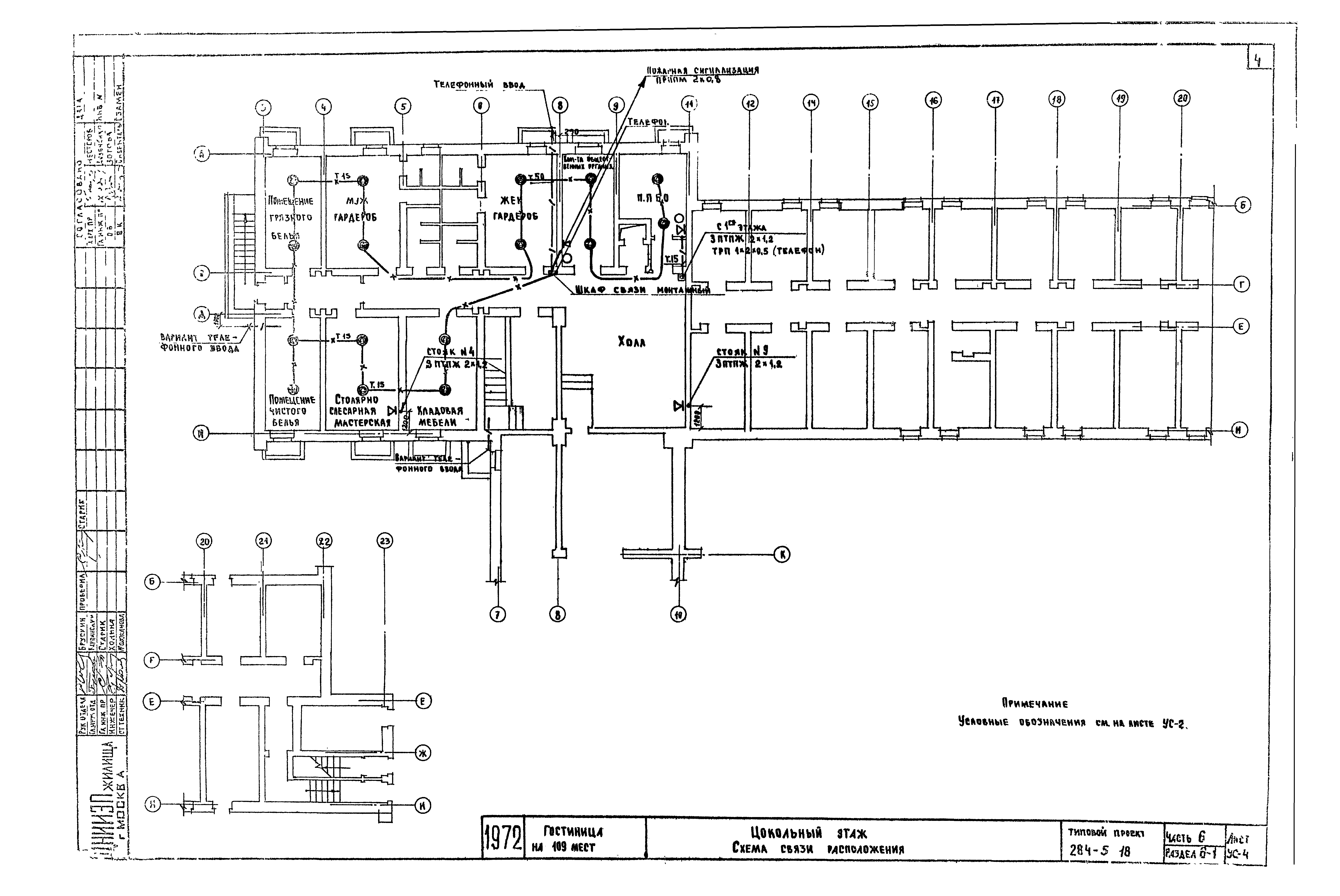
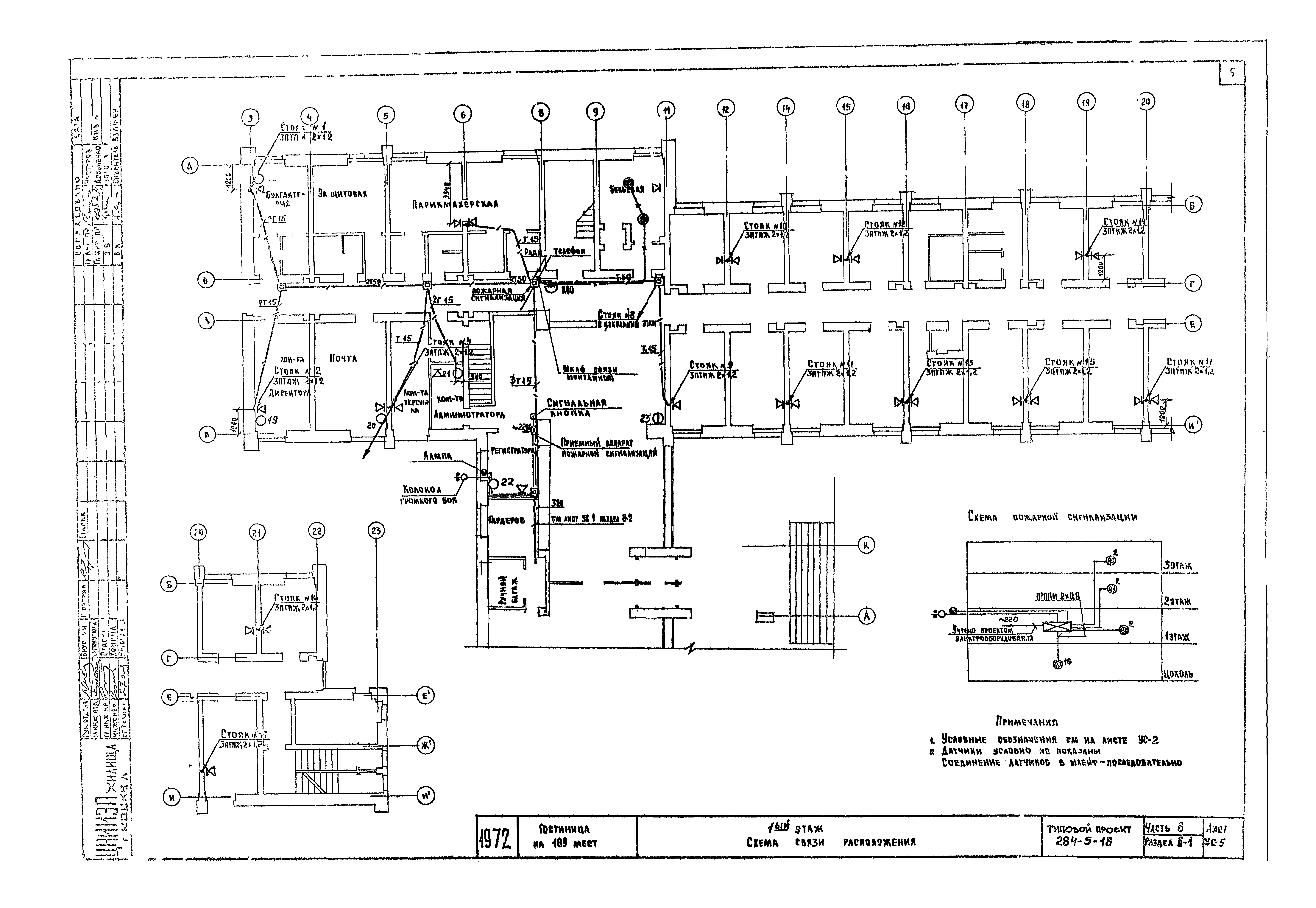
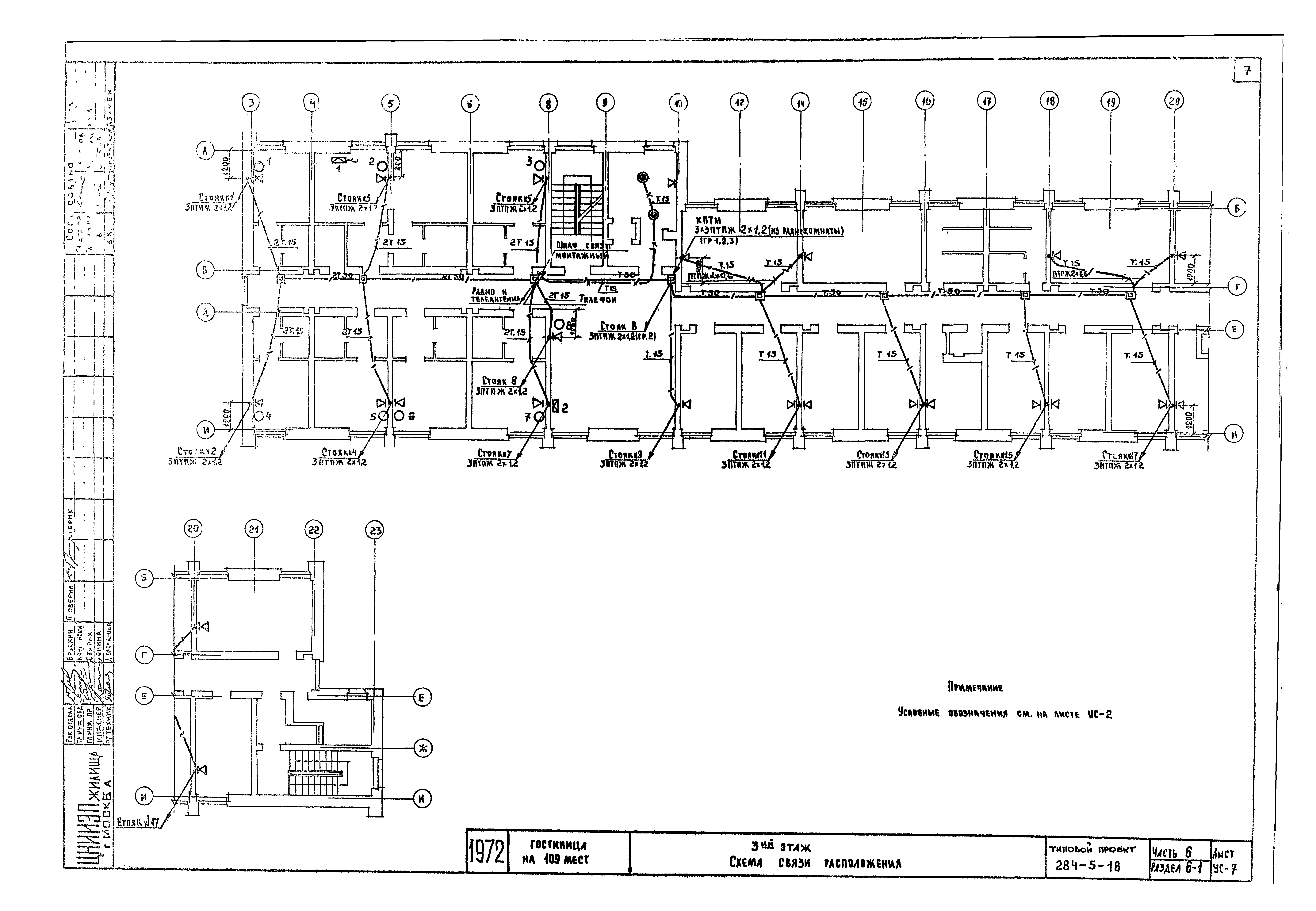
| Оглавление: | 284-5-18 Раздел 6-1 284-5-18 Заглавный лист 284-5-18 Пояснительная записка, спецификация и условные обозначения 284-5-18 Скелетная схема сетей 284-5-18 Цокольный этаж. Схема связи расположения 284-5-18 1-ый этаж. Схема связи расположения 284-5-18 2-ой этаж. Схема связи расположения 284-5-18 3-ий этаж. Схема связи расположения 284-5-18 Кровля и радиокомната. Схема связи расположения 284-5-18 Раздел 6-2 284-5-18 1-ый этаж. Схема связи расположения |
| Разработан: | ЦНИИЭП жилища |
| Утверждён: | 01.01.1972 Госкомитет по гражданскому строительству и архитектуре при Госстрое СССР (National Committee on Nonindustrial Construction and Architecture, USSR Gosstroy ) |









