Скачать Типовой проект 284-5-18 Часть 9. Раздел 9.2-1. Узлы и детали. Общественный корпус. Общественный корпус. Общестроительные деталиДата актуализации: 01.01.2021
|
| Обозначение: | Типовой проект 284-5-18 |
| Обозначение англ: | 284-5-18 |
| Статус: | не определен законодательством |
| Название рус.: | Часть 9. Раздел 9.2-1. Узлы и детали. Общественный корпус. Общественный корпус. Общестроительные детали |
| Дата добавления в базу: | 01.09.2013 |
| Дата актуализации: | 01.01.2021 |
| Дата введения: | 01.01.1972 |
| Дата окончания срока действия: | 30.06.2003 |
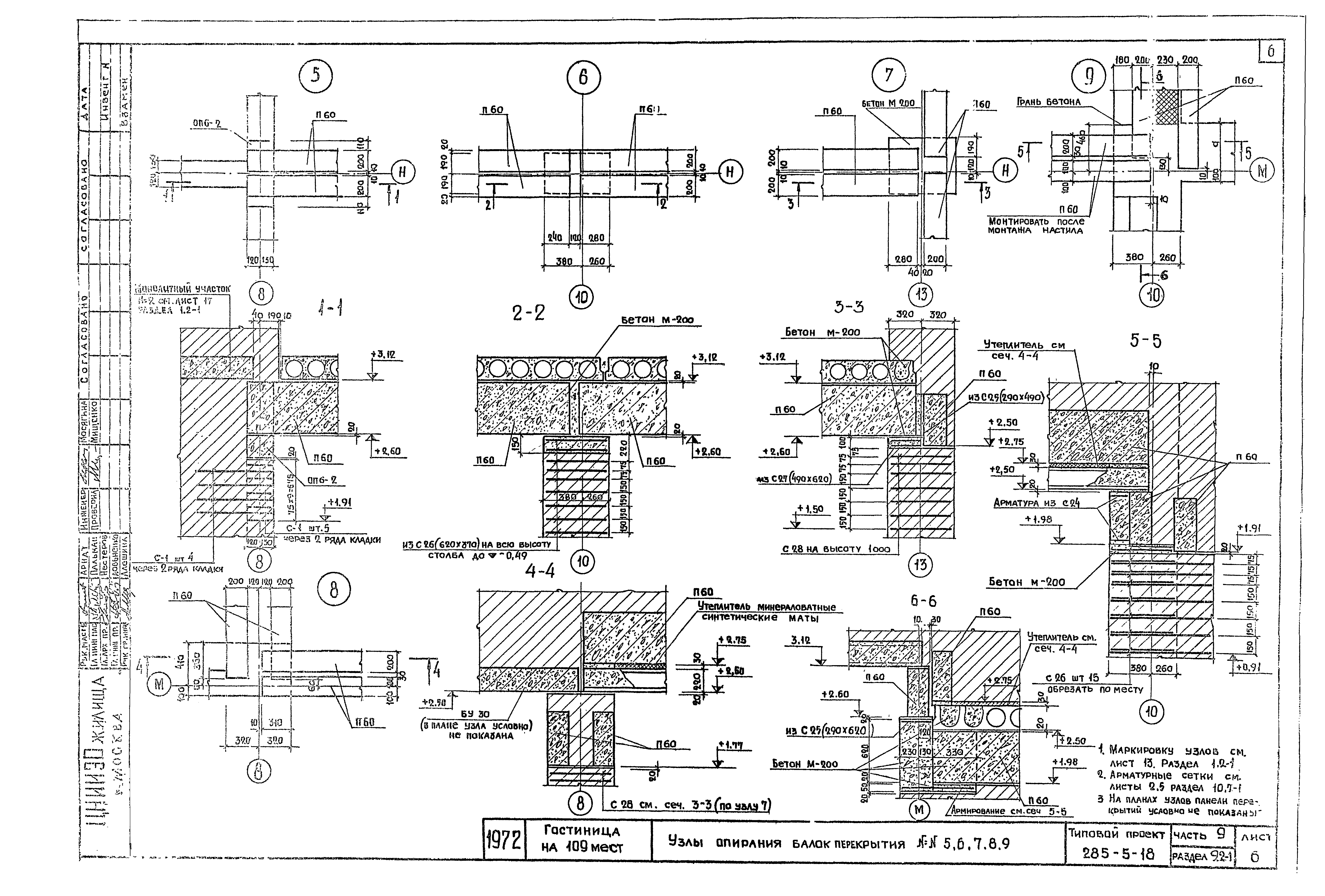
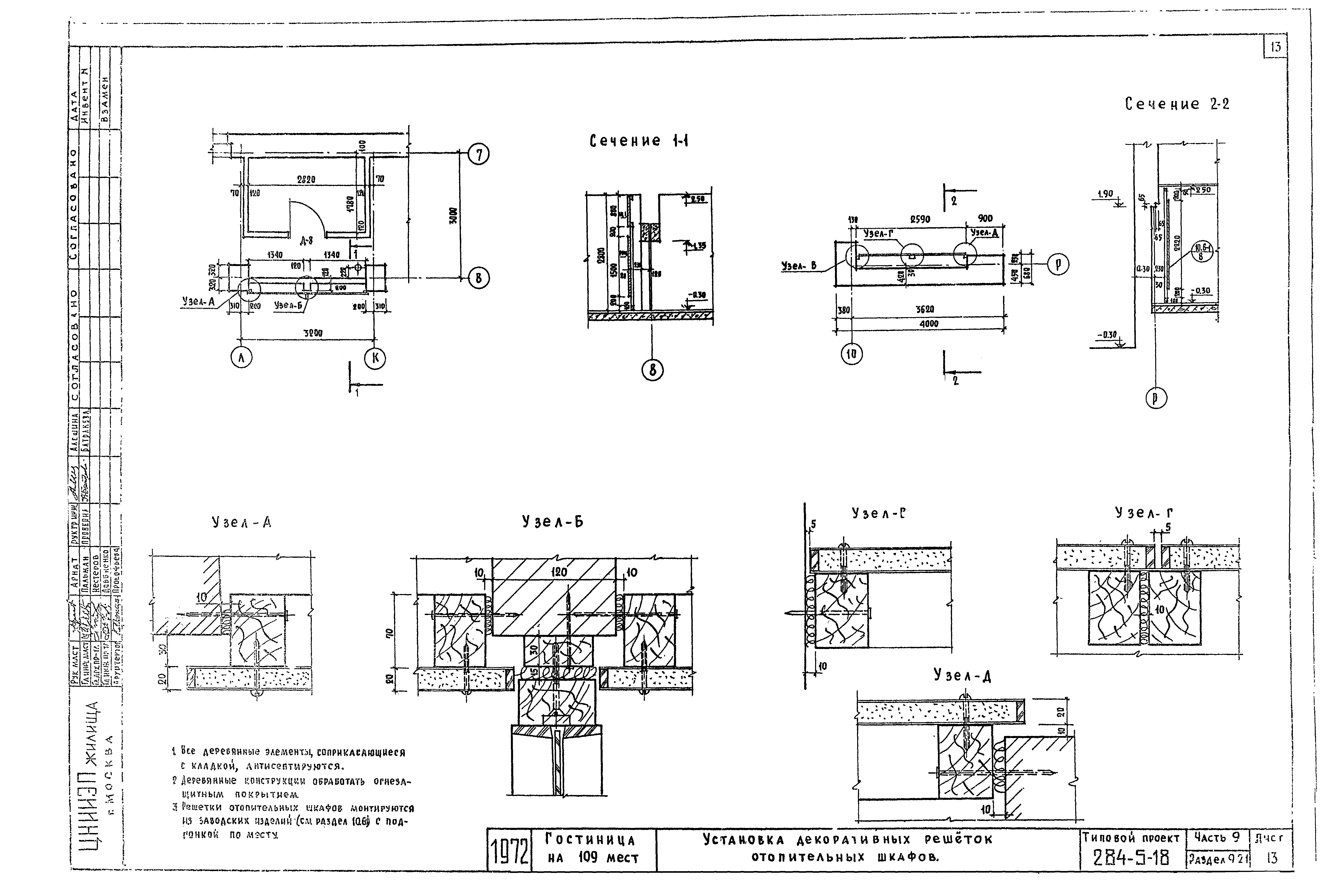
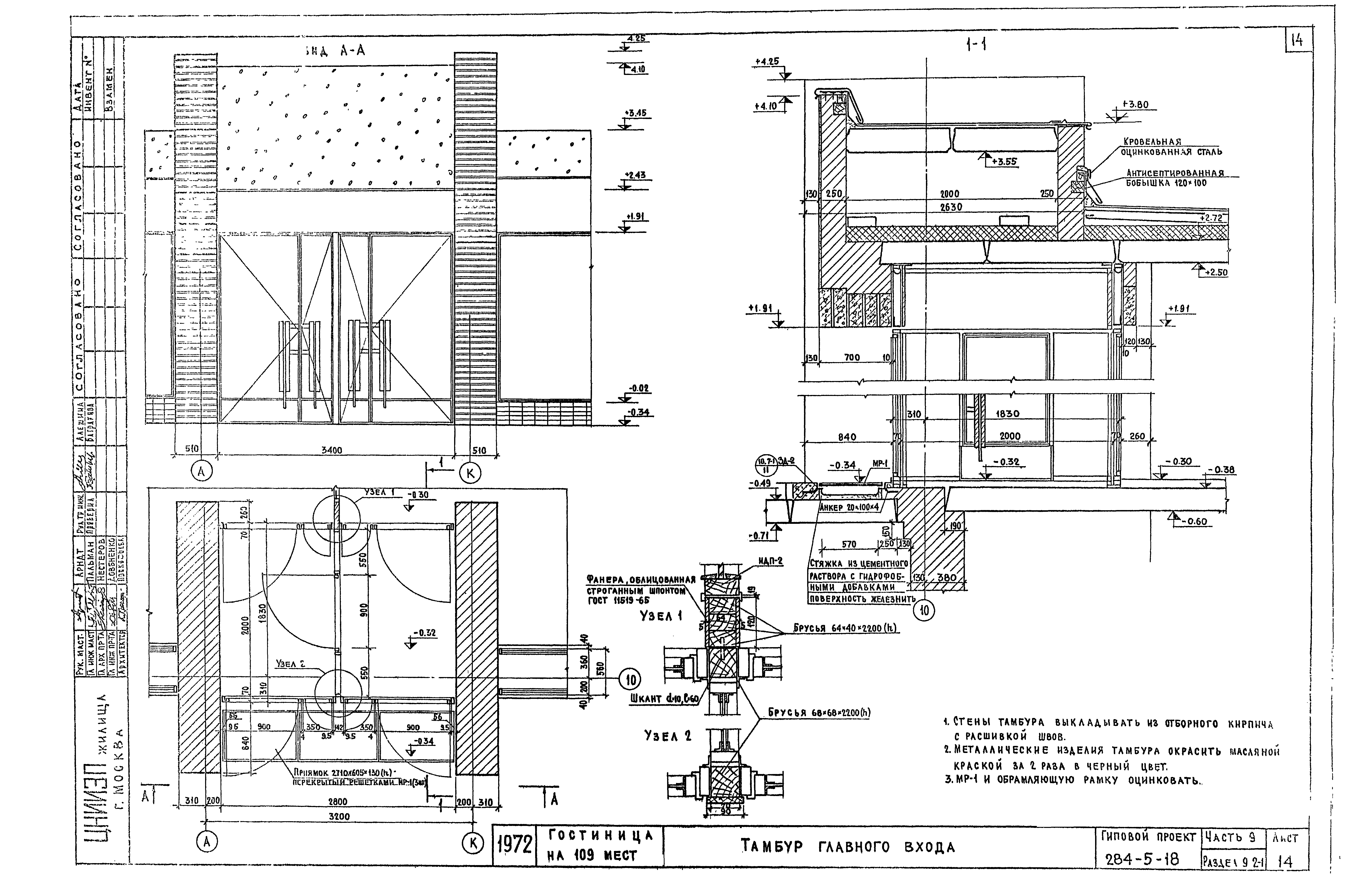
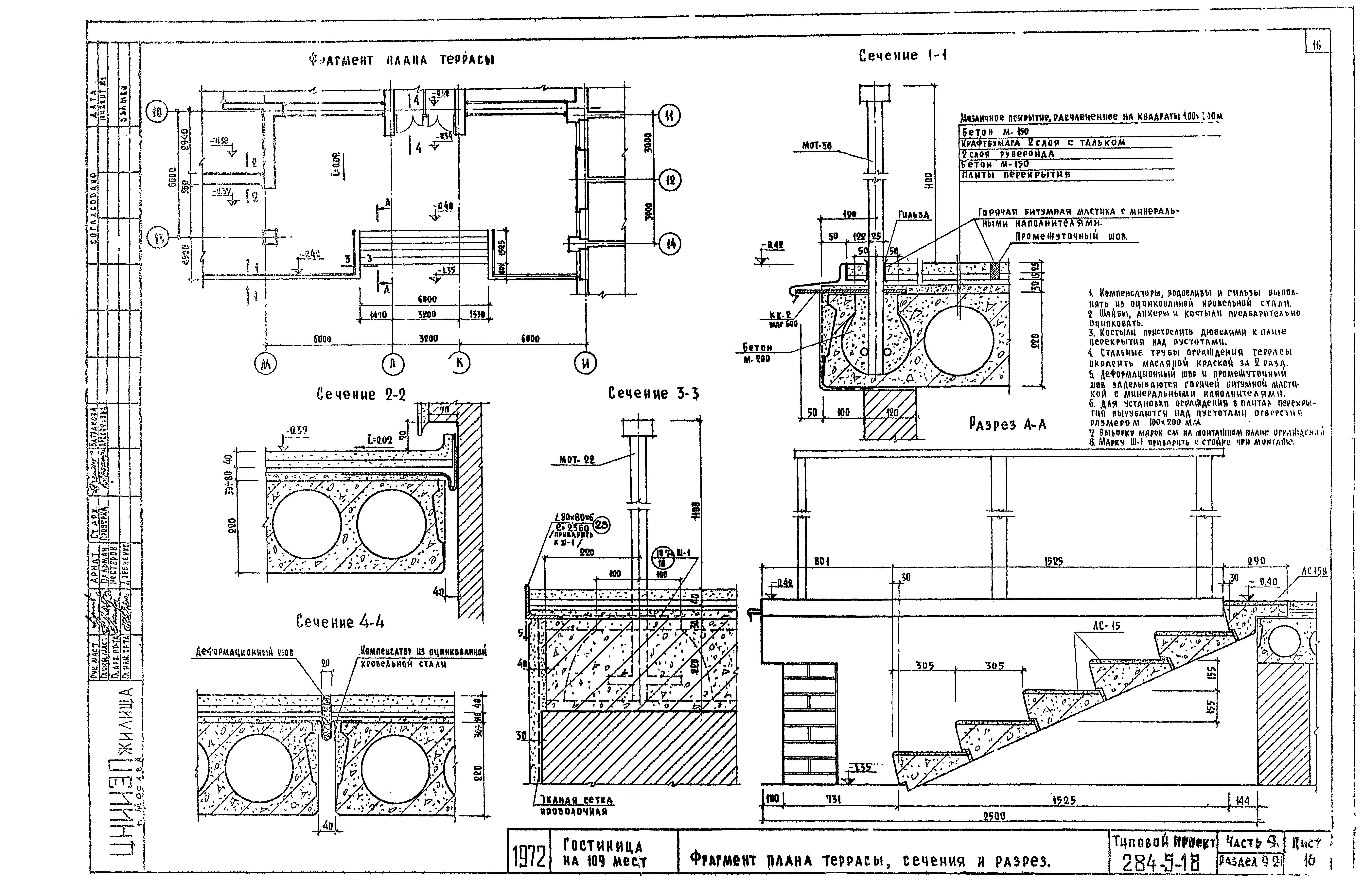
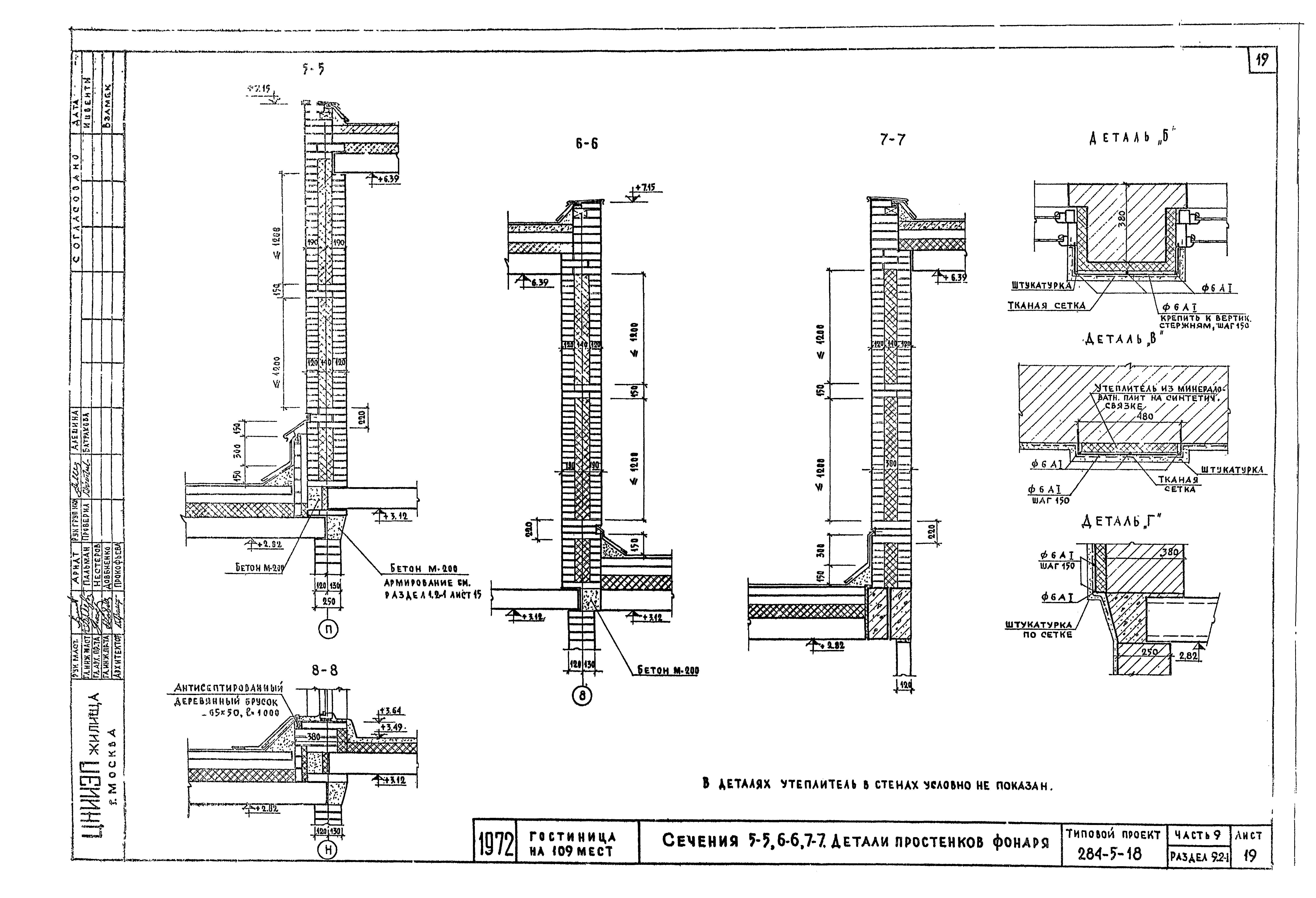
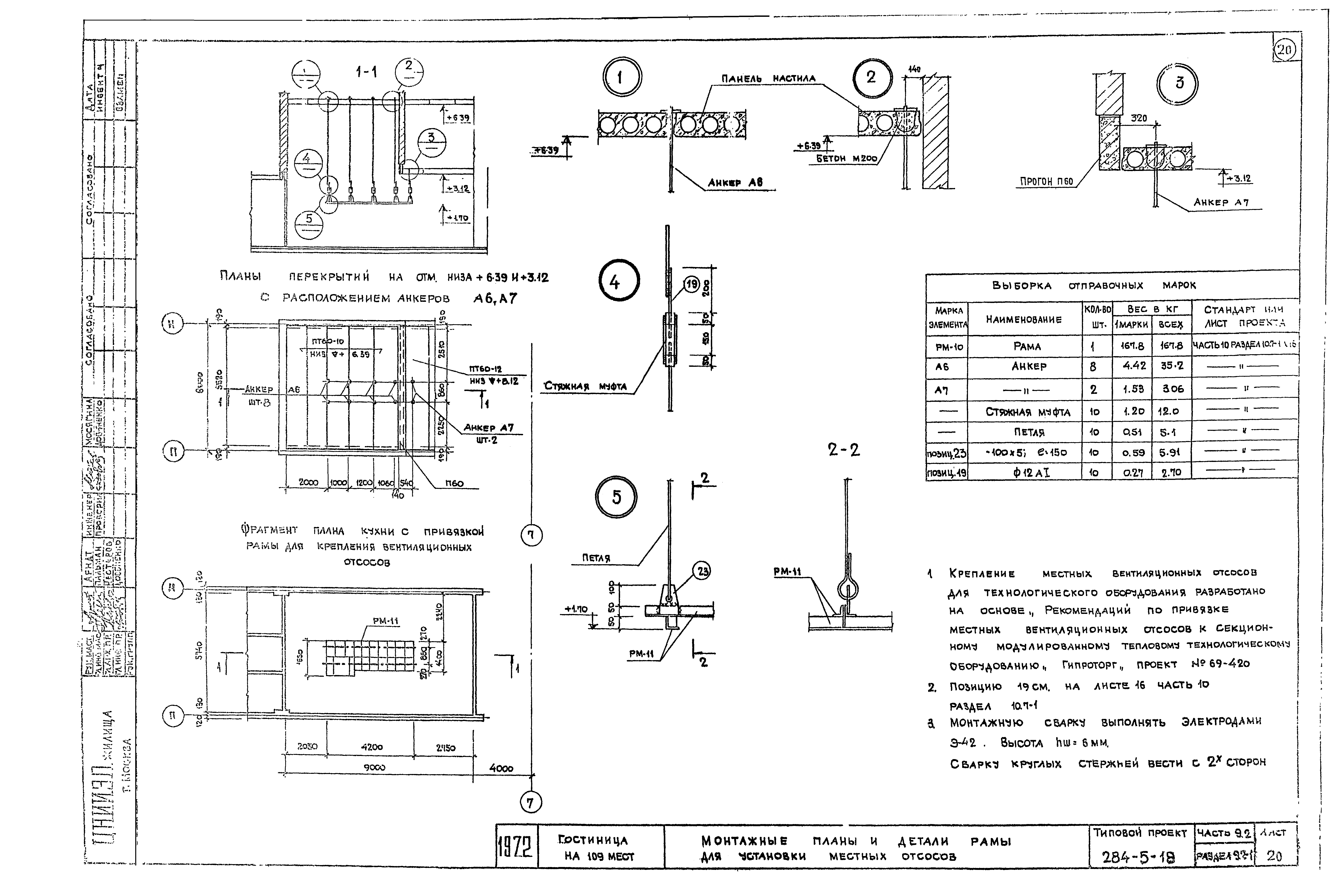
| Оглавление: | 284-5-18 Заглавный лист 284-5-18 Фрагмент плана 1 этажа в осях "1-8" 284-5-18 Фрагмент плана 1 этажа в осях "6-15" 284-5-18 Сечения А-А,Б-Б,В-В,Г-Г,Д-Д,Е-Е. Крепление металлической лестницы 284-5-18 Узлы опирания балок перекрытия 1,2,3,4 284-5-18 Узлы опирания балок перекрытия 5,6,7,8,9 284-5-18 Узлы опирания балок перекрытия 10,11,12,13 284-5-18 Перекрытие. Сечения 284-5-18 План потолка ресторана и вестибюля 284-5-18 Монтажные схемы конструкций подвесного потолка. Разрез 1-1 284-5-18 Разрезы 2-2,3-3. Фрагмент плана потолка 284-5-18 Детали установки окон по оси "Р" 284-5-18 Установка декоративных решеток отопительных шкафов 284-5-18 Тамбур главного входа 284-5-18 Дебаркадер. План, разрезы, выборка металлических изделий 284-5-18 Фрагмент плана террасы, сечения и разрез 284-5-18 Венткамера. Плиты ПВ-1,ПВ-2,ПВ-3. Детали 284-5-18 Полы. Детали полов 284-5-18 Сечения 5-5,6-6,7-7. Детали простенков фонаря 284-5-18 Монтажные планы и детали рамы для установки местных вентиляционных отсосов |
| Разработан: | ЦНИИЭП жилища |
| Утверждён: | 01.01.1972 Госкомитет по гражданскому строительству и архитектуре при Госстрое СССР (National Committee on Nonindustrial Construction and Architecture, USSR Gosstroy ) |




















