Скачать Типовой проект 284-5-18 Часть 10. Раздел 10.7-1. Изделия заводского изготовления. Металлические изделияДата актуализации: 01.01.2021
|
| Обозначение: | Типовой проект 284-5-18 |
| Обозначение англ: | 284-5-18 |
| Статус: | не определен законодательством |
| Название рус.: | Часть 10. Раздел 10.7-1. Изделия заводского изготовления. Металлические изделия |
| Дата добавления в базу: | 01.09.2013 |
| Дата актуализации: | 01.01.2021 |
| Дата введения: | 01.01.1972 |
| Дата окончания срока действия: | 30.06.2003 |
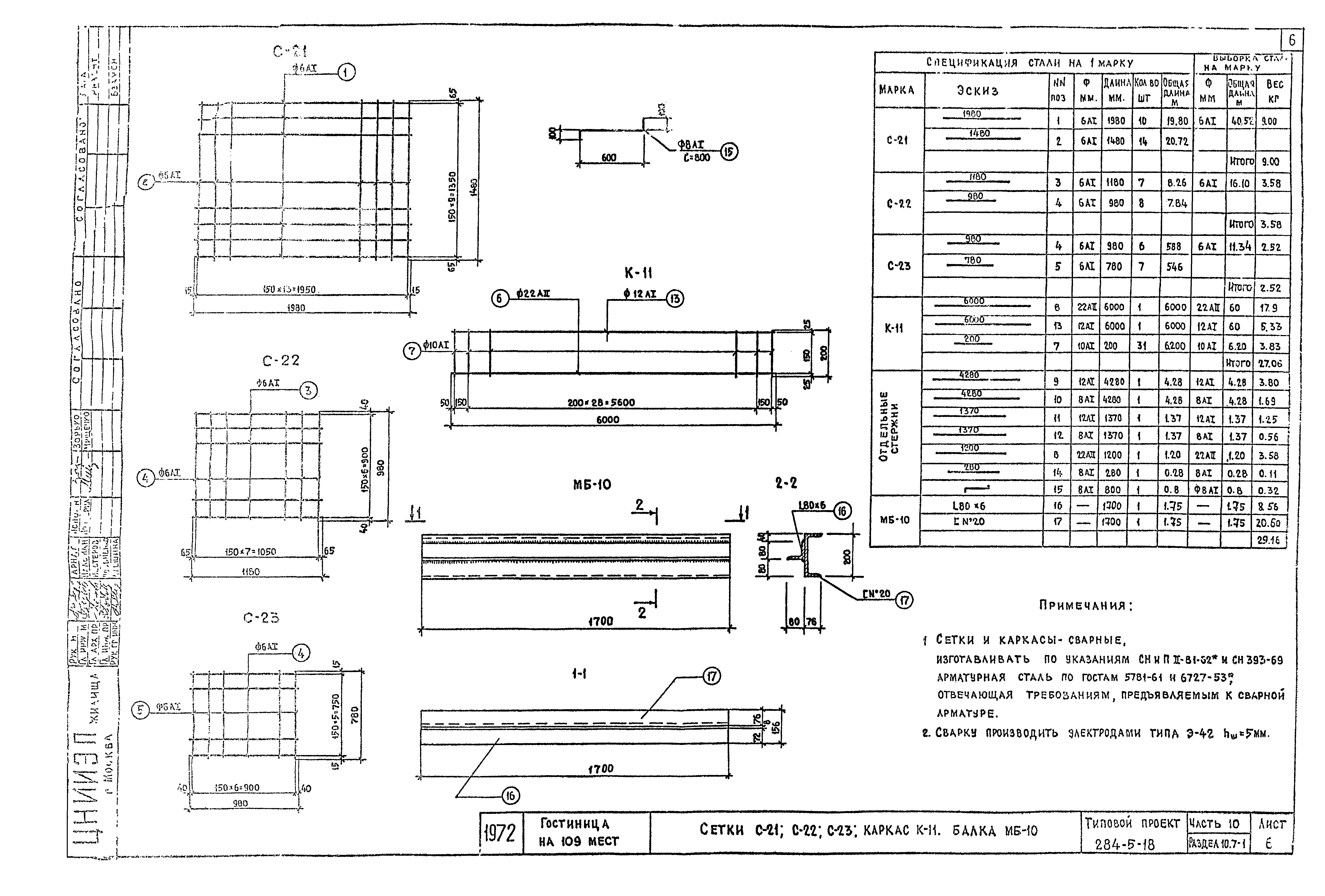
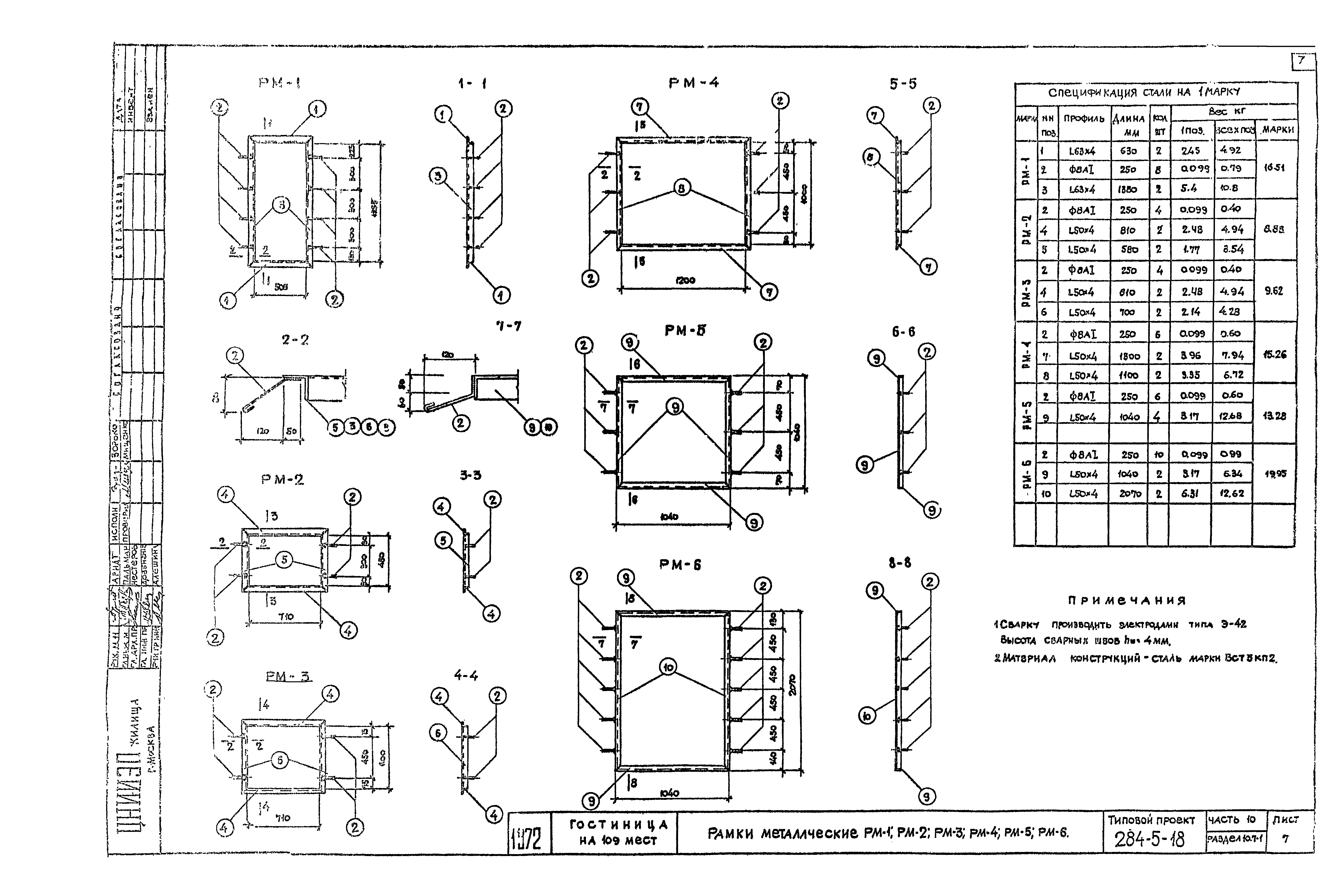
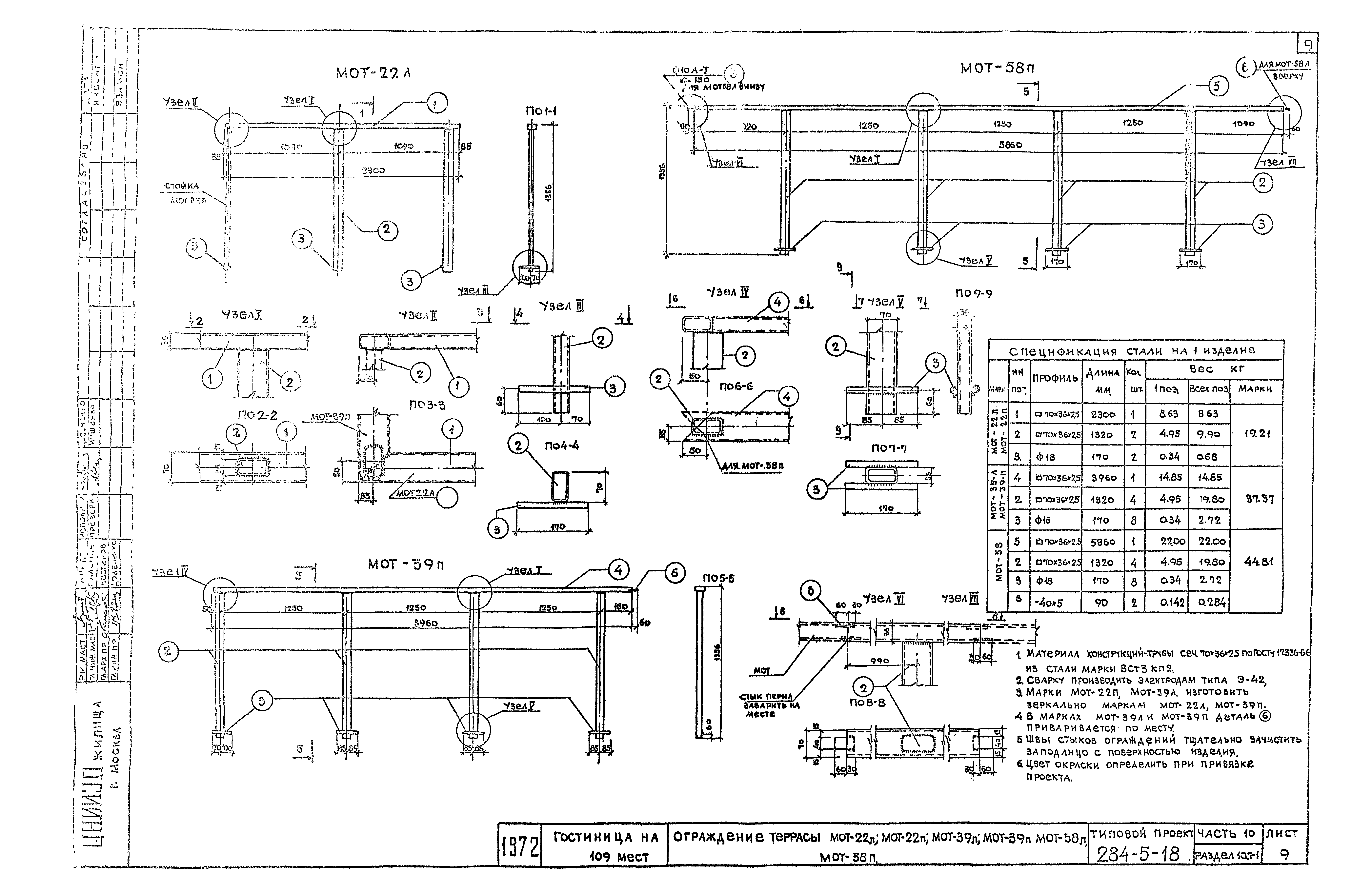
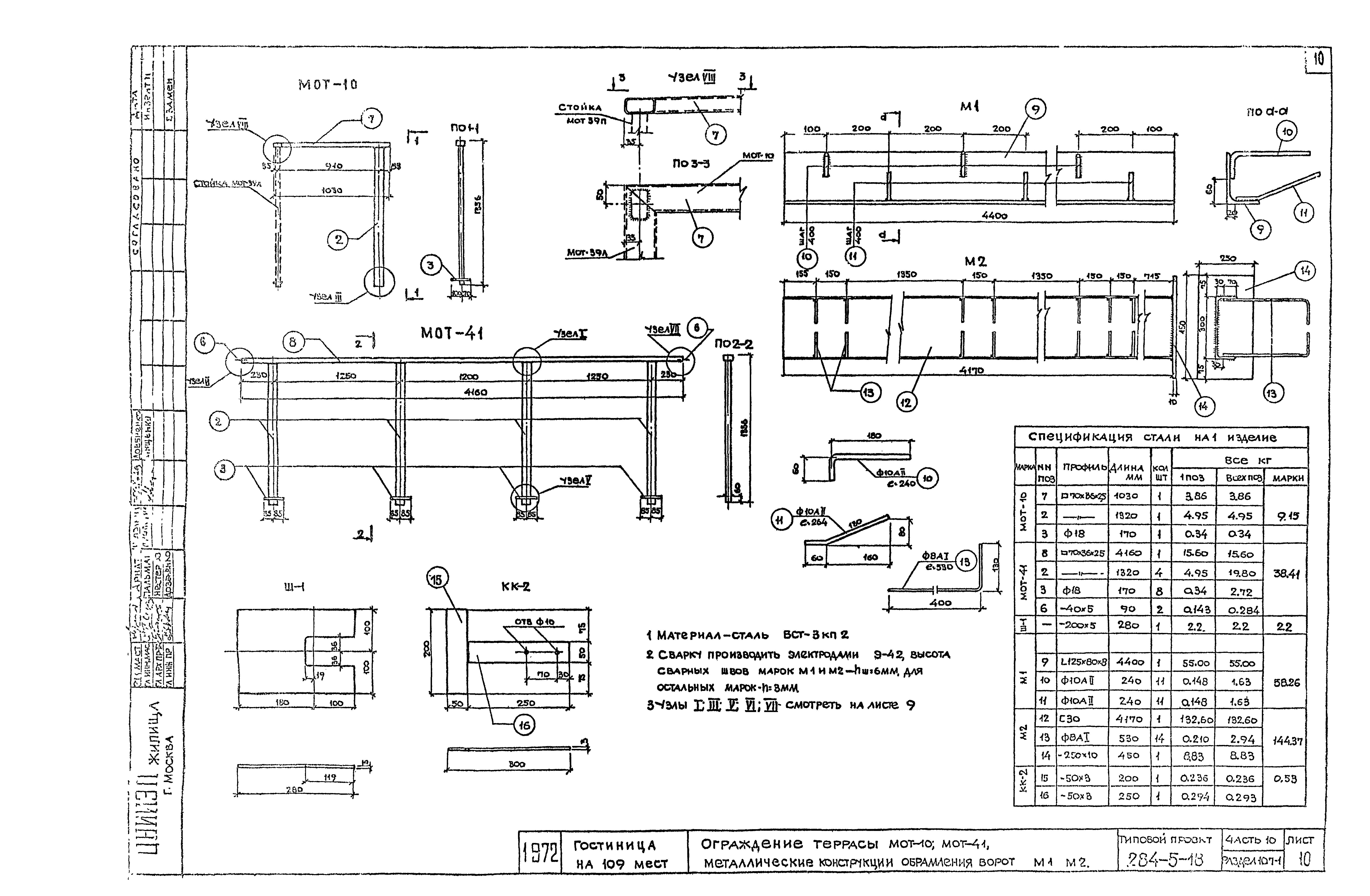
| Оглавление: | 284-5-18 Заглавный лист 284-5-18 Сетка С1 по С10;С-11;С-18;С-19;С-29 284-5-18 Каркас К-10; сетки С-12;С-13;С-14; деталь М-1 284-5-18 Каркасы К-1 по К-9, металлические анкера 284-5-18 Сетки С-15,С-16,С-17,С-18,С-24,С-25,С-26,С-27,С-28. Металлические поручни МП,МПУ 284-5-18 Сетки С-21,С-22,С-23; каркас К-11. Балка МБ-10 284-5-18 Рамки металлические РМ-1,РМ-2,РМ-3,РМ-4,РМ-5,РМ-6 284-5-18 Зонт Т15-А. Рамка РМ-7,РМ-8, ограждение МОТ-19, анкер АМ-6 284-5-18 Ограждение террасы МОТ-22л,МОТ-22п,МОТ-39л,МОТ-39п,МОТ-58л,МОТ-58п 284-5-18 Ограждение террасы МОТ-10,МОТ-41; металлич конструкции обрамлен ворот М-1,М-2 284-5-18 Закладные детали МКБ-1;МКБ-2;ОБ-1;ЗД-1;ЗД-2;ЗД-3;РМ-9;РМ-10 284-5-18 Ограждение кровли МОК-1. Кровельный костыль КК-1. Металлич лестница МЛ-1 284-5-18 Гильза для установки радиостойки анкера для крепления гильзы радиостойки и опорной трубы телевизион антенны к стене 284-5-18 Опорная труба для телеантенны. Детали сечения 284-5-18 Рама для крепления вентиляционных отсосов. Спецификация 284-5-18 Рама для крепления вентиляционных отсосов. Узлы и детали |
| Разработан: | ЦНИИЭП жилища |
| Утверждён: | 01.01.1972 Госкомитет по гражданскому строительству и архитектуре при Госстрое СССР (National Committee on Nonindustrial Construction and Architecture, USSR Gosstroy ) |
















