Скачать Типовой проект 284-5-18 Часть 10. Раздел 10.7-2. Изделия заводского изготовления. ВитражиДата актуализации: 01.01.2021
|
| Обозначение: | Типовой проект 284-5-18 |
| Обозначение англ: | 284-5-18 |
| Статус: | не определен законодательством |
| Название рус.: | Часть 10. Раздел 10.7-2. Изделия заводского изготовления. Витражи |
| Дата добавления в базу: | 01.09.2013 |
| Дата актуализации: | 01.01.2021 |
| Дата введения: | 01.01.1972 |
| Дата окончания срока действия: | 30.06.2003 |
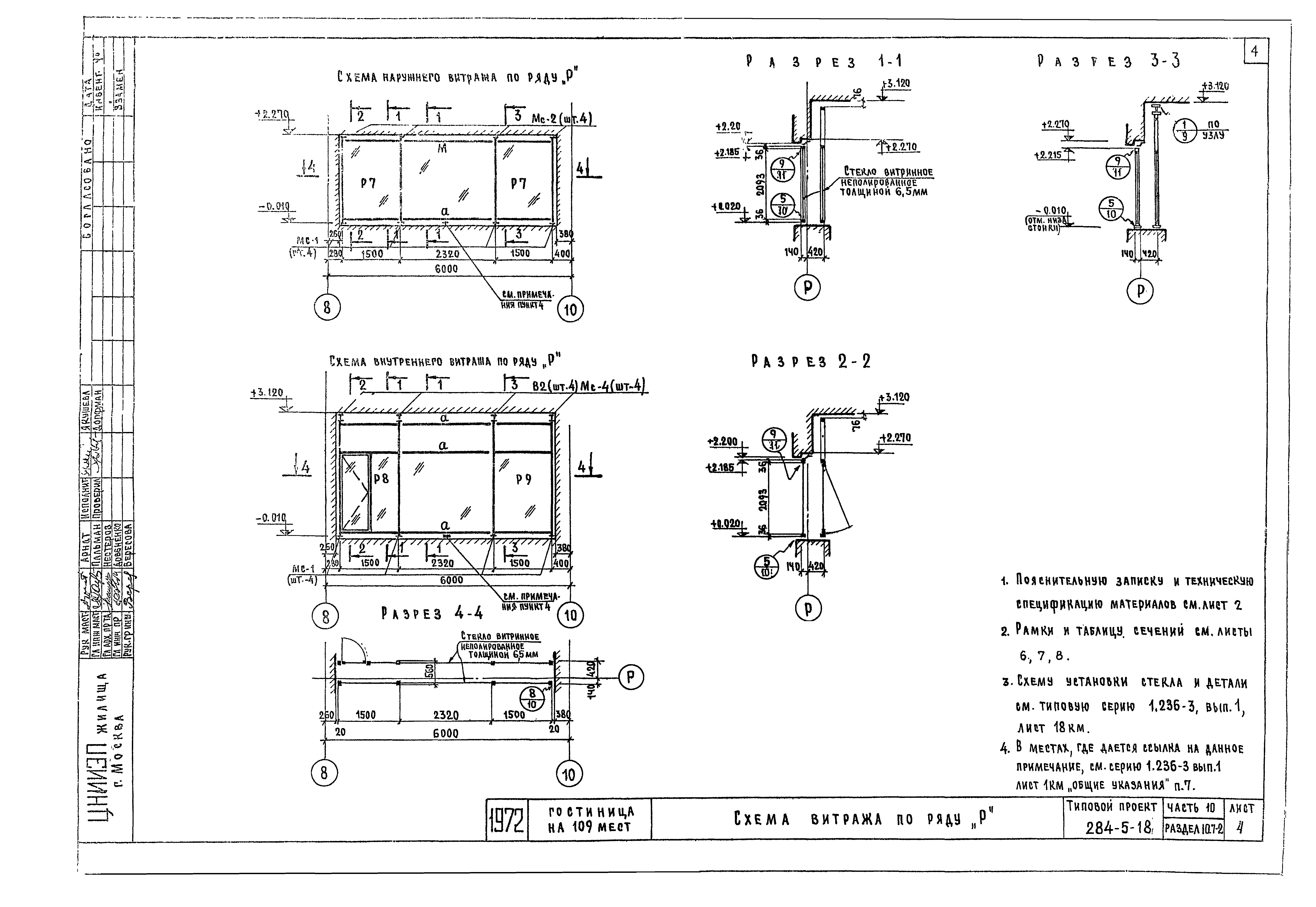
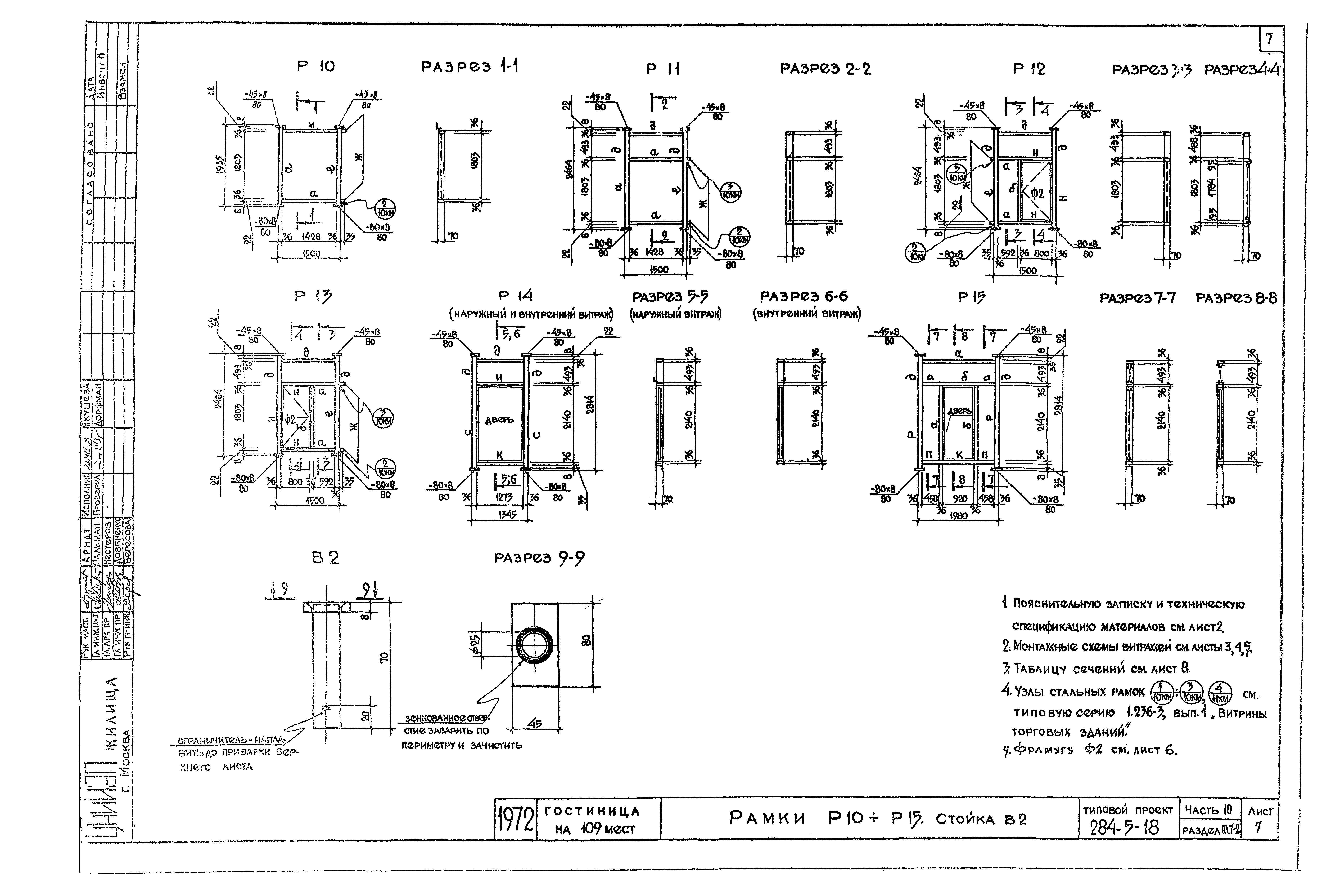
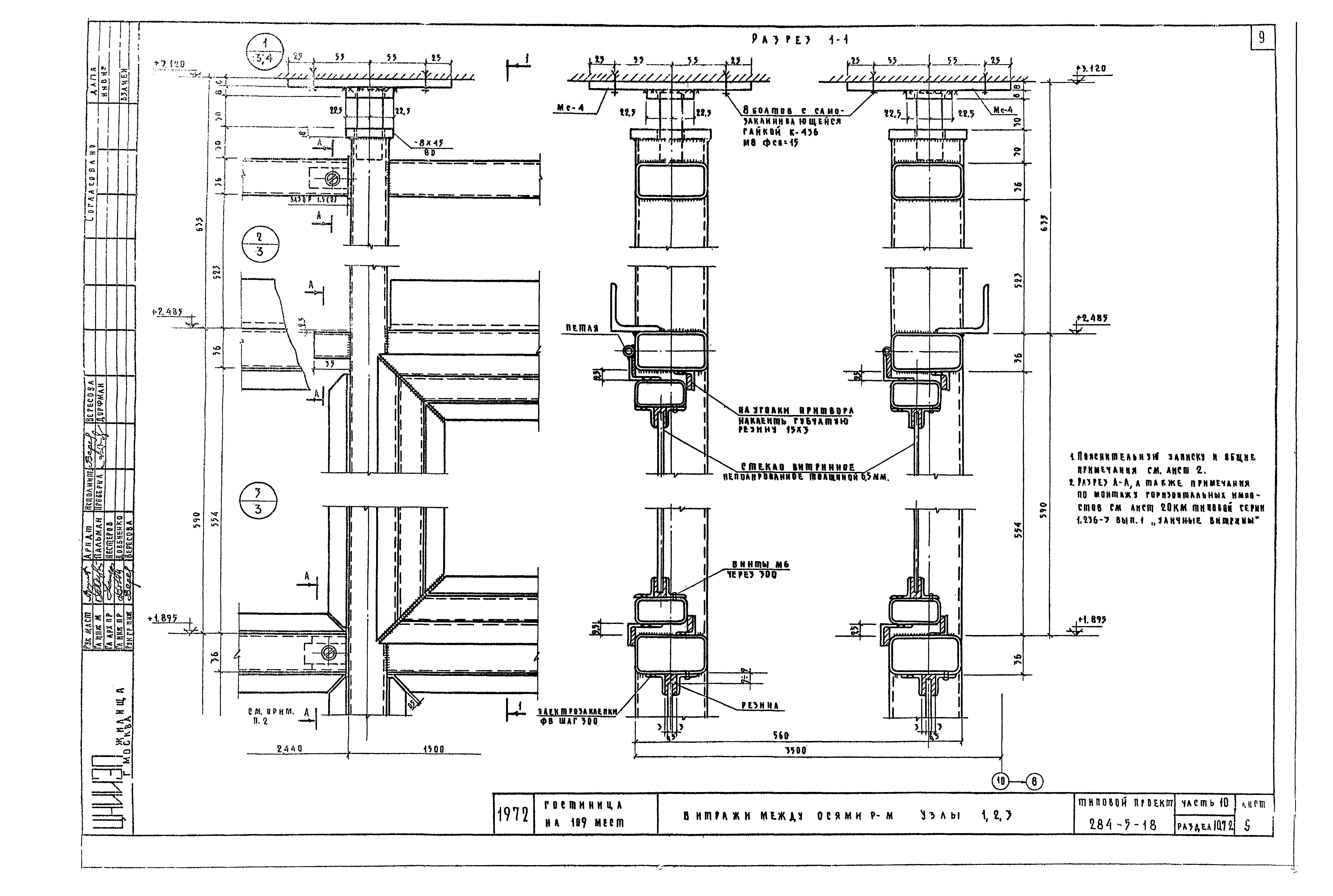
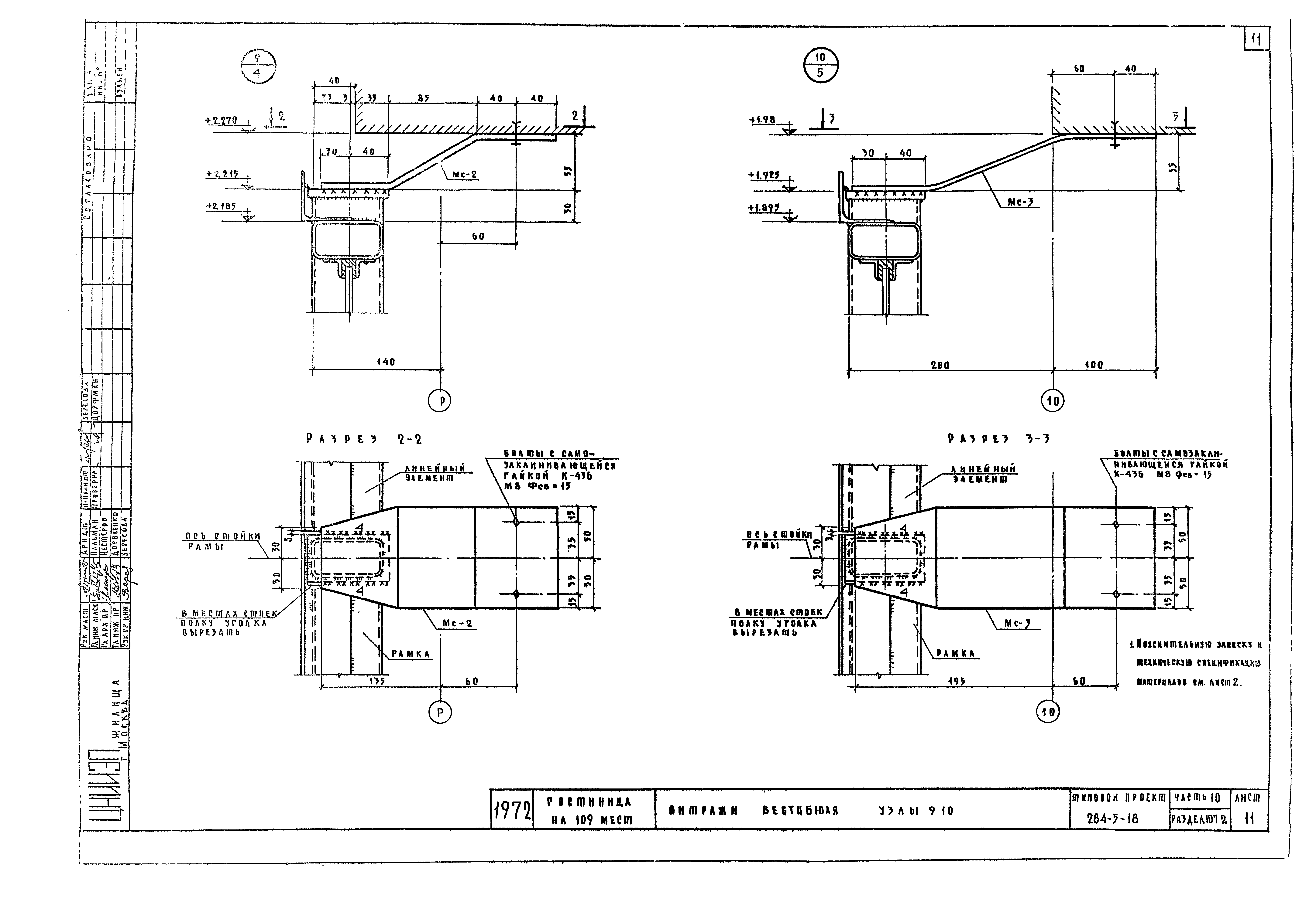
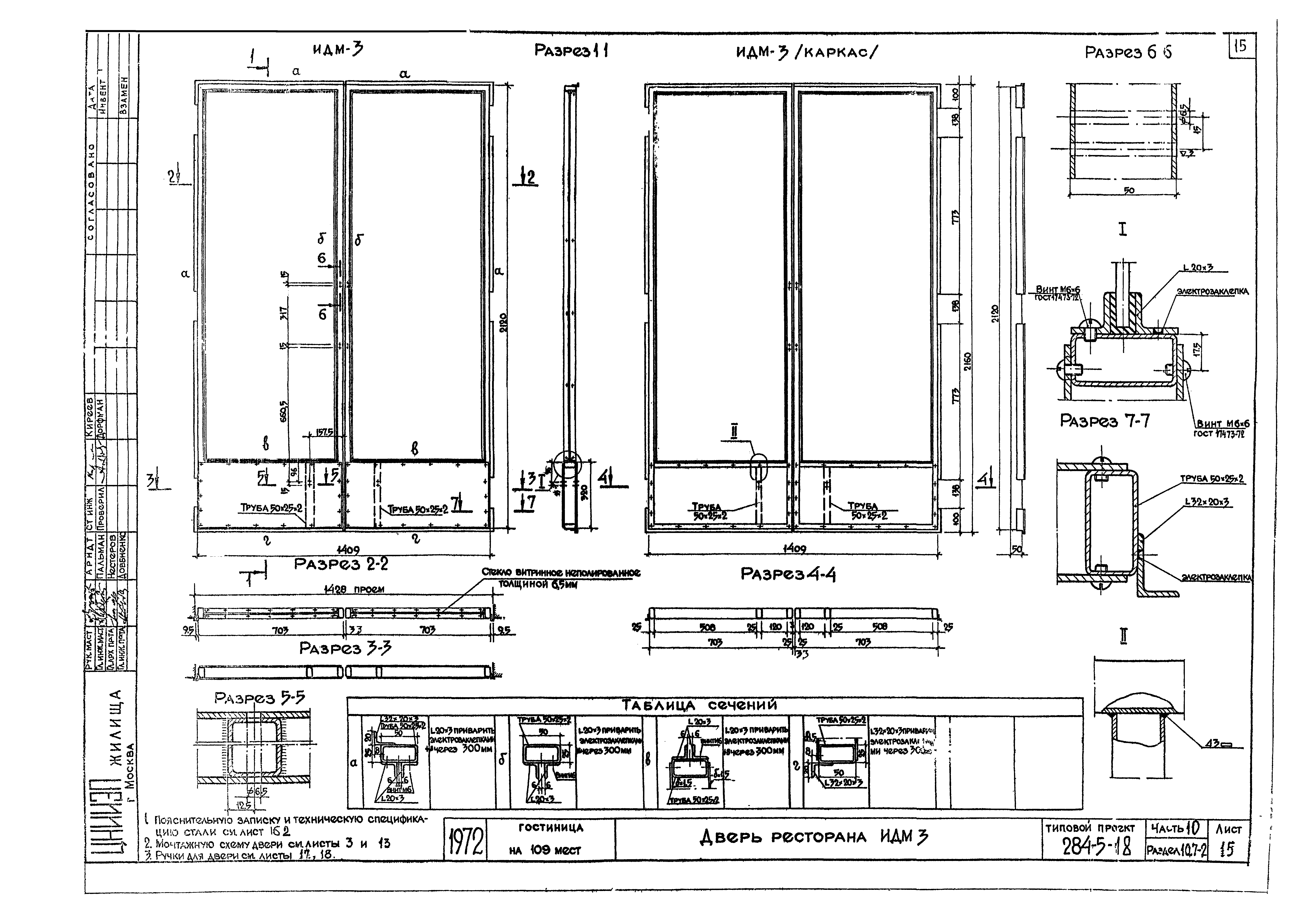
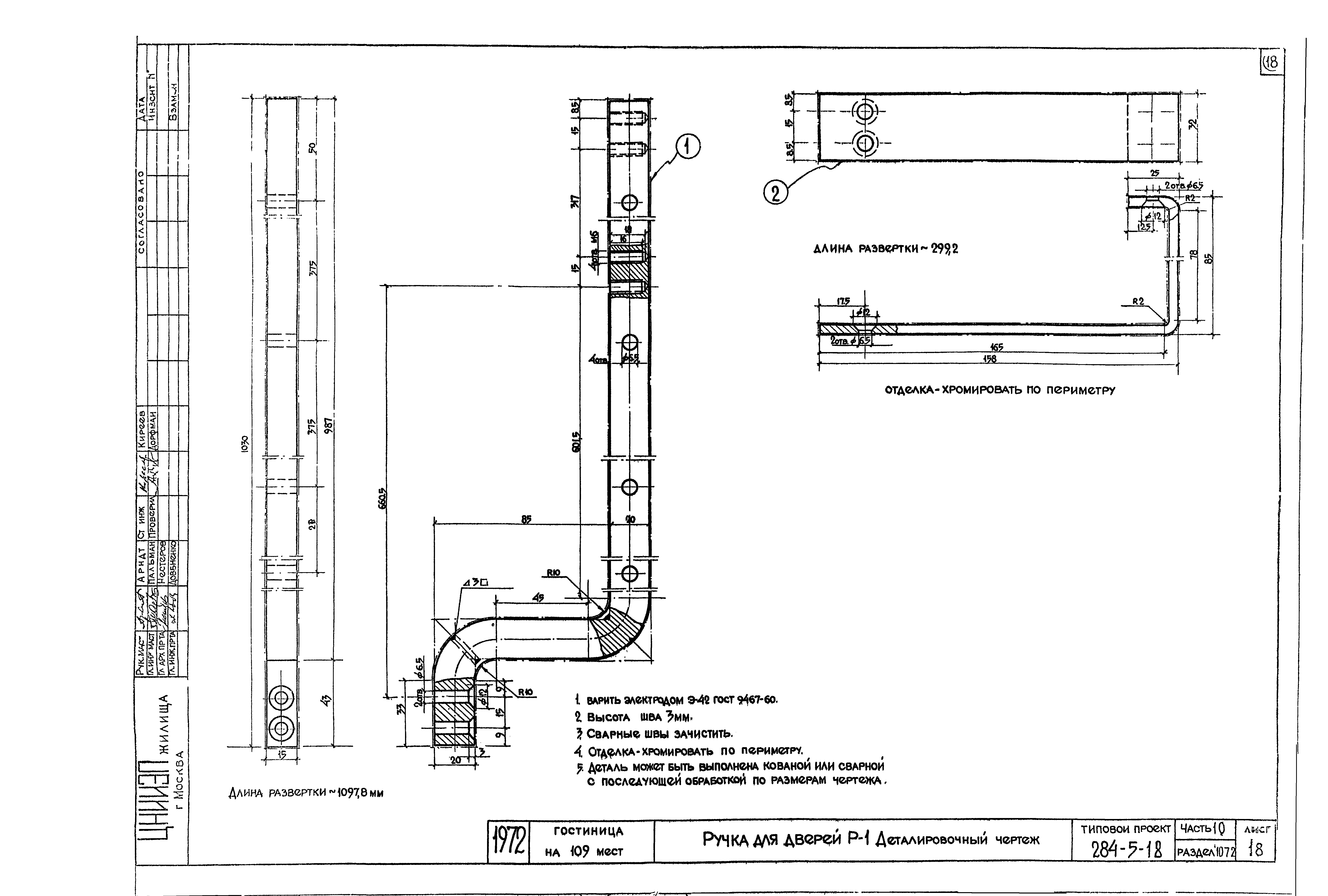
| Оглавление: | 284-5-18 Заглавный лист 284-5-18 Пояснительная записка и техническая спецификация материалов 284-5-18 Схема витража между осями Р-М 284-5-18 Схема витража по ряду "Р" 284-5-18 Схема витража вестибюля по оси "10" 284-5-18 Рамка Р1-Р9. Фрамуги Ф1-Ф2 284-5-18 Рамки Р10-Р15. Стойка В2 284-5-18 Таблица сечений 284-5-18 Витражи между осями Р-М. Узлы 1:2,3 284-5-18 Витражи между осями Р-М. Узлы 4,5,6,7,8 284-5-18 Витражи вестибюля. Узлы 9,10 284-5-18 Тамбур вестибюля 284-5-18 Фасады тамбура вестибюля и входа в ресторан 284-5-18 Двери тамбура ИДМ-1,ИДМ-2 284-5-18 Дверь ресторана ИДМ-3 284-5-18 Двери, узлы 1-6 284-5-18 Ручка для дверей тамбура Р-1. Сборочный чертеж 284-5-18 Ручка для дверей тамбура Р-1. Деталировочный чертеж |
| Разработан: | ЦНИИЭП жилища |
| Утверждён: | 01.01.1972 Госкомитет по гражданскому строительству и архитектуре при Госстрое СССР (National Committee on Nonindustrial Construction and Architecture, USSR Gosstroy ) |


















