Скачать Серия 1.420.5-21 Выпуск 1. Часть 2. Деревянные изделия. Рабочие чертежиДата актуализации: 01.01.2021
|
| Обозначение: | Серия 1.420.5-21 |
| Обозначение англ: | Series 1.420.5-21 |
| Статус: | не определен законодательством |
| Название рус.: | Выпуск 1. Часть 2. Деревянные изделия. Рабочие чертежи |
| Дата добавления в базу: | 01.09.2013 |
| Дата актуализации: | 01.01.2021 |
| Дата введения: | 06.07.1987 |
| Дата окончания срока действия: | 30.06.2003 |
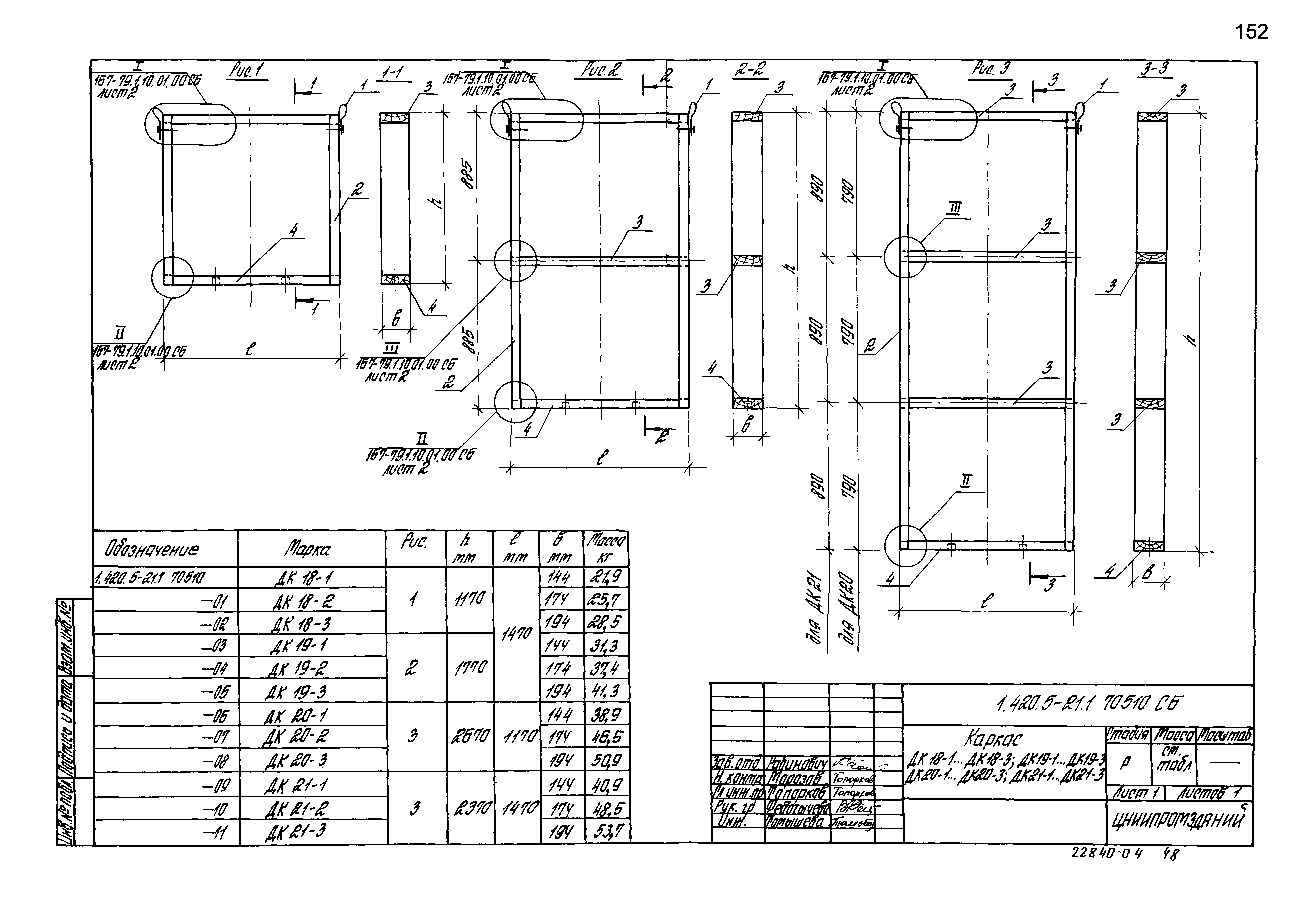
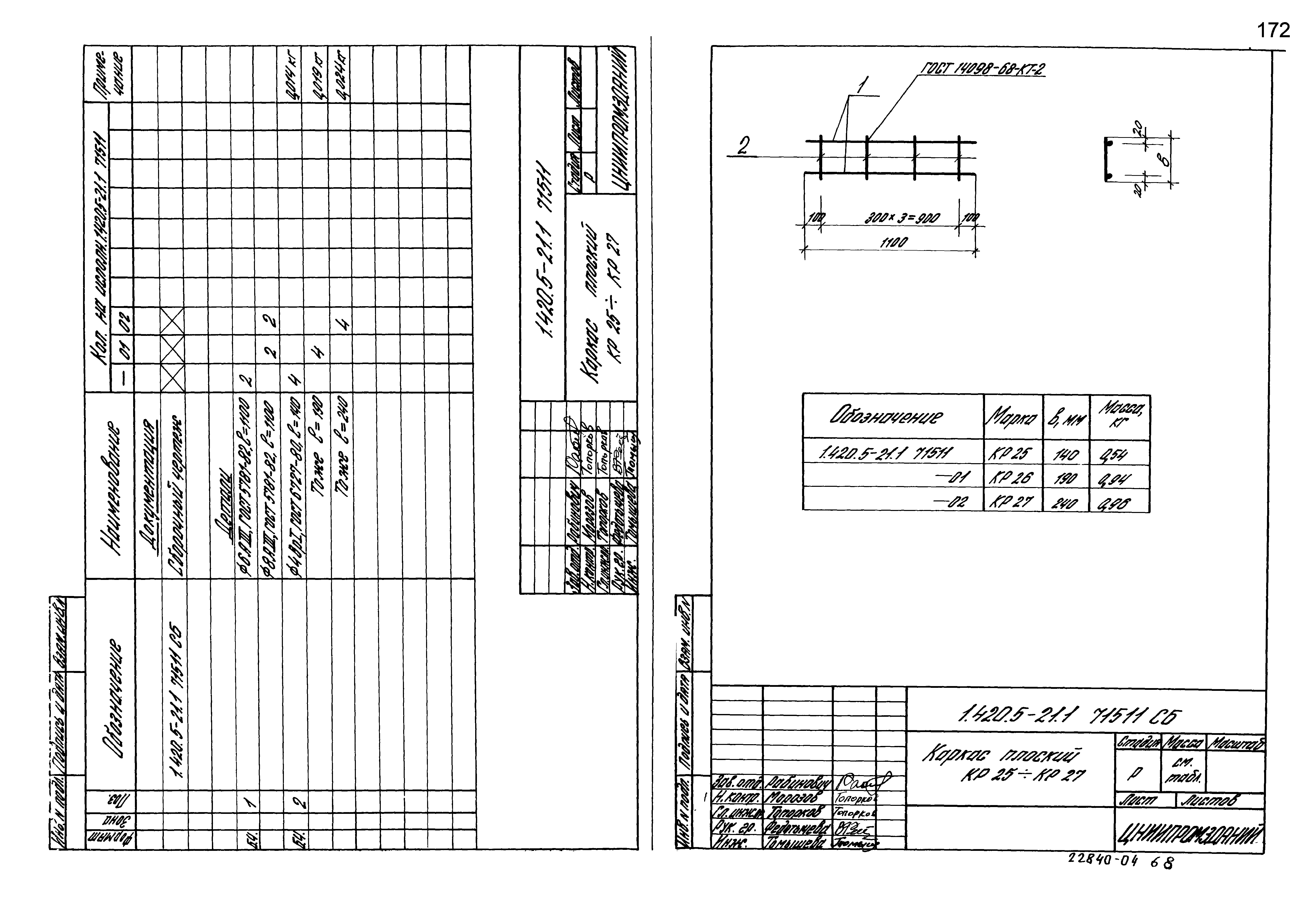
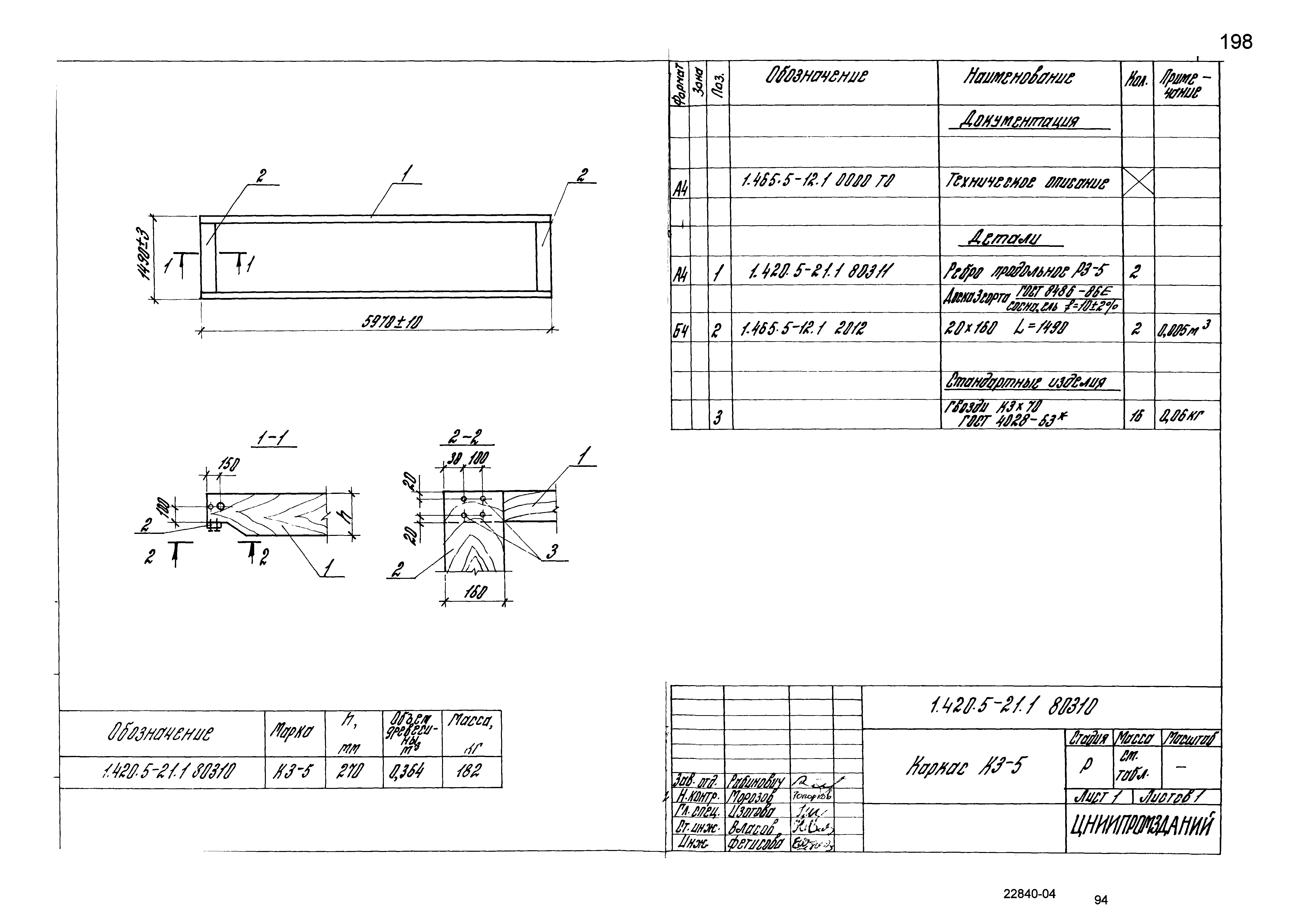
| Оглавление: | 1.420.5-21.1.60210 СБ Каркас К2, К3. Сборочный чертеж 1.420.5-21.1.60211 Ребро продольное РК2 1.420.5-21.1.60212 Опорный брусок ОБ2 1.420.5-21.1.60201 Настил НД4...НД7 1.420.5-21.1.60300 Плита покрытия ПК60.20 1.420.5-21.1.60300 СБ Плита покрытия ПК60.20. Сборочный чертеж 1.420.5-21.1.60310 Каркас К4 1.420.5-21.1.60310 СБ Каркас К4. Сборочный чертеж 1.420.5-21.1.60311 Ребро продольное РК3 1.420.5-21.1.60312 Опорный брусочек ОБ3 1.420.5-21.1.60400 Плита покрытия ПК1.60.20;ПК2.60.20 1.420.5-21.1.60400 СБ Плита покрытия ПК1.60.20;ПК2.60.20. Сборочный чертеж 1.420.5-21.1.60410 Каркас К5 1.420.5-21.1.60410 СБ Каркас К5. Сборочный чертеж 1.420.5-21.1.60411 Ребро продольное РК4 1.420.5-21.1.60412 Опорный брусок ОБ4 1.420.5-21.1.60500 Плита покрытия ПКФ60.20 1.420.5-21.1.60500 СБ Плита покрытия ПКФ60.20. Сборочный чертеж 1.420.5-21.1.60510 Каркас К6 1.420.5-21.1.60510 СБ Каркас К6. Сборочный чертеж 1.420.5-21.1.60511 Ребро продольное РК5 1.420.5-21.1.60512 Опорный брусок ОБ5 1.420.5-21.1.60600 Плита покрытия ПКФ1.60.20,ПКФ2.60.20 1.420.5-21.1.60600 СБ Плита покрытия ПКФ1.60.20,ПКФ2.60.20. Сборочный чертеж 1.420.5-21.1.60610 Каркас К7 1.420.5-21.1.60610 СБ Каркас К7. Сборочный чертеж 1.420.5-21.1.60611 Ребро продольное РК6 1.420.5-21.1.60612 Опорный брус ОБ6 1.420.5-21.1.60601 Обшивка Л1,Л2 1.420.5-21.1.70100 Панель стеновая асбестоцементная ПС570.90-1АЦ...ПС570.9-3АЦ;ПС570.120-1АЦ...ПС570.120-3АЦ 1.420.5-21.1.70100 СБ Панель стеновая асбестоцементная ПС570.90-1АЦ...ПС570.9-3АЦ;ПС570.120-1АЦ...ПС570.120-3АЦ. Сборочный чертеж 1.420.5-21.1.70110 Каркас марки ДК14-1...ДК14-6 1.420.5-21.1.70110 СБ Каркас марки ДК14-1...ДК14-6. Сборочный чертеж 1.420.5-21.1.70111 Ребро продольное 1.420.5-21.1.70200 Панель стеновая асбестоцементная ПС520.90-1АЦ...ПС520.90-3АЦ;ПС520.120-1АЦ...ПС520.120-3АЦ 1.420.5-21.1.70200 СБ Панель стеновая асбестоцементная ПС520.90-1АЦ...ПС520.90-3АЦ;ПС520.120-1АЦ...ПС520.120-3АЦ. Сборочный чертеж 1.420.5-21.1.70210 Каркас марки ДК15-1...ДК15-6 1.420.5-21.1.70210 СБ Каркас марки ДК15-1...ДК15-6. Сборочный чертеж 1.420.5-21.1.70300 Панель стеновая асбестоцементная ПС325.90-1АЦ...ПС325.90-3АЦ;ПС325.120-1АЦ...ПС325.125-3АЦ 1.420.5-21.1.70300 СБ Панель стеновая асбестоцементная ПС325.90-1АЦ...ПС325.90-3АЦ;ПС325.120-1АЦ...ПС325.125-3АЦ. Сборочный чертеж 1.420.5-21.1.70310 Каркас марки ДК16-1...ДК16-6 1.420.5-21.1.70310 СБ Каркас марки ДК16-1...ДК16-6. Сборочный чертеж 1.420.5-21.1.70400 Панель стеновая асбестоцементная ПС32.90-1АЦ...ПС32.90-3АЦ;ПС32.120-1АЦ...ПС32.120-3АЦ 1.420.5-21.1.70400 СБ Панель стеновая асбестоцементная ПС32.90-1АЦ...ПС32.90-3АЦ;ПС32.120-1АЦ...ПС32.120-3АЦ. Сборочный чертеж 1.420.5-21.1.70410 Каркас марки ДК17-1...ДК17-6 1.420.5-21.1.70410 СБ Каркас марки ДК17-1...ДК17-6. Сборочный чертеж 1.420.5-21.1.70120 Лист марки Л17,Л18 1.420.5-21.1.70220 Лист марки Л19,Л20 1.420.5-21.1.70330 Лист марки Л21,Л22 1.420.5-21.1.70420 Лист марки Л23,Л24 1.420.5-21.1.70500 Панель стеновая асбестоцементная ПС150.120-1АЦ...ПС150.120-3АЦ,ПС150.180-1АЦ...ПС150.180-3АЦ,ПС120.270-1АЦ...ПС120.270-3АЦ,ПС150.240-1АЦ...ПС150.240-3АЦ 1.420.5-21.1.70500 СБ Панель стеновая асбестоцементная ПС150.120-1АЦ...ПС150.120-3АЦ,ПС150.180-1АЦ...ПС150.180-3АЦ,ПС120.270-1АЦ...ПС120.270-3АЦ,ПС150.240-1АЦ...ПС150.240-3АЦ. Сборочный чертеж 1.420.5-21.1.70510 Каркас ДК18-1...ДК18-3;ДК19-1...ДК19-3,ДК20-1...ДК20-3,ДК21-1...ДК21-3 1.420.5-21.1.70510 СБ Каркас ДК18-1...ДК18-3;ДК19-1...ДК19-3,ДК20-1...ДК20-3,ДК21-1...ДК21-3. Сборочный чертеж 1.420.5-21.1.70511 Ребро продольное, ребро поперечное 1.420.5-21.1.70512 Лист марки Л1...Л4 1.420.5-21.1.71100 Панель стеновая арболитовая ПС57.9...ПС57.12 1.420.5-21.1.71100 СБ Панель стеновая арболитовая ПС57.9...ПС57.12. Сборочный чертеж 1.420.5-21.1.71110 Каркас пространственный КП49...КП54 1.420.5-21.1.71110 СБ Каркас пространственный КП49...КП54. Сборочный чертеж 1.420.5-21.1.71111 Каркас плоский КР16...КР18 1.420.5-21.1.71111 СБ Каркас плоский КР16...КР18. Сборочный чертеж 1.420.5-21.1.71200 Панель стеновая арболитовая ПС52.9...ПС52.12 1.420.5-21.1.71200 СБ Панель стеновая арболитовая ПС52.9...ПС52.12. Сборочный чертеж 1.420.5-21.1.71210 Каркас пространственный КП55...КП60 1.420.5-21.1.71210 СБ Каркас пространственный КП55...КП60. Сборочный чертеж 1.420.5-21.1.71211 Каркас плоский КР19...КР21 1.420.5-21.1.7211 СБ Каркас плоский КР19...КР21. Сборочный чертеж 1.420.5-21.1.71300 Панель стеновая арболитовая ПС33.9...ПС33.12 1.420.5-21.1.71300 СБ Панель стеновая арболитовая ПС33.9...ПС33.12. Сборочный чертеж 1.420.5-21.1.71310 Каркас пространственный КП61...КП66 1.420.5-21.1.71310 СБ Каркас пространственный КП61...КП66 1.420.5-21.1.71311 Каркас плоский КР22...КР24 1.420.5-21.1.71311 СБ Каркас плоский КР22...КР24 1.420.5-21.1.71600 Панель стеновая арболитовая ПС159 1.420.5-21.1.71600 СБ Панель стеновая арболитовая ПС159. Сборочный чертеж 1.420.5-21.1.71610 Каркас пространственный КП670...КП72 1.420.5-21.1.71610 СБ Каркас пространственный КП670...КП72 1.420.5-21.1.71611 Каркас плоский КР28...КР30 1.420.5-21.1.71611 СБ Каркас плоский КР28...КР30. Сборочный чертеж 1.420.5-21.1.71500 Панель стеновая арболитовая ПС129 1.420.5-21.1.71500 СБ Панель стеновая арболитовая ПС129. Сборочный чертеж 1.420.5-21.1.71510 Каркас пространственный КП67...КП69 1.420.5-21.1.71510 СБ Каркас пространственный КП67...КП69. Сборочный чертеж 1.420.5-21.1.71511 Каркас плоский КР25...КР27 1.420.5-21.1.71511 СБ Каркас плоский КР25...КР27. Сборочный чертеж 1.420.5-21.1.71400 Панель стеновая арболитовая ПС3.9...ПС2.12 1.420.5-21.1.71400 СБ Панель стеновая арболитовая ПС3.9...ПС2.12 1.420.5-21.1.72100 Стеновая дощатая панель 1ПСД322.120...1ПСД300.120 1.420.5-21.1.72100 СБ Стеновая дощатая панель 1ПСД322.120...1ПСД300.120. Сборочный чертеж 1.420.5-21.1.72110 Каркас К1...К4,К13,К14 1.420.5-21.1.72110 СБ Каркас К1...К4,К13,К14. Сборочный чертеж 1.420.5-21.1.72200 Стеновая дощатая панель 1ПСД150.120...1ПСД120.90 1.420.5-21.1.72200 СБ Стеновая дощатая панель 1ПСД150.120...1ПСД120.90. Сборочный чертеж 1.420.5-21.1.72210 Каркас К5...К12 1.420.5-21.1.72210 СБ Каркас К5...К12. Сборочный чертеж 1.420.5-21.1.73100 Панель цокольная легкобетонная ПС32.5.9...ПС33.5.12 1.420.5-21.1.73100 СБ Панель цокольная легкобетонная ПС32.5.9...ПС33.5.12. Сборочный чертеж 1.420.5-21.1.73110 Каркас пространственный КП32.5.9.2.0...КП33.5.12.3.0 1.420.5-21.1.73110 СБ Каркас пространственный КП32.5.9.2.0...КП33.5.12.3.0. Сборочный чертеж 1.420.5-21.1.73111 Каркас плоский КР1...КР8 1.420.5-21.1.73111 СБ Каркас плоский КР1...КР8. Сборочный чертеж 1.420.5-21.1.73200 Панель цокольная легкобетонная ПС12.9...ПС15.9 1.420.5-21.1.73200 СБ Панель цокольная легкобетонная ПС12.9...ПС15.9. Сборочный чертеж 1.420.5-21.1.73210 Каркас пространственный КП12.9.2.0...КП15.9.3.0 1.420.5-21.1.73210 СБ Каркас пространственный КП12.9.2.0...КП15.9.3.0. Сборочный чертеж 1.420.5-21.1.73211 Каркас плоский КР9...КР11 1.420.5-21.1.73211 СБ Каркас плоский КР9...КР11. Сборочный чертеж 1.420.5-21.1.80100 Плита покрытия ПФДР-6-450 1.420.5-21.1.80110 Каркас К1-5 1.420.5-21.1.80101 Ребро продольное Р1-5 1.420.5-21.1.80102 Обшивка Ф1 1.420.5-21.1.80200 Плита покрытия ПФДТ-6-450 1.420.5-21.1.80210 Каркас К2-5 1.420.5-21.1.80201 Ребро продольное Р2-5 1.420.5-21.1.80311 Ребро продольное Р3-5,Р4-5 1.420.5-21.1.80300 Плита покрытия ПДРР-6-450 1.420.5-21.1.80310 Каркас К3-5 1.420.5-21.1.80400 Плита покрытия ПДРТ-6-450 1.420.5-21.1.80410 Каркас К3-6 1.420.5-21.1.80500 Плита покрытия ПД60.10 1.420.5-21.1.80510 Каркас К5-3...К5-5 1.420.5-21.1.80520 Настил Д1-4...Д1-6 1.420.5-21.1.80600 Плита покрытия ПДТ60.10 1.420.5-21.1.80610 Каркас К5-6...К5-8 |
| Разработан: | ЦНИИпромзданий |
| Утверждён: | 06.07.1987 Министерство лесной, целлюлозно-бумажной и деревообрабатывающей промышленности СССР (USSR Ministry of the Wood, Wood Processing, Pulp and Paper Industries 106) |
| Издан: | ЦИТП Госстроя СССР (CITP, Gosstroy (USSR) 1986 г. ) |





































































































