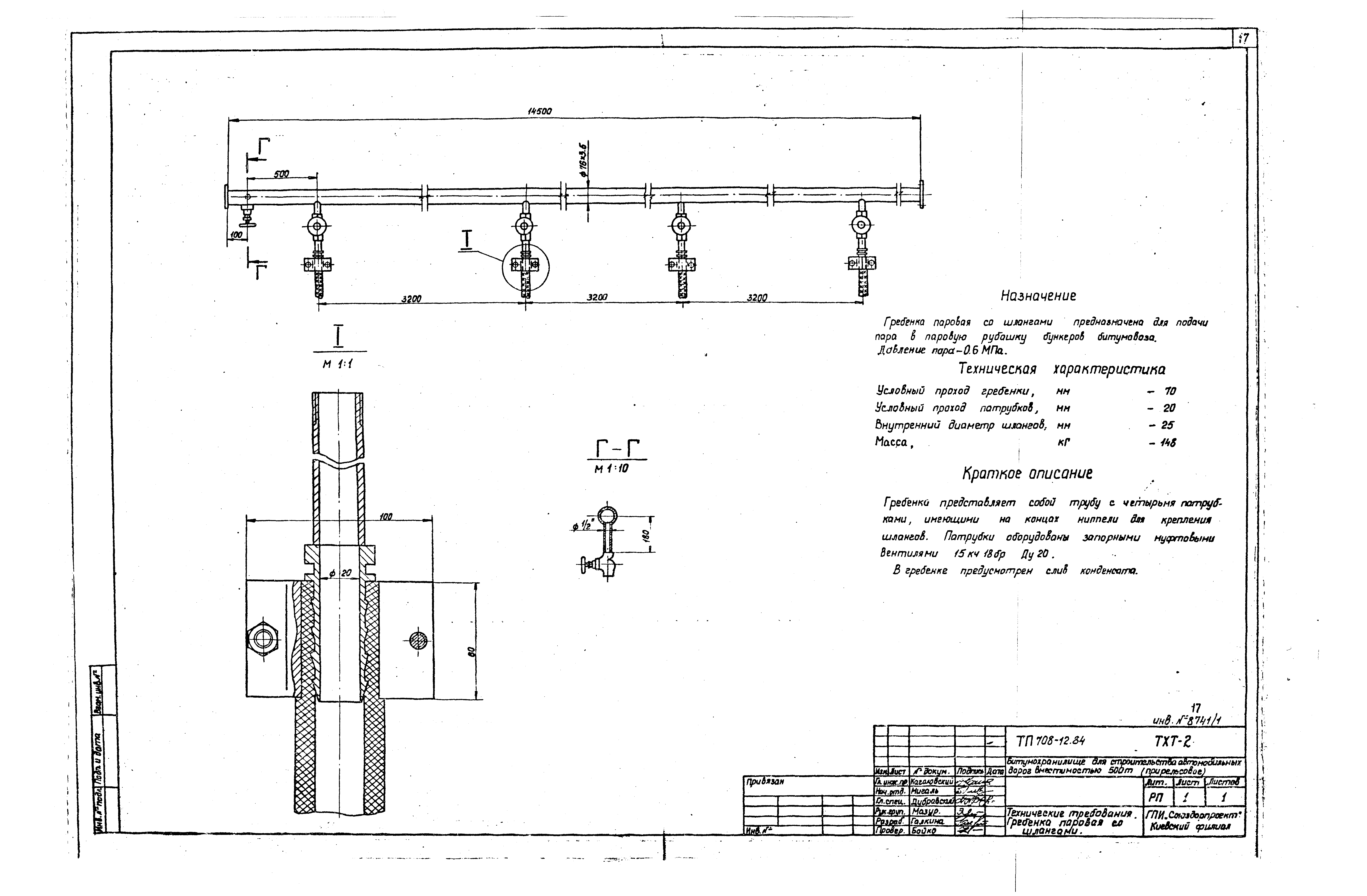
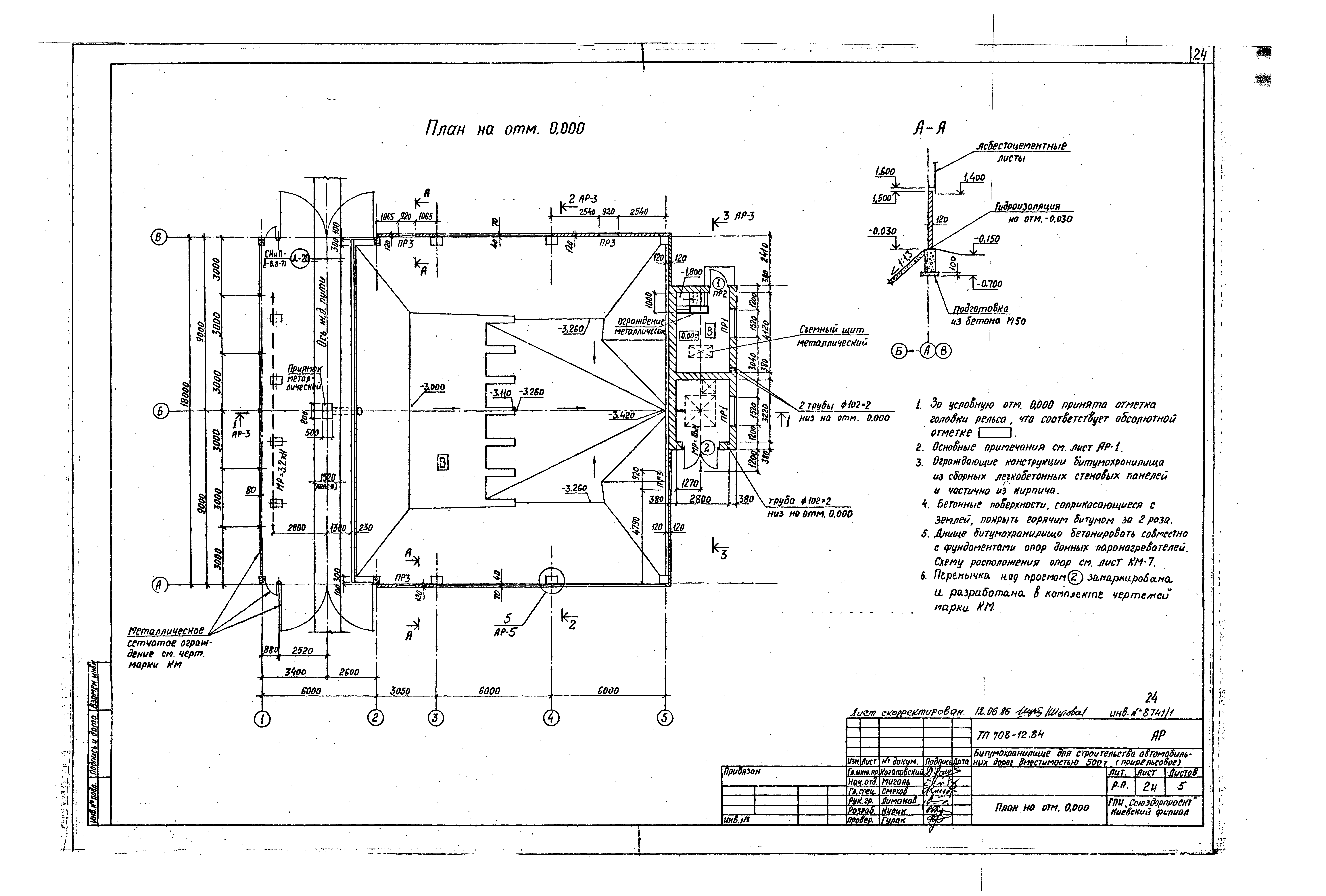
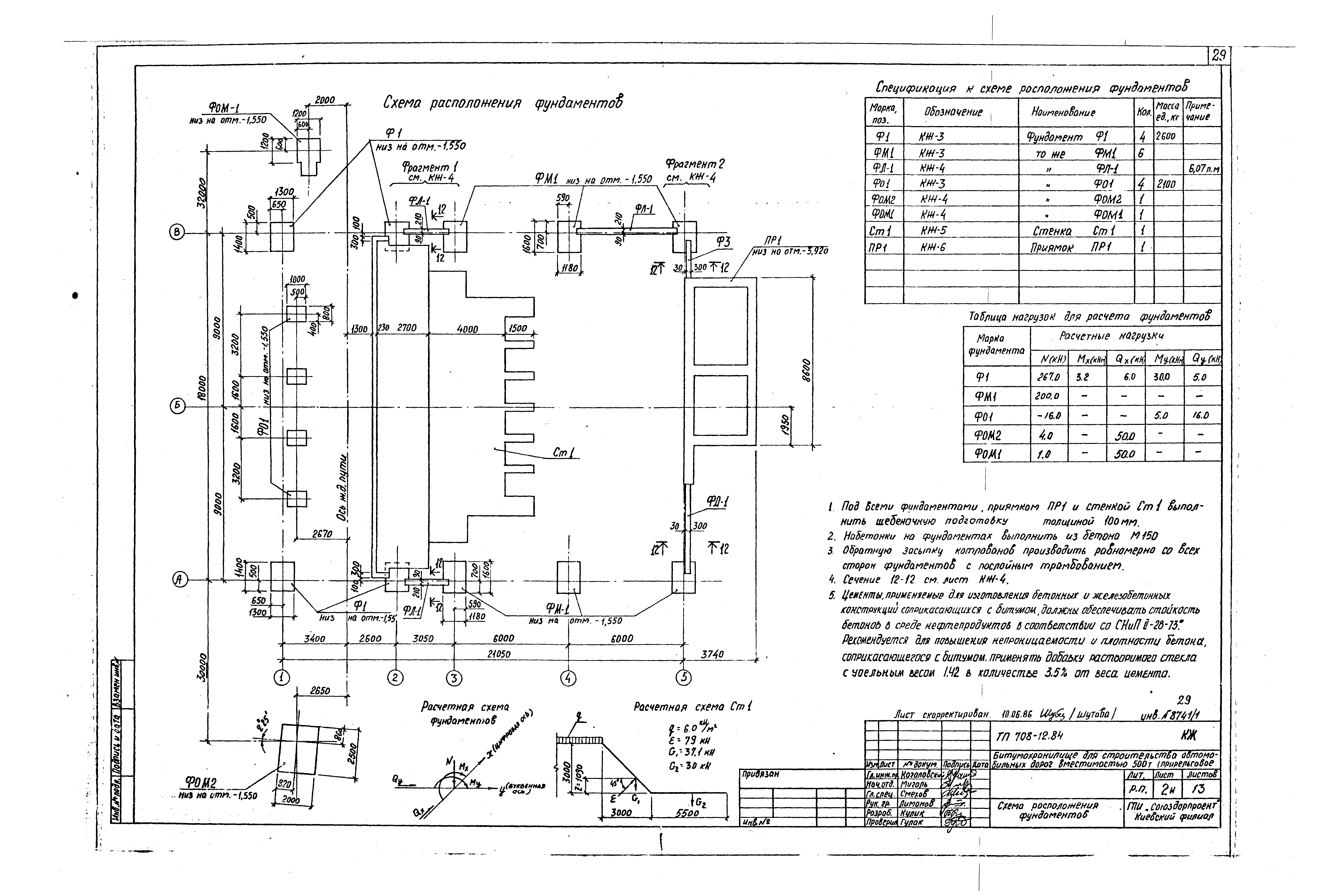
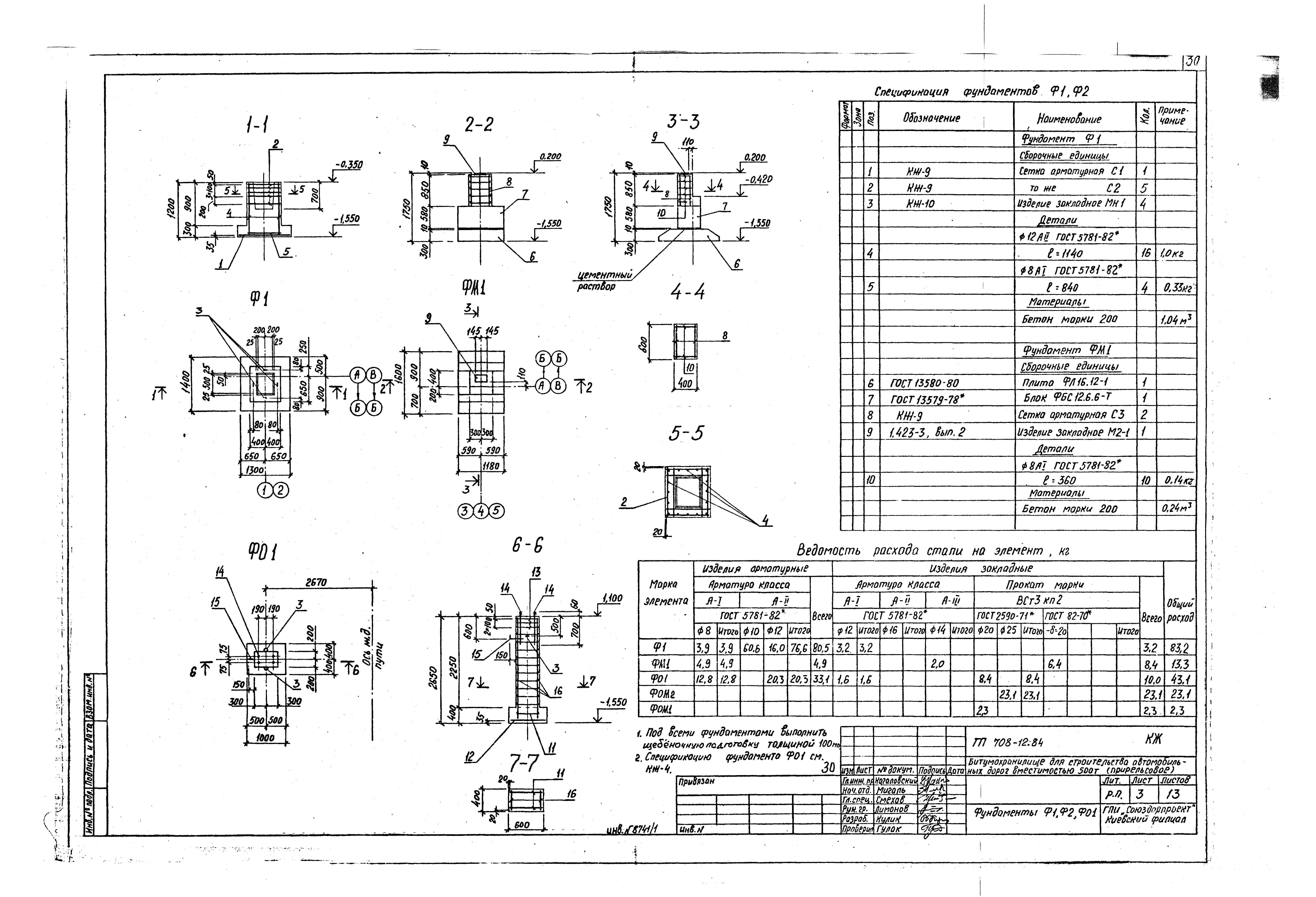
Скачать Типовой проект 708-12.84 Альбом I. Пояснительная записка. Технологическая, архитектурно-строительная и электротехническая частиДата актуализации: 01.01.2021 Типовой проект 708-12.84
Альбом I. Пояснительная записка. Технологическая, архитектурно-строительная и электротехническая части| Обозначение: | Типовой проект 708-12.84 | | Обозначение англ: | 708-12.84 | | Статус: | не определен законодательством | | Название рус.: | Альбом I. Пояснительная записка. Технологическая, архитектурно-строительная и электротехническая части | | Дата добавления в базу: | 01.09.2013 | | Дата актуализации: | 01.01.2021 | | Дата введения: | 01.09.1983 | | Дата окончания срока действия: | 30.06.2003 | | Разработан: | Киевский филиал Союздорпроекта
| | Утверждён: | 13.05.1983 Министерство транспортного строительства СССР (USSR Ministry of Transport Construction ЛН-587)
| | Издан: | ЦИТП Госстроя СССР (CITP, Gosstroy (USSR) 1988 г. )
|
                                                       
|