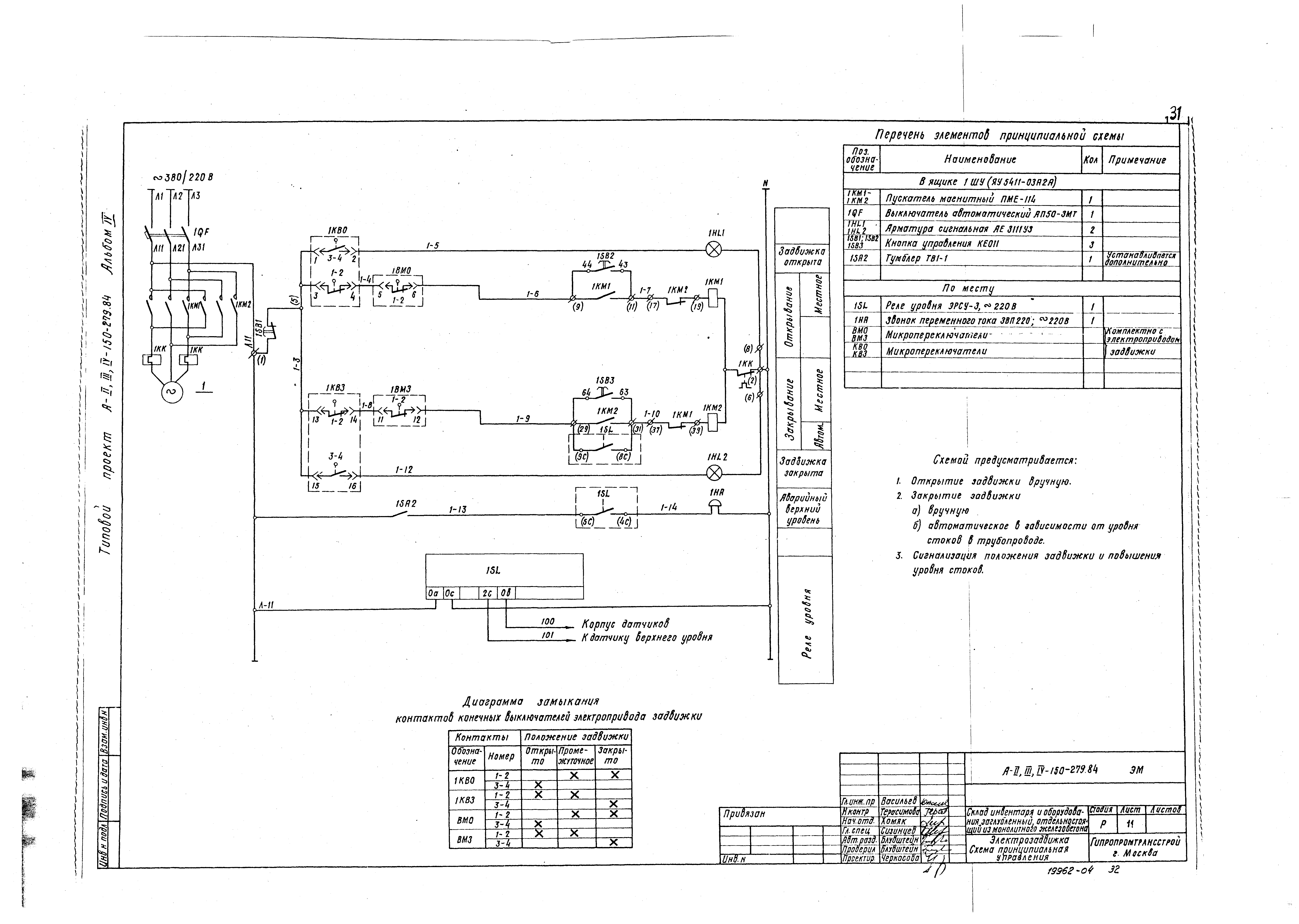
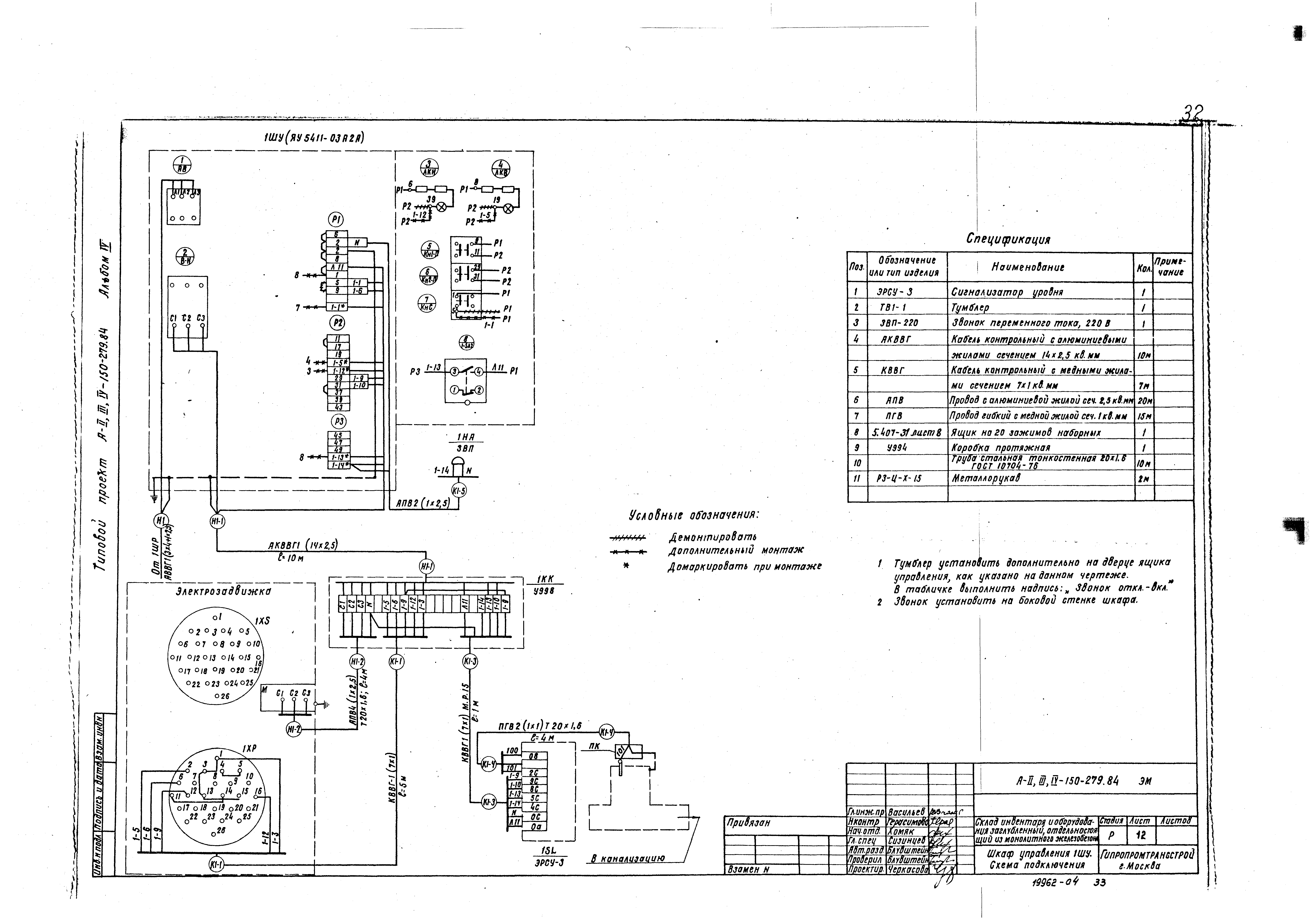
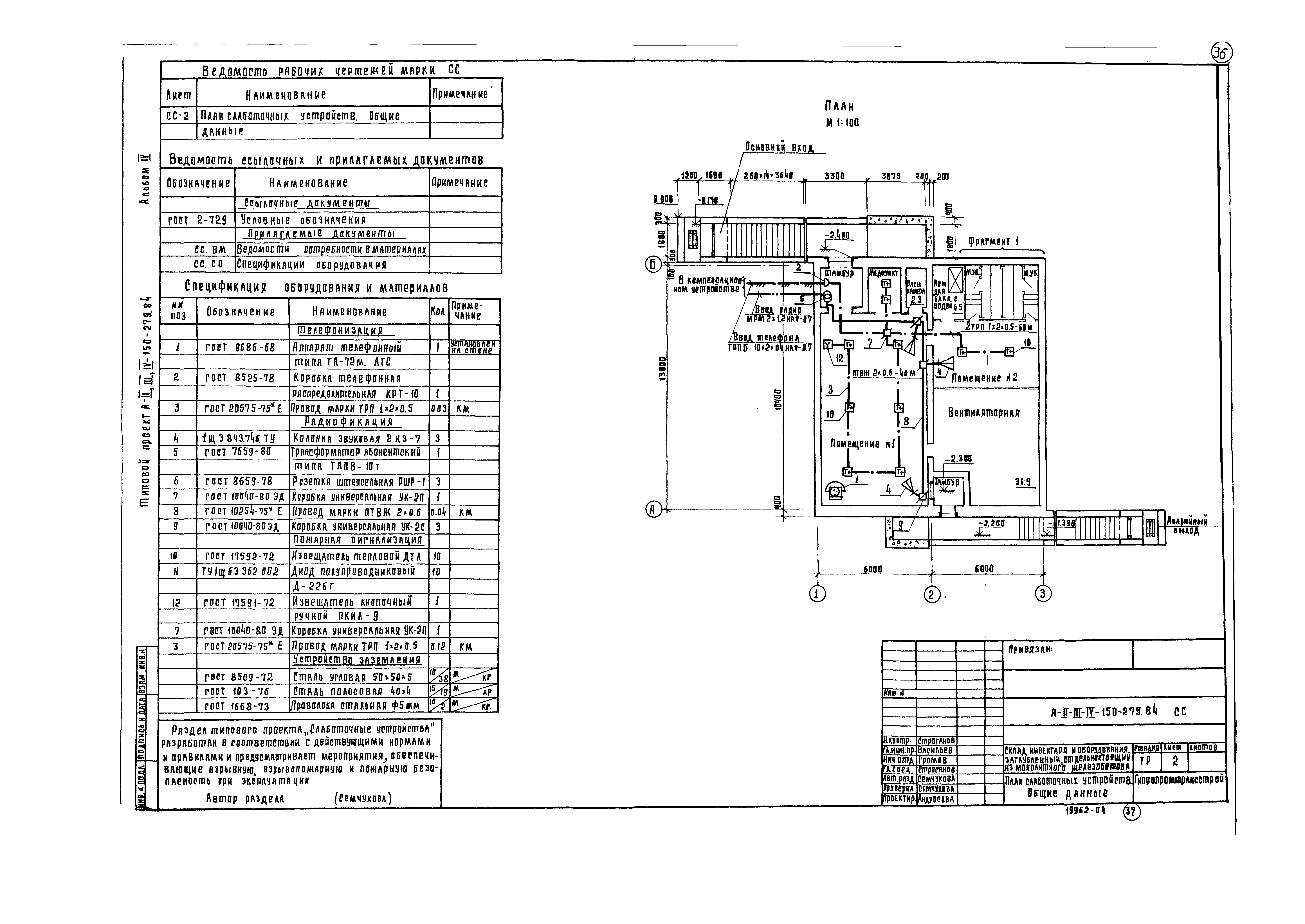
Скачать Типовой проект A-II,III,IV-150-279.84 Альбом IV. Отопление. Вентиляция. Внутренний водопровод и канализация. Энергоснабжение и слаботочные устройстваДата актуализации: 01.01.2021 Типовой проект A-II,III,IV-150-279.84
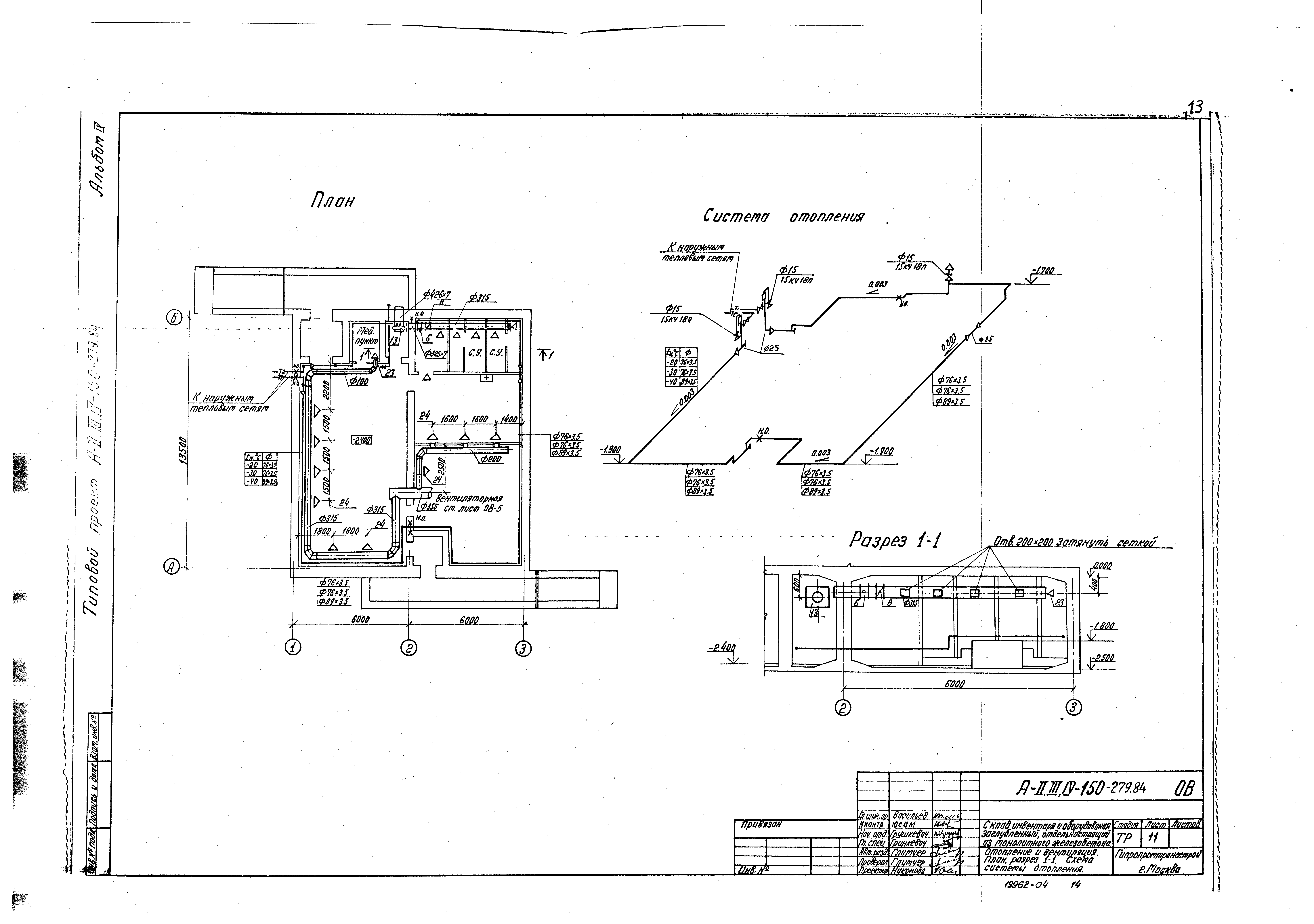
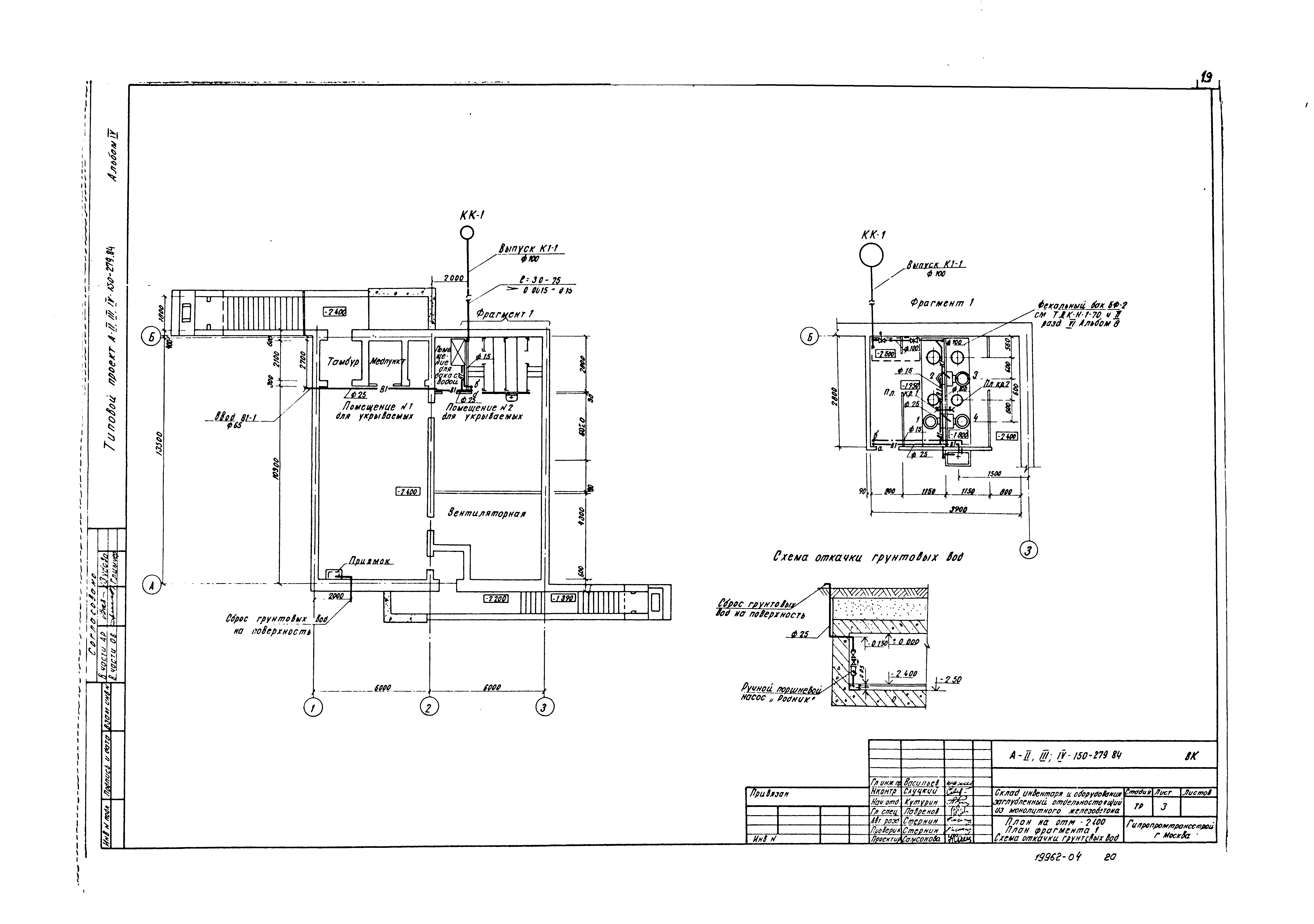
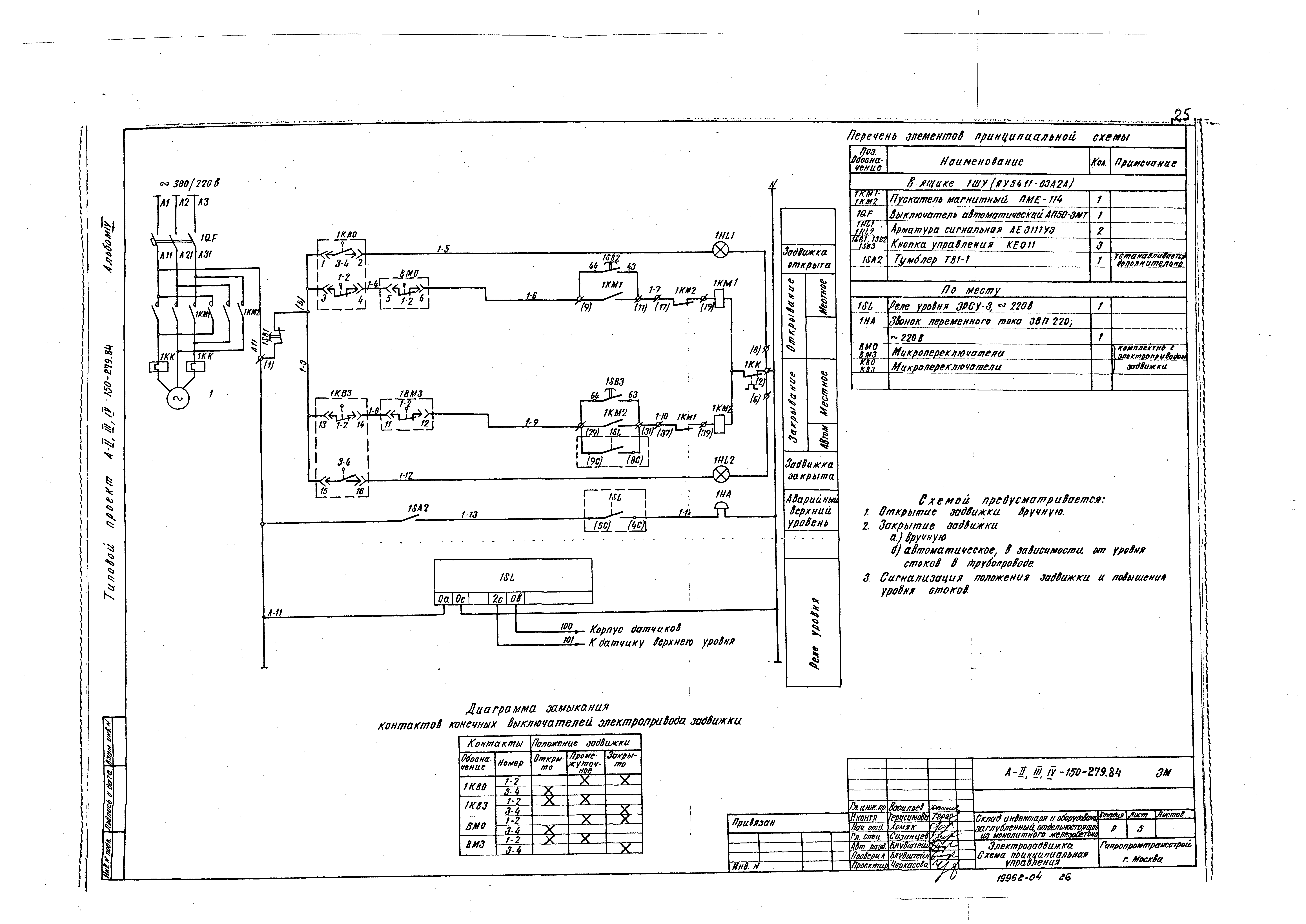
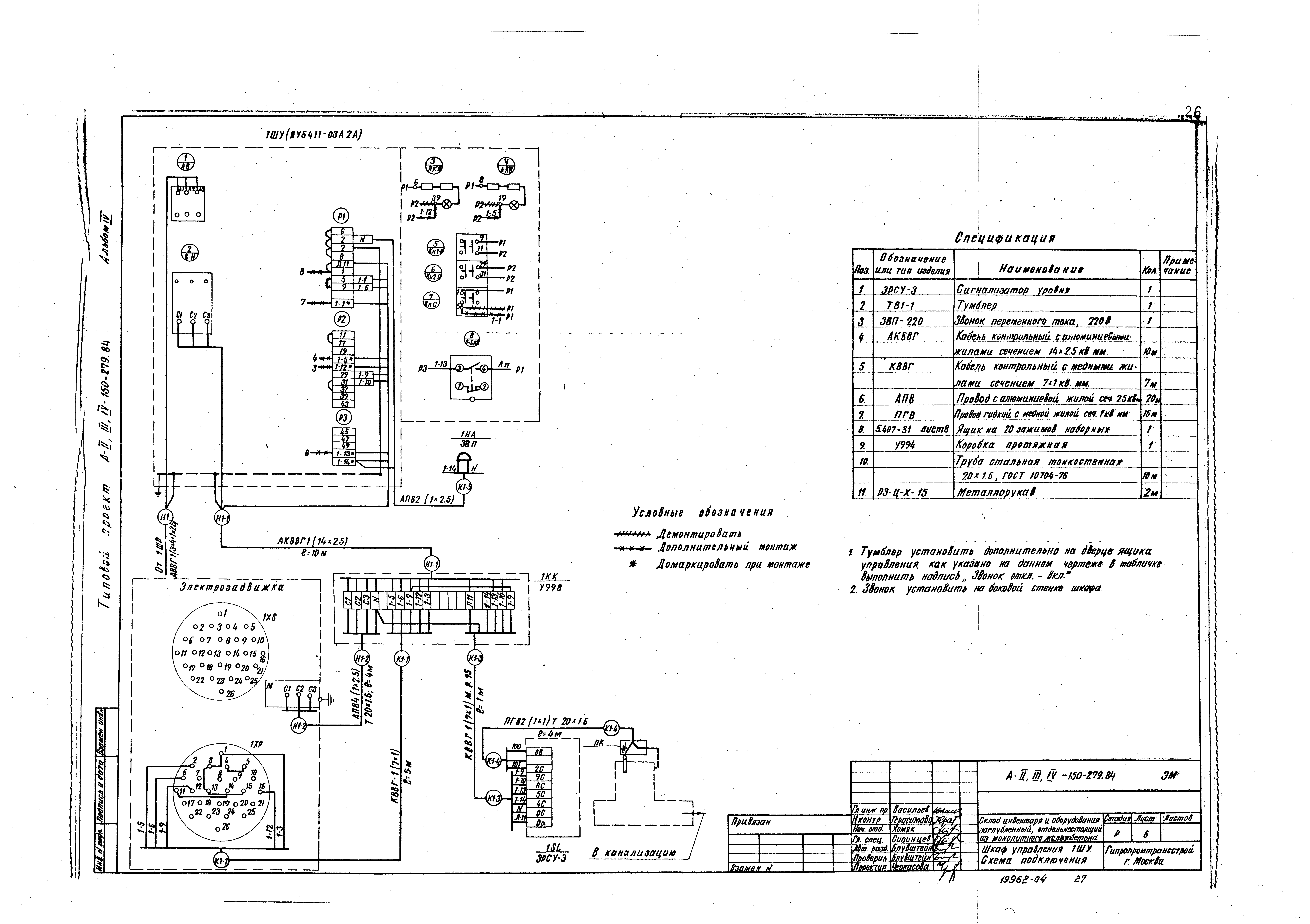
Альбом IV. Отопление. Вентиляция. Внутренний водопровод и канализация. Энергоснабжение и слаботочные устройства| Обозначение: | Типовой проект A-II,III,IV-150-279.84 | | Обозначение англ: | A-II,III,IV-150-279.84 | | Статус: | не определен законодательством | | Название рус.: | Альбом IV. Отопление. Вентиляция. Внутренний водопровод и канализация. Энергоснабжение и слаботочные устройства | | Дата добавления в базу: | 01.09.2013 | | Дата актуализации: | 01.01.2021 | | Дата введения: | 11.06.1984 | | Дата окончания срока действия: | 30.06.2003 | | Разработан: | Гипропромтрансстрой
| | Утверждён: | 09.12.1983 МПС (Ministry of Railroads М-38449)
| | Издан: | ЦИТП Госстроя СССР (CITP, Gosstroy (USSR) 1987 г. )
|
                                   
|