Скачать Шифр 05-10447КМ Светоаэрационный фонарь ГПИ ЛенПСК. Чертежи КМ

Дата актуализации: 01.01.2021

Шифр 05-10447КМ

Светоаэрационный фонарь "ГПИ ЛенПСК". Чертежи КМ

Обозначение: Шифр 05-10447КМ
Обозначение англ: 05-10447КМ
Статус:не определен законодательством
Название рус.:Светоаэрационный фонарь "ГПИ ЛенПСК". Чертежи КМ
Дата добавления в базу:01.09.2013
Дата актуализации:01.01.2021
Дата введения:21.01.1994
Дата окончания срока действия:30.06.2003
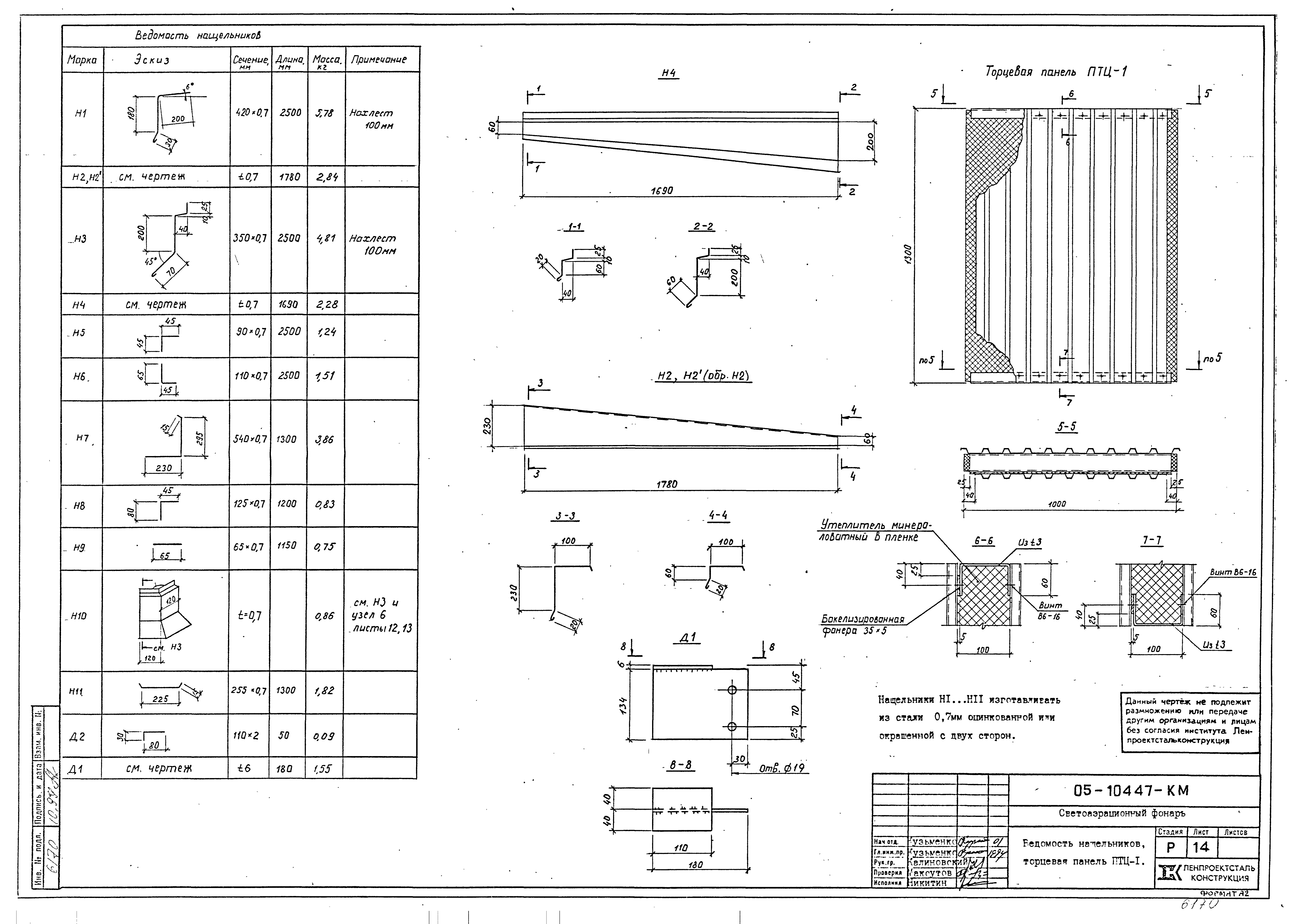
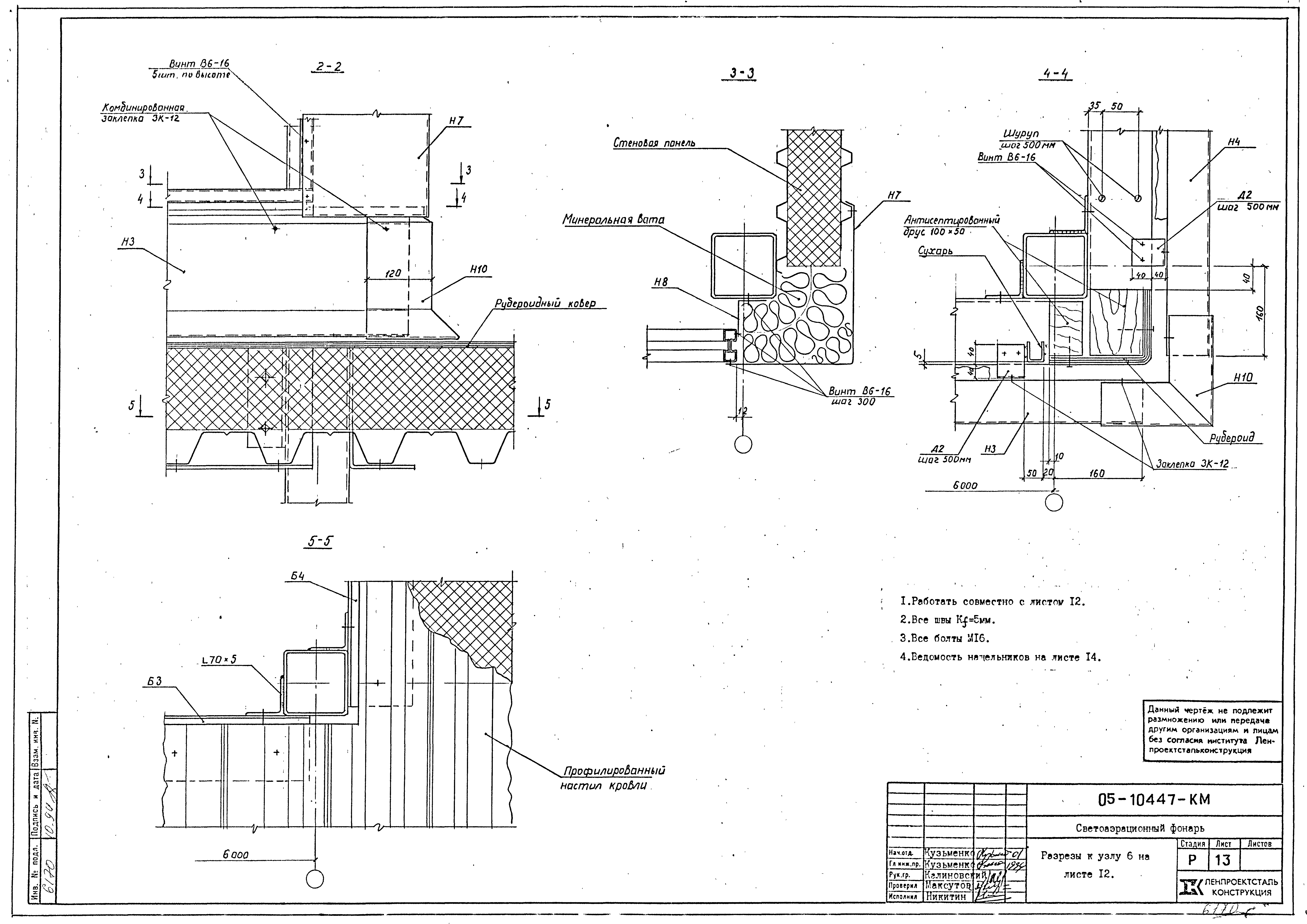
Область применения:Светоаэрационный фонарь предназначен преимущественно для промышленных зданий из легких металлоконструкций
Разработан: ГПИ Ленпроектстальконструкция
Утверждён:21.01.1994 ГПИ Ленпроектстальконструкция (Lenprojectstalkonstruktsiya GPI 1)
Шифр 05-10447КМШифр 05-10447КМШифр 05-10447КМШифр 05-10447КМШифр 05-10447КМШифр 05-10447КМШифр 05-10447КМШифр 05-10447КМШифр 05-10447КМШифр 05-10447КМШифр 05-10447КМШифр 05-10447КМШифр 05-10447КМШифр 05-10447КМШифр 05-10447КМШифр 05-10447КМШифр 05-10447КМ