Скачать Типовой проект 807-11-1 Альбом II. Часть 2. Архитектурно-строительные решения. Конструкции железобетонные. Вариант здания с кирпичными стенами

Дата актуализации: 01.01.2021

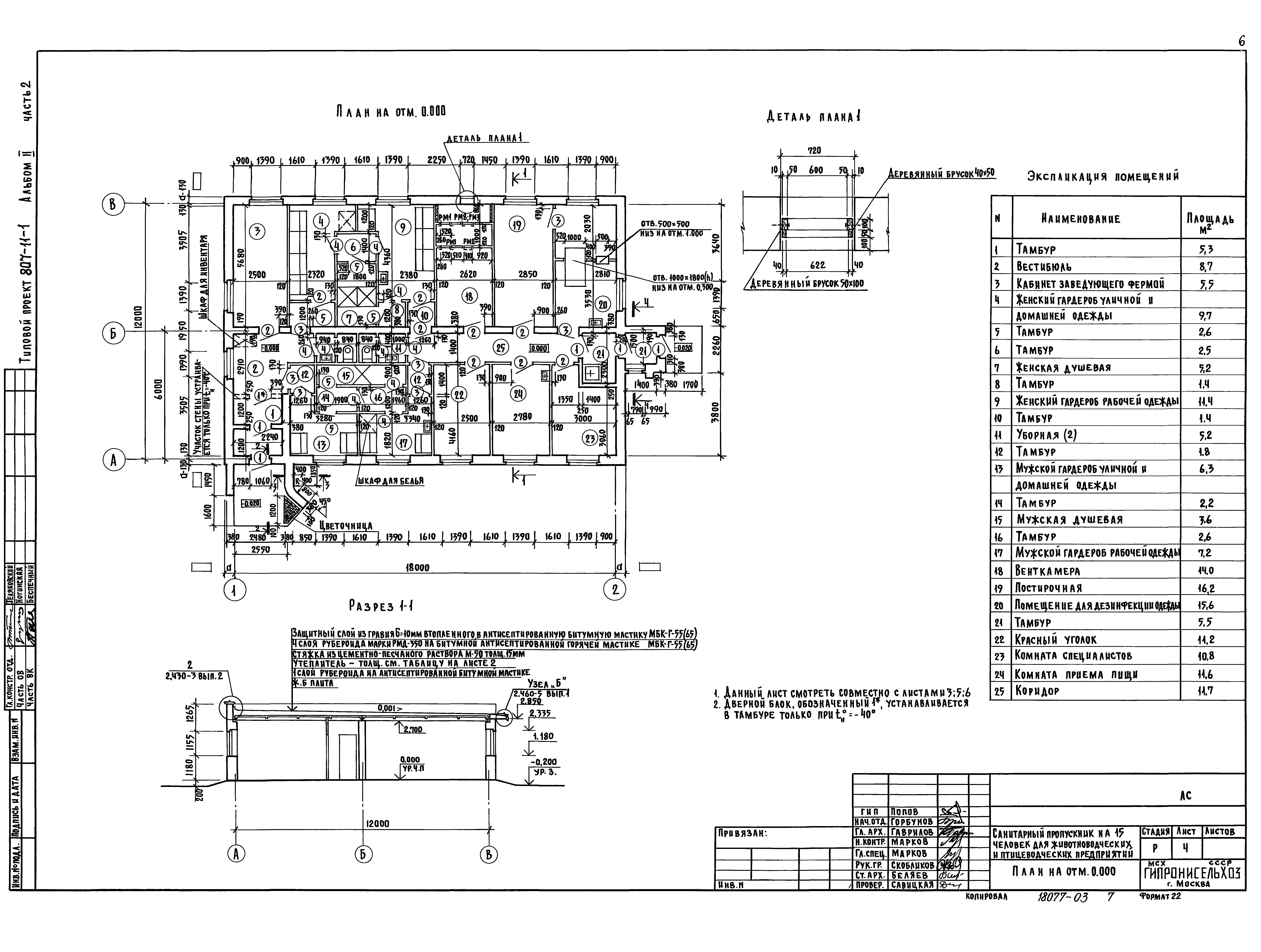
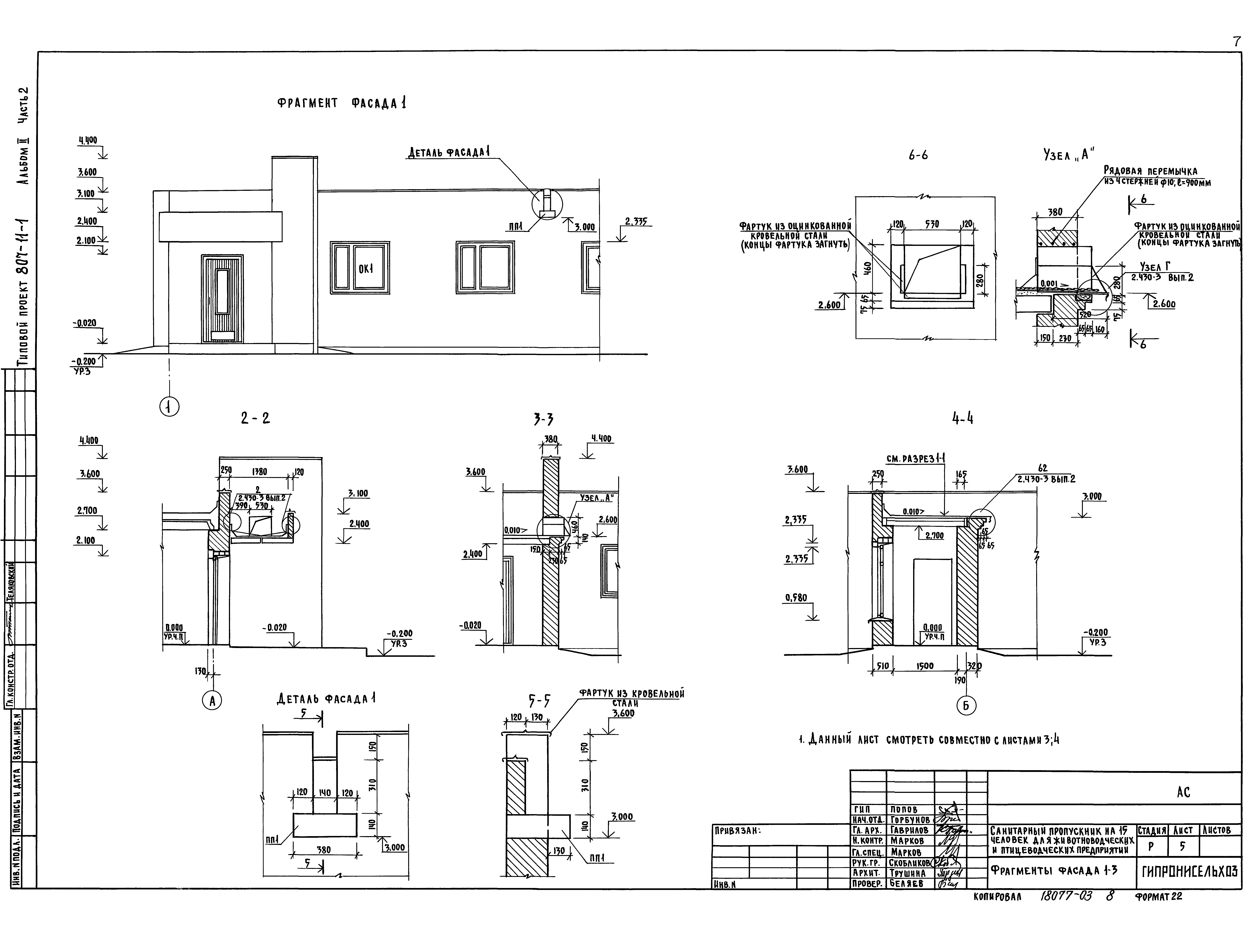
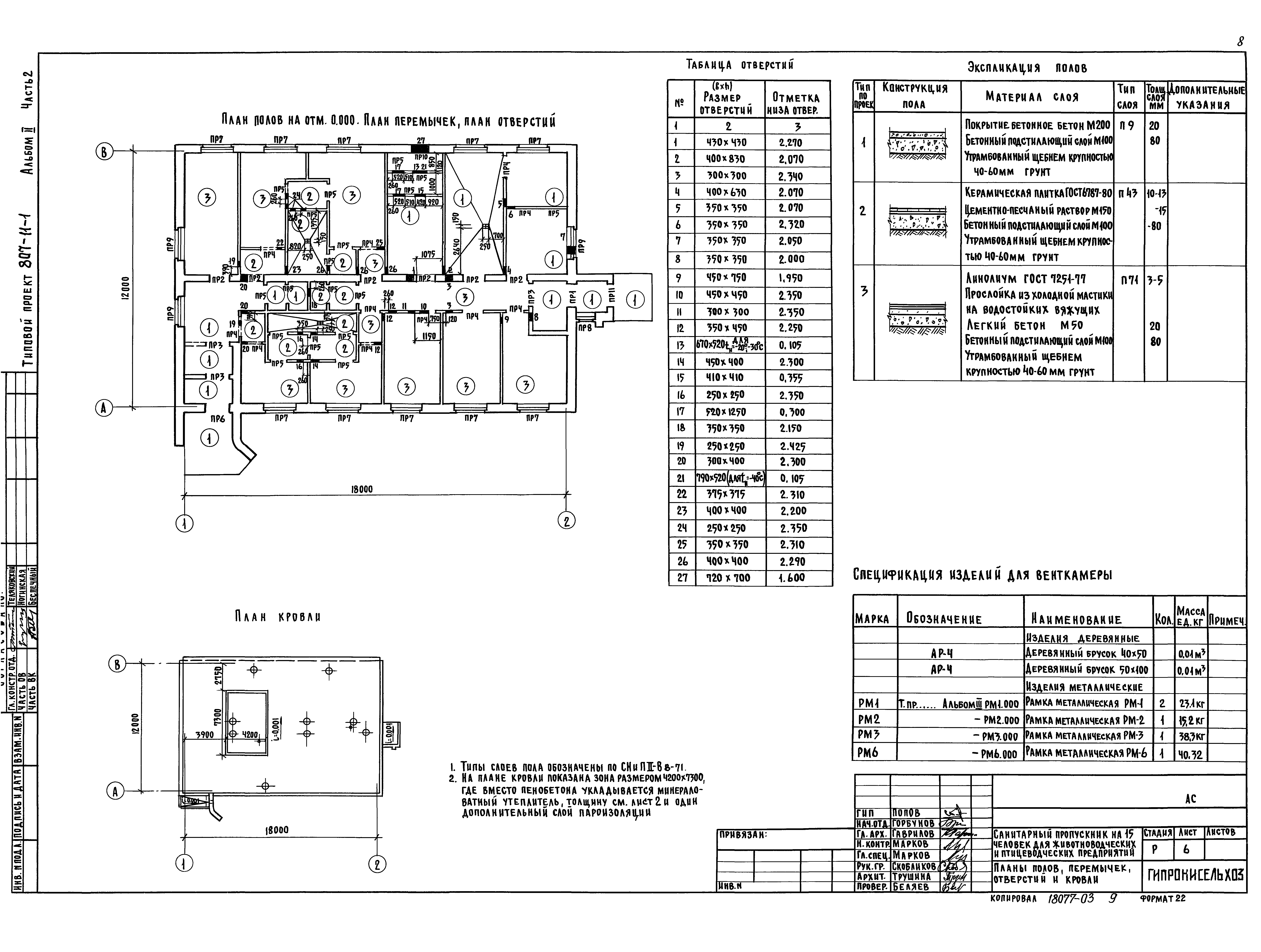
Типовой проект 807-11-1

Альбом II. Часть 2. Архитектурно-строительные решения. Конструкции железобетонные. Вариант здания с кирпичными стенами

Обозначение: Типовой проект 807-11-1
Обозначение англ: 807-11-1
Статус:не определен законодательством
Название рус.:Альбом II. Часть 2. Архитектурно-строительные решения. Конструкции железобетонные. Вариант здания с кирпичными стенами
Дата добавления в базу:01.09.2013
Дата актуализации:01.01.2021
Дата введения:21.09.1981
Дата окончания срока действия:30.06.2003
Разработан: ГипроНИсельхоз (Институт Гипронисельхоз )
Утверждён:13.07.1981 Главсельстройпроект Минсельхоза СССР (Glavselstroyproject, USSR Minselkhoz 63)
Типовой проект 807-11-1Типовой проект 807-11-1Типовой проект 807-11-1Типовой проект 807-11-1Типовой проект 807-11-1Типовой проект 807-11-1Типовой проект 807-11-1Типовой проект 807-11-1Типовой проект 807-11-1Типовой проект 807-11-1Типовой проект 807-11-1