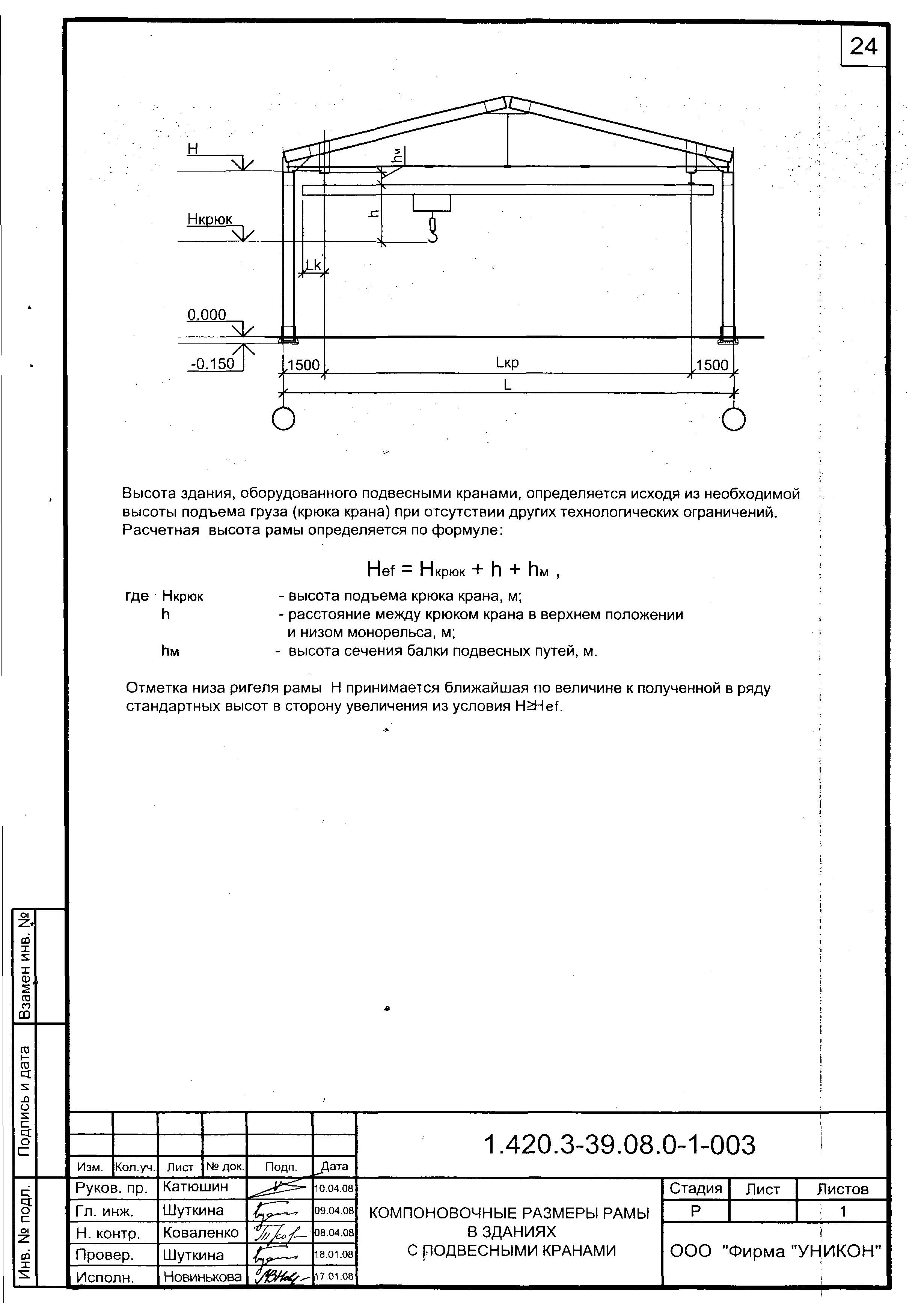
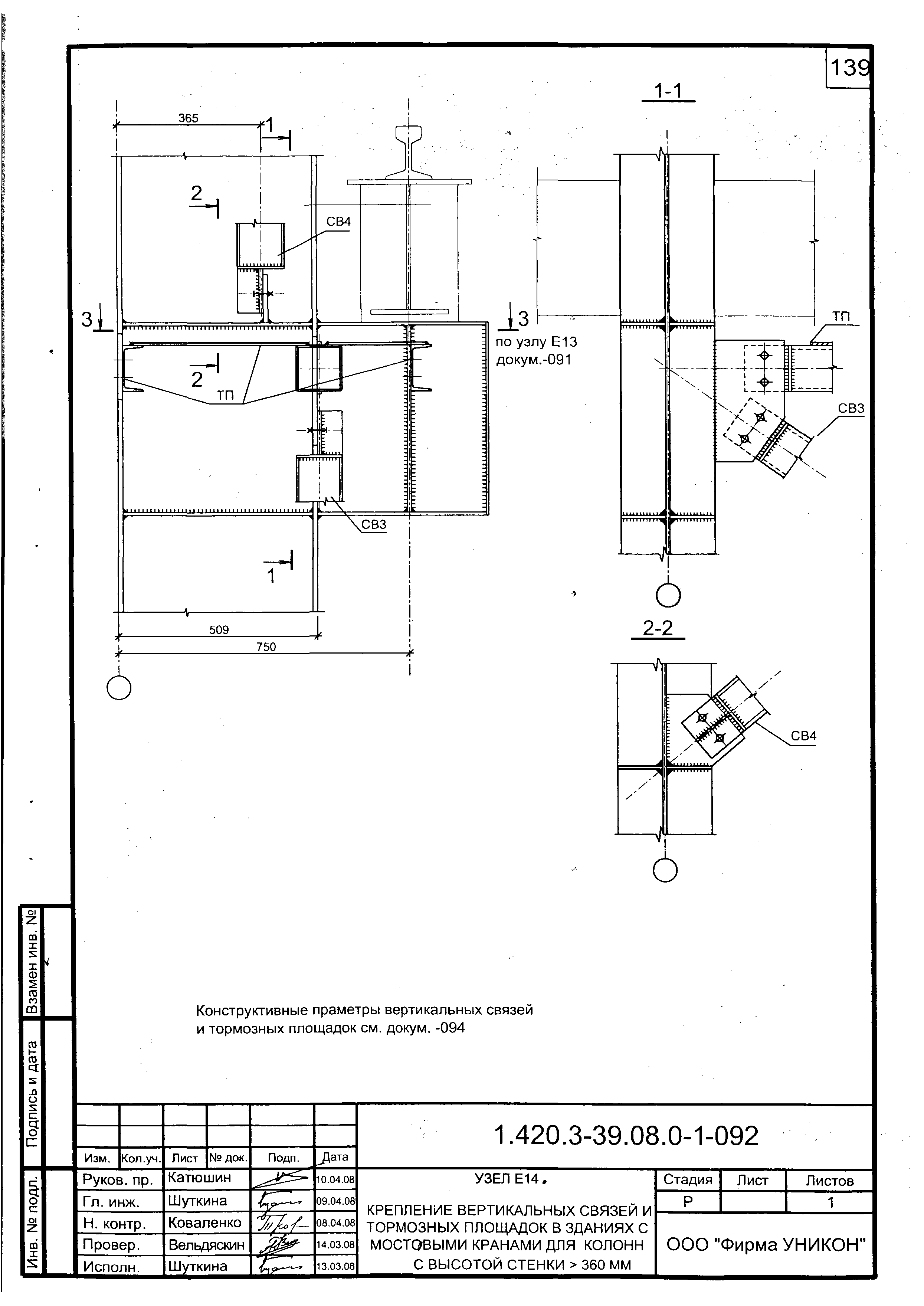
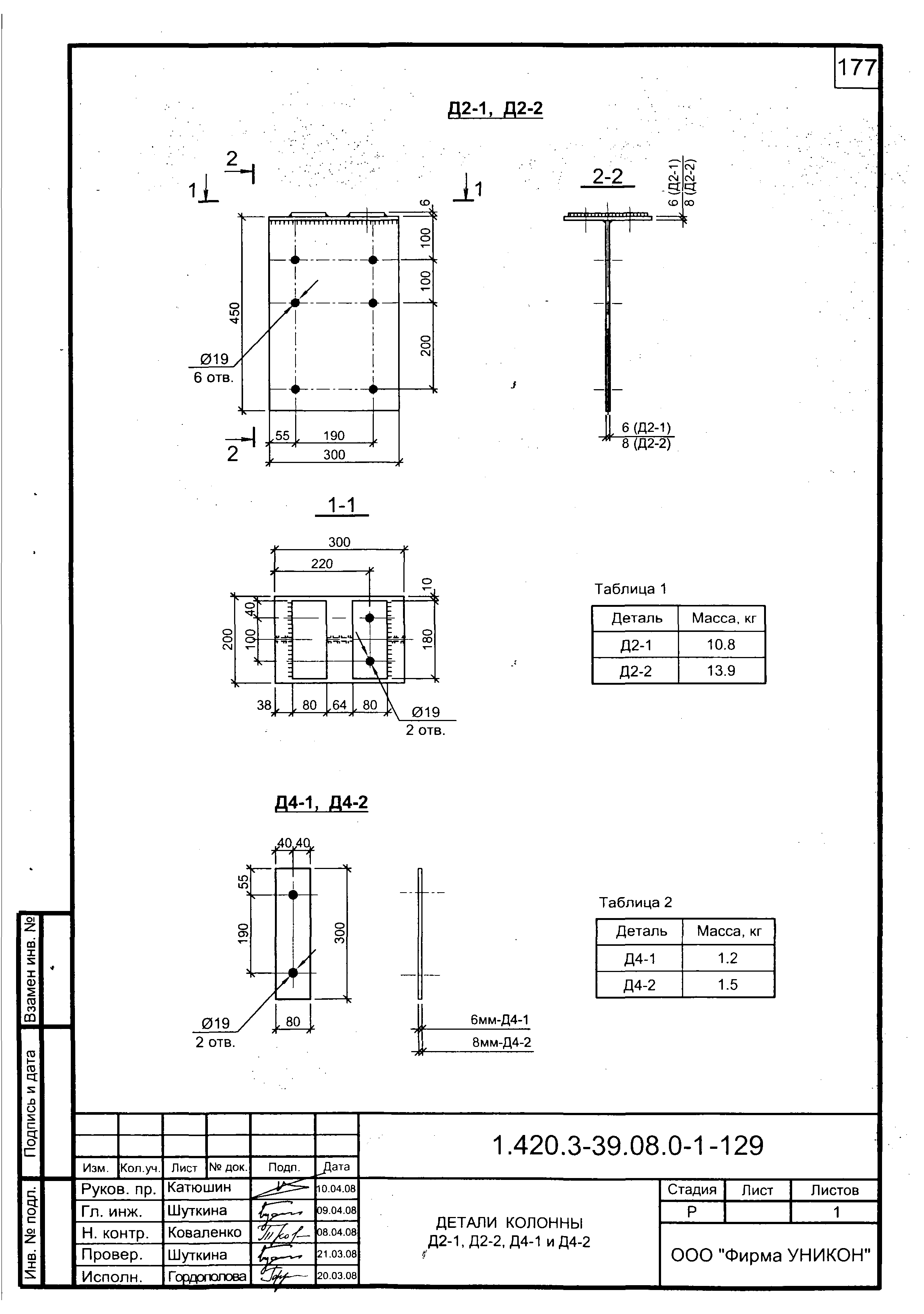
Скачать Серия 1.420.3-39.08 Выпуск 0-1. Каркасы одноэтажных производственных зданий с применением однопролетных рам из гнутых (в том числе оцинкованных) профилей пролетами 9, 12, 15, 18 и 21 м для бескрановых зданий, зданий с подвесными мостовыми кранами грузоподъемностью 1,2 т и зданий с опорными мостовыми кранами грузоподъемностью 5, 10, 16 т. Материалы для проектированияДата актуализации: 01.01.2021 Серия 1.420.3-39.08
Выпуск 0-1. Каркасы одноэтажных производственных зданий с применением однопролетных рам из гнутых (в том числе оцинкованных) профилей пролетами 9, 12, 15, 18 и 21 м для бескрановых зданий, зданий с подвесными мостовыми кранами грузоподъемностью 1,2 т и зданий с опорными мостовыми кранами грузоподъемностью 5, 10, 16 т. Материалы для проектирования| Обозначение: | Серия 1.420.3-39.08 | | Обозначение англ: | Series 1.420.3-39.08 | | Статус: | не определен законодательством | | Название рус.: | Выпуск 0-1. Каркасы одноэтажных производственных зданий с применением однопролетных рам из гнутых (в том числе оцинкованных) профилей пролетами 9, 12, 15, 18 и 21 м для бескрановых зданий, зданий с подвесными мостовыми кранами грузоподъемностью 1,2 т и зданий с опорными мостовыми кранами грузоподъемностью 5, 10, 16 т. Материалы для проектирования | | Дата добавления в базу: | 01.09.2013 | | Дата актуализации: | 01.01.2021 | | Дата введения: | 30.06.2003 | | Разработан: | ООО Научно-исследовательская и проектно-строительная фирма УНИКОН
| | Утверждён: | 05.06.2008 ООО Строй-Гарант (2)
| | Издан: | Информационный бюллетень о нормативной, методической и типовой проектной документации ФГУП ЦПП (2008 г. (9))
|
                                                                                                                                                                                                      
|