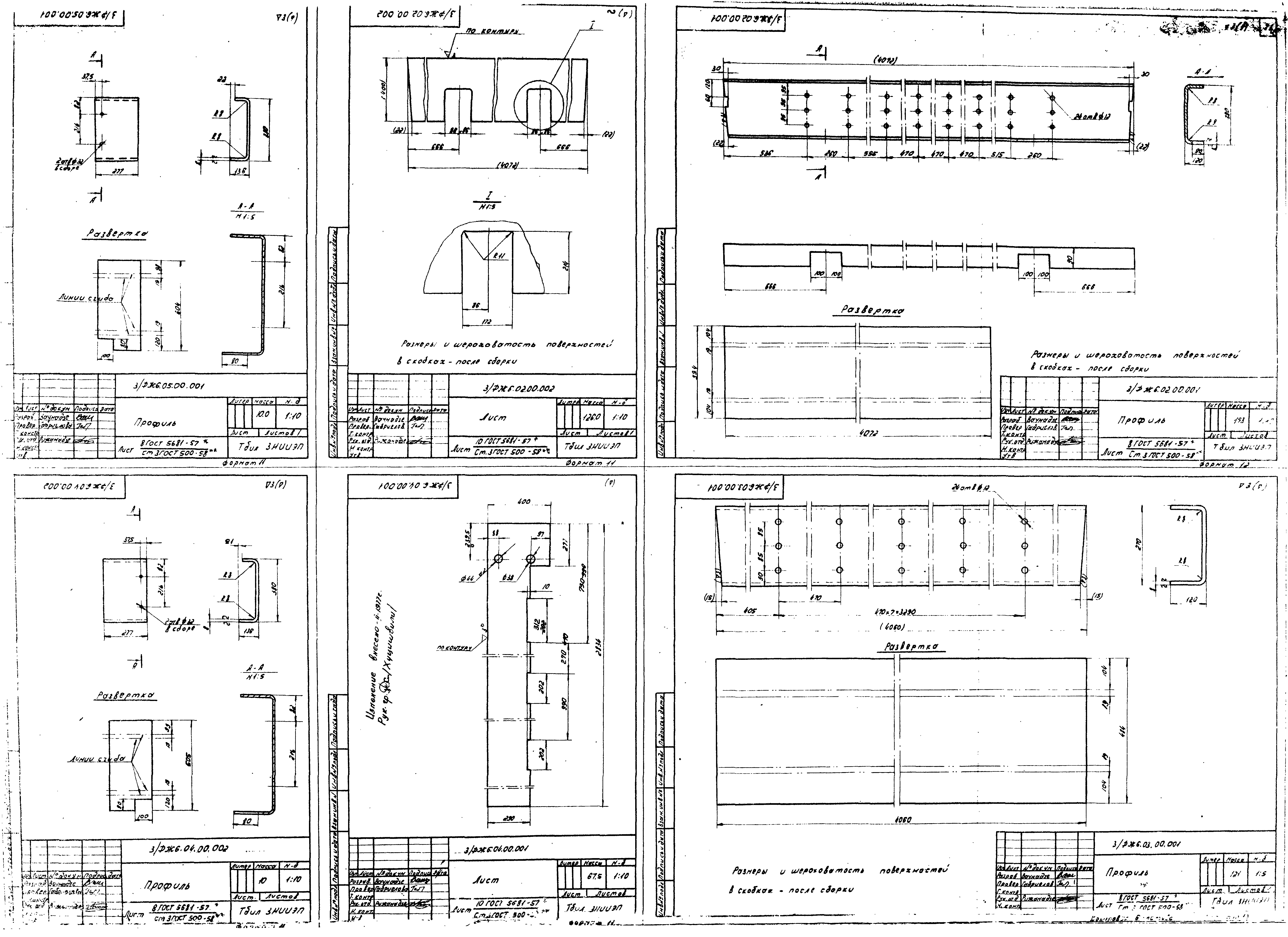
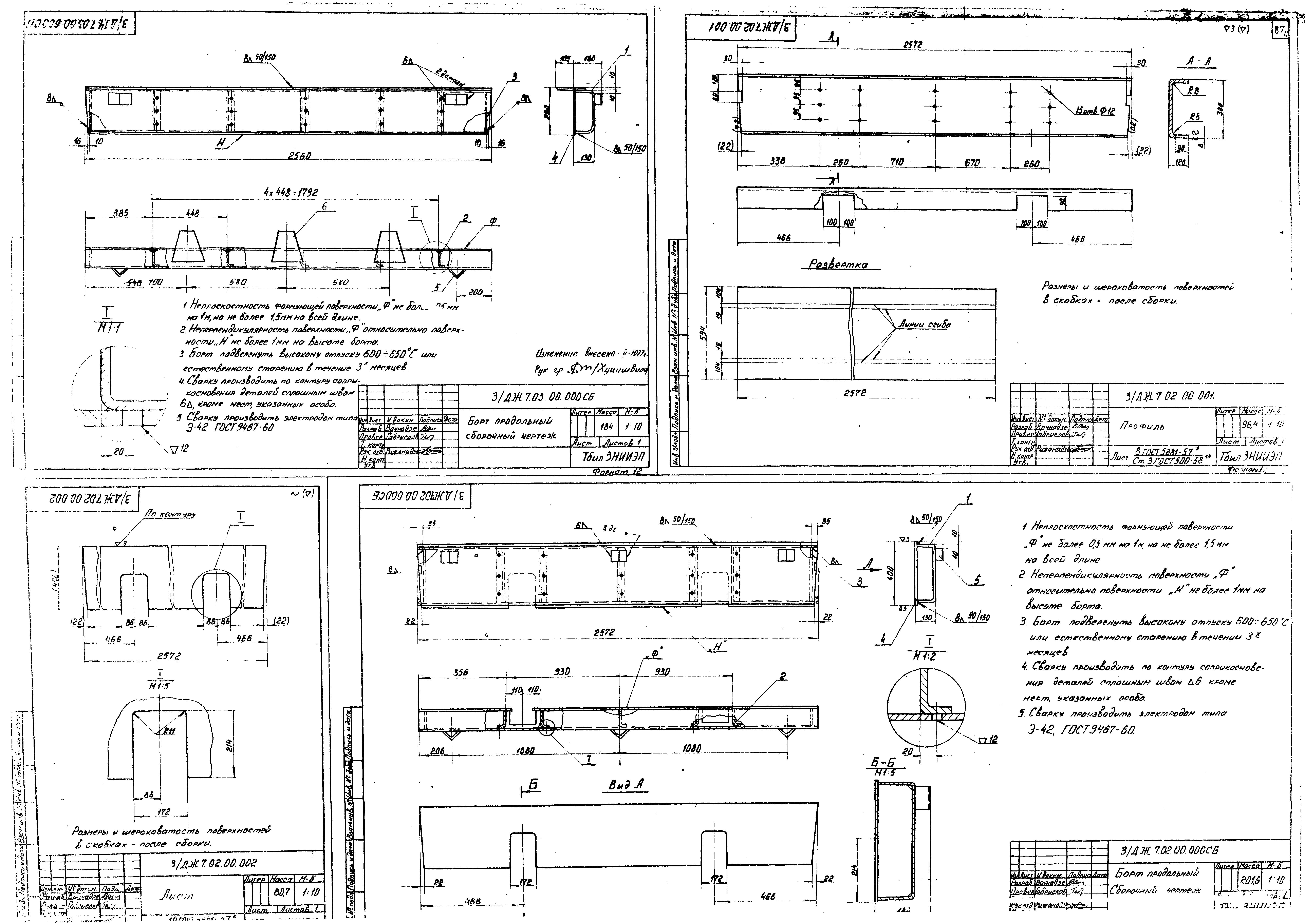
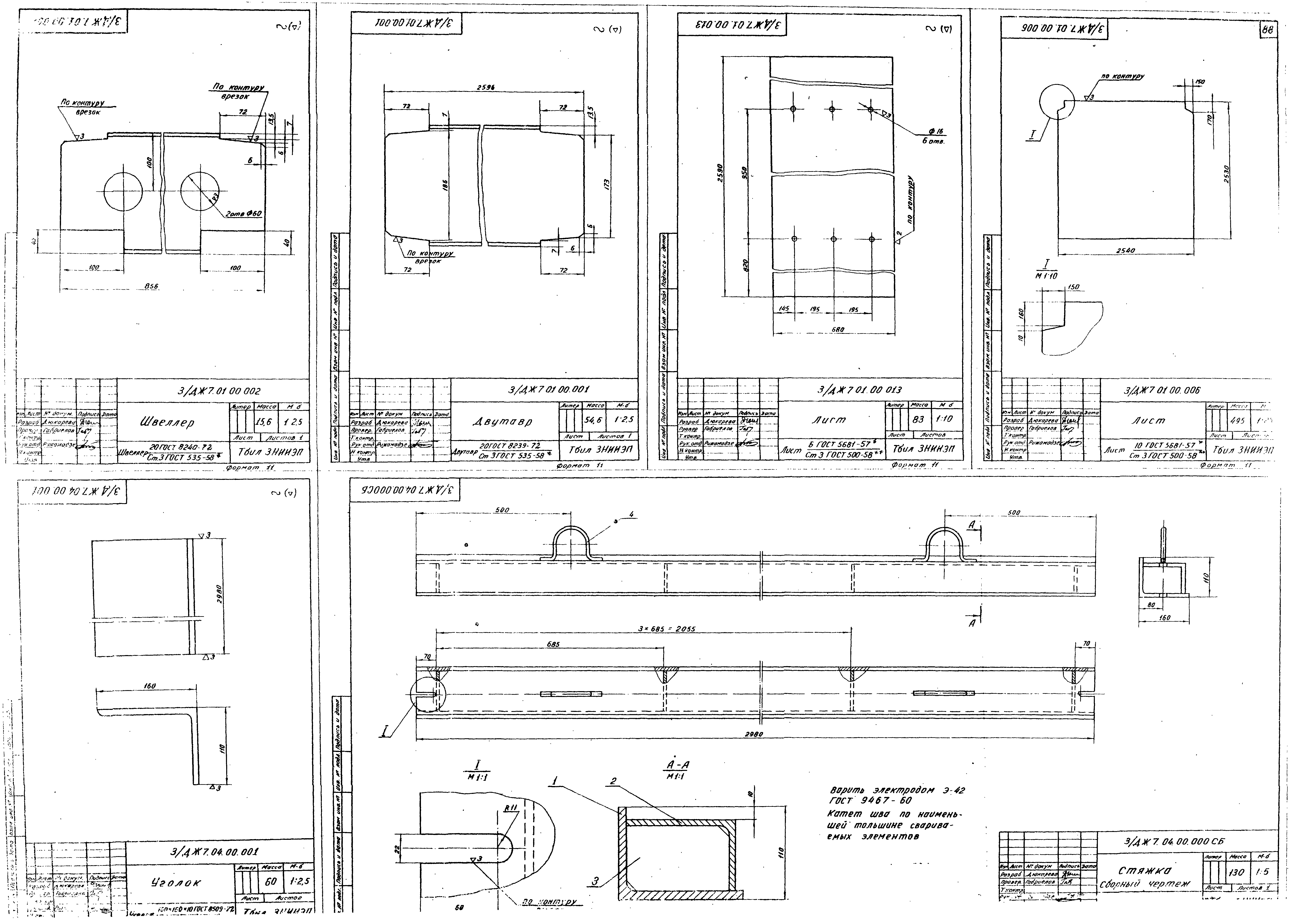
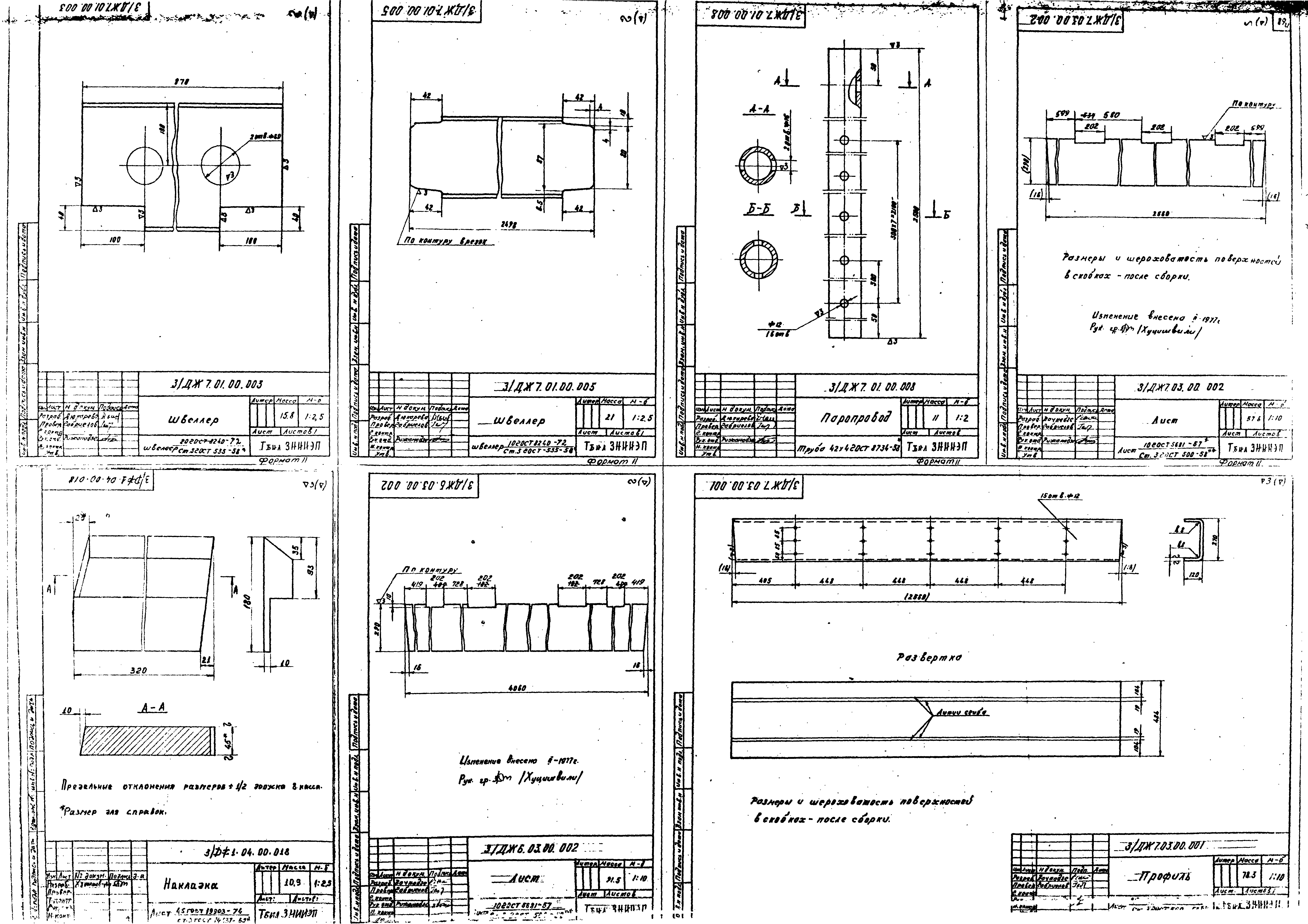
Скачать Серия ИИС-04-6 Выпуск 3-1. Стальные формы для изготовления железобетонных диафрагм для зданий при высоте этажа 2,8 мДата актуализации: 01.01.2021 Серия ИИС-04-6
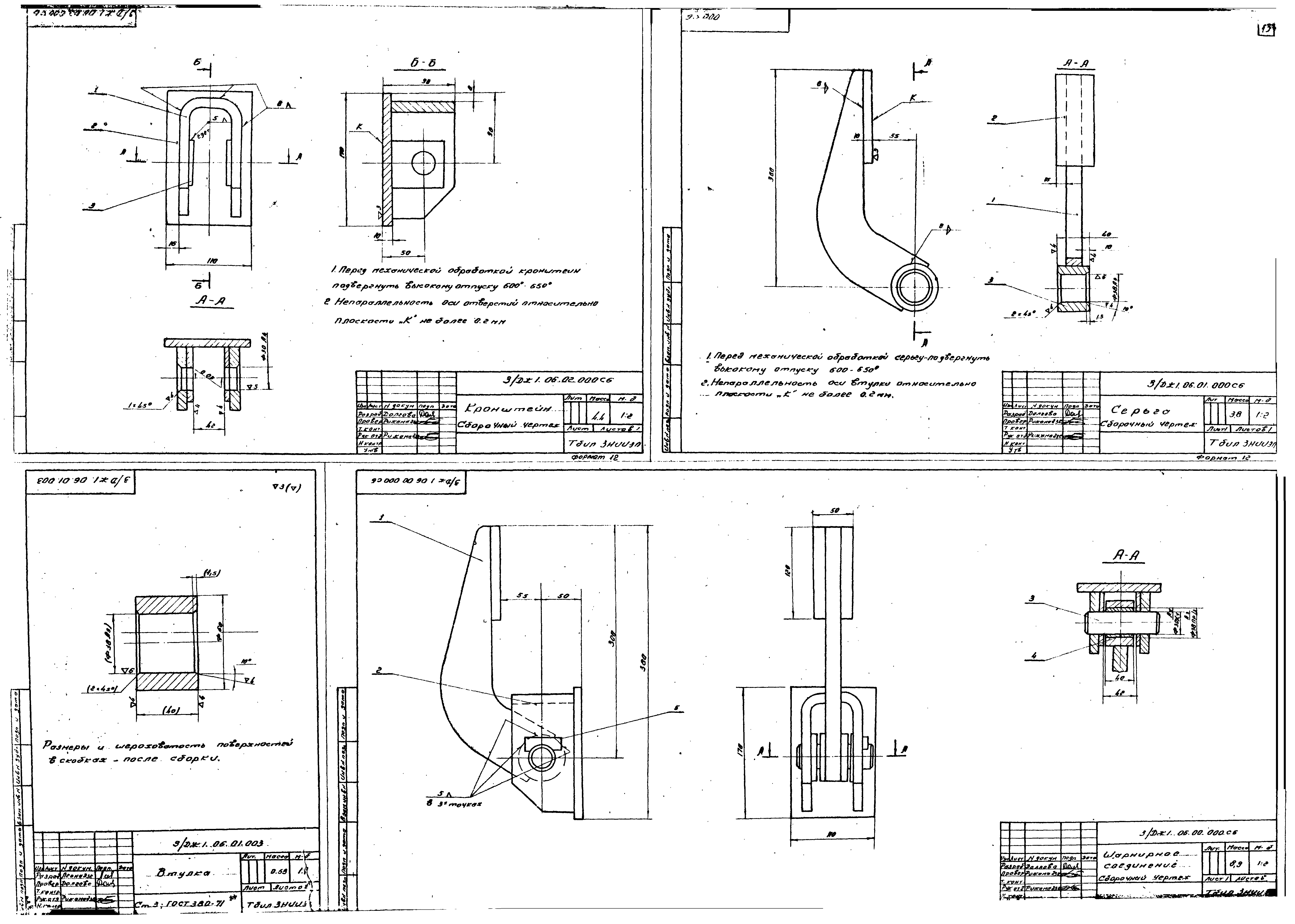
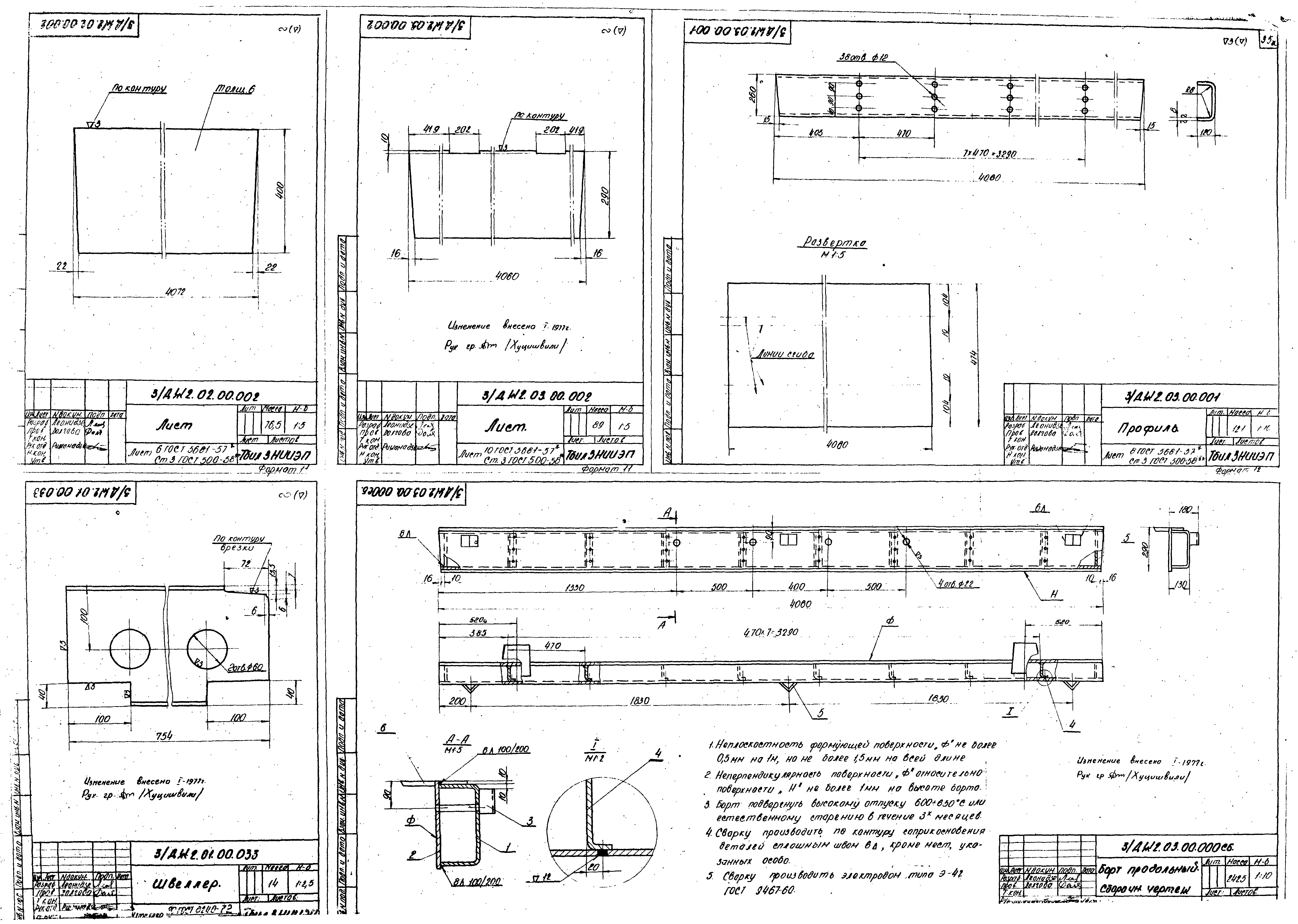
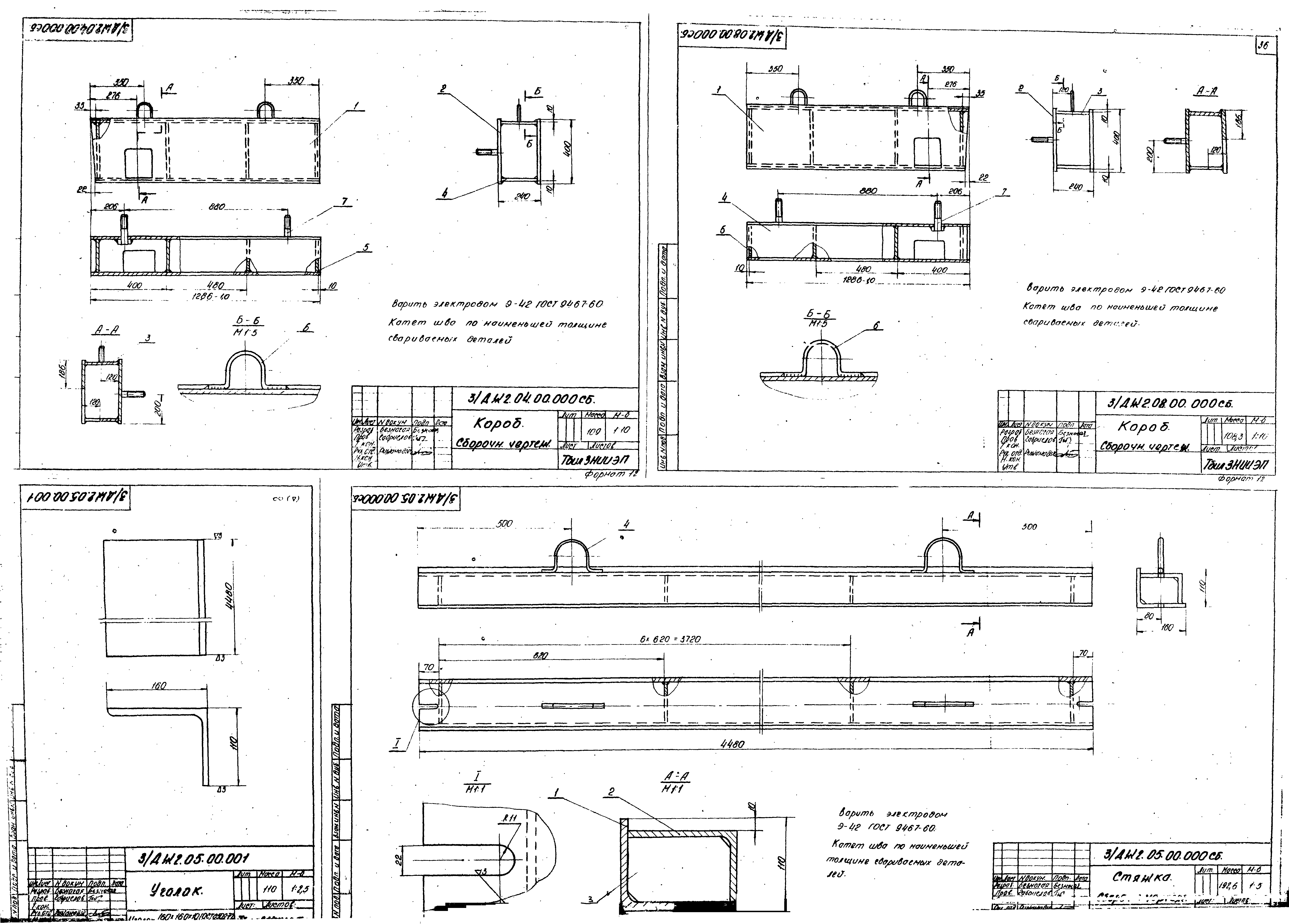
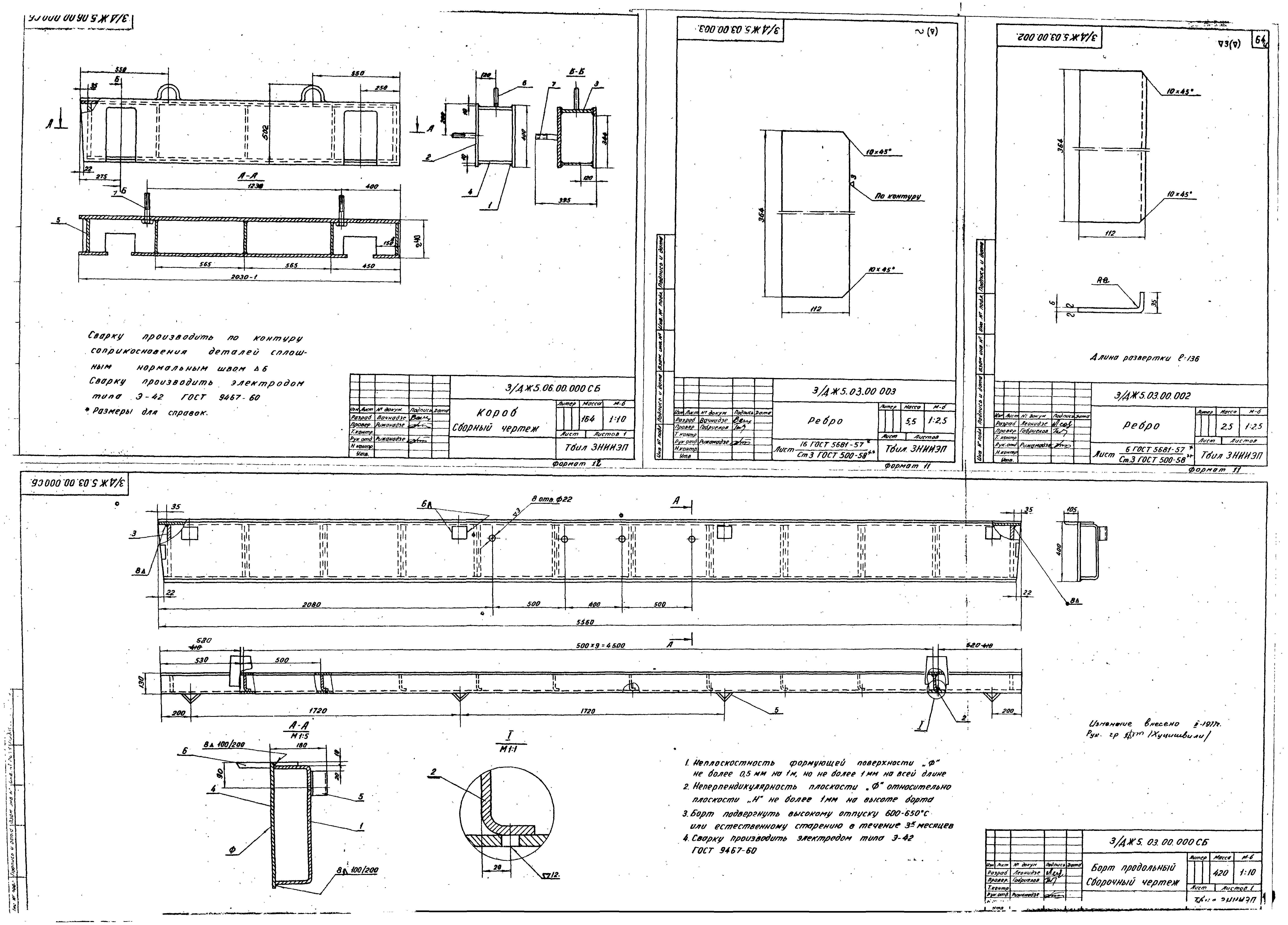
Выпуск 3-1. Стальные формы для изготовления железобетонных диафрагм для зданий при высоте этажа 2,8 м| Обозначение: | Серия ИИС-04-6 | | Обозначение англ: | Series ИИС-04-6 | | Статус: | не действует | | Название рус.: | Выпуск 3-1. Стальные формы для изготовления железобетонных диафрагм для зданий при высоте этажа 2,8 м | | Дата добавления в базу: | 01.09.2013 | | Дата актуализации: | 01.01.2021 | | Дата окончания срока действия: | 01.02.1983 | | Разработан: | ТбилЗНИИЭП
| | Утверждён: | 28.02.1975 Госгражданстрой (Gosgrazhdanstroy 4-429)
| | Чем заменён: | - серия «ИИС-04-6» (Выпуск 5)
|
                                                                                                               
|