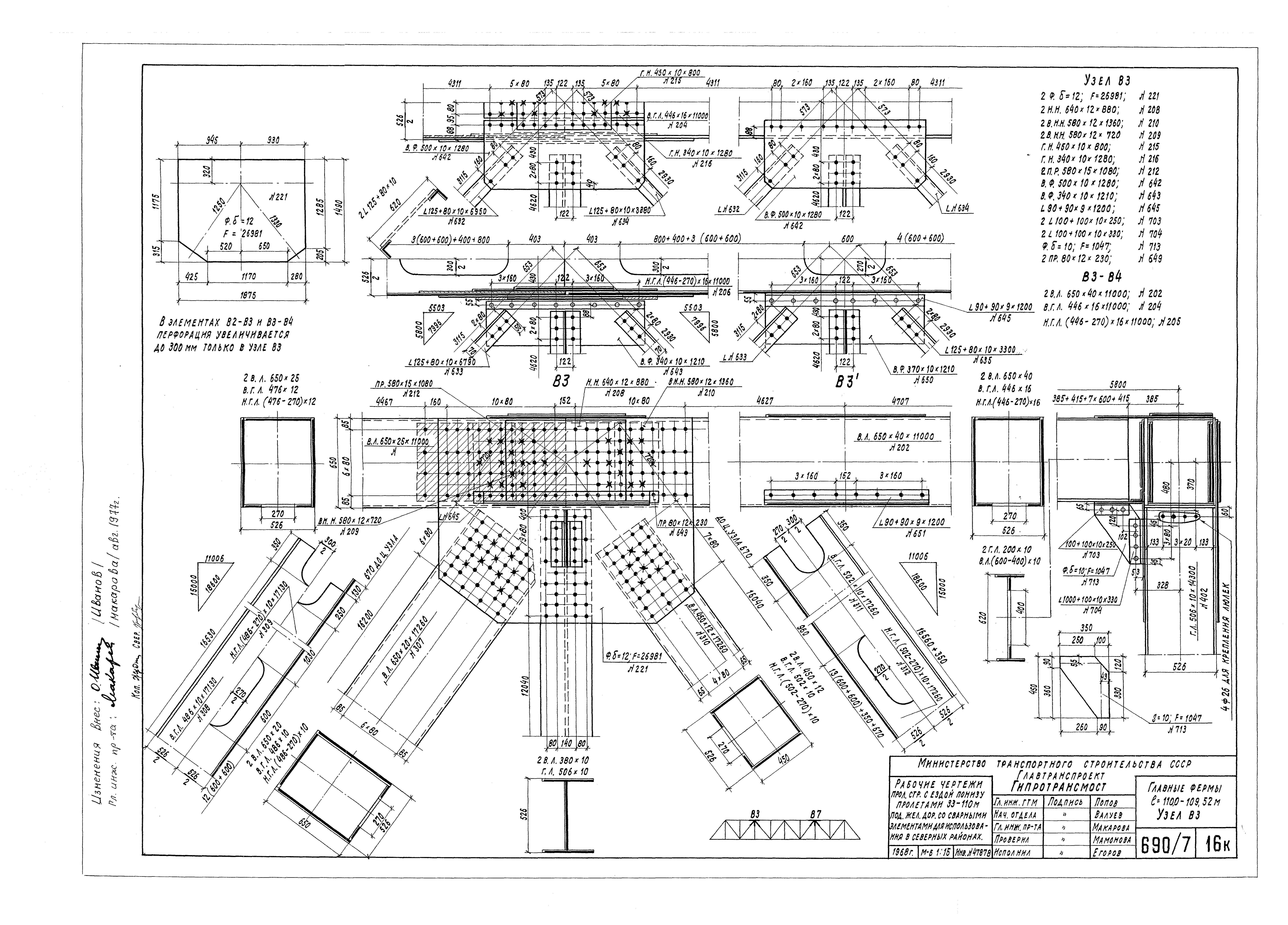
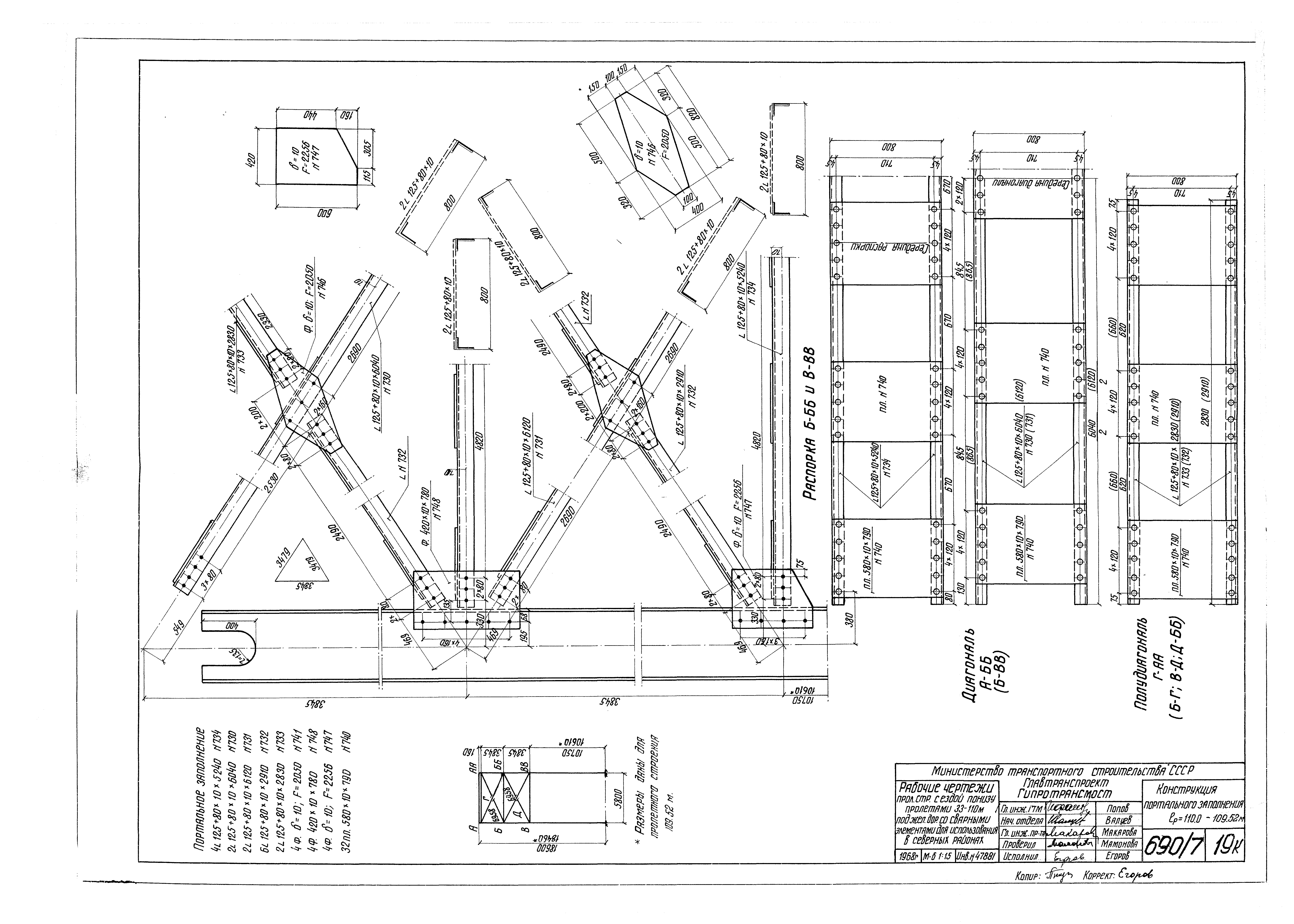
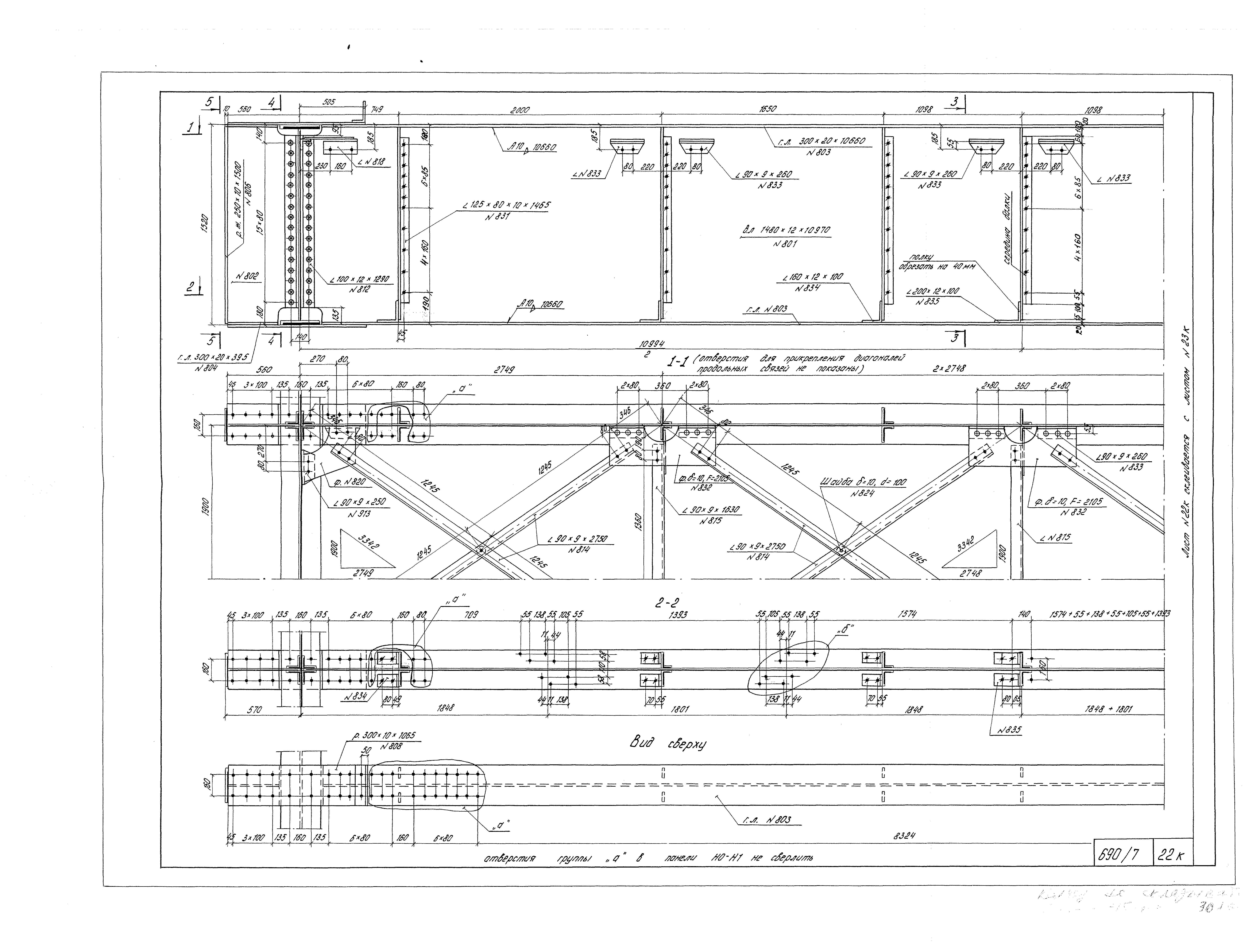
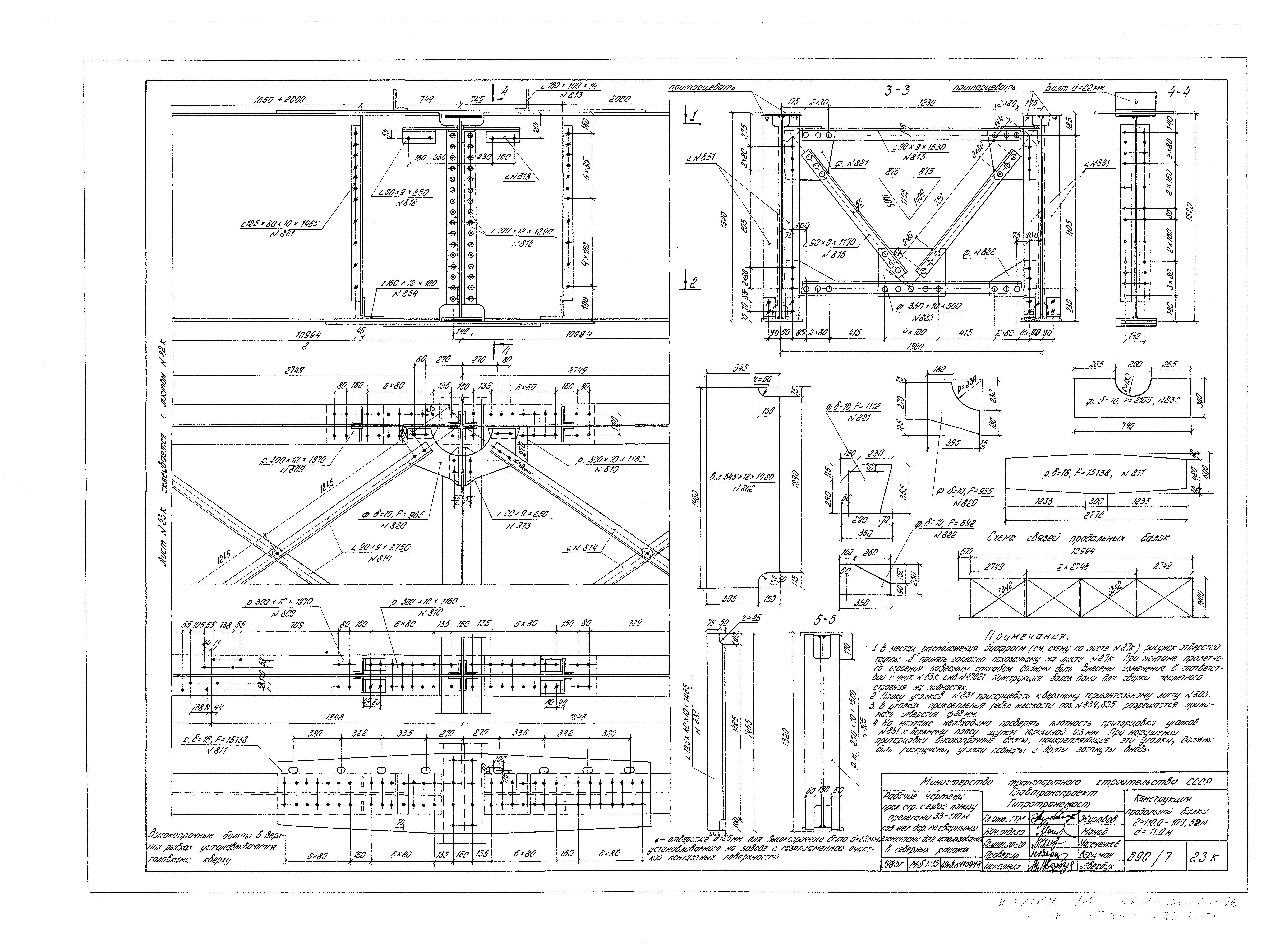
Скачать Типовой проект 3.501-30/75 Выпуск 7. Пролетное строение L= 110,0 - 109,52 м. Рабочие чертежиДата актуализации: 01.01.2021 Типовой проект 3.501-30/75
Выпуск 7. Пролетное строение L= 110,0 - 109,52 м. Рабочие чертежи| Обозначение: | Типовой проект 3.501-30/75 | | Обозначение англ: | 3.501-30/75 | | Статус: | заменен | | Название рус.: | Выпуск 7. Пролетное строение L= 110,0 - 109,52 м. Рабочие чертежи | | Дата добавления в базу: | 01.09.2013 | | Дата актуализации: | 01.01.2021 | | Дата введения: | 01.01.1976 | | Дата окончания срока действия: | 01.09.1988 | | Разработан: | Гипротрансмост Минтрансстроя СССР
| | Утверждён: | 19.12.1975 МПС (Ministry of Railroads П-36830)
| | Чем заменён: | |
                                                                                              
|