Скачать Типовой проект 704-1-167.84 Альбом II. Конструкции металлические понтонаДата актуализации: 01.01.2021
|
| Обозначение: | Типовой проект 704-1-167.84 |
| Обозначение англ: | 704-1-167.84 |
| Статус: | не действует |
| Название рус.: | Альбом II. Конструкции металлические понтона |
| Дата добавления в базу: | 01.09.2013 |
| Дата актуализации: | 01.01.2021 |
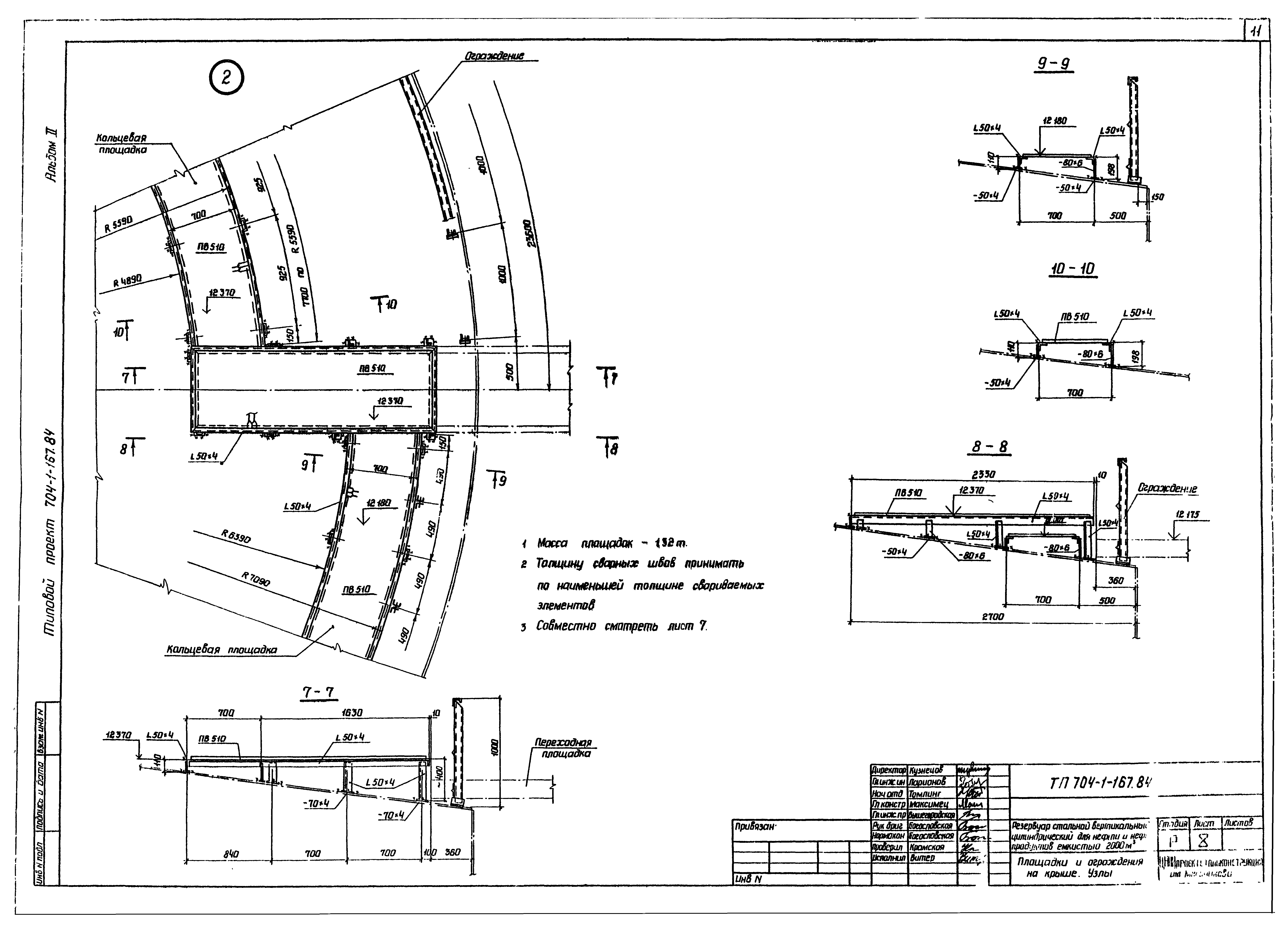
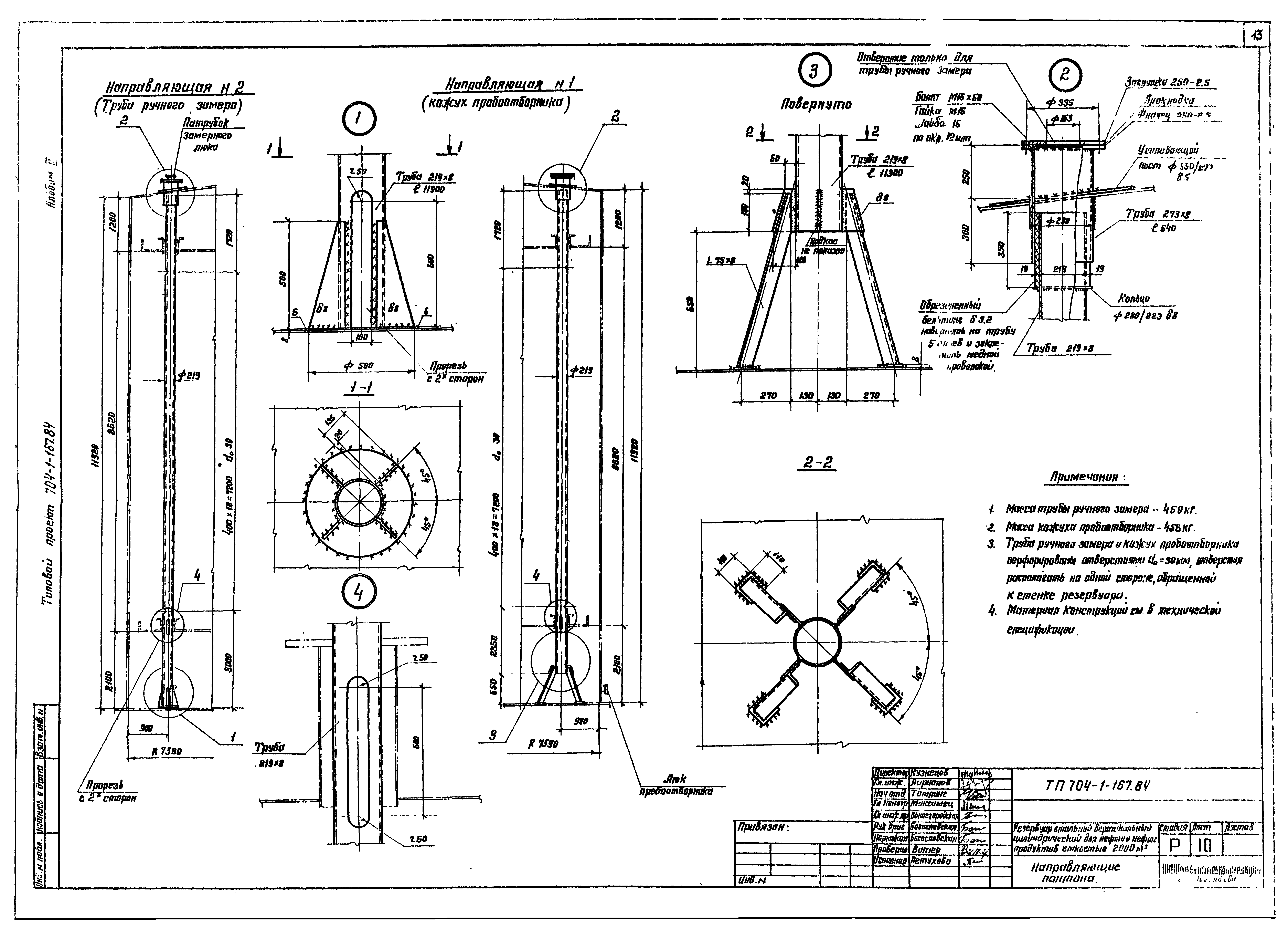
| Оглавление: | ТП 704-1-167.84 Общие данные ТП 704-1-167.84 Техническая спецификация стали на понтон ТП 704-1-167.84 Техническая спецификация стали. Площадки и ограждения на крыше ТП 704-1-167.84 Ведомость металлоконструкций по видам профилей ТП 704-1-167.84 Понтон. План и разрез ТП 704-1-167.84 Понтон. Днище и план расположения подкладок под стойки ТП 704-1-167.84 Понтон. Детали и узлы ТП 704-1-167.84 Площадки и ограждение на крыше. План и разрезы ТП 704-1-167.84 Площадки и ограждение на крыше. Узлы ТП 704-1-167.84 Площадка и стремянка у люка-лаза в 3 поясе стенке ТП 704-1-167.84 Направляющие понтона ТП 704-1-167.84 Патрубок для установки направляющих понтона ТП 704-1-167.84 Люк-лаз овальный 600х900 в 3 поясе стенки ТП 704-1-167.84 Люк-лаз Ду500 на понтоне и патрубок для СУС-14н ТП 704-1-167.84 Патрубок в понтоне для УДУ, дренажное устройство и люк пробоотборника ТП 704-1-167.84 Исходные данные для проектирования основания и фундаментов ТП 704-1-167.84 Установочный чертеж затвора РУМ-2 |
| Разработан: | ЦНИИпроектстальконструкция |
| Утверждён: | 23.05.1983 Миннефтепром (Minnefteprom ) |



















