Скачать Типовой проект 704-1-167.84 Альбом III. Основание и фундаменты. Крепежные узлыДата актуализации: 01.01.2021
|
| Обозначение: | Типовой проект 704-1-167.84 |
| Обозначение англ: | 704-1-167.84 |
| Статус: | не действует |
| Название рус.: | Альбом III. Основание и фундаменты. Крепежные узлы |
| Дата добавления в базу: | 01.09.2013 |
| Дата актуализации: | 01.01.2021 |
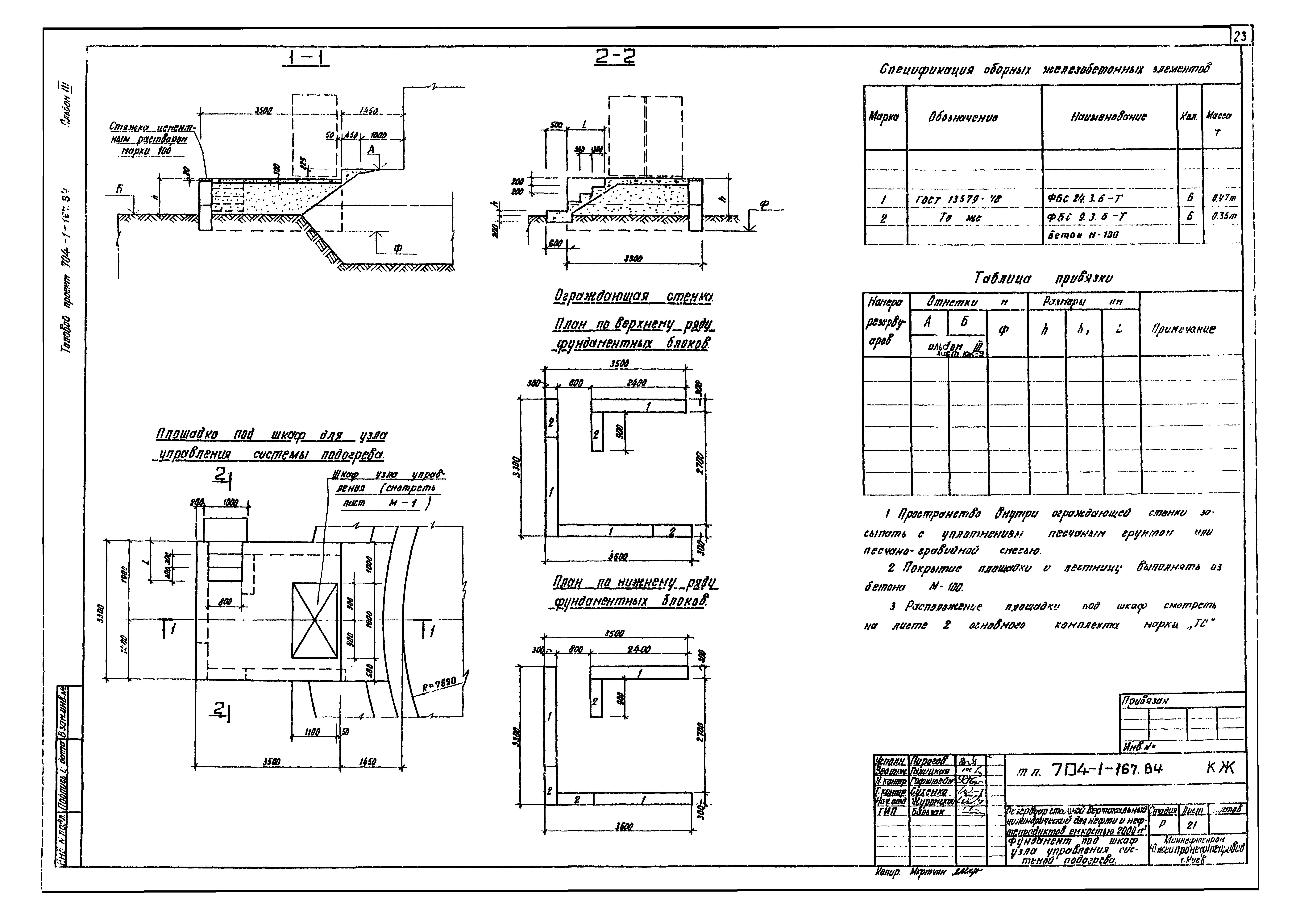
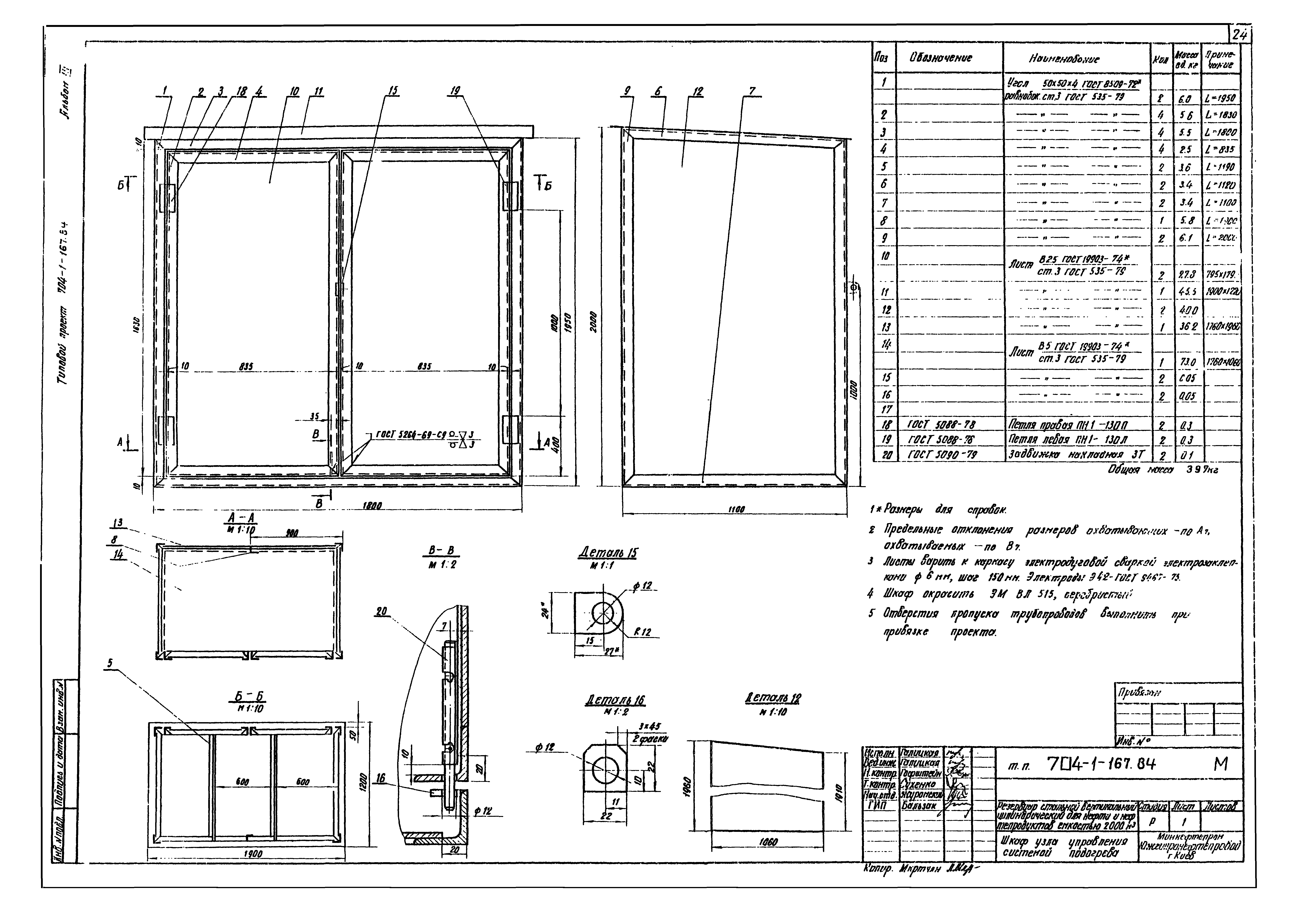
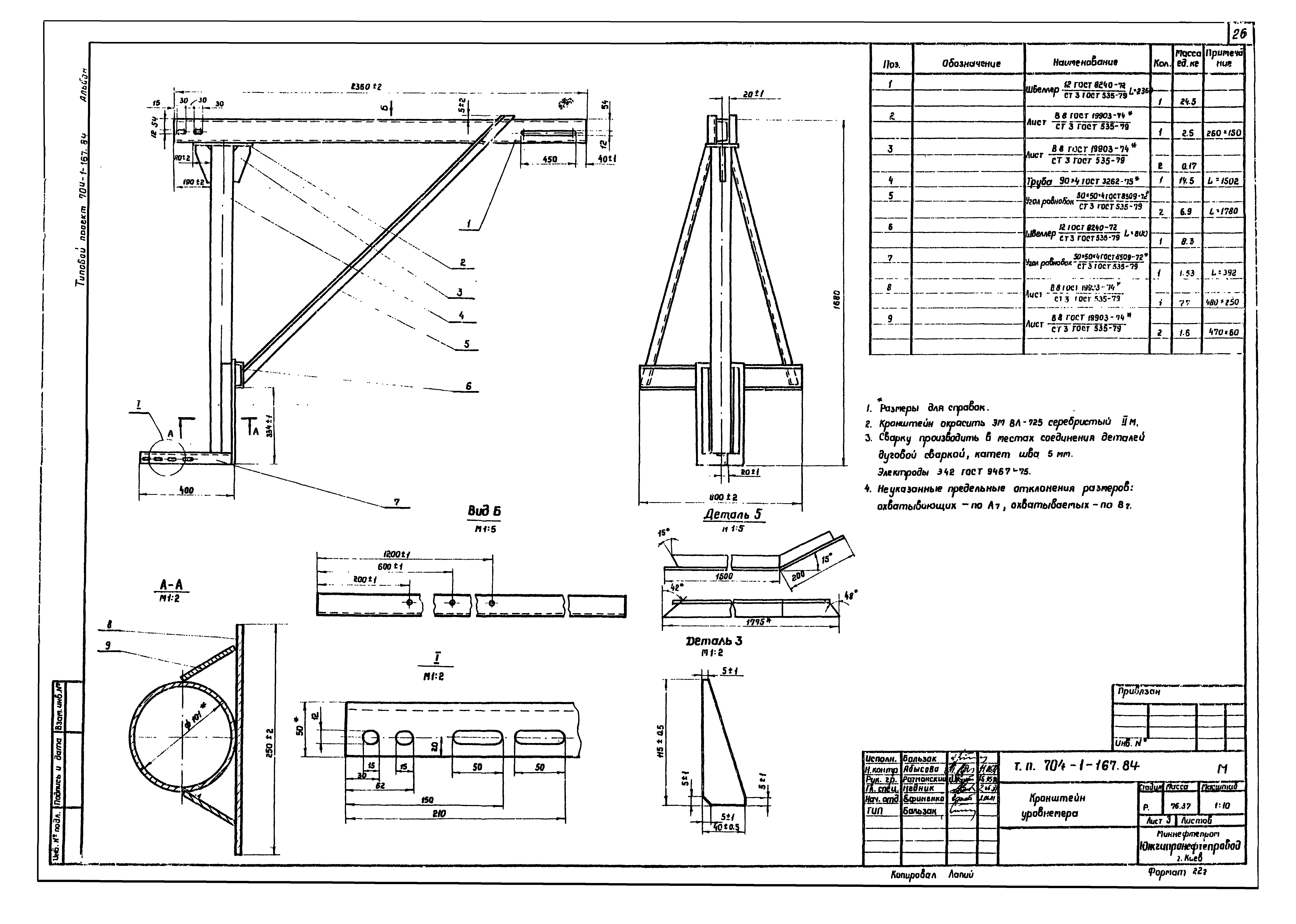
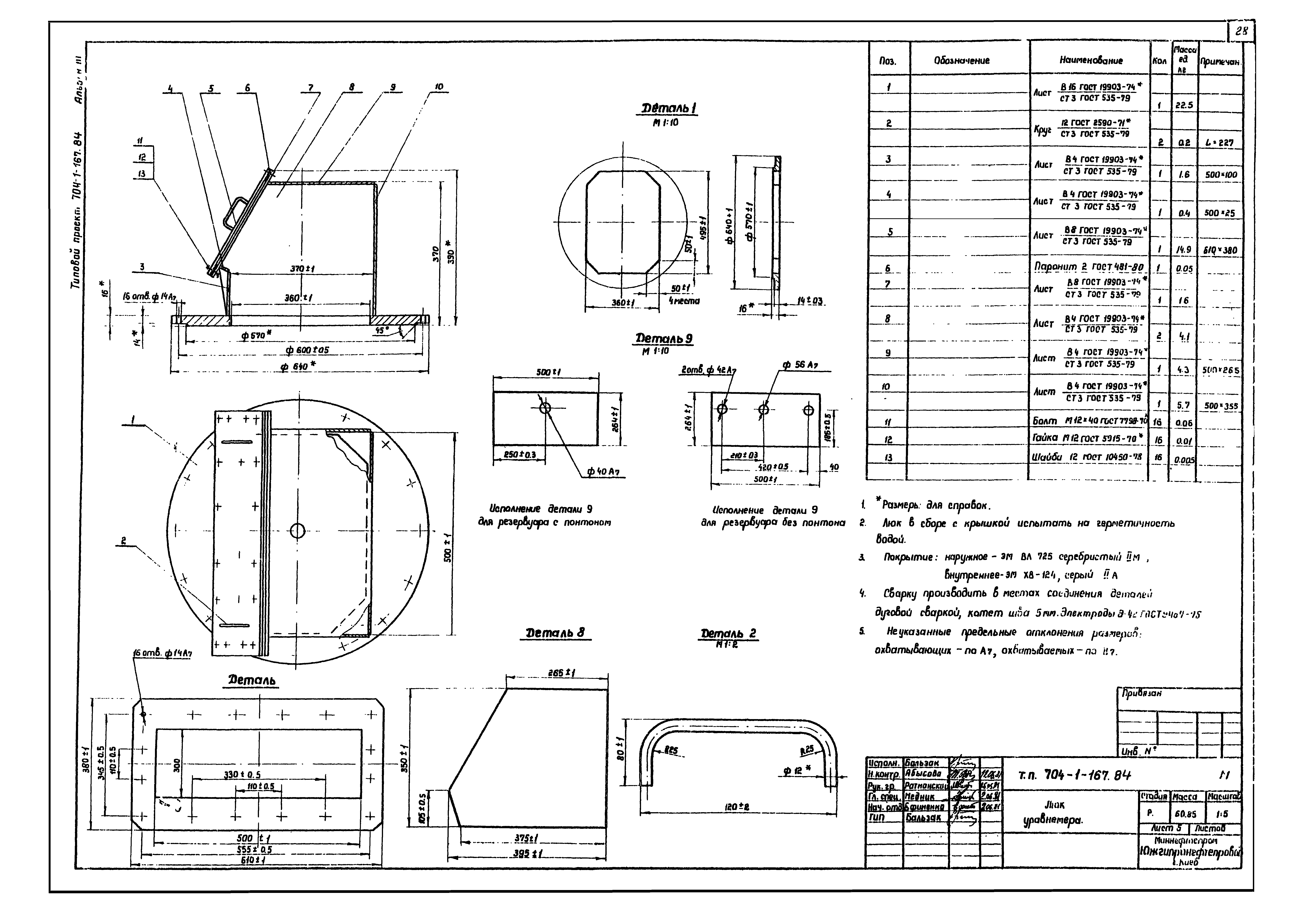
| Оглавление: | ТП 704-1-167.84 Содержание ТП 704-1-167.84 Конструкции железобетонные ТП 704-1-167.84 КЖ-1 Общие данные ТП 704-1-167.84 КЖ-2 Пояснительная записка ТП 704-1-167.84 КЖ-8 Расчетный лист ТП 704-1-167.84 КЖ-9 Схемы оснований №№1-6 ТП 704-1-167.84 КЖ-10 Схемы оснований №№7-11 ТП 704-1-167.84 КЖ-11 Общий вид основания. Основная таблица привязки оснований ТП 704-1-167.84 КЖ-12 Площадка и фундаменты под шахматную лестницу Ф-1 ТП 704-1-167.84 КЖ-13 Типы подушек, отмосток и покрытия площадок ТП 704-1-167.84 КЖ-14 Узел А. Типы А1;А2;А3 ТП 704-1-167.84 КЖ-15 Узел А. Типы А4;А5;А6 ТП 704-1-167.84 КЖ-16 Узел Б. Типы Б1;Б2 ТП 704-1-167.84 КЖ-17 Фундаментное кольцо КФ-1 ТП 704-1-167.84 КЖ-18 Фундаментное кольцо КФ-2. Плита ПФ-1 ТП 704-1-167.84 КЖ-19 Контрольный колодец КК-1 ТП 704-1-167.84 КЖ-20 Плиты П-1,П-2 ТП 704-1-167.84 КЖ-21 Фундамент под шкаф узла управления системой подогрева ТП 704-1-167.84 Крепежные узлы ТП 704-1-167.84 М-1 Шкаф узла управления системой подогрева ТП 704-1-167.84 М-2 Кронштейны крепления трубопроводов пожаротушения ТП 704-1-167.84 М-3 Кронштейн уровнемера ТП 704-1-167.84 М-4 Кронштейн установки уровнемера ТП 704-1-167.84 М-5 Люк уровнемера ТП 704-1-167.84 М-6 Молниеотвод с креплением к стенке резервуара ТП 704-1-167.84 М-7 Молниеотвод с креплением к стенке резервуара |
| Разработан: | Южгипронефтепровод Миннефтепрома СССР |
| Утверждён: | 16.06.1983 Миннефтепром (Minnefteprom ) |






























