Скачать Типовой проект 704-1-167.84 Альбом VIII. Проект производства монтажных работ. Приспособления для монтажаДата актуализации: 01.01.2021
|
| Обозначение: | Типовой проект 704-1-167.84 |
| Обозначение англ: | 704-1-167.84 |
| Статус: | не действует |
| Название рус.: | Альбом VIII. Проект производства монтажных работ. Приспособления для монтажа |
| Дата добавления в базу: | 01.09.2013 |
| Дата актуализации: | 01.01.2021 |
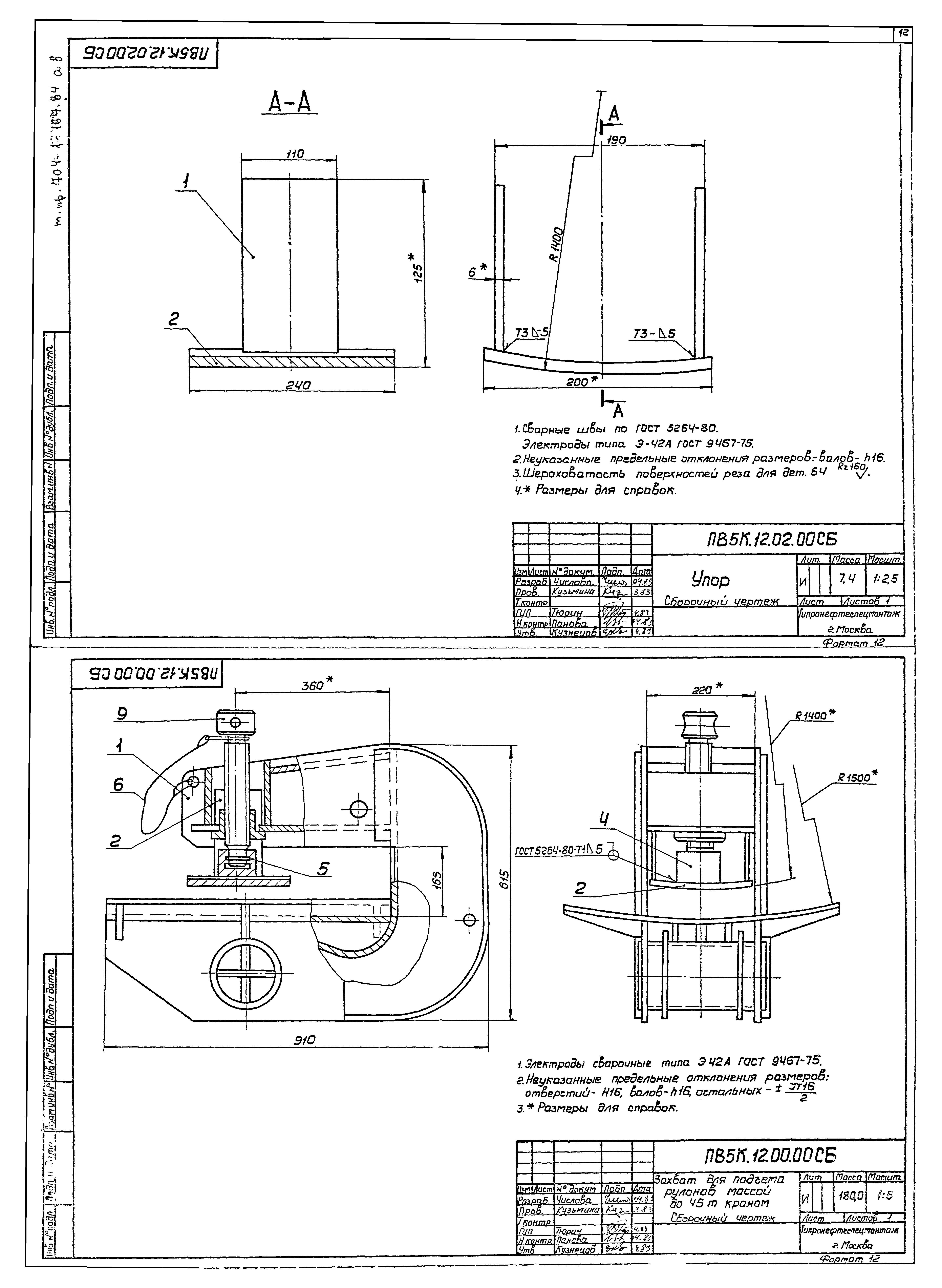
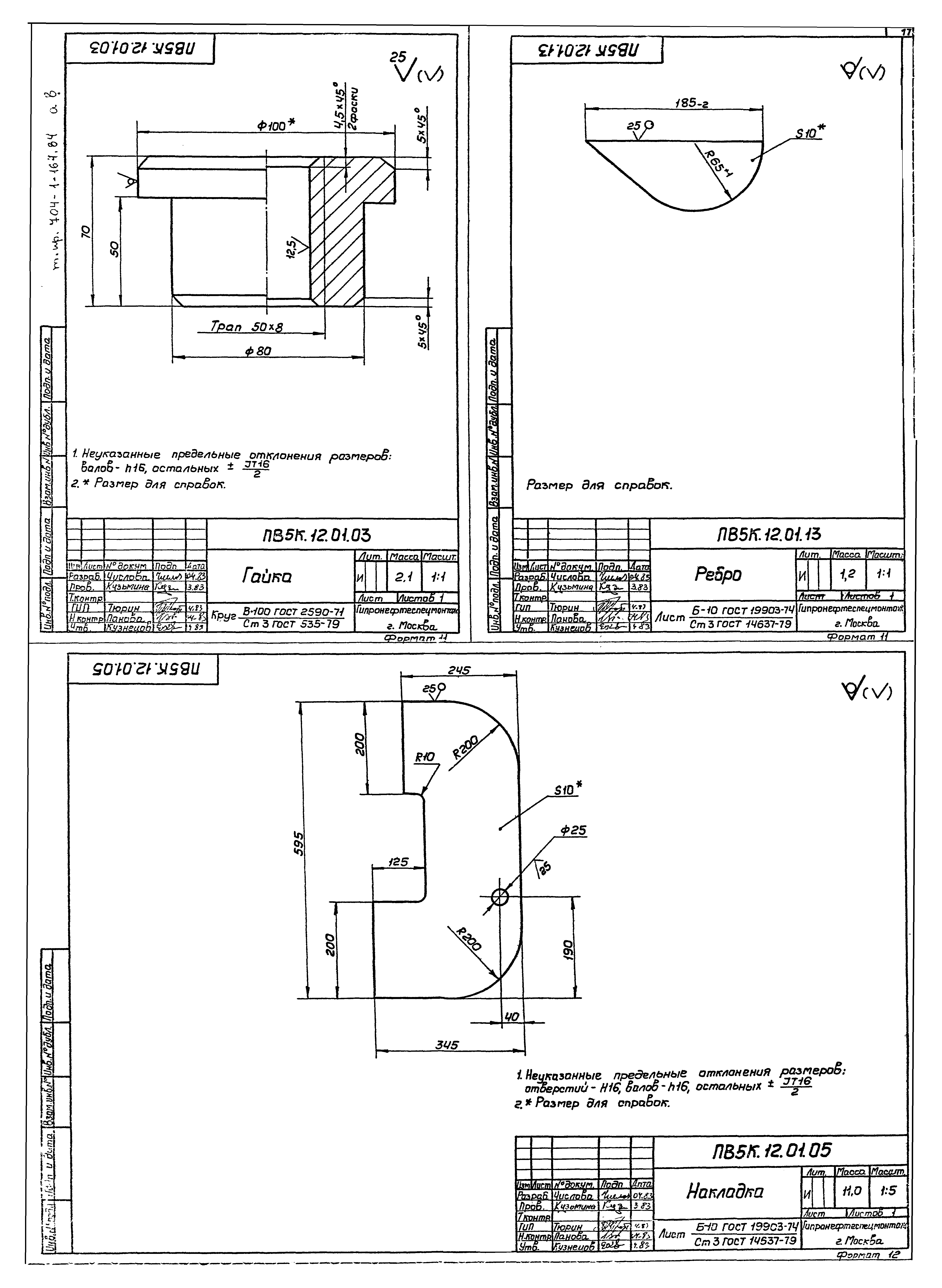
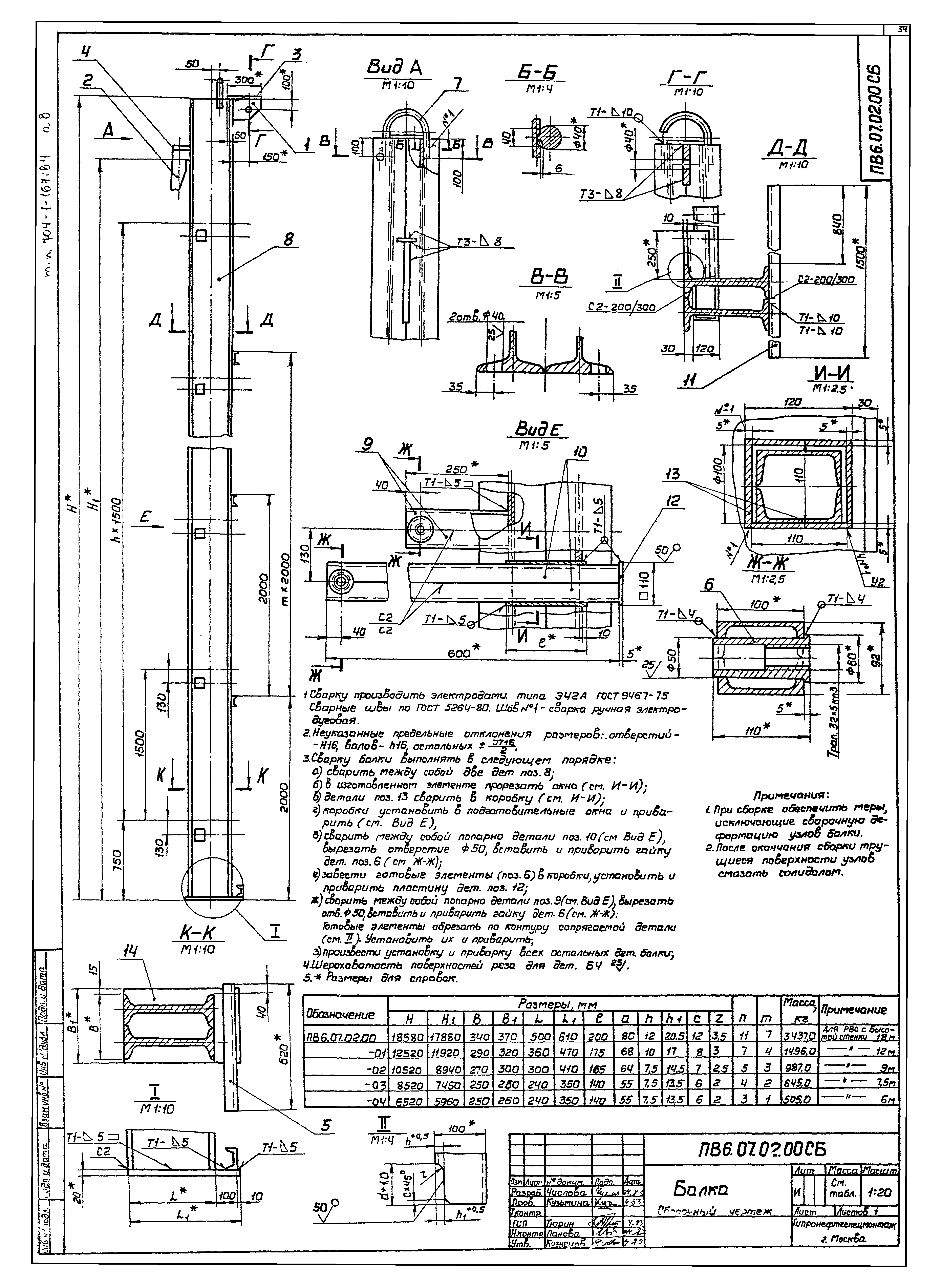
| Оглавление: | ТП 704-1-167.84 ПВ32.01.00.00 Устройство для раскатки рулонов ТП 704-1-167.84 ПВ5к.02.00.00 Шарнир для подъема рулонов массой до 45т ТП 704-1-167.84 ПВ5к.12.00.00 Захват для подъема рулонов массой до 45т ТП 704-1-167.84 ПВ3.02.00.00 Скоба для развертывания рулона ТП 704-1-167.84 ПВ12.01.00.00 Отвес ТП 704-1-167.84 ПВ12.02.00.00 Поддон ТП 704-1-167.84 ПВ81.04.00.00 Кронштейн для расчалок ТП 704-1-167.84 ПВ8.05.00.00 Упор клиновой ТП 704-1-167.84 ПВ4.05.00.00 Стяжное приспособление ТП 704-1-167.84 ПВ7.11.00.00 Клин ТП 704-1-167.84 ПВ51.06.00.00 Козлы для демонтажа монтажной стойки ТП 704-1-167.84 ПВ5.52.00.00 Скоба для навешивания блока ТП 704-1-167.84 ПВ5.07.00.00 Ролик отводной для демонтажа монтажной стойки ТП 704-1-167.84 ПВ6.07.00.00-01 Приспособление для замыкания вертикального монтажного стыка ТП 704-1-167.84 ПВ9.10.00.00-01 Леса навесные для замыкания вертикального монтажного стыка ТП 704-1-167.84 ПВ7.76.00.00 Рама ТП 704-1-167.84 ПВ5.03.00.00 Укосина для монтажа понтона ТП 704-1-167.84 ПВ4.13.00.00 Струбцина для монтажа понтона ТП 704-1-167.84 ПВ4.03.00.00 Струбцина для прижима обвязочного уголка ТП 704-1-167.84 ПВ72.78.00.00 Стойка монтажная ТП 704-1-167.84 ПВ51.58.00.00 Строп 3-х ветвевой ТП 704-1-167.84 ПВ5А.3-00 СБ Скоба для установки навесной лестницы ТП 704-1-167.84 ПГ21.01.00.00 Приспособление для разметки днища ТП 704-1-167.84 ПВ7.71.00.00 Направляющая ТП 704-1-167.84 ПВ7.70.00.00 Упор скользящий ТП 704-1-167.84 ПВ7.86.00.00 Монтажная стойка |
| Разработан: | Гипронефтеспецмонтаж Минмонтажспецстроя СССР (Giproneftespetsmontazh, Minmontazhspetsstroy (USSR) ) |
| Утверждён: | 23.05.1983 Миннефтепром (Minnefteprom ) |















































































