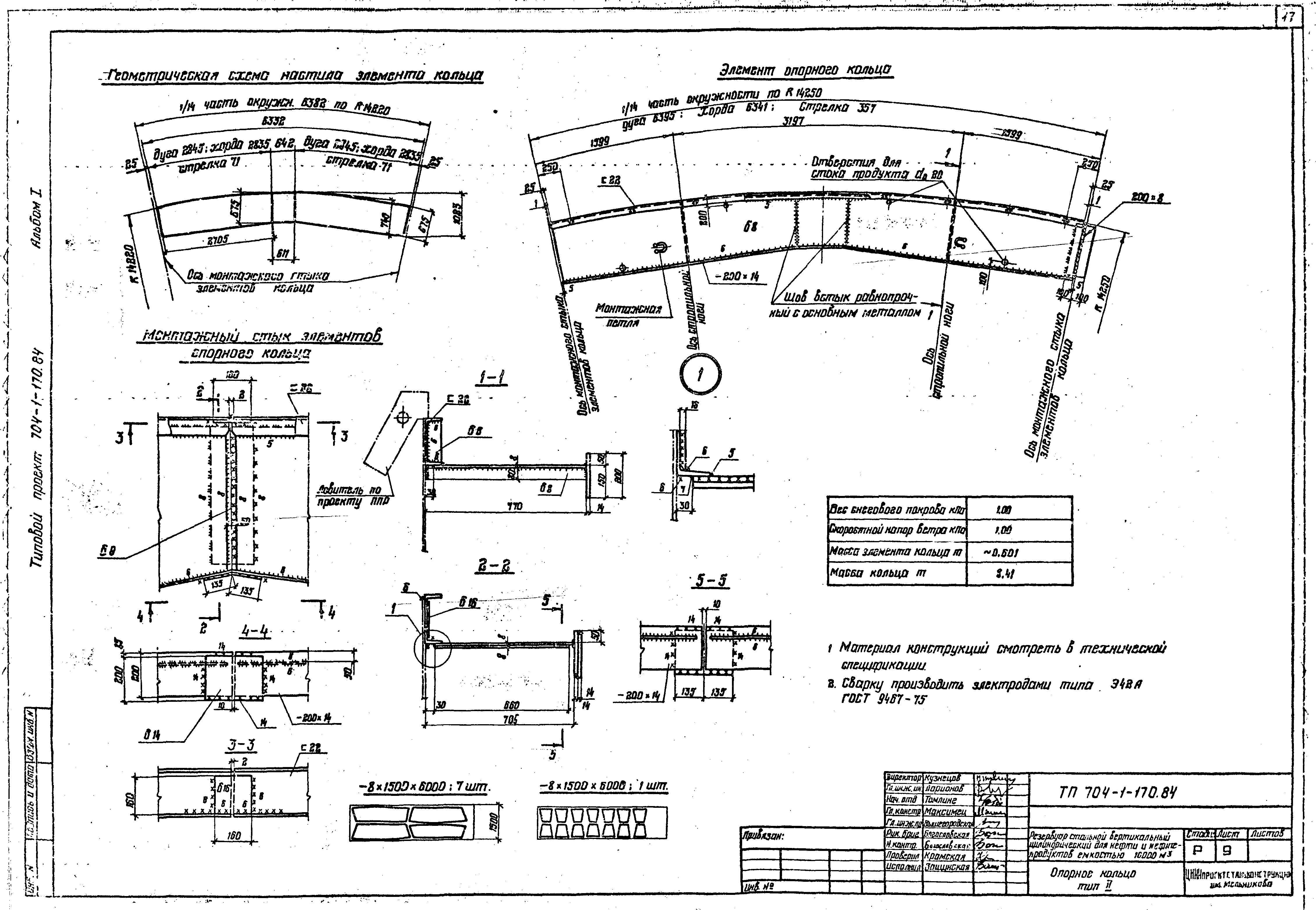
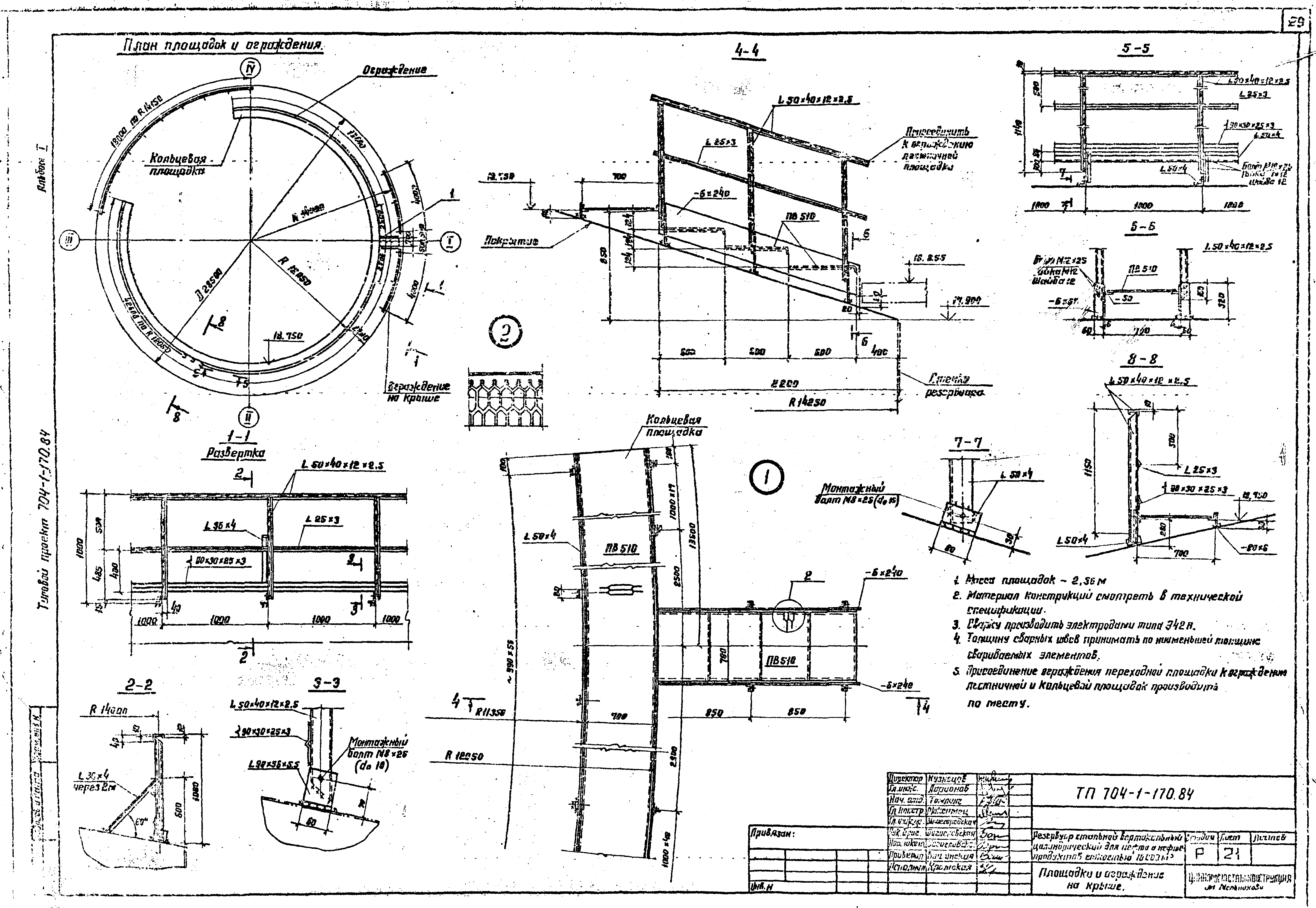
Скачать Типовой проект 704-1-170.84 Альбом I. Конструкции металлические резервуараДата актуализации: 01.01.2021
|
| Обозначение: | Типовой проект 704-1-170.84 |
| Обозначение англ: | 704-1-170.84 |
| Статус: | не действует |
| Название рус.: | Альбом I. Конструкции металлические резервуара |
| Дата добавления в базу: | 01.09.2013 |
| Дата актуализации: | 01.01.2021 |
| Разработан: | ЦНИИпроектстальконструкция |
| Утверждён: | 23.05.1983 Миннефтепром (Minnefteprom ) |


































