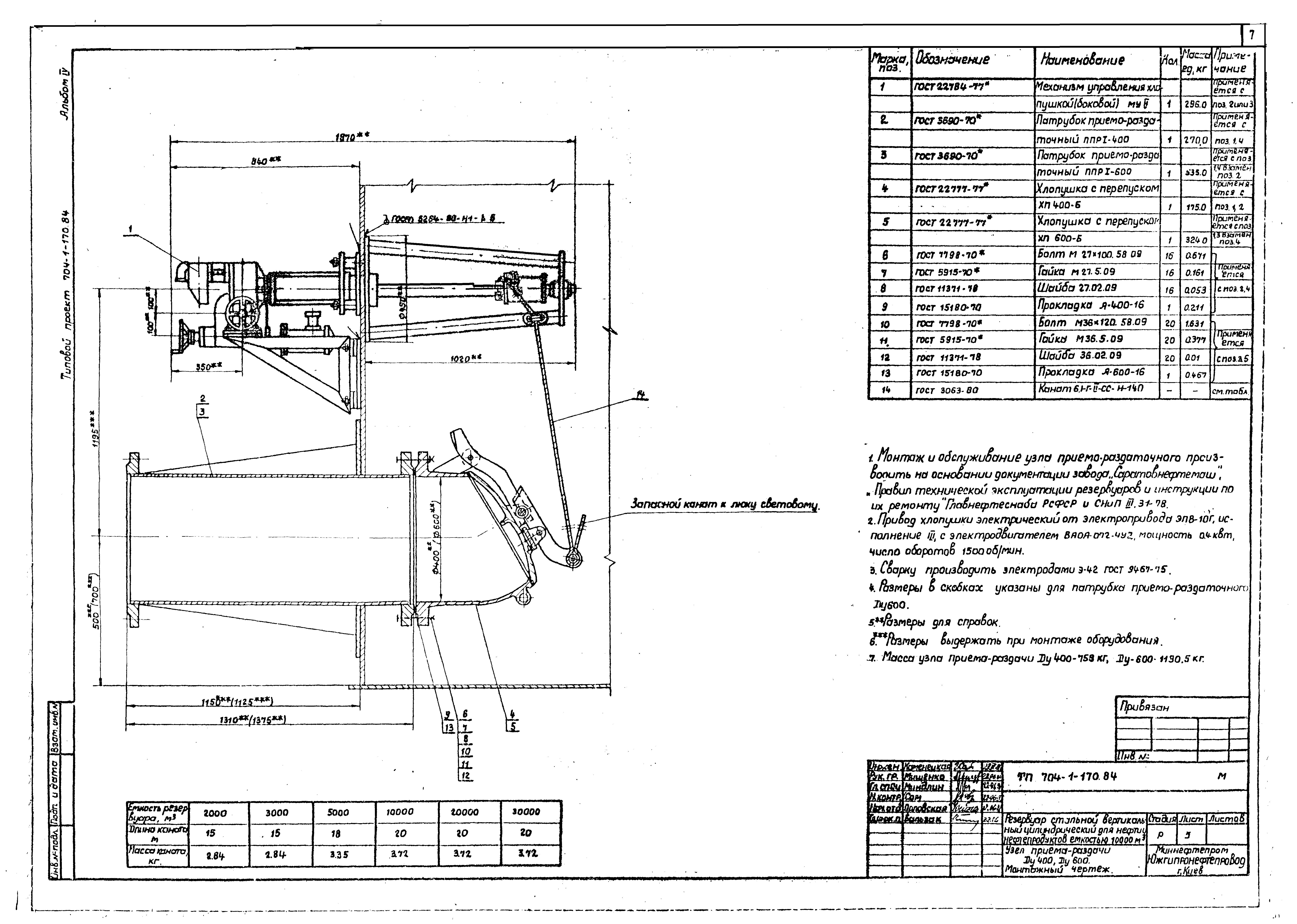
Скачать Типовой проект 704-1-170.84 Альбом IV. Оборудование резервуара с понтоном для нефти и нефтепродуктовДата актуализации: 01.01.2021 Типовой проект 704-1-170.84
Альбом IV. Оборудование резервуара с понтоном для нефти и нефтепродуктов| Обозначение: | Типовой проект 704-1-170.84 | | Обозначение англ: | 704-1-170.84 | | Статус: | не действует | | Название рус.: | Альбом IV. Оборудование резервуара с понтоном для нефти и нефтепродуктов | | Дата добавления в базу: | 01.09.2013 | | Дата актуализации: | 01.01.2021 | | Разработан: | Южгипронефтепровод Миннефтепрома СССР
| | Утверждён: | 16.06.1983 Миннефтепром (Minnefteprom )
|
                  
|