Скачать Типовой проект 704-1-170.84 Альбом VI. Проект производства монтажных работ. Монтаж резервуараДата актуализации: 01.01.2021
|
| Обозначение: | Типовой проект 704-1-170.84 |
| Обозначение англ: | 704-1-170.84 |
| Статус: | не действует |
| Название рус.: | Альбом VI. Проект производства монтажных работ. Монтаж резервуара |
| Дата добавления в базу: | 01.09.2013 |
| Дата актуализации: | 01.01.2021 |
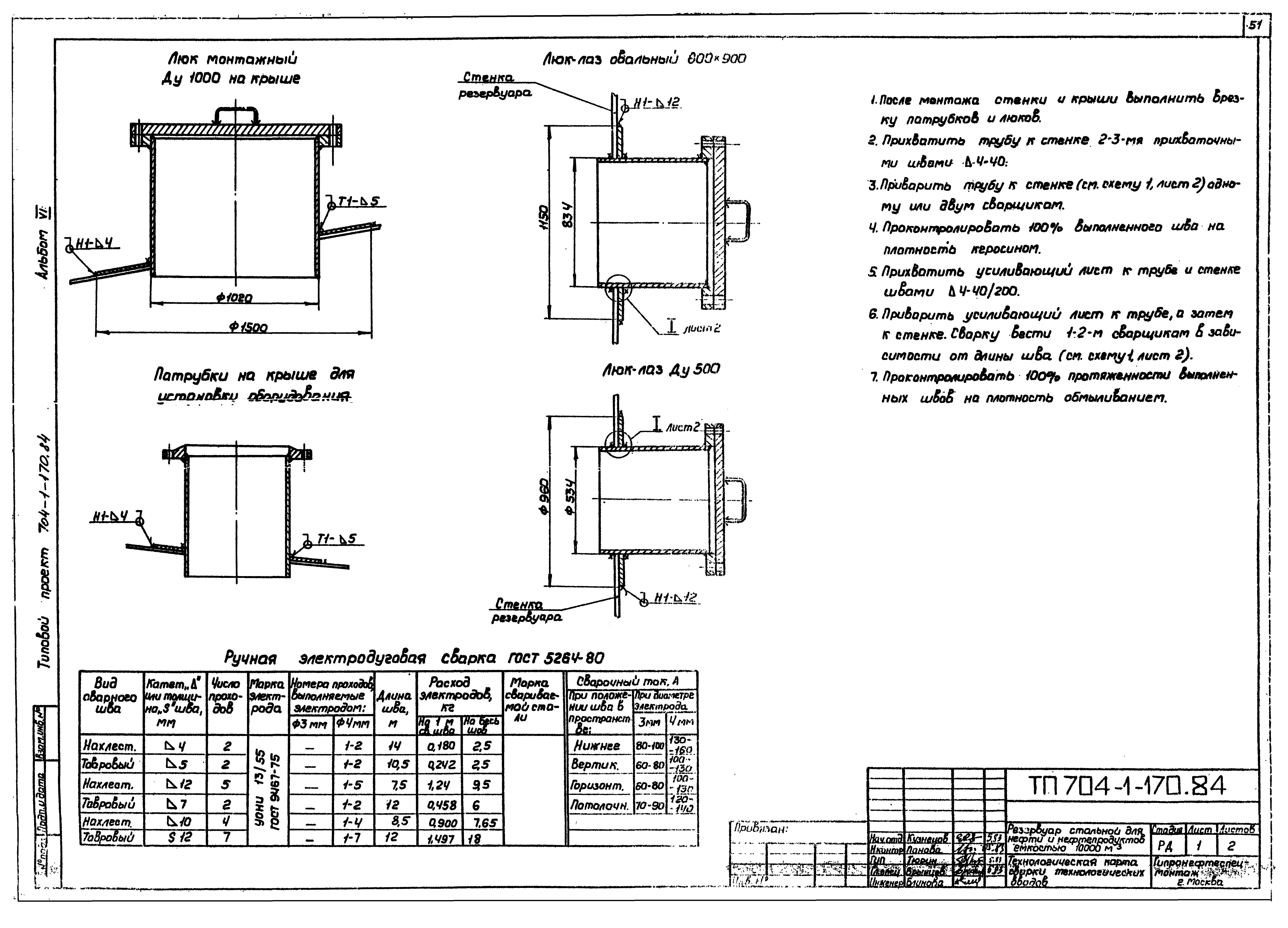
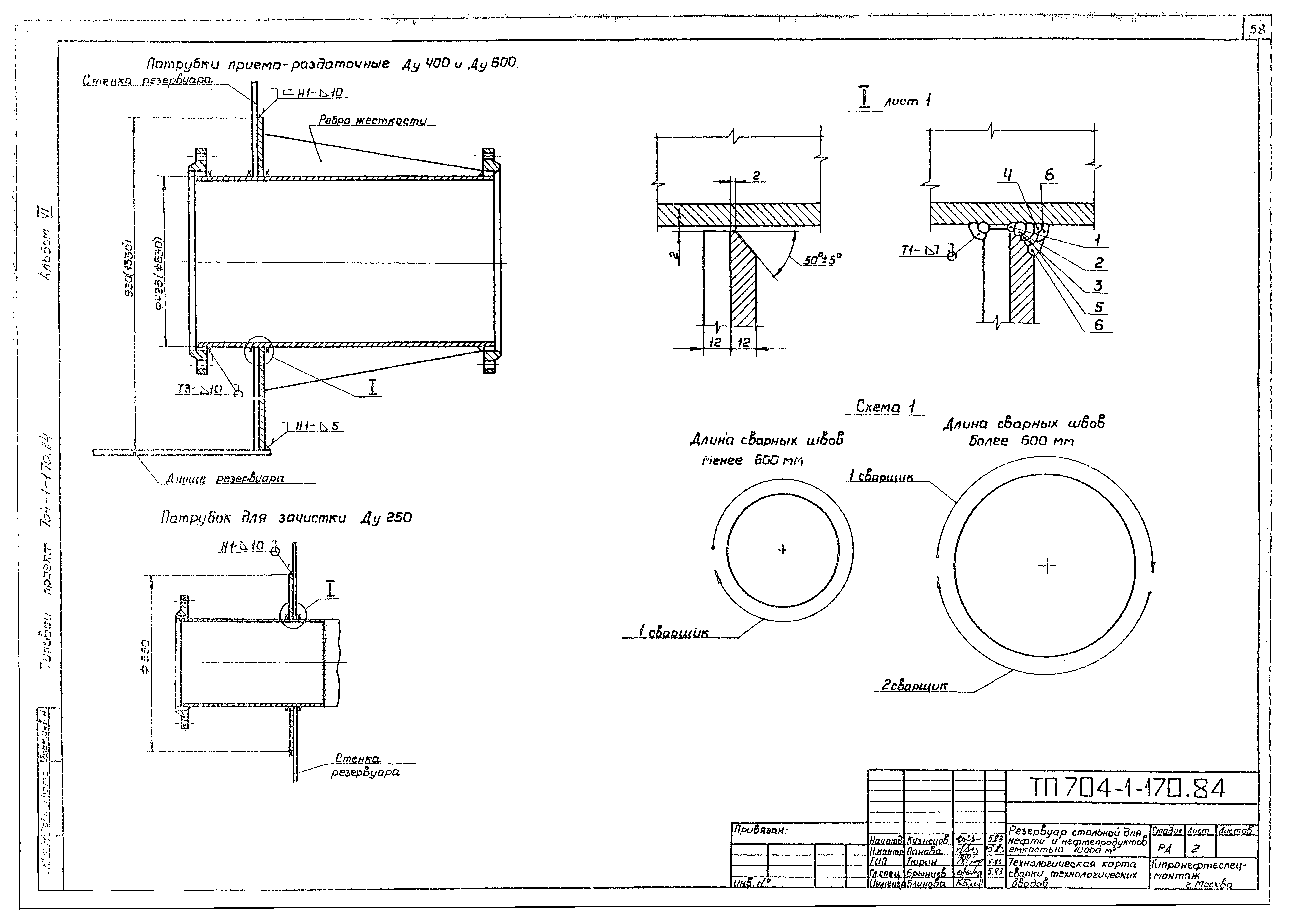
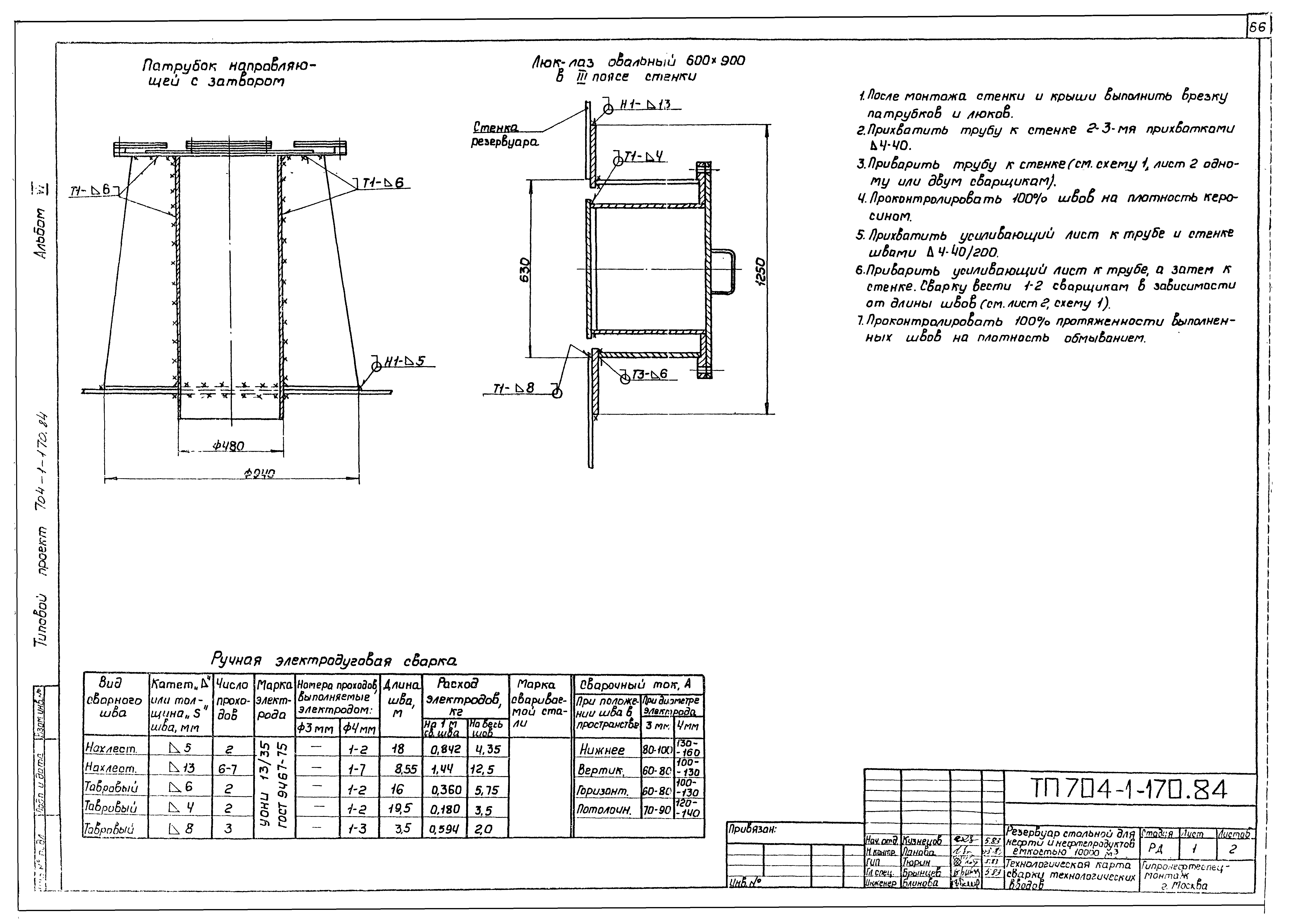
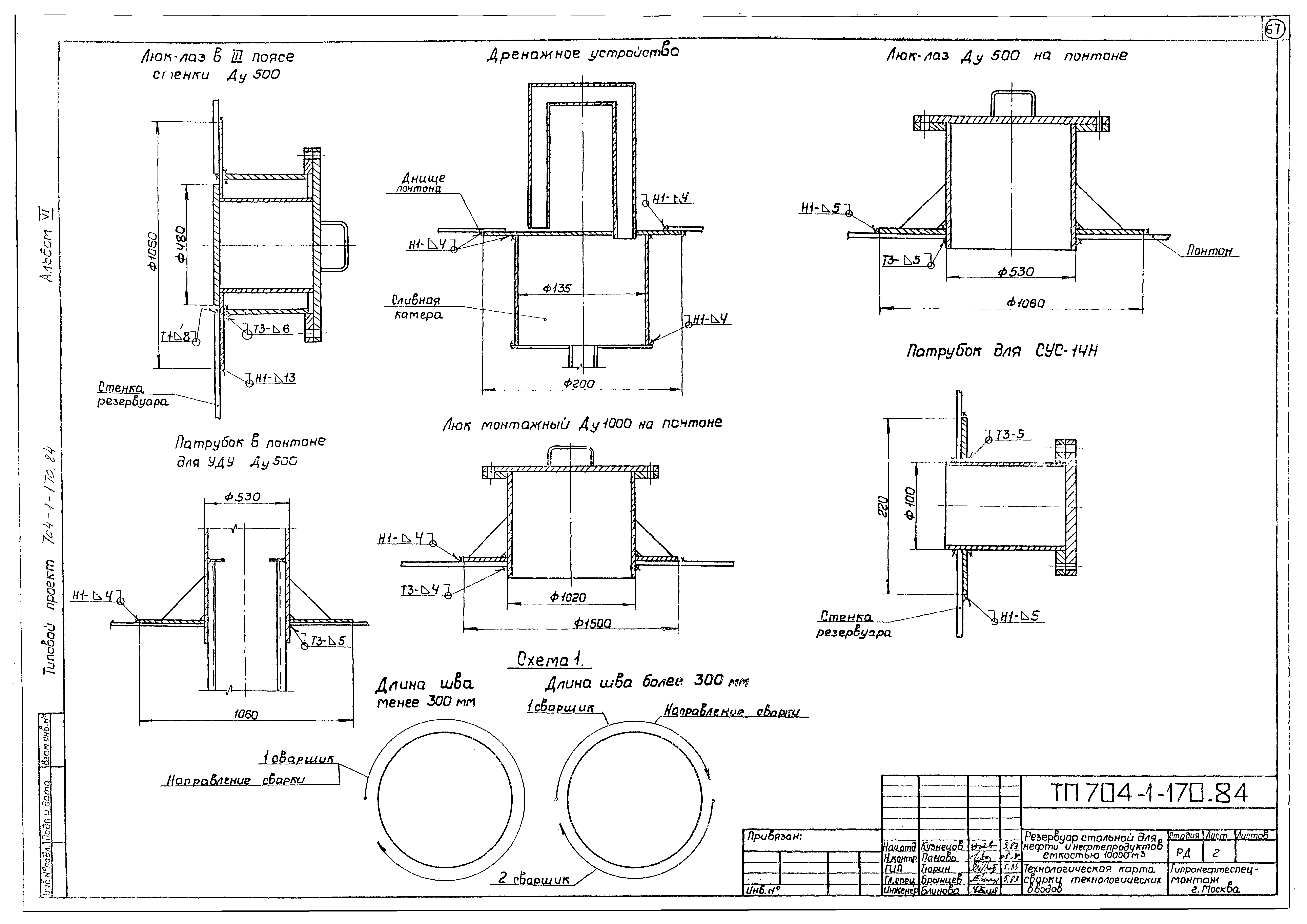
| Оглавление: | ТП 704-1-170.84 Содержание ТП 704-1-170.84 Технология монтажа резервуара ТП 704-1-107.84 Пояснительная записка ТП 704-1-107.84 Общий вид ТП 704-1-170.84 Монтаж окраек днища ТП 704-1-170.84 Монтаж центральной части днища ТП 704-1-170.84 Разметка днища ТП 704-1-107.84 Подъем рулона стенки краном ТП 704-1-170.84 Установка монтажной стойки ТП 704-1-170.84 Развертывание рулона стенки ТП 704-1-170.84 Монтаж опорного кольца ТП 704-1-170.84 Монтаж покрытия ТП 704-1-170.84 Формообразование концевых участков полотнищ стенки ТП 704-1-170.84 Замыкание вертикального монтажного стыка стенки ТП 704-1-170.84 Демонтаж монтажной стойки ТП 704-1-170.84 Схемы строповки ТП 704-1-170.84 Технология монтажа понтона ТП 704-1-170.84 Пояснительная записка ТП 704-1-170.84 Общий вид ТП 704-1-170.84 Разметка днищ ТП 704-1-170.84 Монтаж элементов понтона ТП 704-1-170.84 Установка труб замера уровня ТП 704-1-170.84 Установка кожуха пробоотборника ТП 704-1-170.84 Установка понтона на опорные стойки ТП 704-1-170.84 Монтаж уплотняющего затвора ТП 704-1-170.84 Технология сварки резервуара ТП 704-1-170.84 Пояснительная записка ТП 704-1-170.84 Сборка и предварительная сварка окраек днища ТП 704-1-170.84 Сварка днища ТП 704-1-170.84 Сварка при развертывании стенки резервуара ТП 704-1-170.84 Сварка вертикальных стыков стенки резервуара ТП 704-1-170.84 Сварка опорного кольца ТП 704-1-170.84 Сварка щитов покрытия при укрупнении ТП 704-1-170.84 Сварка покрытия в проектном положении ТП 704-1-170.84 Сварка технологических вводов ТП 704-1-170.84 Технология сварки резервуара с понтоном ТП 704-1-170.84 Пояснительная записка ТП 704-1-170.84 Приварка подкладных листов под опорные стойки понтона ТП 704-1-170.84 Сварка днища понтона ТП 704-1-170.84 Сварка элементов понтона ТП 704-1-170.84 Разделка кромок полотнища стенки в зоне вертикального монтажного стыка ТП 704-1-170.84 Сварка технологических вводов |
| Разработан: | Гипронефтеспецмонтаж Минмонтажспецстроя СССР (Giproneftespetsmontazh, Minmontazhspetsstroy (USSR) ) |
| Утверждён: | 23.05.1983 Миннефтепром (Minnefteprom ) |


































































