Скачать Методические рекомендации по повышению эффективности использования технологического, подъемно-транспортного и холодильного оборудования хранилищ картофеля, овощей и фруктовДата актуализации: 01.01.2021
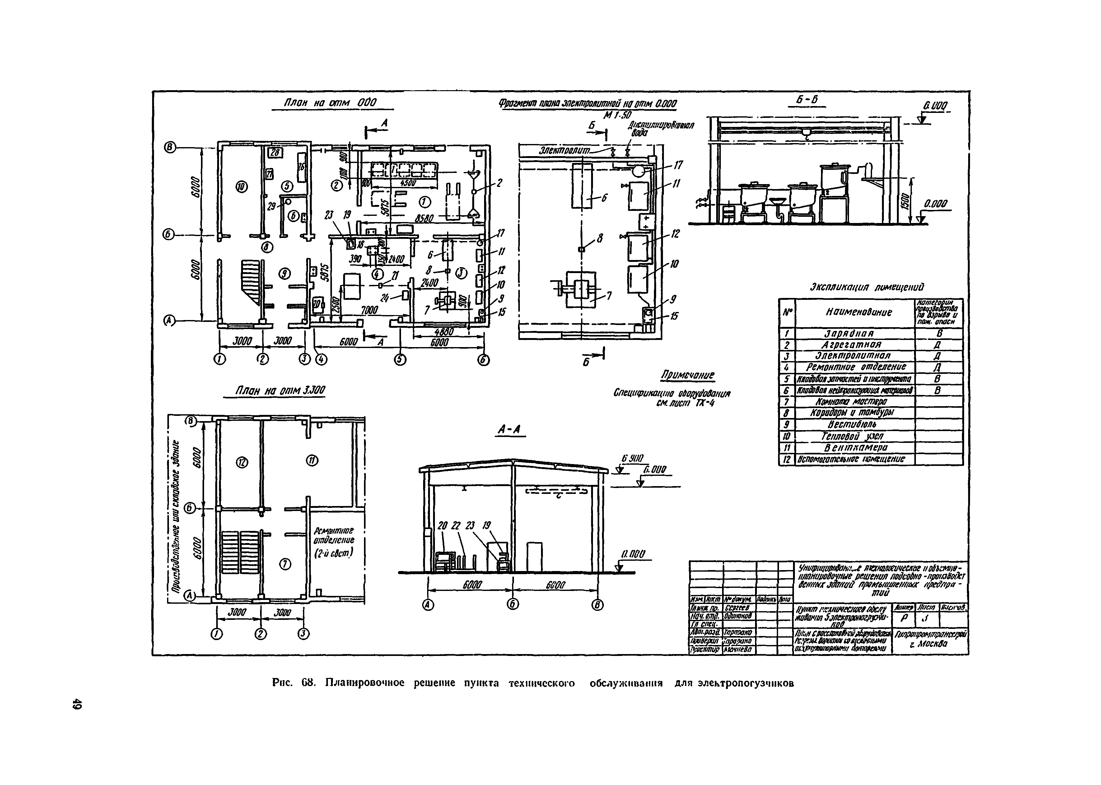
Методические рекомендации по повышению эффективности использования технологического, подъемно-транспортного и холодильного оборудования хранилищ картофеля, овощей и фруктов| Статус: | действует | | Название рус.: | Методические рекомендации по повышению эффективности использования технологического, подъемно-транспортного и холодильного оборудования хранилищ картофеля, овощей и фруктов | | Дата добавления в базу: | 01.09.2013 | | Дата актуализации: | 01.01.2021 | | Дата введения: | 03.02.1982 | | Оглавление: | 1. Введение 2. Способы хранения и основные типы хранилищ картофеля и овощей 3. Рациональные схемы механизации работ с продукцией, хранящейся "навалом" 4. Механизация разгрузки продукции, поступающей в мягкой таре 5. Механизация разгрузки продукции, поступающей в ящиках 6. Механизация разгрузки продукции, поступающей в контейнерах 7. Механизация работы с бочковым товаром 8. Типы контейнеров для хранения плодоовощной продукции 9. Электропогрузчики 10. Средства малой механизации транспортных работ 11. Товарная обработка плодоовощной продукции 12. Тара-оборудование 13. Организация перемещения затаренной продукции в экспедицию и загрузка транспорта 14. Организация эксплуатации оборудования 15. Охрана труда и техника безопасности | | Утверждён: | 03.02.1982 Центросоюз (Tsentrosoyuz 2, п.2)
|
                                                         
|