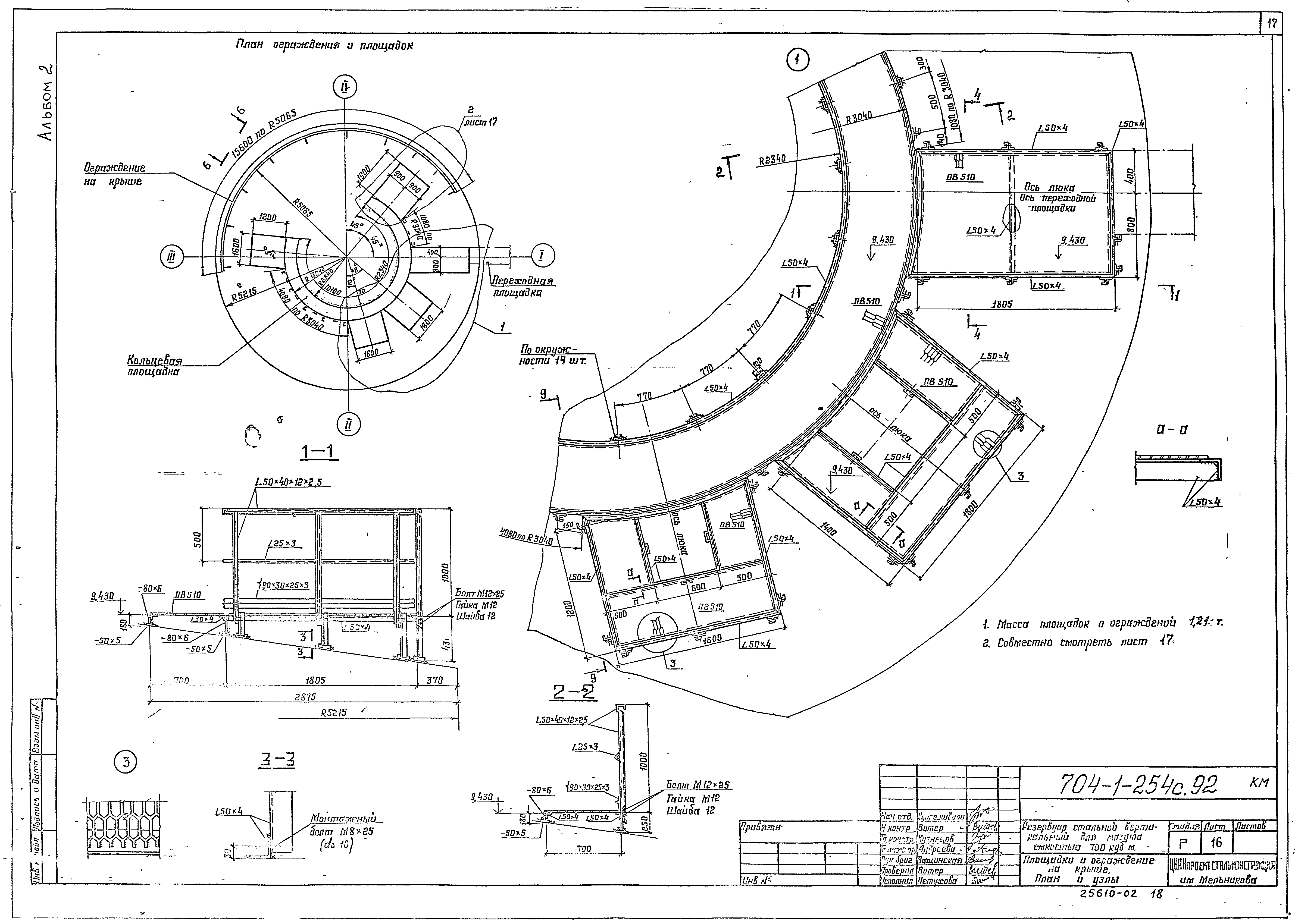
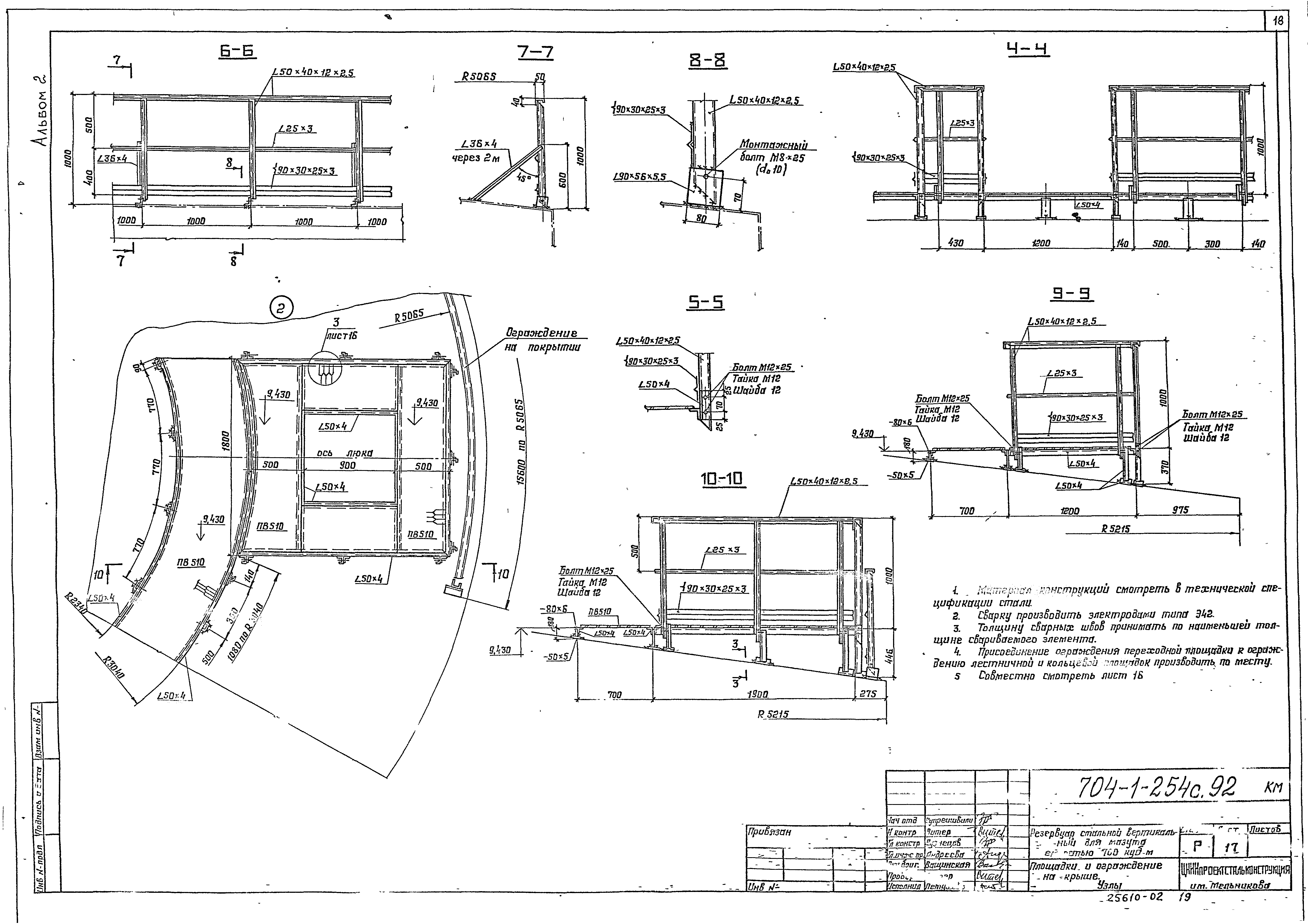
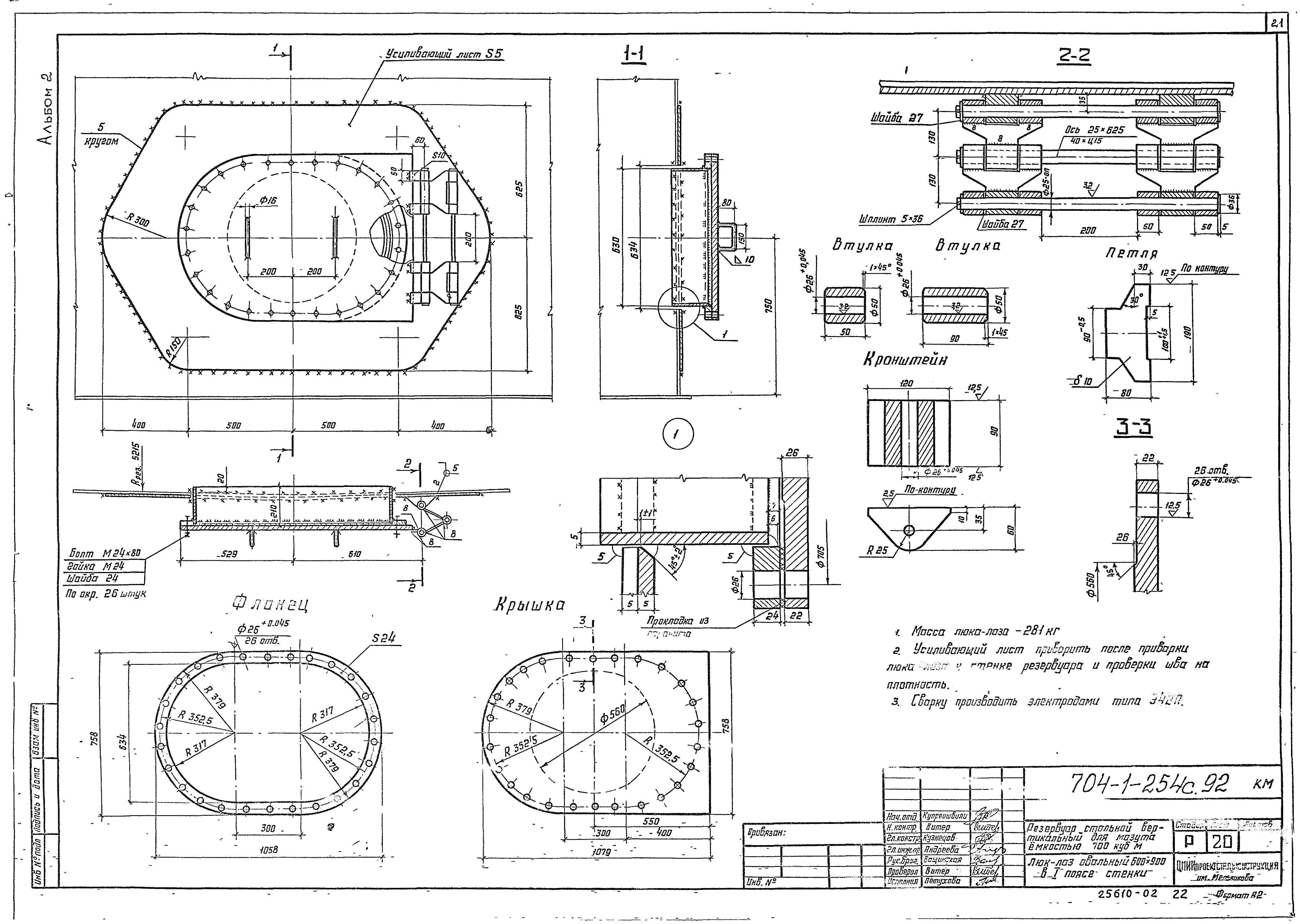
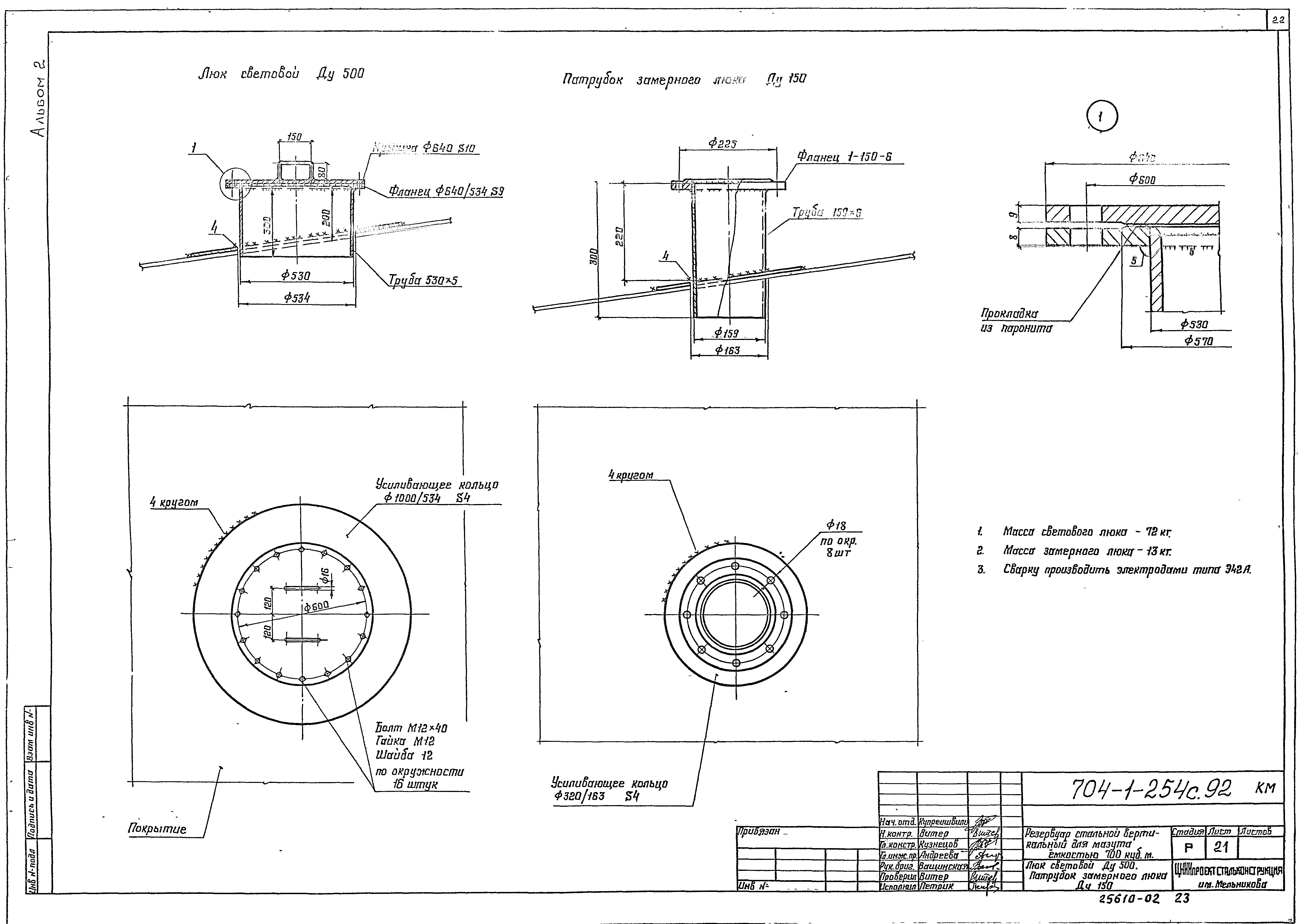
Скачать Типовой проект 704-1-254с.92 Альбом 2. Конструкции металлическиеДата актуализации: 01.01.2021
|
| Обозначение: | Типовой проект 704-1-254с.92 |
| Обозначение англ: | 704-1-254с.92 |
| Статус: | не определен законодательством |
| Название рус.: | Альбом 2. Конструкции металлические |
| Дата добавления в базу: | 01.09.2013 |
| Дата актуализации: | 01.01.2021 |
| Дата введения: | 13.10.1992 |
| Дата окончания срока действия: | 30.06.2003 |
| Разработан: | ЦНИИпроектстальконструкция |
| Утверждён: | 13.10.1992 Сантехниипроект (35) |


























