Скачать Типовой проект 704-1-254с.92 Альбом 4. Тепловая изоляцияДата актуализации: 01.01.2021
|
| Обозначение: | Типовой проект 704-1-254с.92 |
| Обозначение англ: | 704-1-254с.92 |
| Статус: | не определен законодательством |
| Название рус.: | Альбом 4. Тепловая изоляция |
| Дата добавления в базу: | 01.09.2013 |
| Дата актуализации: | 01.01.2021 |
| Дата введения: | 13.10.1992 |
| Дата окончания срока действия: | 30.06.2003 |
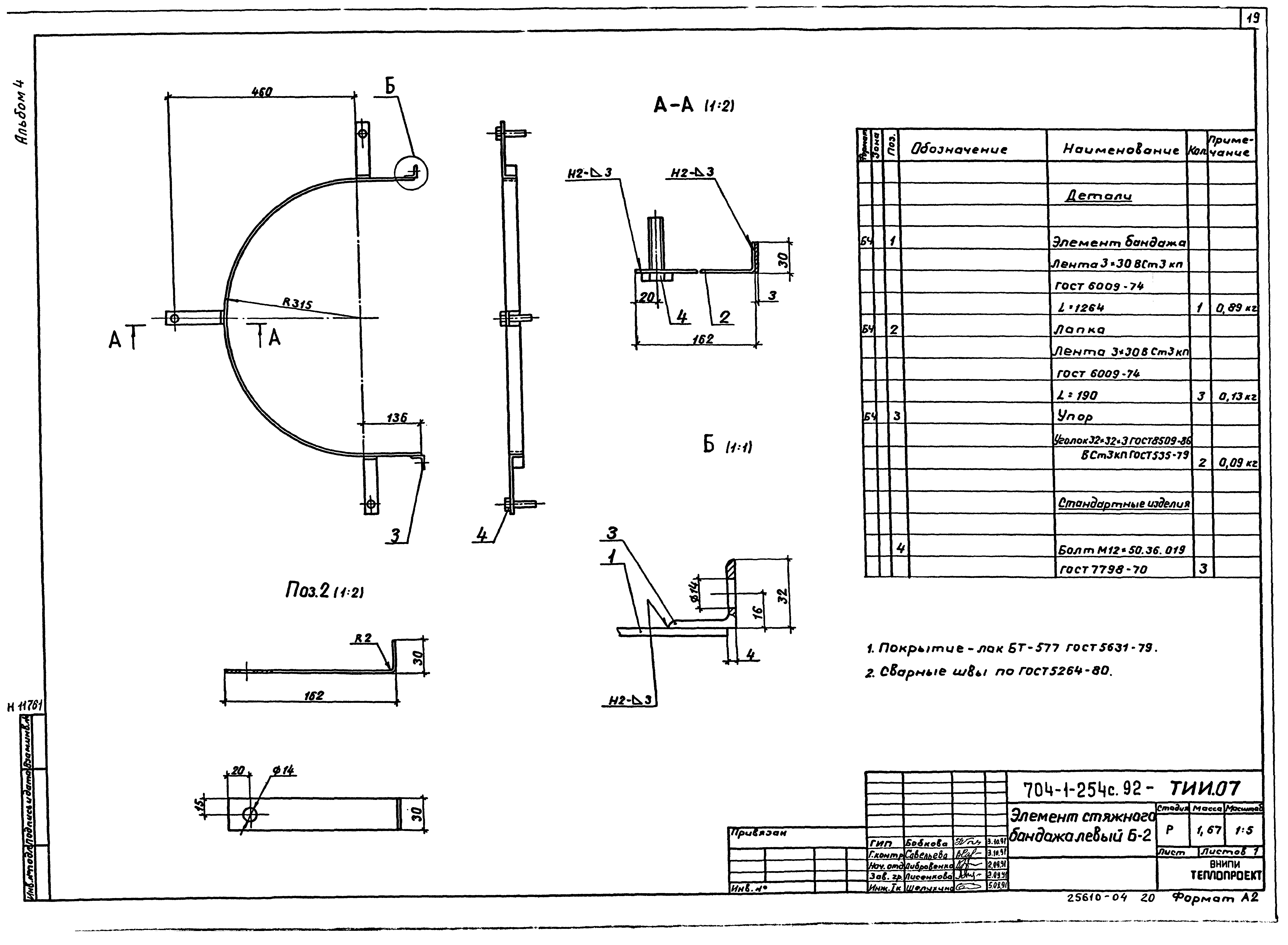
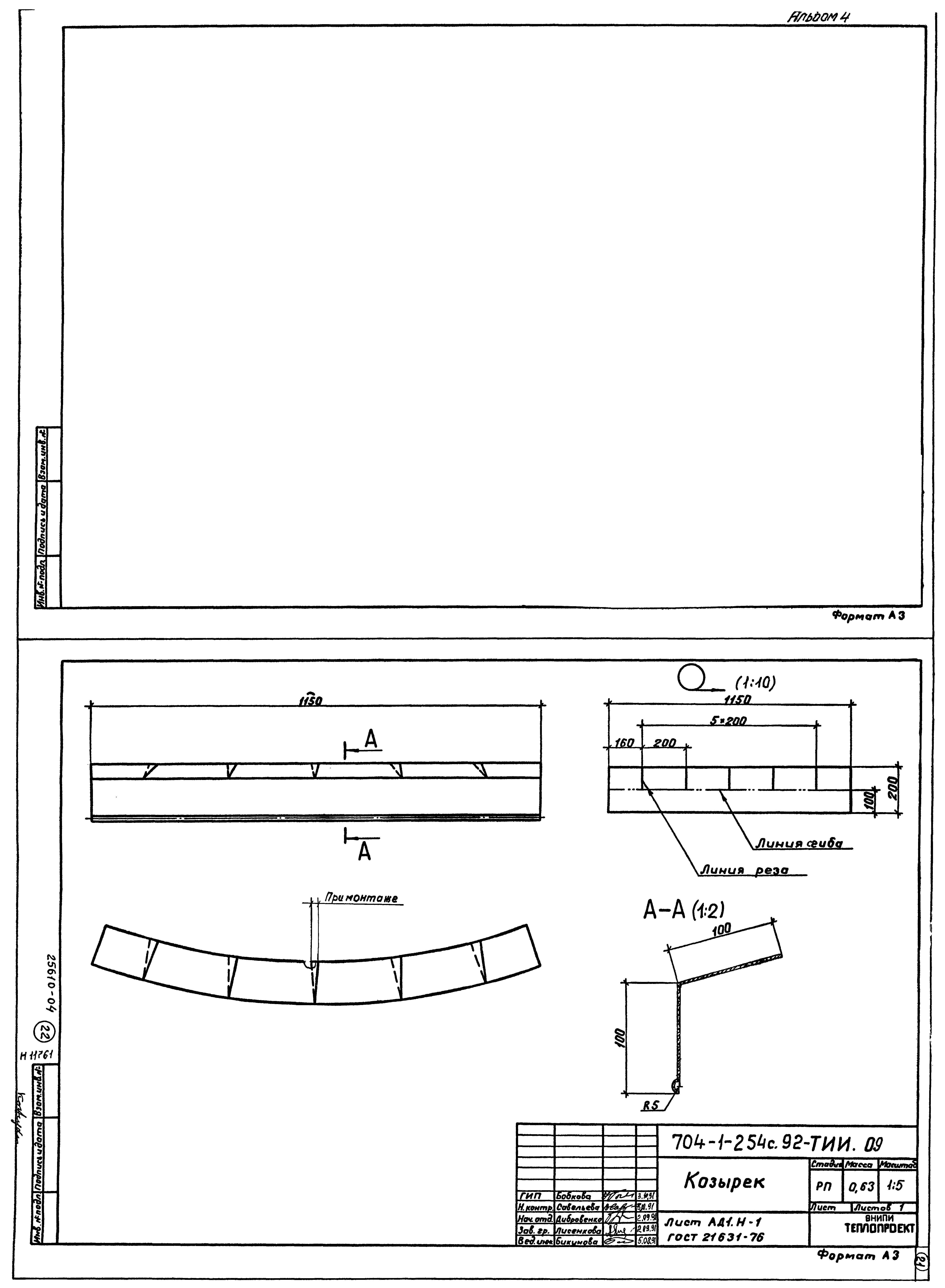
| Оглавление: | Общие данные Тепловая изоляция. Общий вид Тепловая изоляция. Разрезы, узлы Тепловая изоляция. Бандажи приварные. Общий вид, разрезы Тепловая изоляция. Бандажи приварные. Разрезы, узлы Тепловая изоляция крыши. Общий вид. Разрезы Тепловая изоляция крыши. Разрезы, узлы Приварные детали на крыше резервуара. Общий вид, разрезы Тепловая изоляция люка Ду500 и люка овального 600х900 ТИИ.01 Полуфутляр П-1 ТИИ.02 Элемент стяжного бандажа Б-1 ТИИ.03 Направляющая ТИИ.04 Решетка ТИИ.05 Элемент покрытия ТИИ.06 Полуфутляр П-2 ТИИ.07 Элемент стяжного бандажа левый Б-2 ТИИ.08 Элемент стяжного бандажа правый Б-3 ТИИ.09 Козырек |
| Разработан: | ВНИПИТеплопроект |
| Утверждён: | 13.10.1992 Сантехниипроект (35) |





















