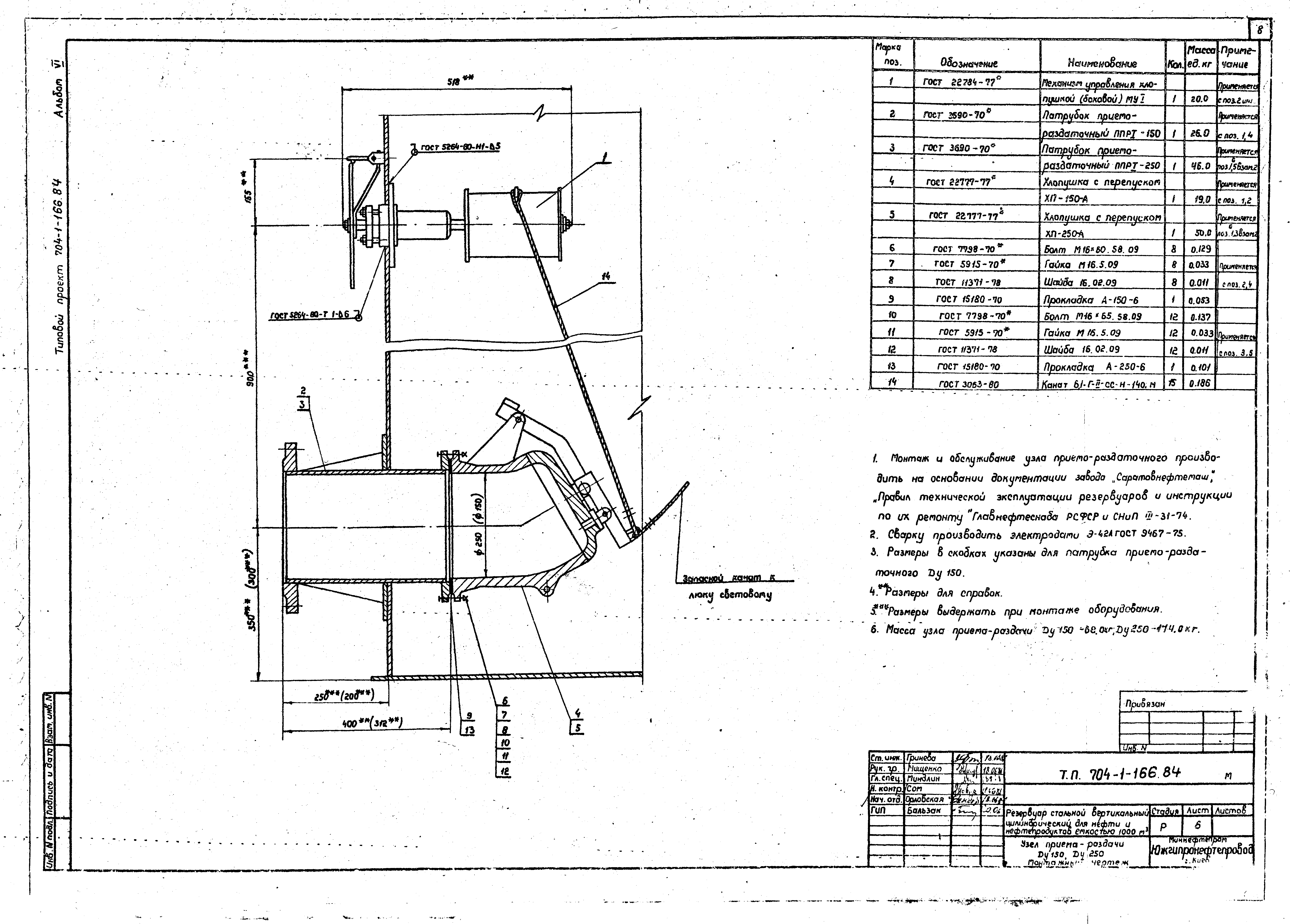
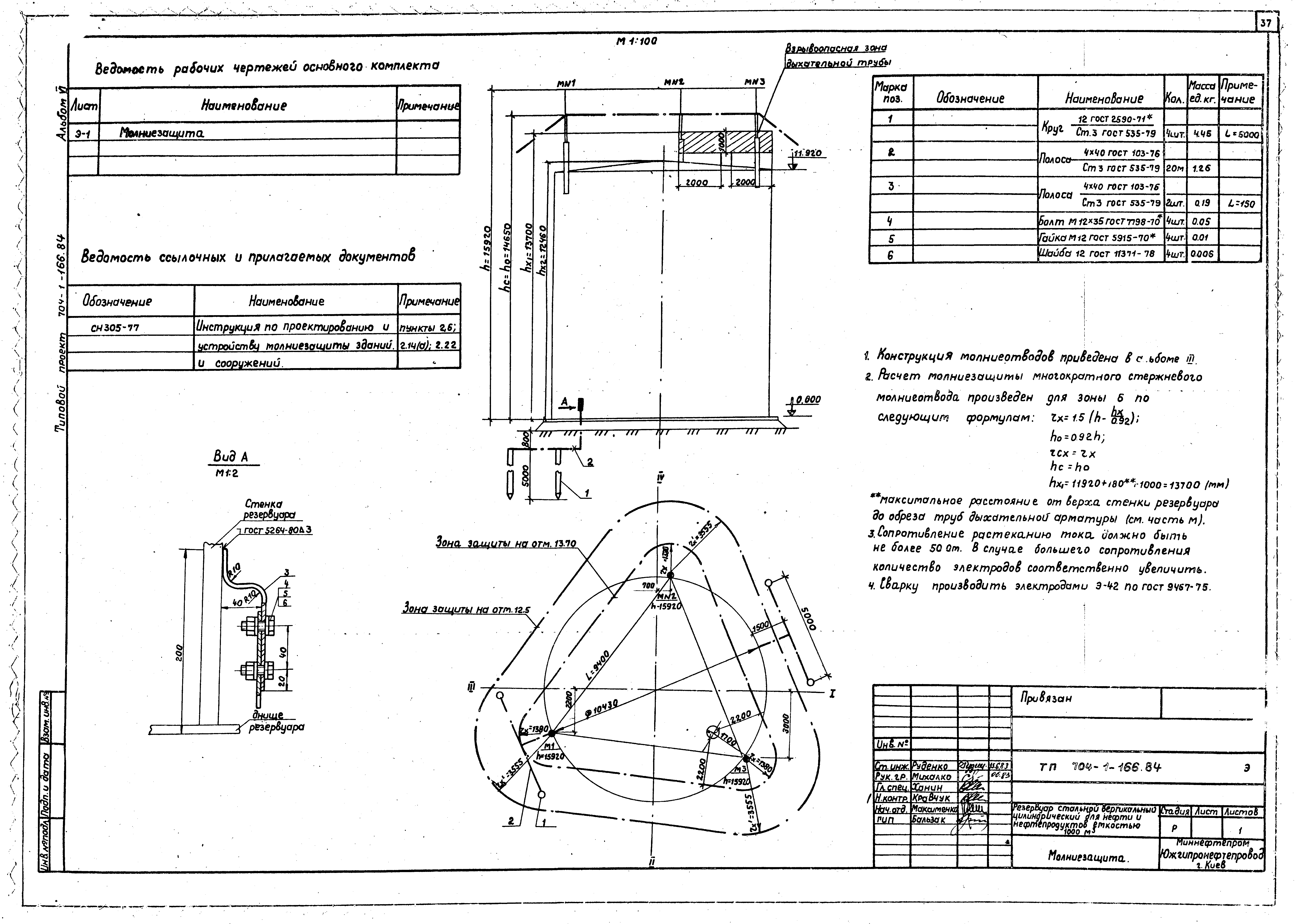
Скачать Типовой проект 704-1-166.84 Альбом VI. Оборудование резервуаров без понтона для высокозастывающих нефтей и нефтепродуктовДата актуализации: 01.01.2021
|
| Обозначение: | Типовой проект 704-1-166.84 |
| Обозначение англ: | 704-1-166.84 |
| Статус: | заменен |
| Название рус.: | Альбом VI. Оборудование резервуаров без понтона для высокозастывающих нефтей и нефтепродуктов |
| Дата добавления в базу: | 01.09.2013 |
| Дата актуализации: | 01.01.2021 |
| Дата введения: | 16.06.1983 |
| Дата окончания срока действия: | 01.02.1993 |
| Разработан: | Южгипронефтепровод Миннефтепрома СССР |
| Утверждён: | 16.06.1983 Миннефтепром (Minnefteprom ) |
| Чем заменён: |
|










































