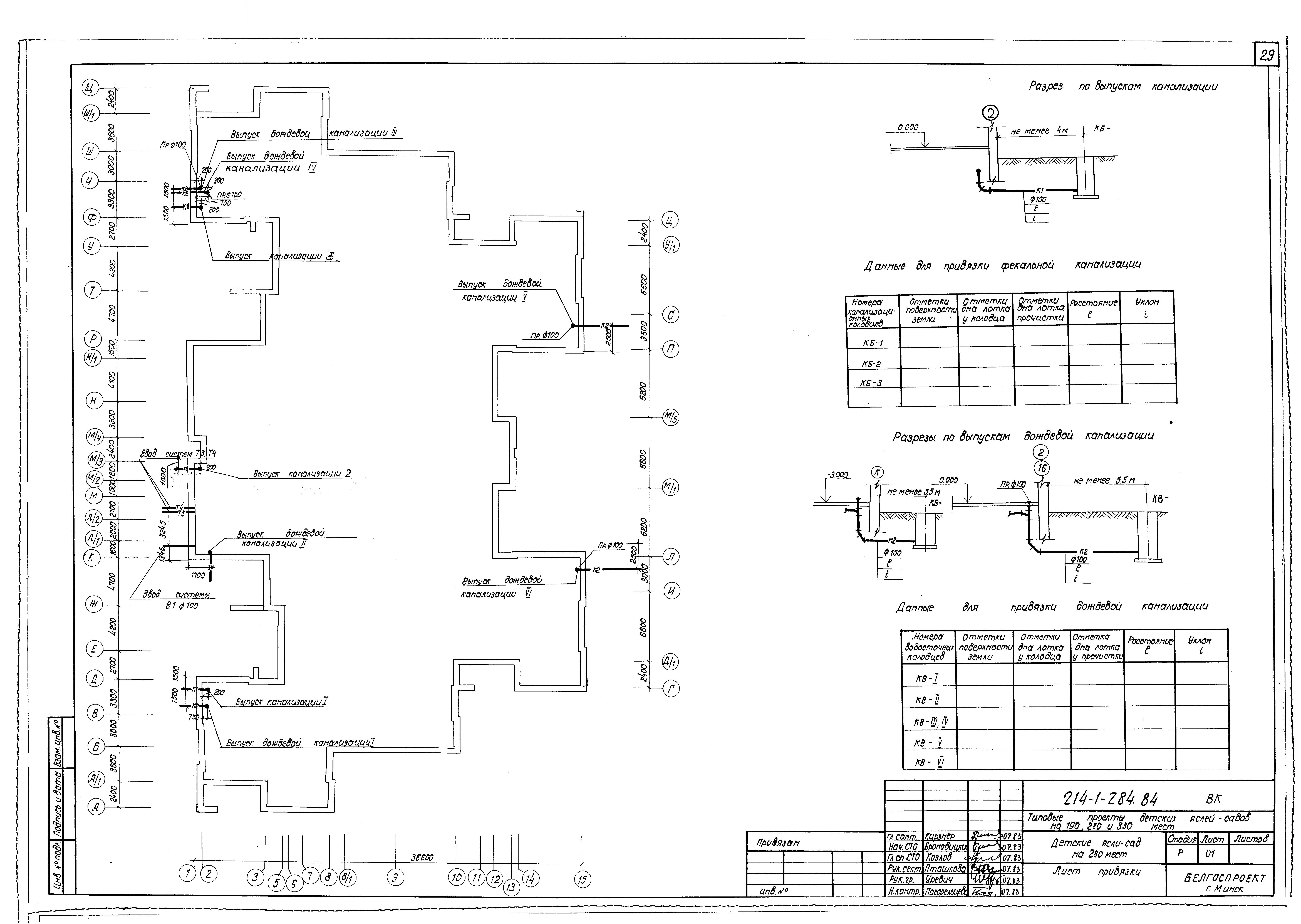
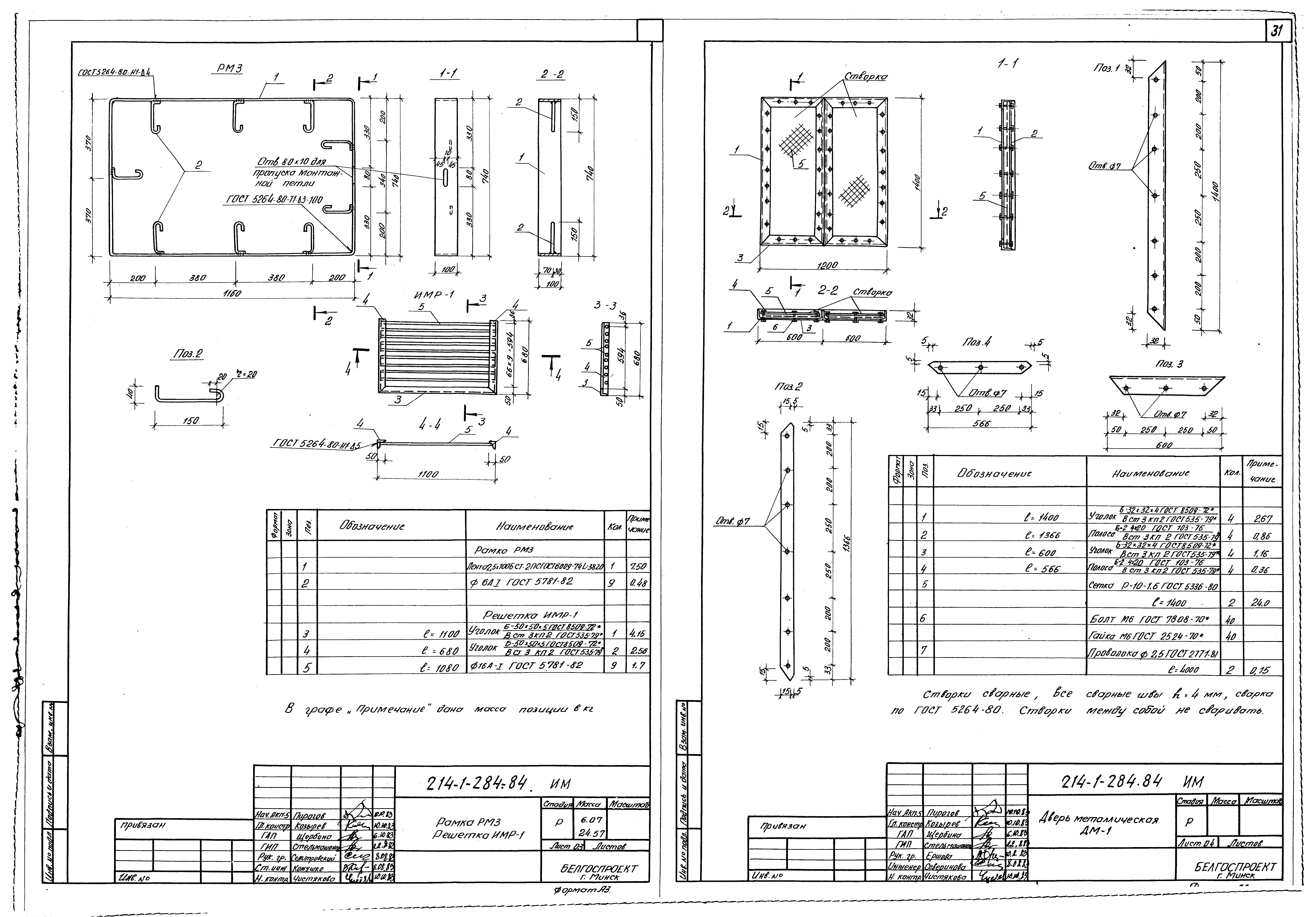
Скачать Типовой проект 214-1-284.84 Альбом 0. Материалы для привязки и чертежи нулевого цикла работДата актуализации: 01.01.2021
|
| Обозначение: | Типовой проект 214-1-284.84 |
| Обозначение англ: | 214-1-284.84 |
| Статус: | не определен законодательством |
| Название рус.: | Альбом 0. Материалы для привязки и чертежи нулевого цикла работ |
| Дата добавления в базу: | 01.09.2013 |
| Дата актуализации: | 01.01.2021 |
| Дата введения: | 01.08.1984 |
| Дата окончания срока действия: | 30.06.2003 |
| Разработан: | Белгоспроект |
| Утверждён: | 04.04.1984 Госстрой БССР (BSSR Gosstroy 60) |
































