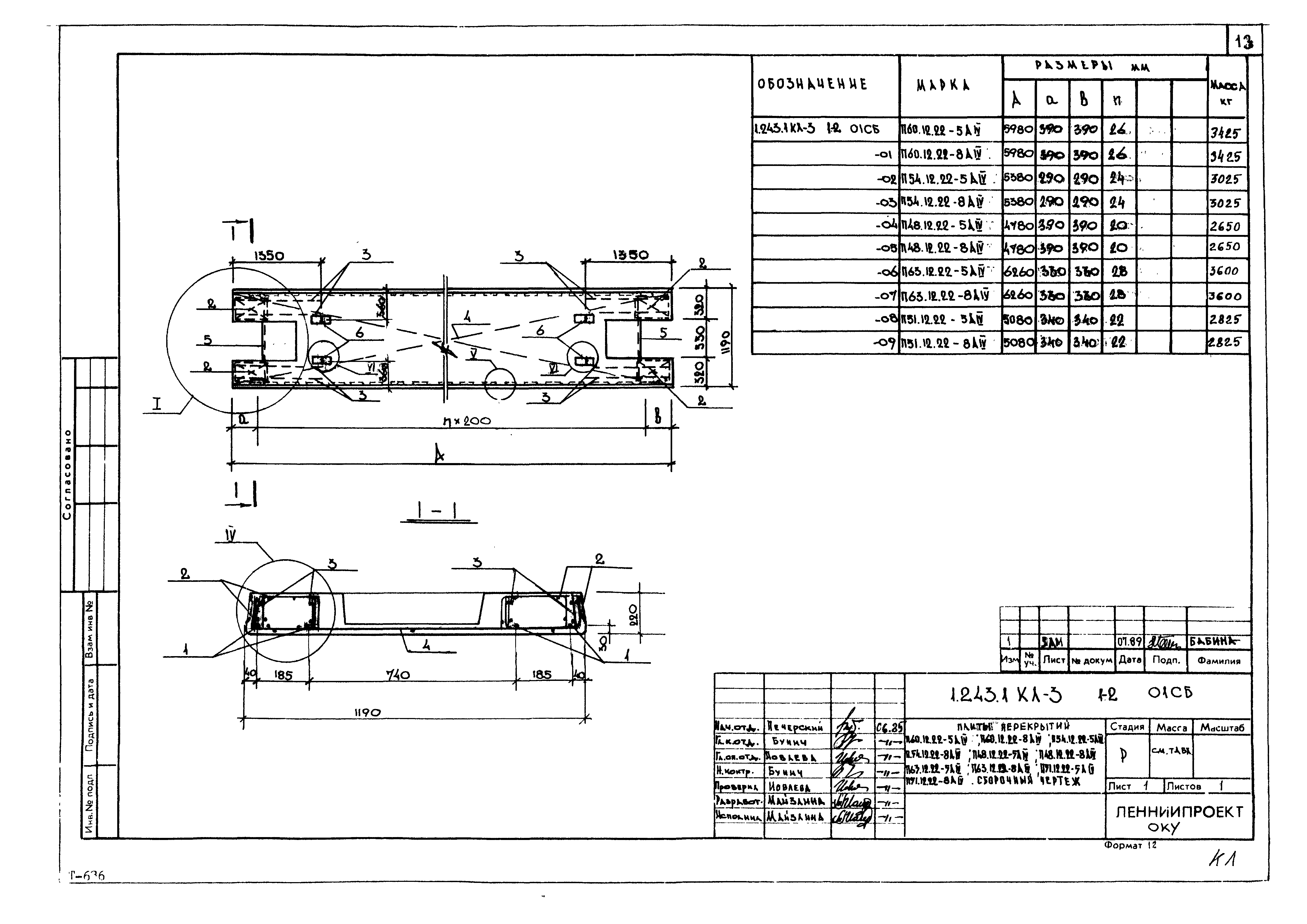
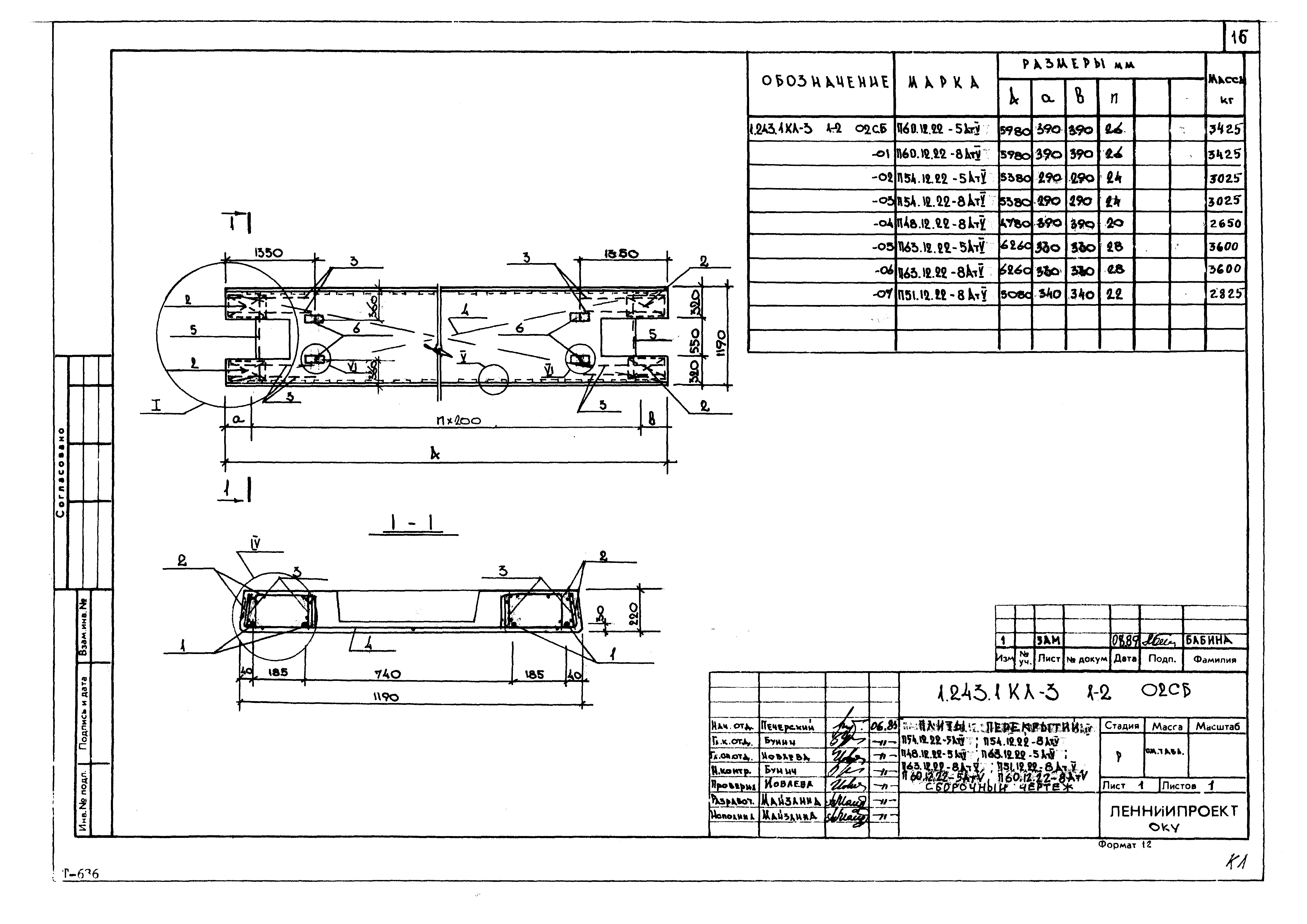
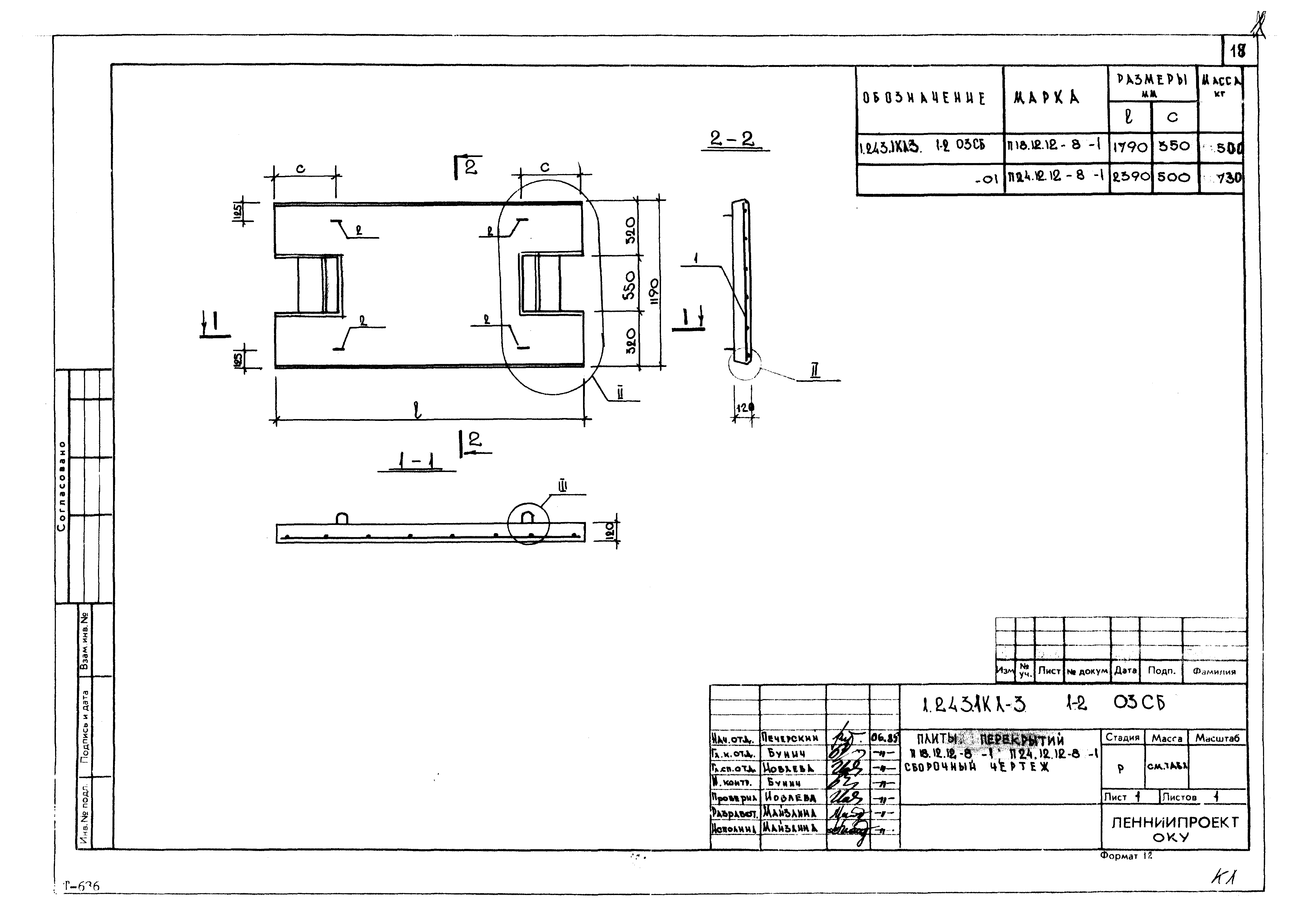
Скачать Серия 1.243.1 КЛ-3 Выпуск 1-2. Плиты межколонные вкладного перекрытия каркасов первых этажейДата актуализации: 01.01.2021 Серия 1.243.1 КЛ-3
Выпуск 1-2. Плиты межколонные вкладного перекрытия каркасов первых этажей| Обозначение: | Серия 1.243.1 КЛ-3 | | Обозначение англ: | Series 1.243.1 КЛ-3 | | Статус: | не действует | | Название рус.: | Выпуск 1-2. Плиты межколонные вкладного перекрытия каркасов первых этажей | | Дата добавления в базу: | 01.09.2013 | | Дата актуализации: | 01.01.2021 | | Разработан: | Ленниипроект
| | Утверждён: | 14.08.1985 Ленниипроект (85-У)
|
                    
|