Скачать Типовой проект 503-149 Альбом I. Главный корпус. Пояснительная записка. Схема генплана. Технологическая частьДата актуализации: 01.01.2021
|
| Обозначение: | Типовой проект 503-149 |
| Обозначение англ: | 503-149 |
| Статус: | действует |
| Название рус.: | Альбом I. Главный корпус. Пояснительная записка. Схема генплана. Технологическая часть |
| Дата добавления в базу: | 01.09.2013 |
| Дата актуализации: | 01.01.2021 |
| Дата введения: | 30.12.1971 |
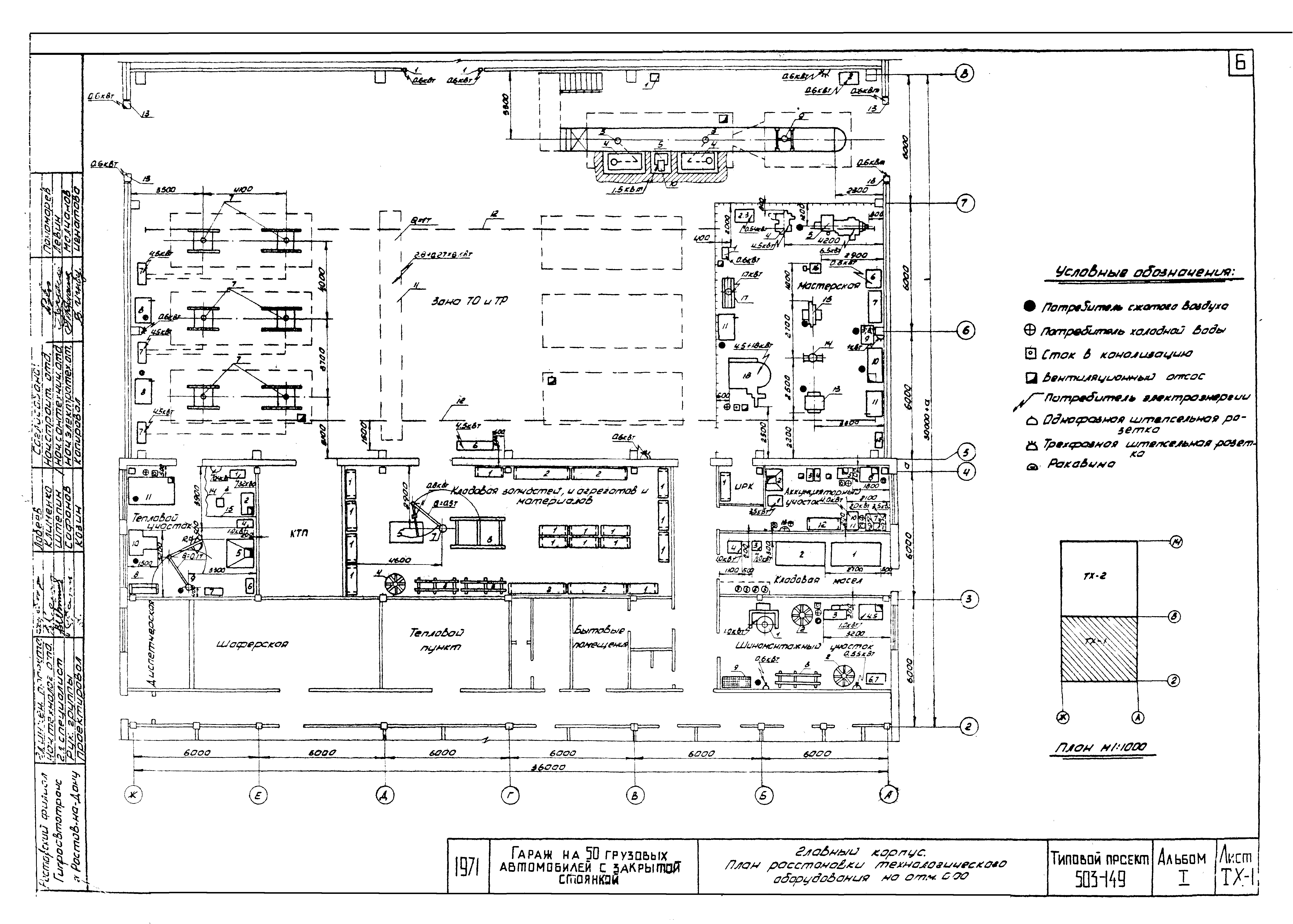
| Оглавление: | ТП-503-149 Содержание альбома ТП-503-149 Пояснительная записка ТП-503-149 Схема генерального плана ТП-503-149 ТХ-1 План расстановки технологического оборудования производственной части ТП-503-149 ТХ-2 План расстановки технологического оборудования ТП-503-149 ТХ-3 Спецификация технологического оборудования (начало) ТП-503-149 ТХ-4 Спецификация технологического оборудования (окончание) ТП-503-149 ТХ-5 План и схема трубопроводов сжатого воздуха. Спецификация материалов и арматуры ТП-503-149 ТХ-6 Маслохозяйство. План. Схема разводки трубопроводов. Спецификация материалов и арматуры |
| Разработан: | Ростовский филиал Гипроавтотранса Минавтотранса РСФСР |
| Утверждён: | 22.12.1971 Минавтотранс РСФСР (Russian Federation Minavtotrans 189) |











