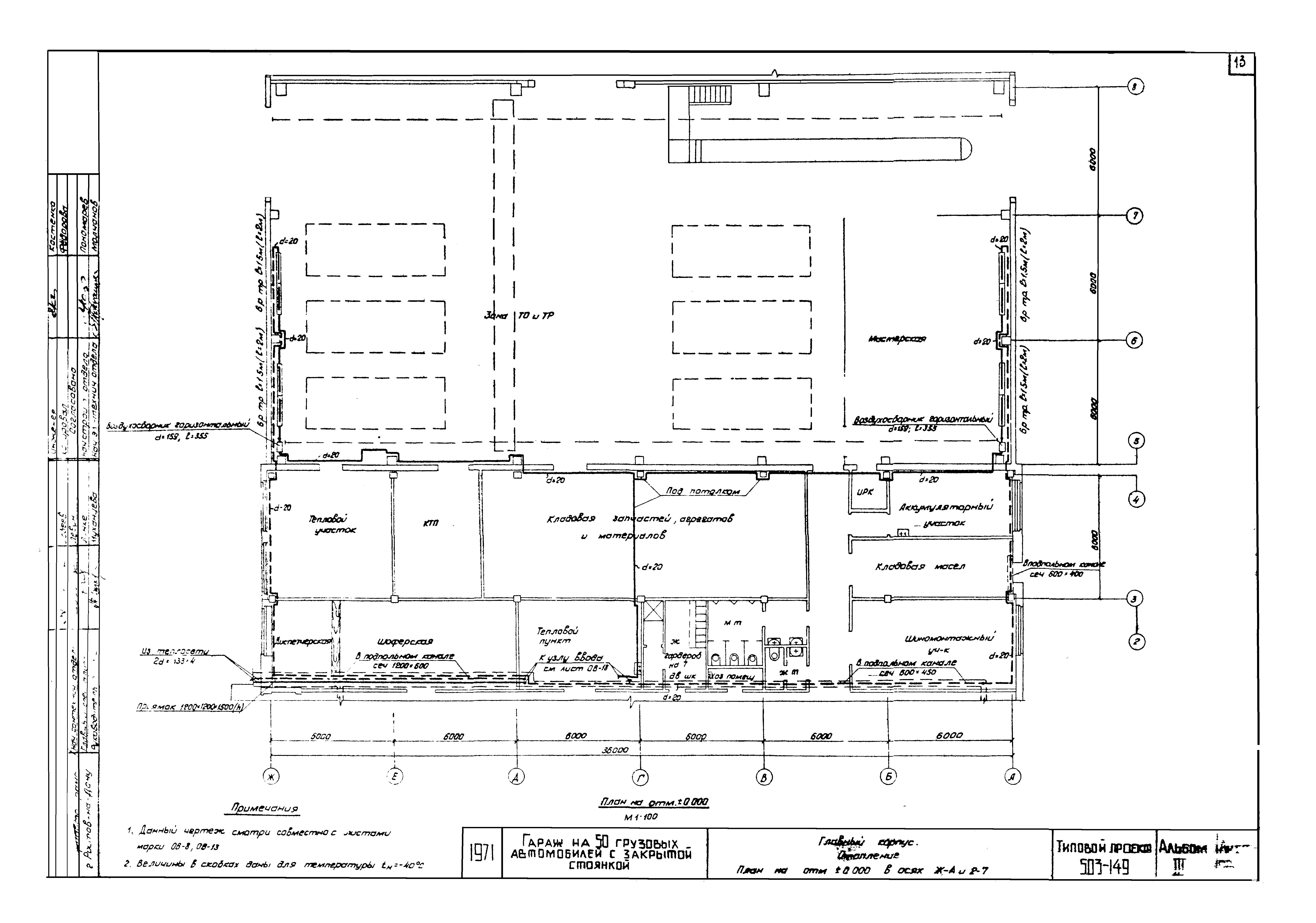
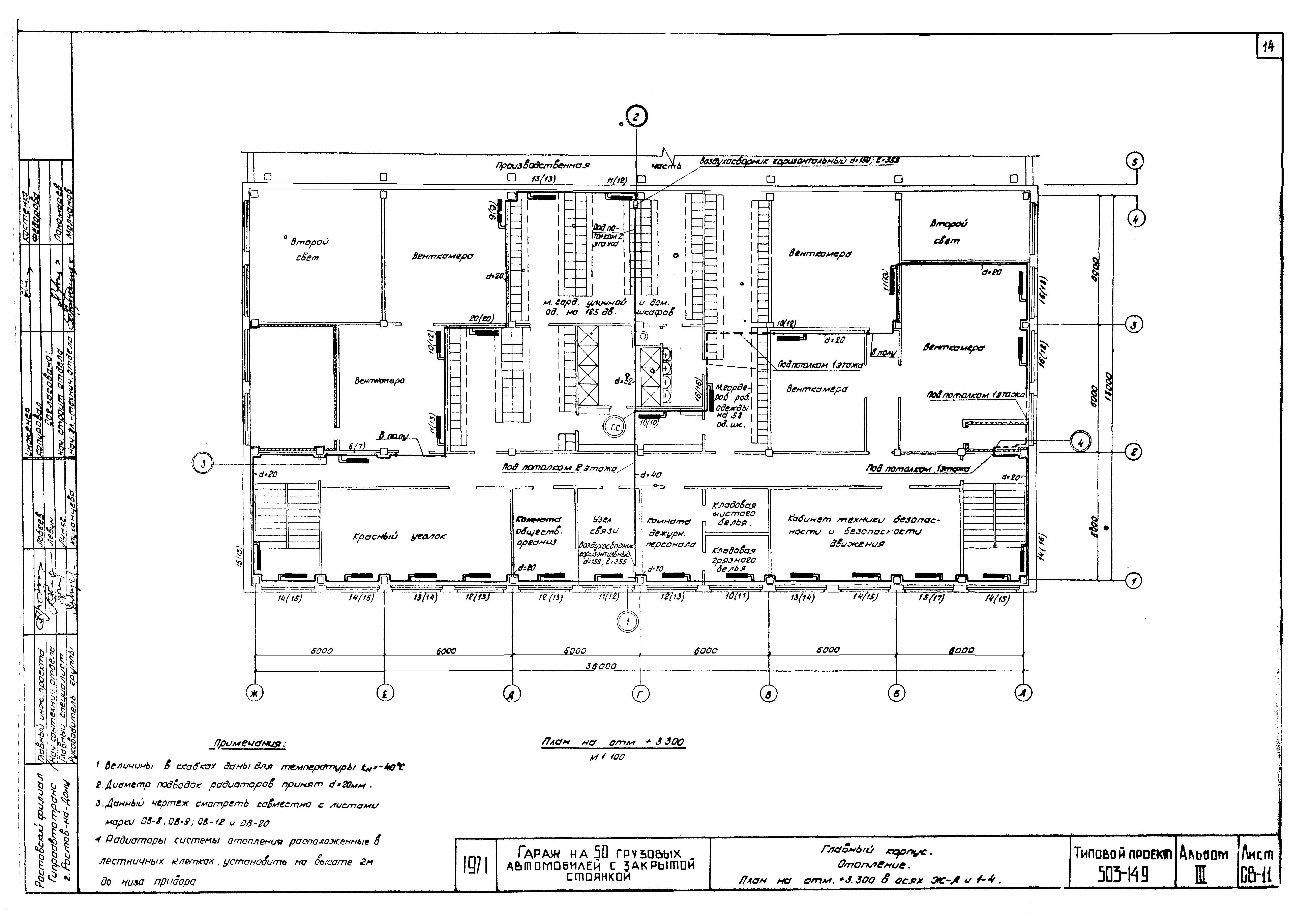
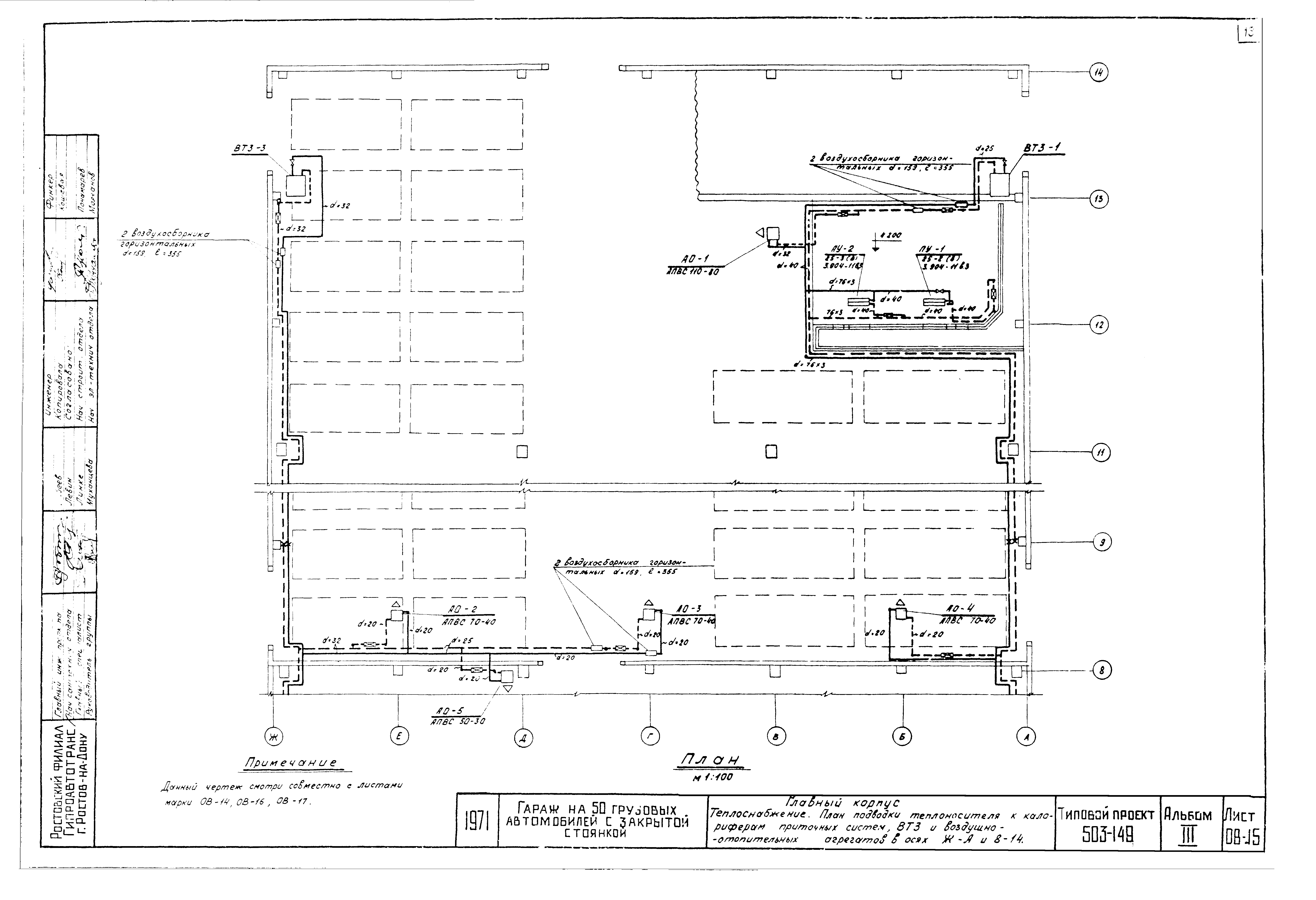
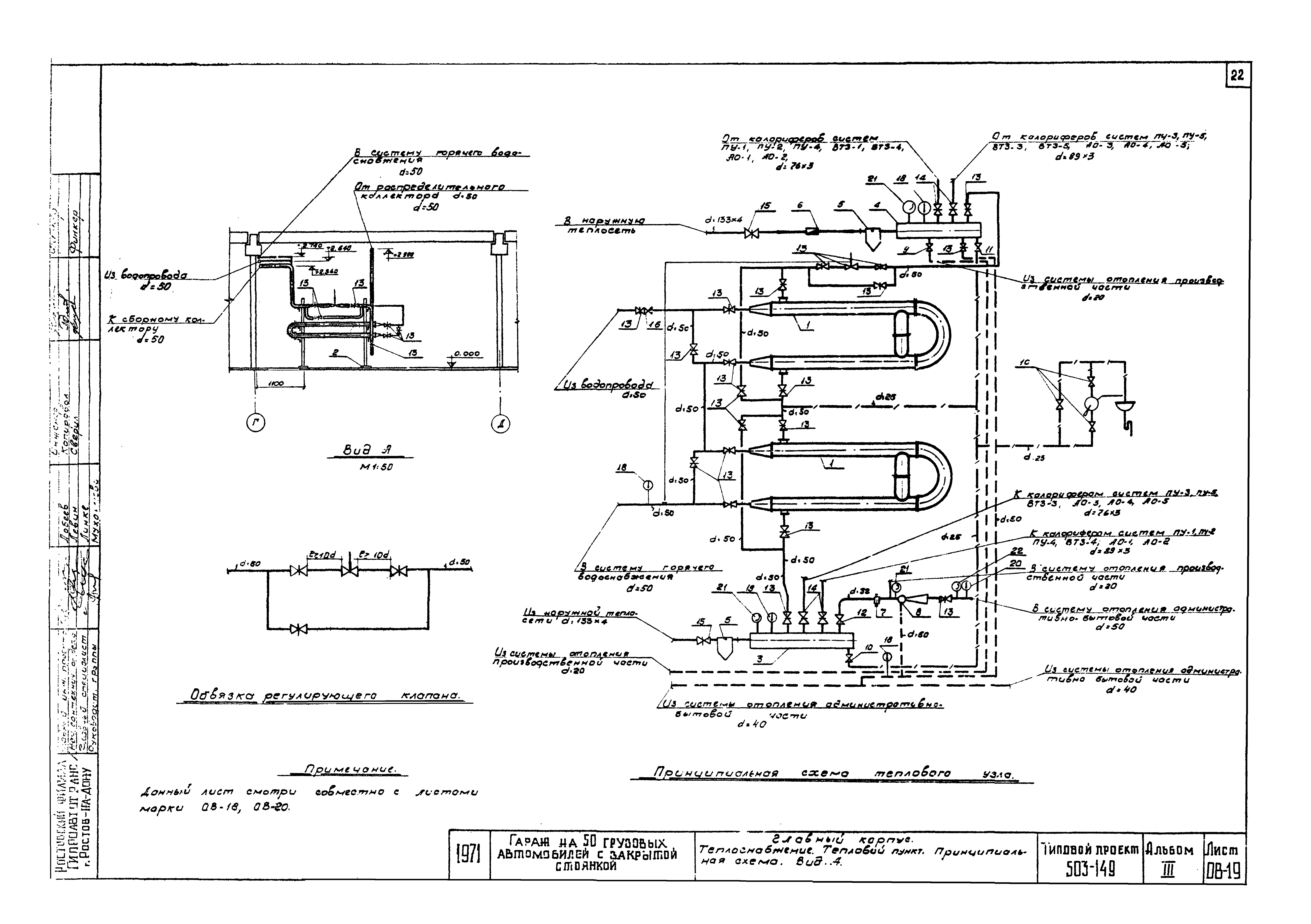
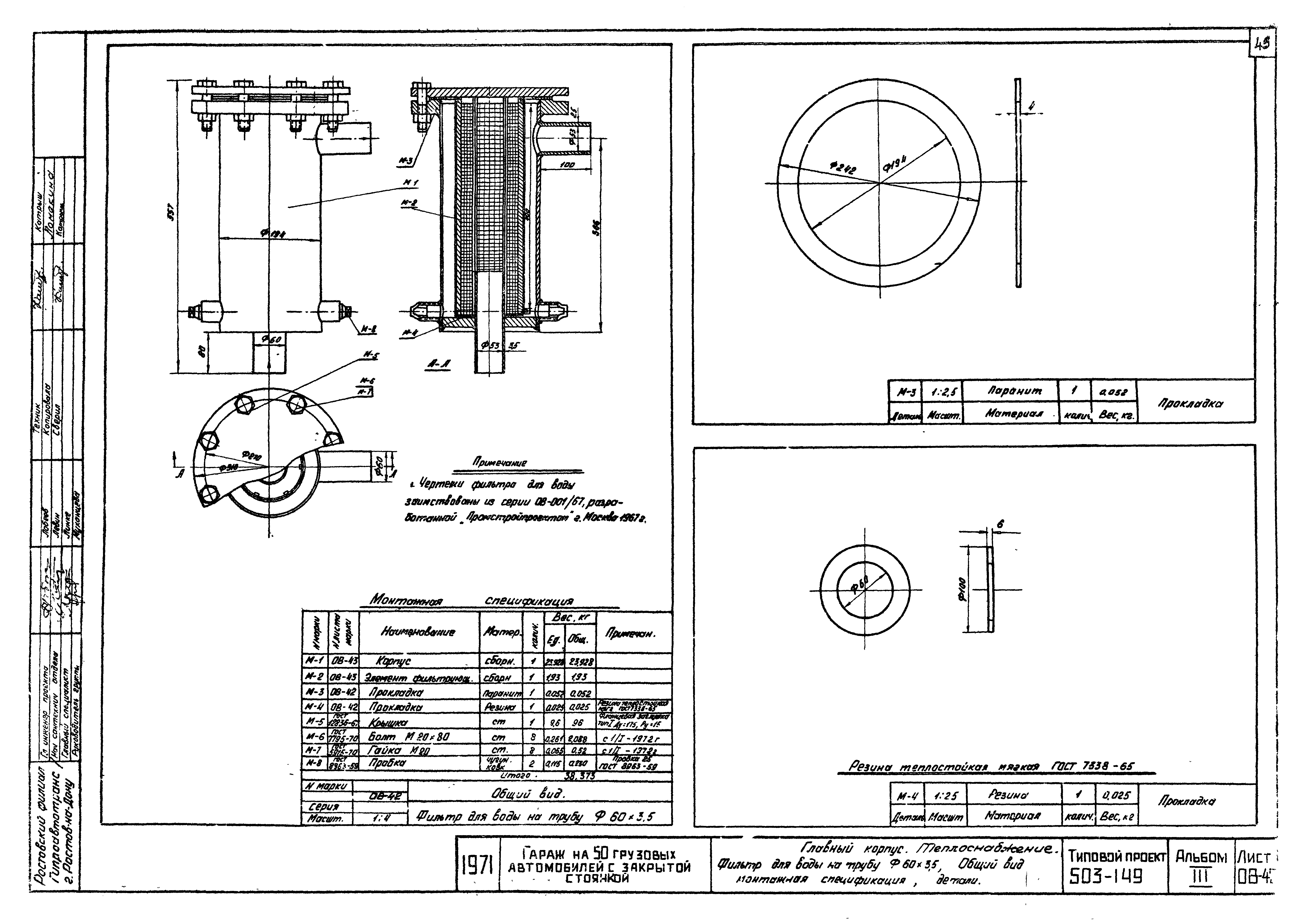
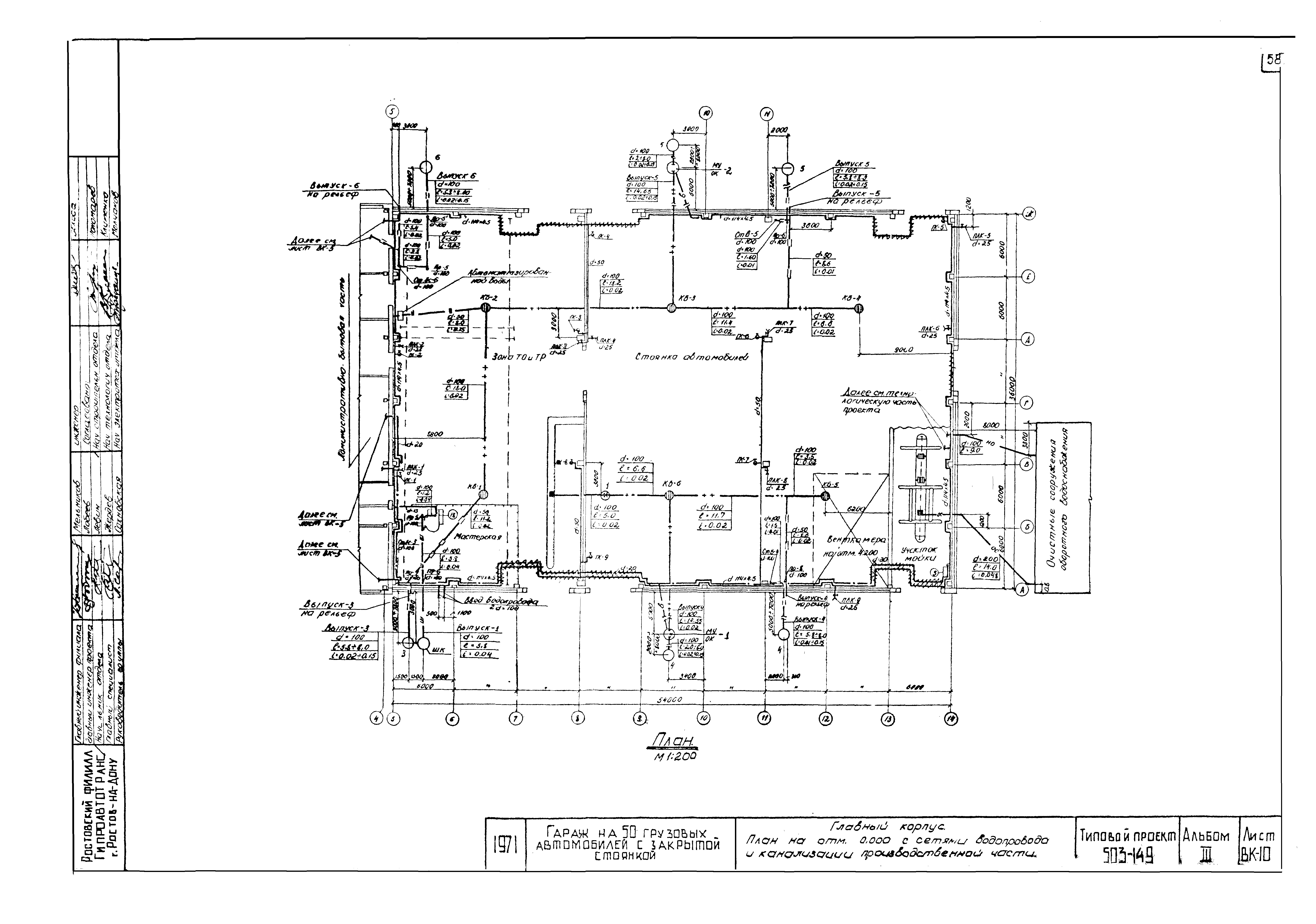
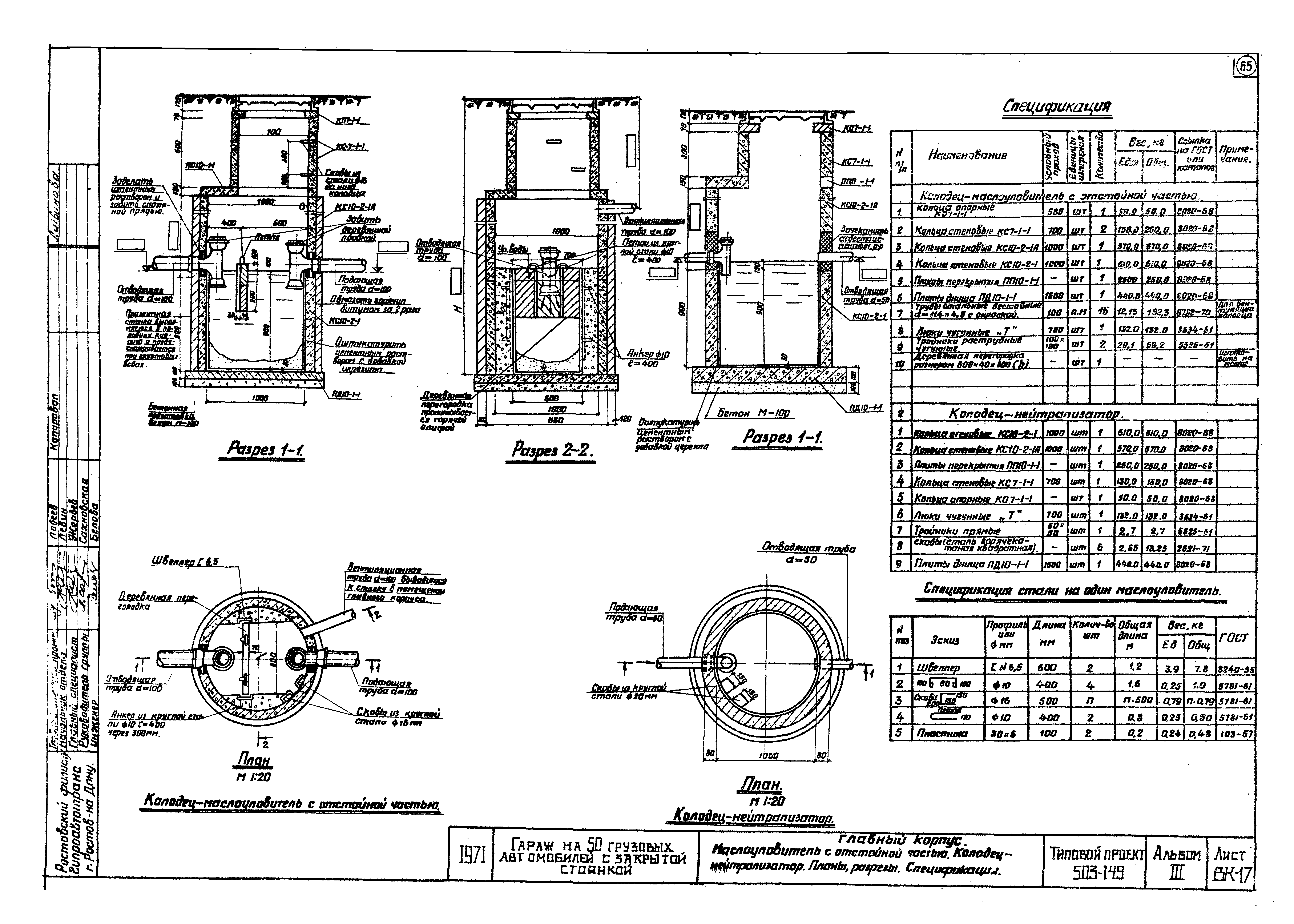
Скачать Типовой проект 503-149 Альбом III. Главный корпус. Санитарно-техническая частьДата актуализации: 01.01.2021 Типовой проект 503-149
Альбом III. Главный корпус. Санитарно-техническая часть| Обозначение: | Типовой проект 503-149 | | Обозначение англ: | 503-149 | | Статус: | действует | | Название рус.: | Альбом III. Главный корпус. Санитарно-техническая часть | | Дата добавления в базу: | 01.09.2013 | | Дата актуализации: | 01.01.2021 | | Дата введения: | 30.12.1971 | | Разработан: | Ростовский филиал Гипроавтотранса Минавтотранса РСФСР
| | Утверждён: | 22.12.1971 Минавтотранс РСФСР (Russian Federation Minavtotrans 189)
|
                                                               
|