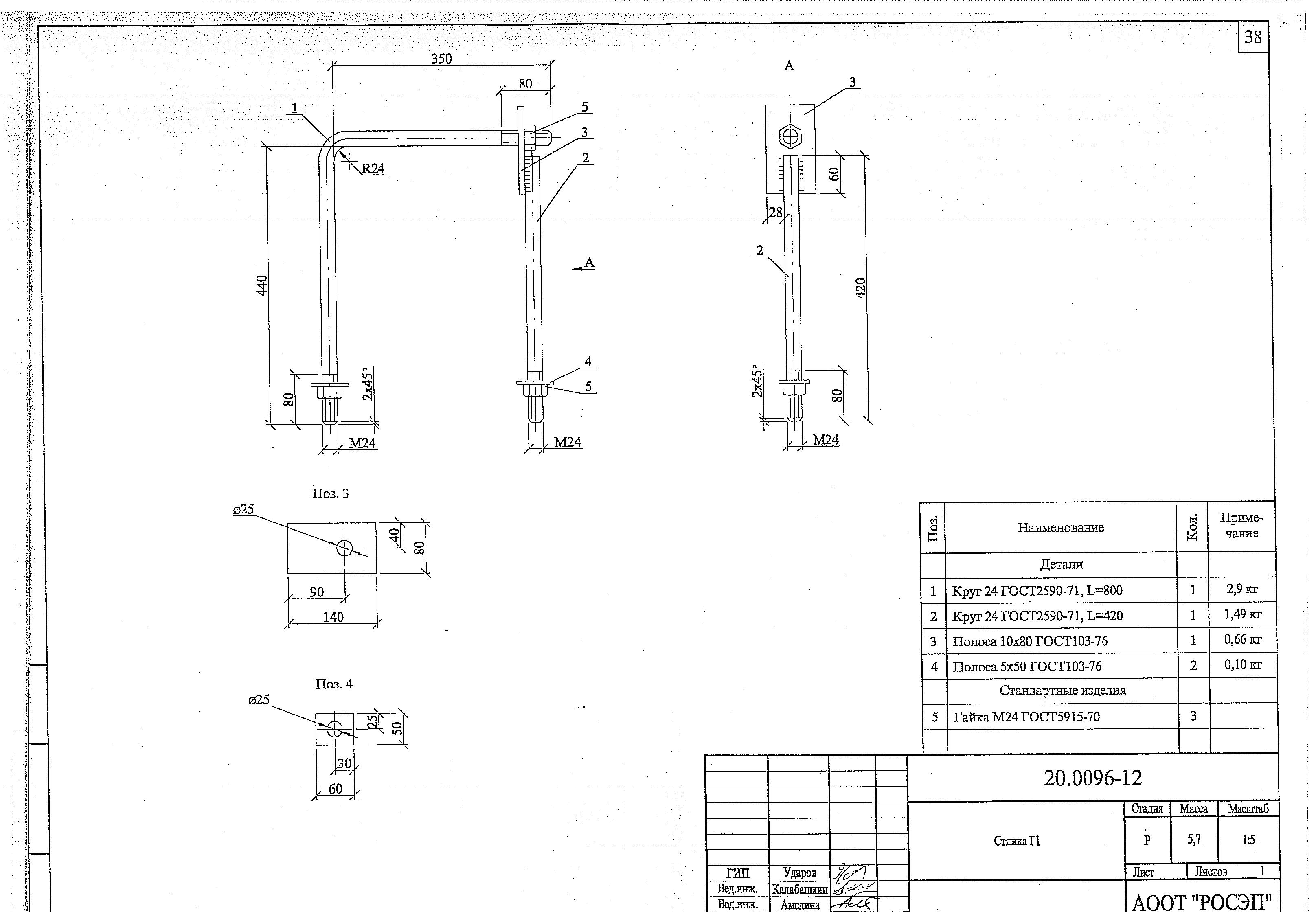
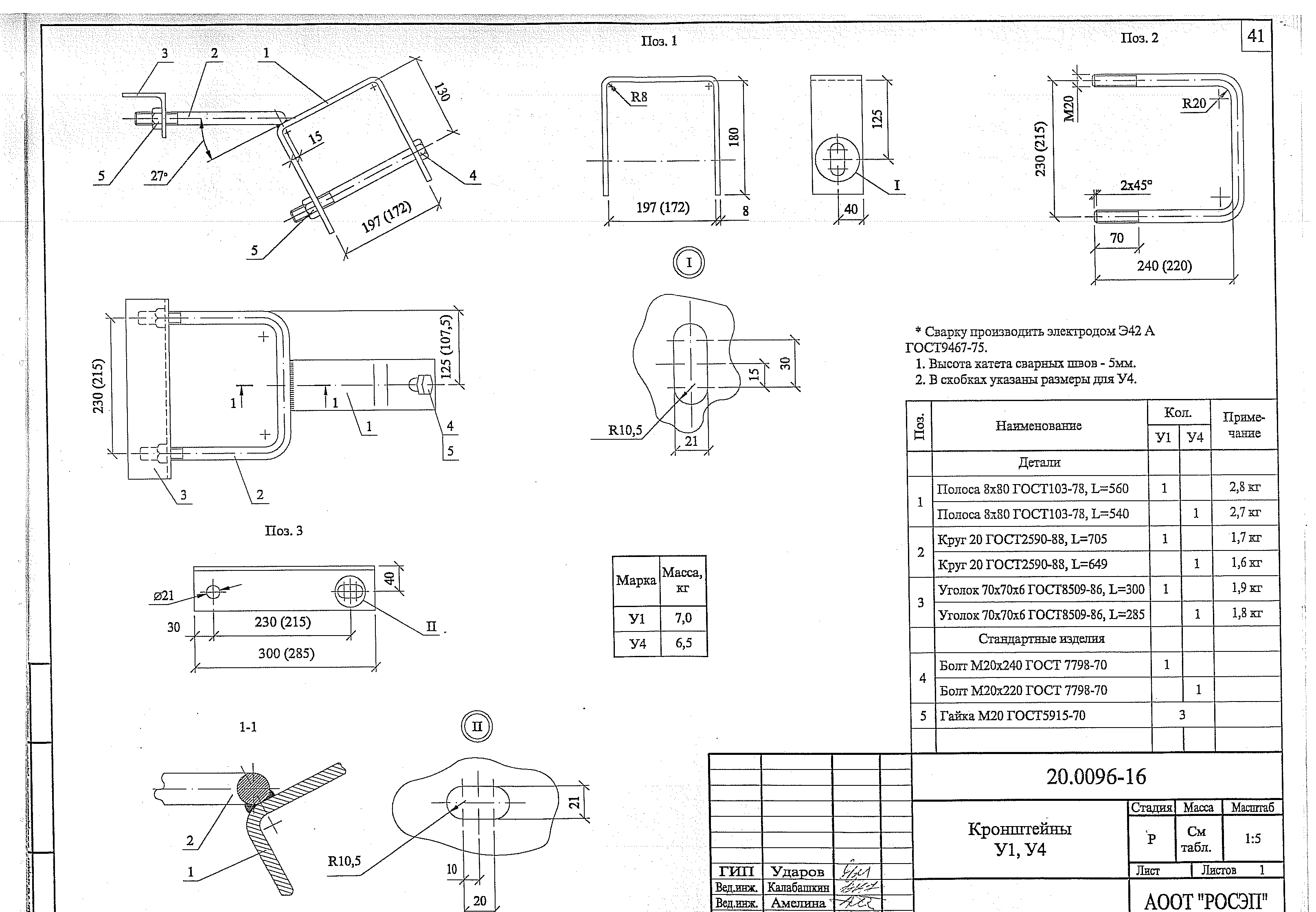
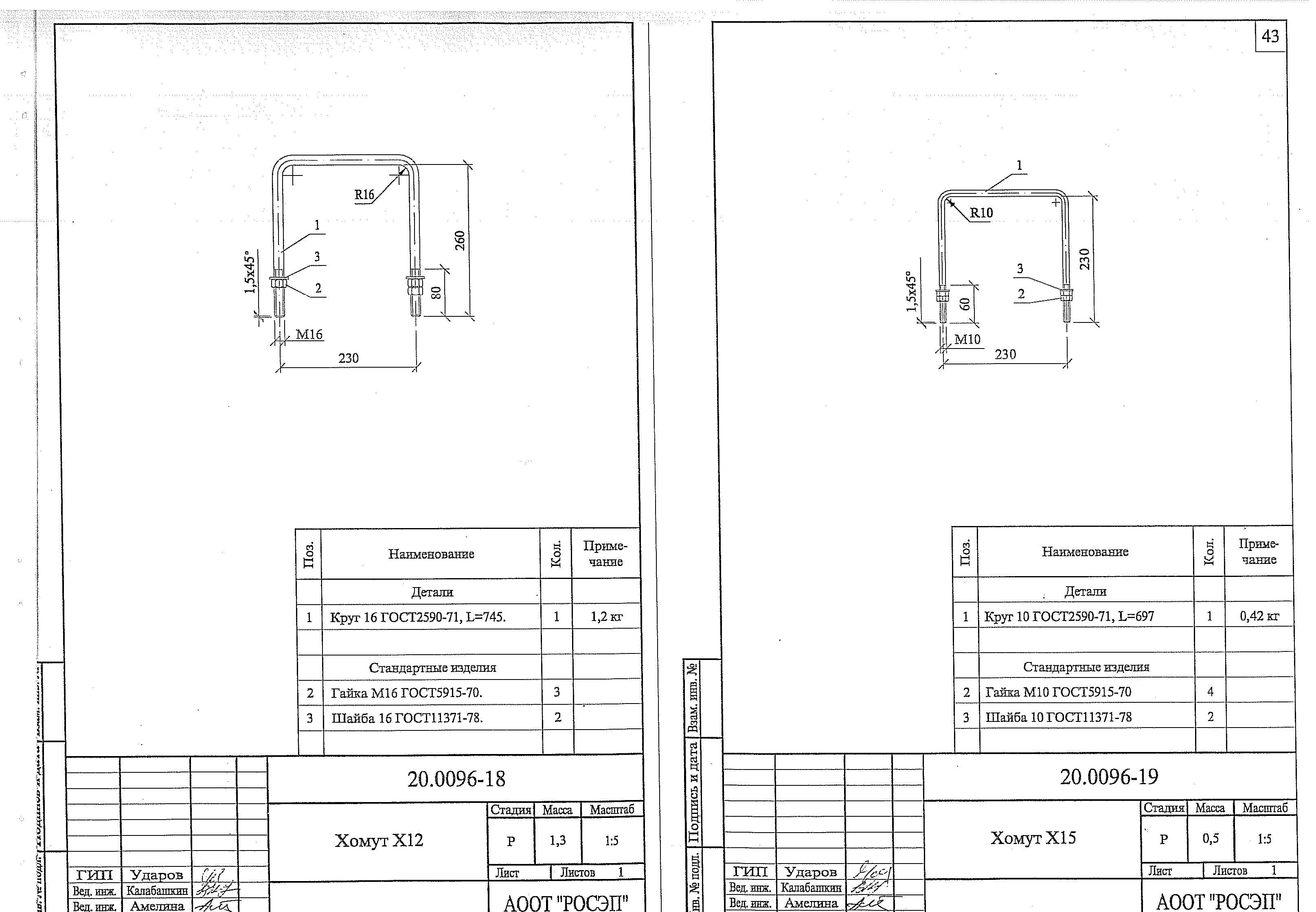
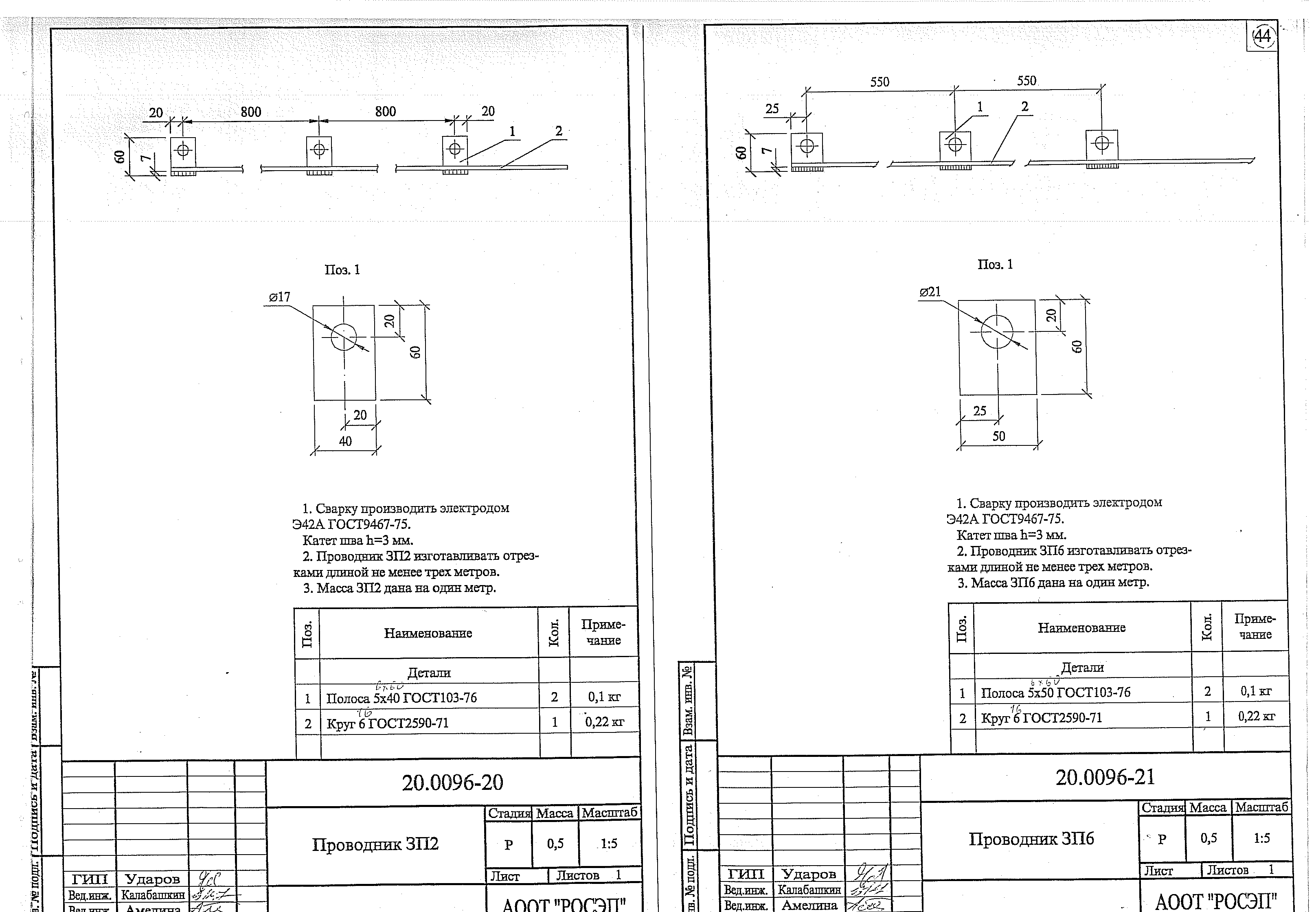
Скачать 20.0096 Переходные железобетонные опоры для совместной подвески самонесущих изолированных проводов ВЛИ 0,4 кВ и СИП для освещенияДата актуализации: 01.01.2021 20.0096
Переходные железобетонные опоры для совместной подвески самонесущих изолированных проводов ВЛИ 0,4 кВ и СИП для освещения| Обозначение: | 20.0096 | | Обозначение англ: | 20.0096 | | Статус: | не определен законодательством | | Название рус.: | Переходные железобетонные опоры для совместной подвески самонесущих изолированных проводов ВЛИ 0,4 кВ и СИП для освещения | | Дата добавления в базу: | 01.09.2013 | | Дата актуализации: | 01.01.2021 | | Дата введения: | 01.01.2000 | | Дата окончания срока действия: | 30.06.2003 | | Разработан: | АООТ РОСЭП
| | Утверждён: | 01.01.2000 АООТ РОСЭП
|
                                           
|