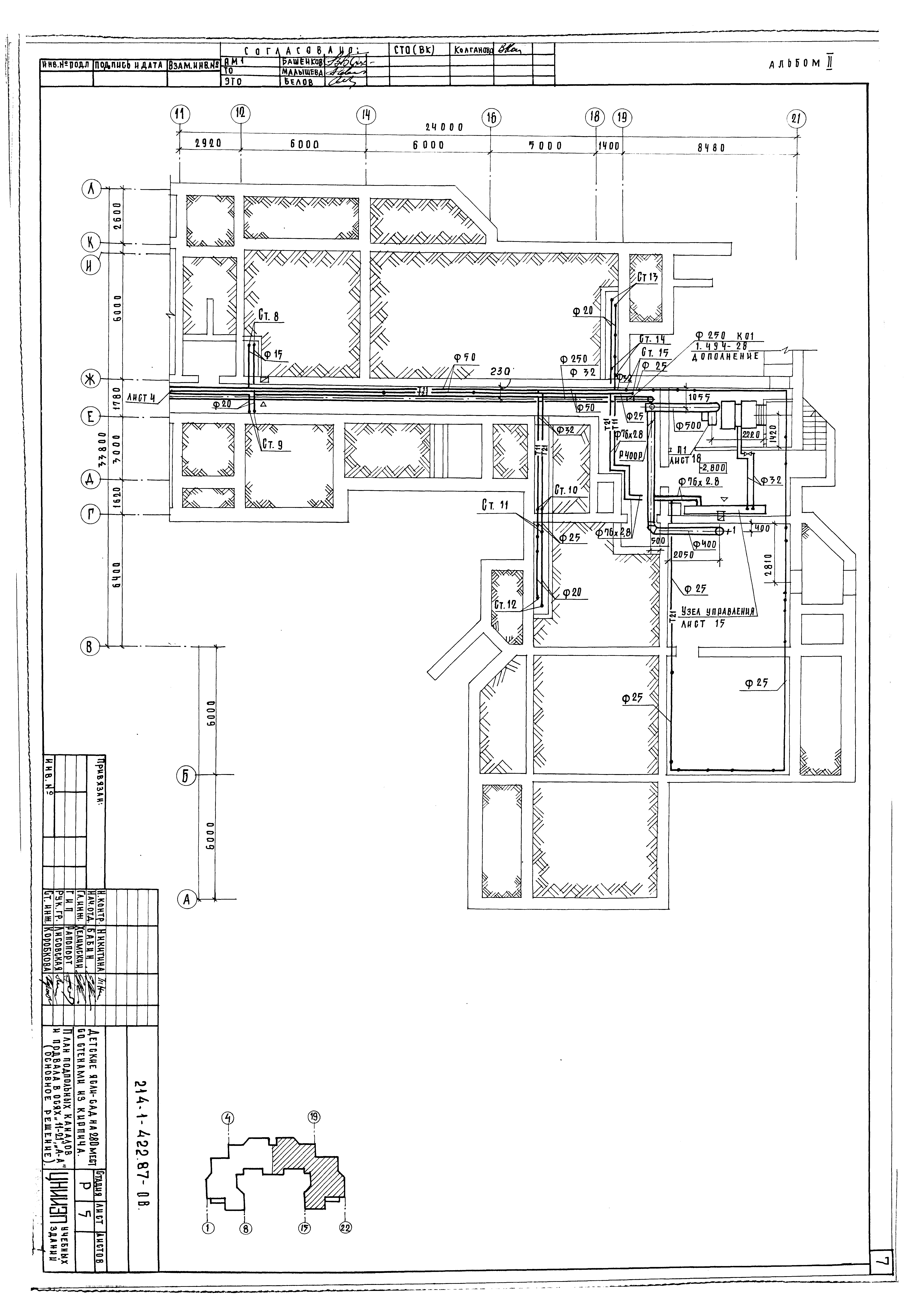
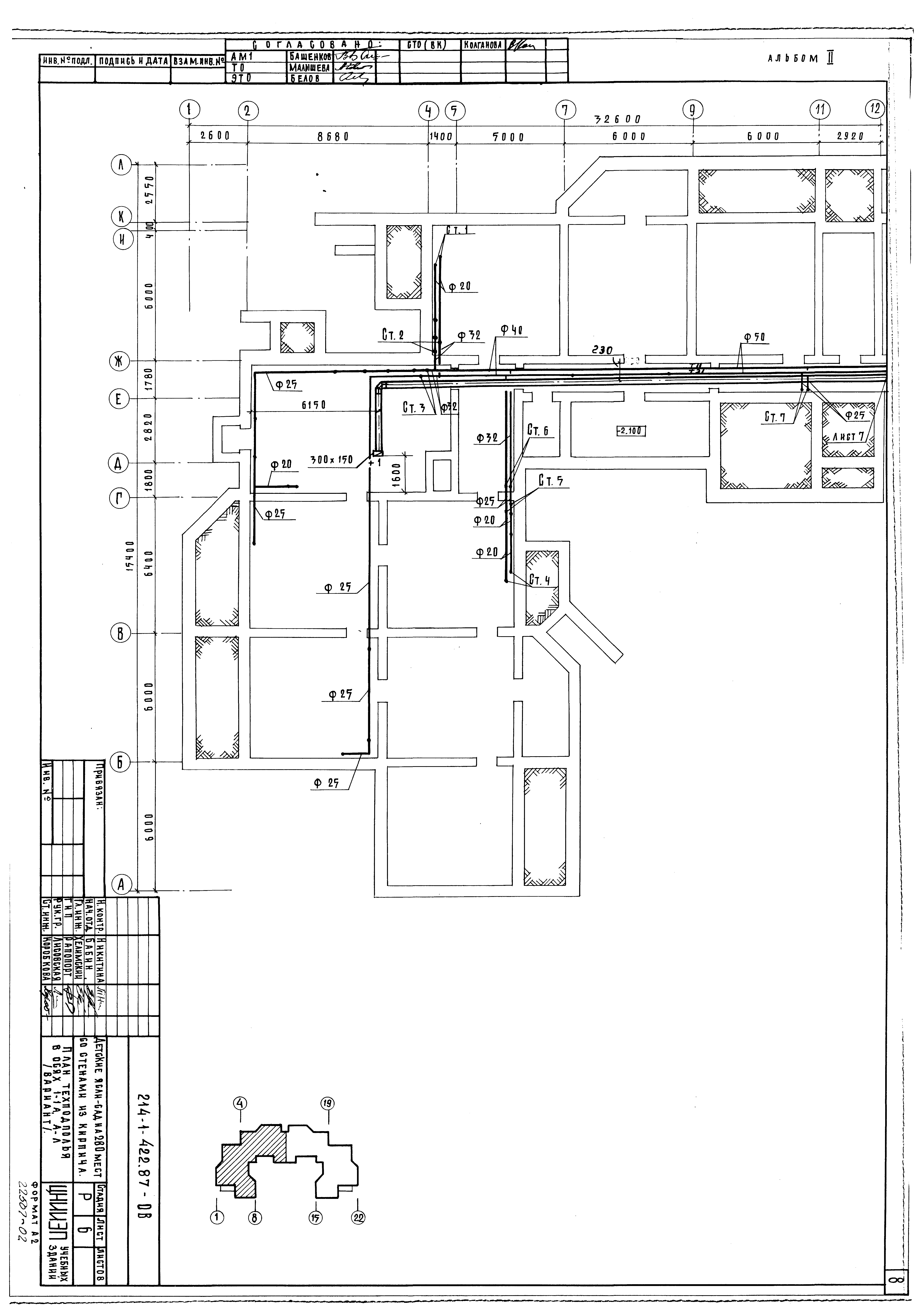
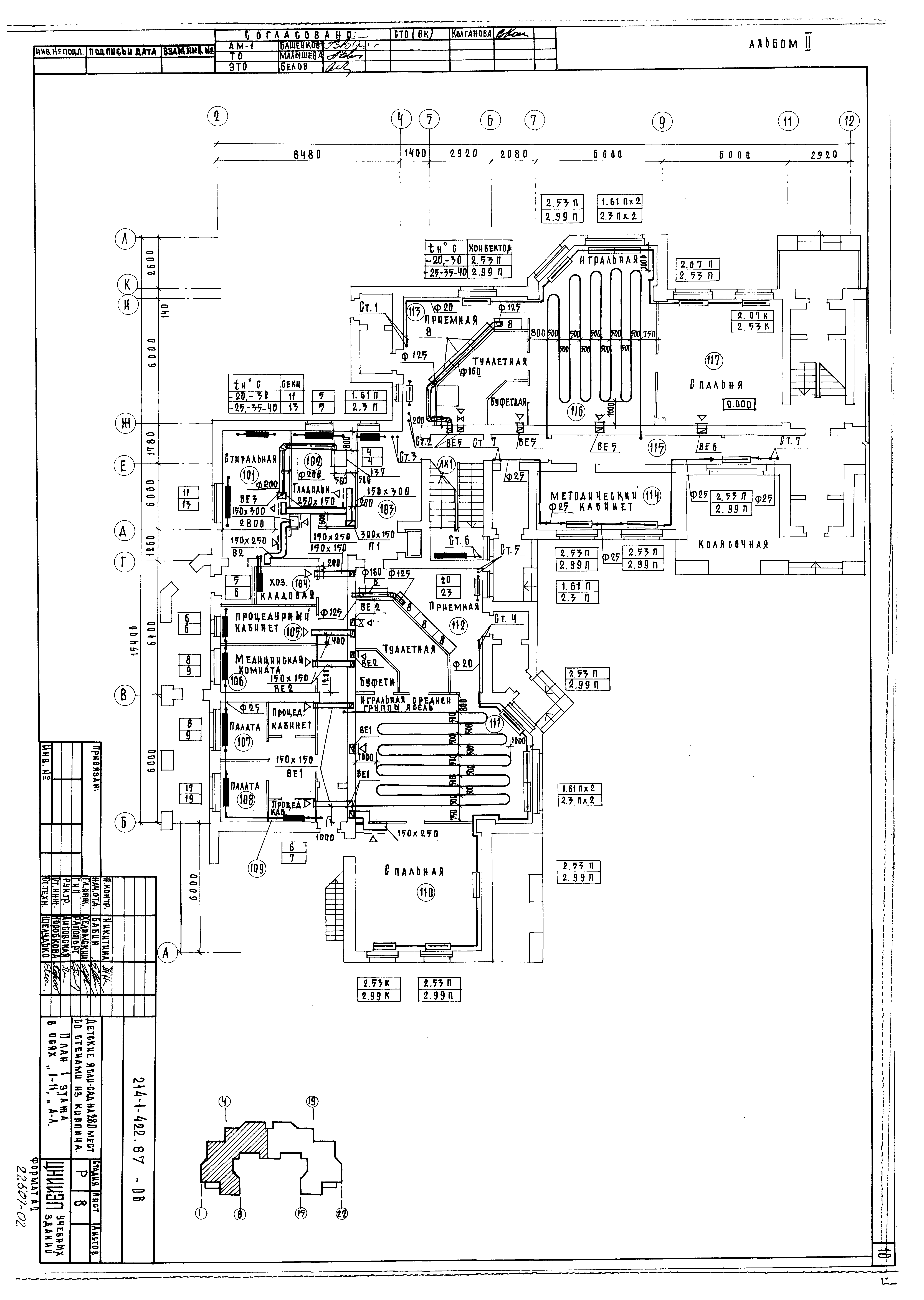
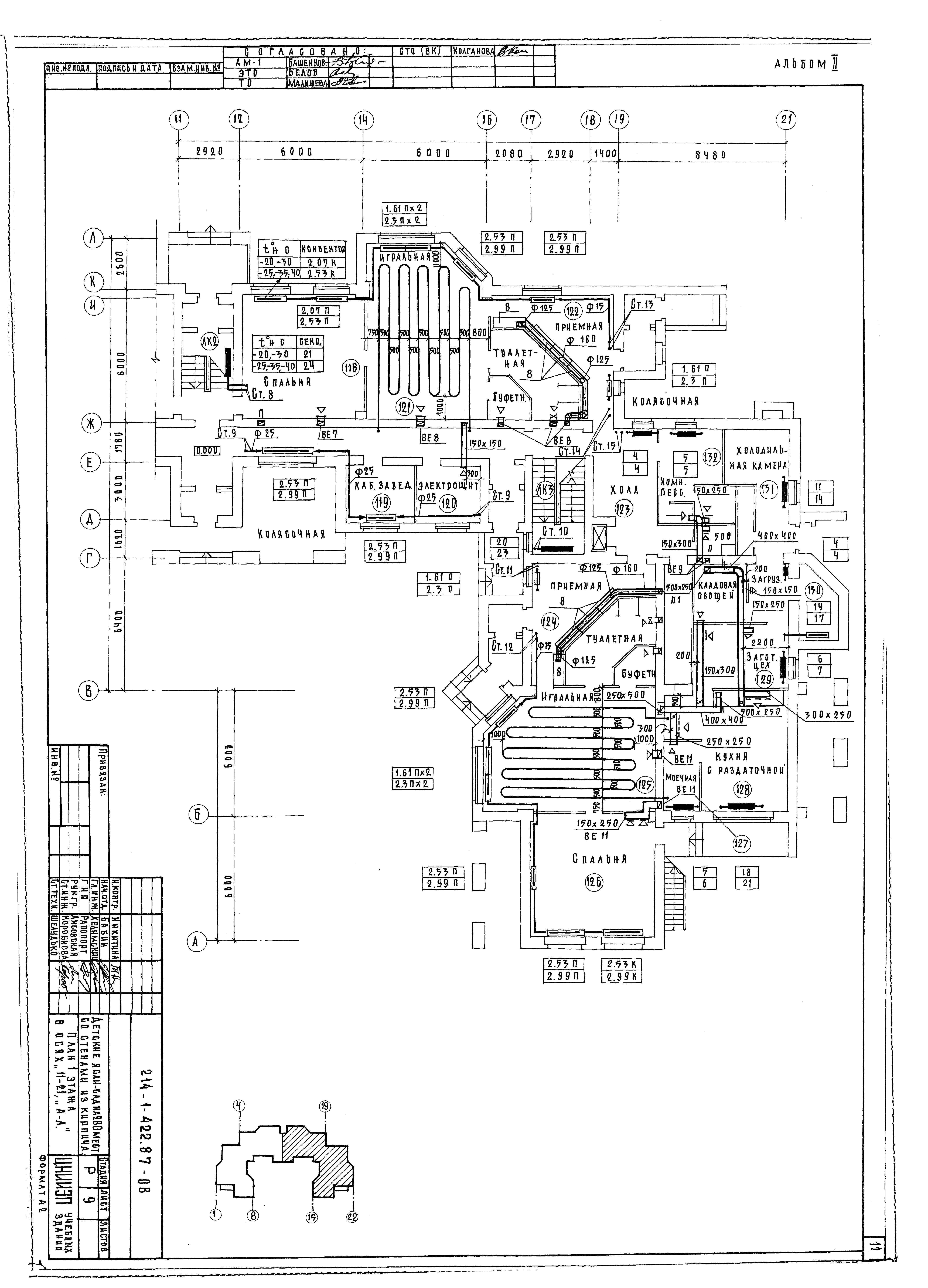
Скачать Типовой проект 214-1-422.87 Альбом II. Санитарно-технические чертежиДата актуализации: 01.01.2021
|
| Обозначение: | Типовой проект 214-1-422.87 |
| Обозначение англ: | 214-1-422.87 |
| Статус: | не определен законодательством |
| Название рус.: | Альбом II. Санитарно-технические чертежи |
| Дата добавления в базу: | 01.09.2013 |
| Дата актуализации: | 01.01.2021 |
| Дата введения: | 30.09.1987 |
| Дата окончания срока действия: | 30.06.2003 |
| Разработан: | ЦНИИЭП учебных зданий Госгражданстроя |
| Утверждён: | 15.09.1986 Госгражданстрой (Gosgrazhdanstroy 295) |









































