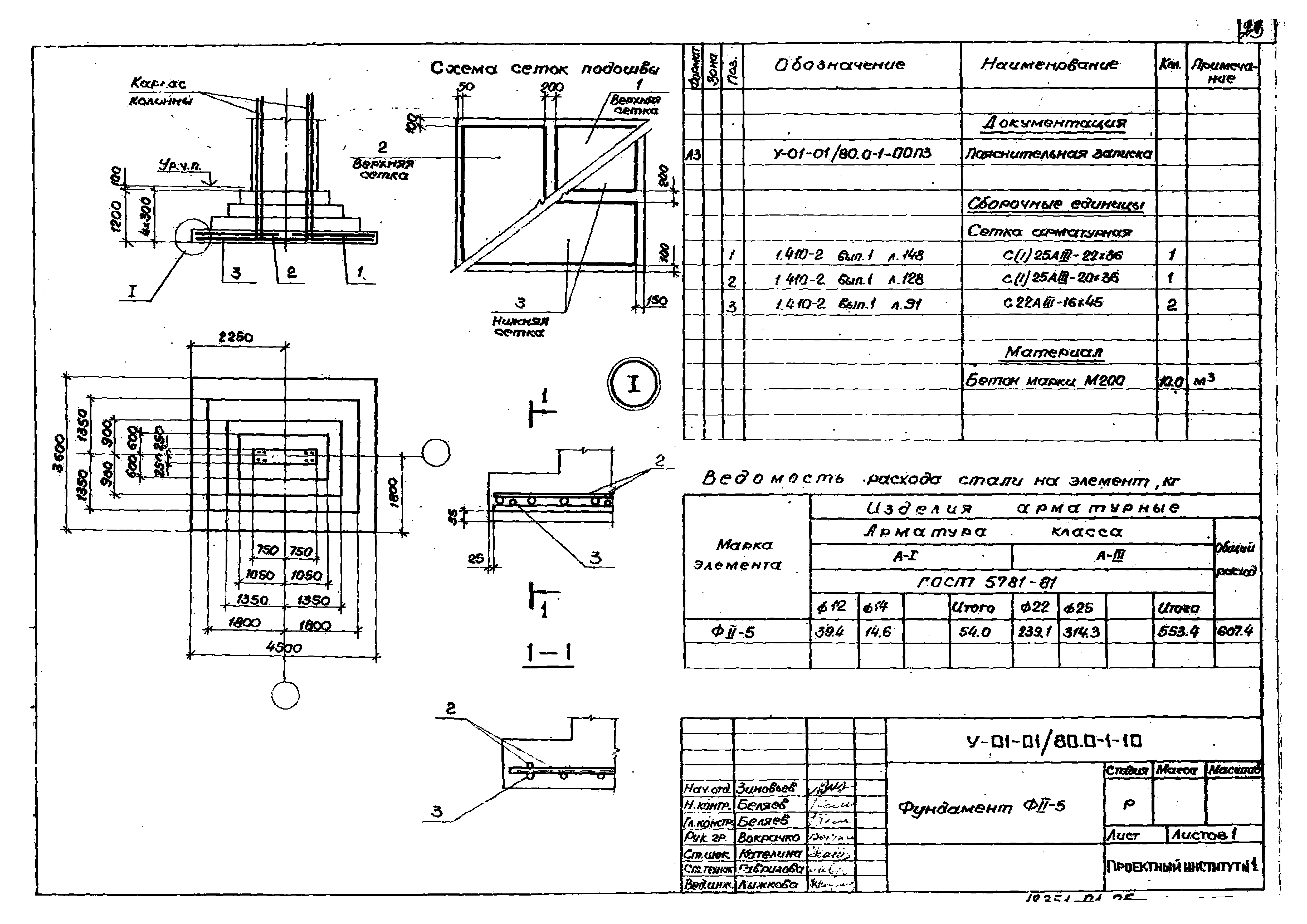
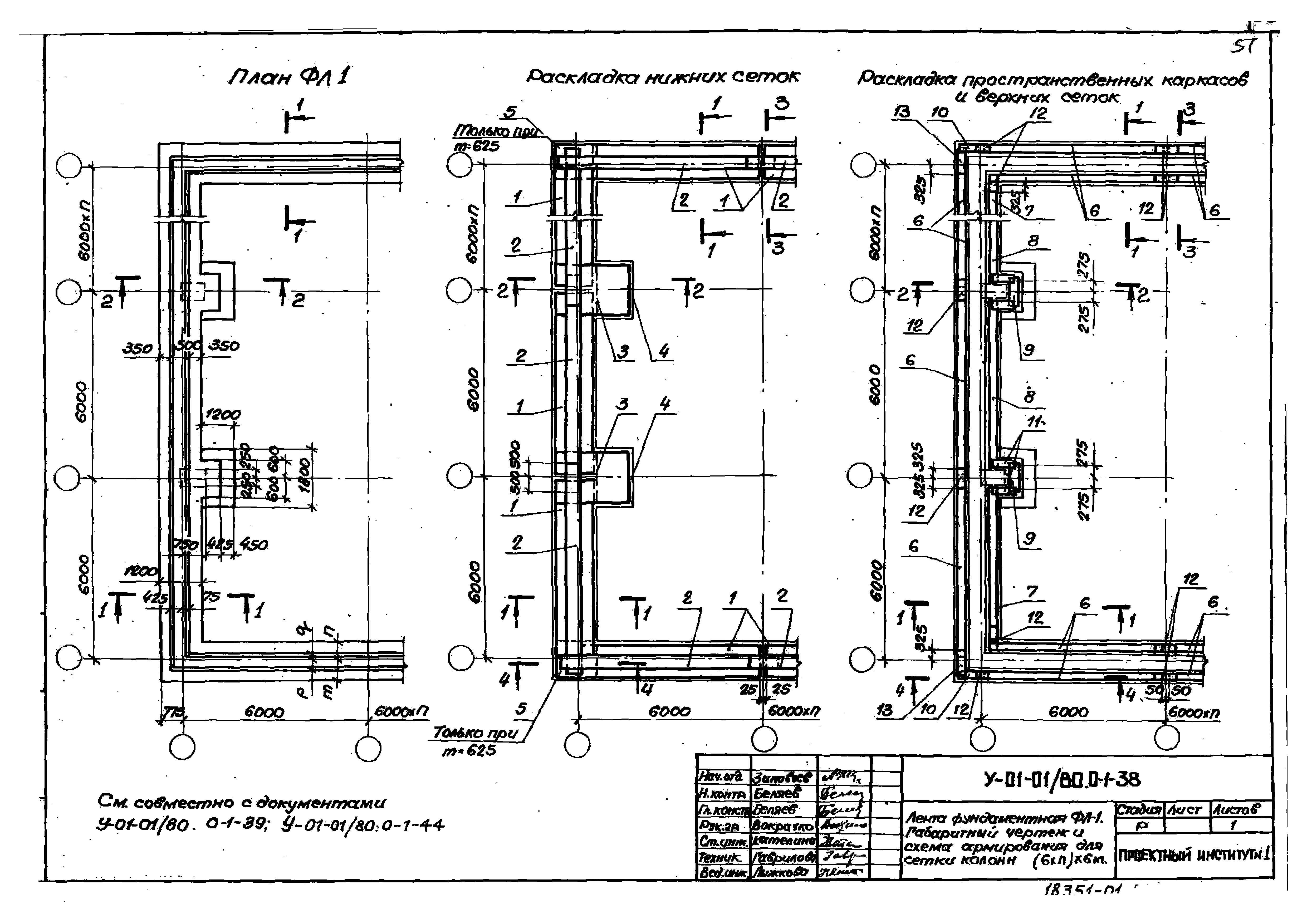
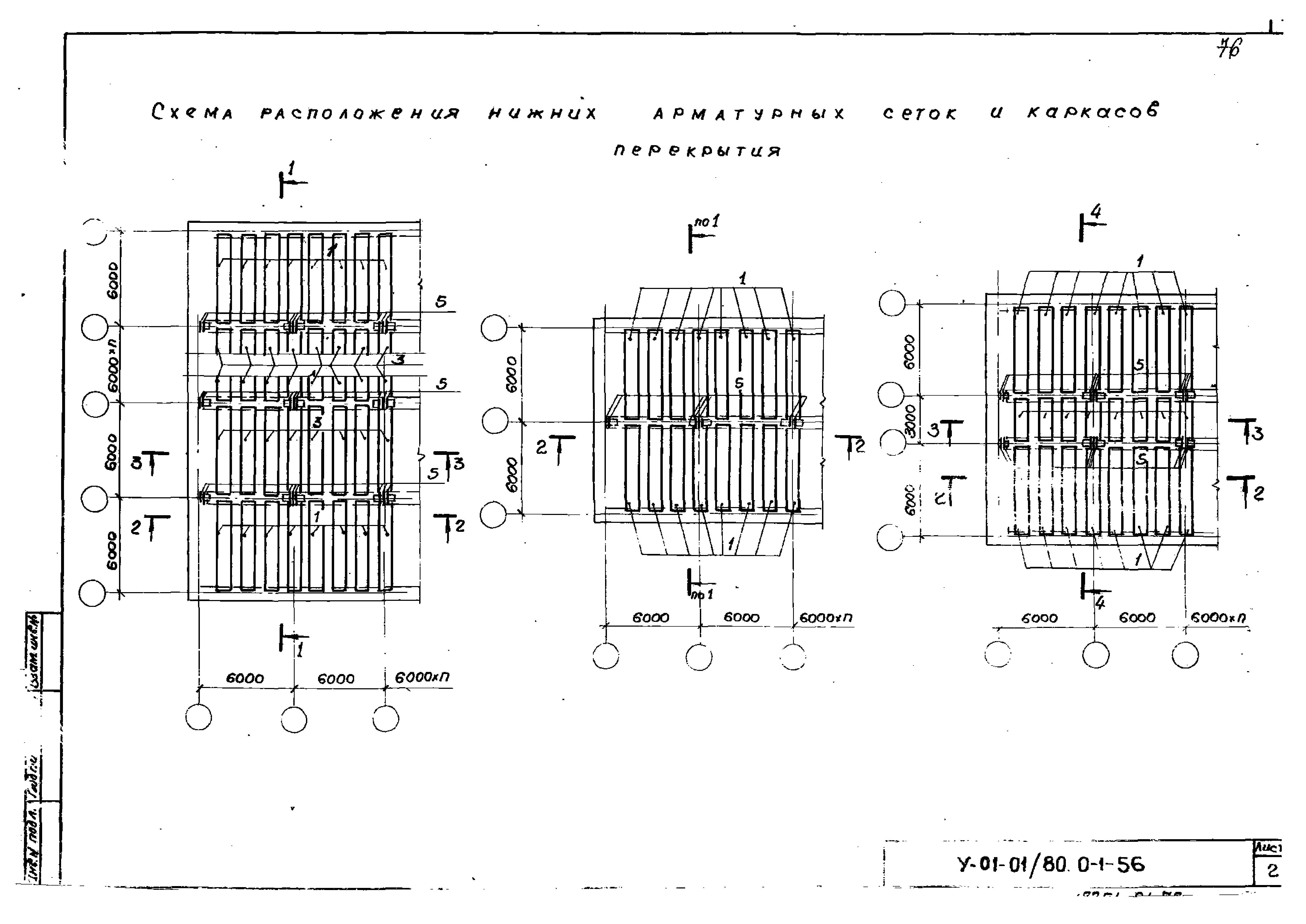
Скачать Серия У-01-01/80 Выпуск 0-1. Материалы для проектирования помещений в сухих грунтахДата актуализации: 01.01.2021
|
| Обозначение: | Серия У-01-01/80 |
| Обозначение англ: | Series У-01-01/80 |
| Статус: | не определен законодательством |
| Название рус.: | Выпуск 0-1. Материалы для проектирования помещений в сухих грунтах |
| Дата добавления в базу: | 01.09.2013 |
| Дата актуализации: | 01.01.2021 |
| Дата введения: | 01.01.1983 |
| Дата окончания срока действия: | 30.06.2003 |
| Разработан: | НИИЖБ Проектный институт № 1 Госстроя СССР |
| Утверждён: | 15.10.1982 Госстрой СССР (Государственный комитет Совета Министров СССР по делам строительства) (USSR Gosstroy 255) |
















































































