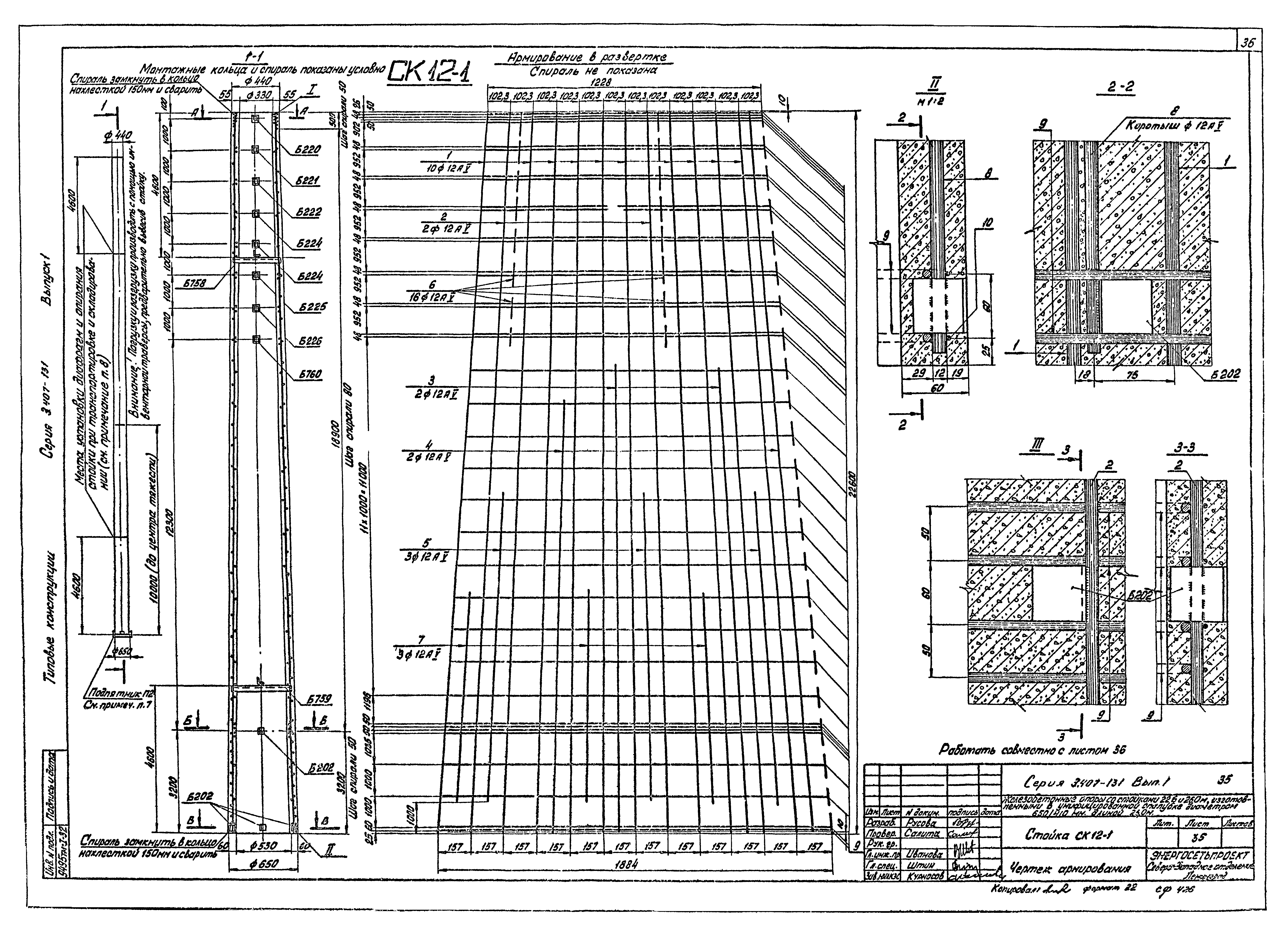
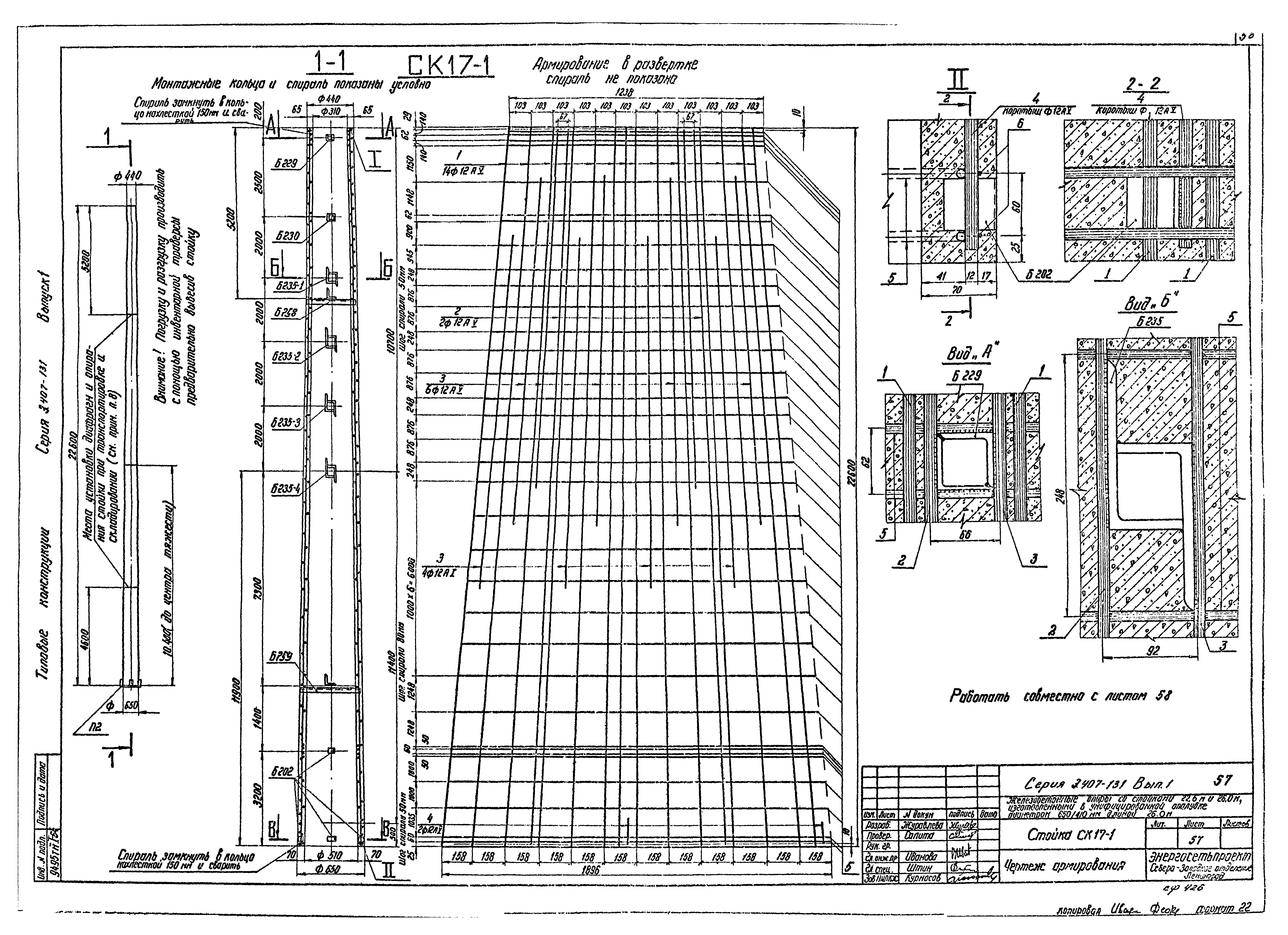
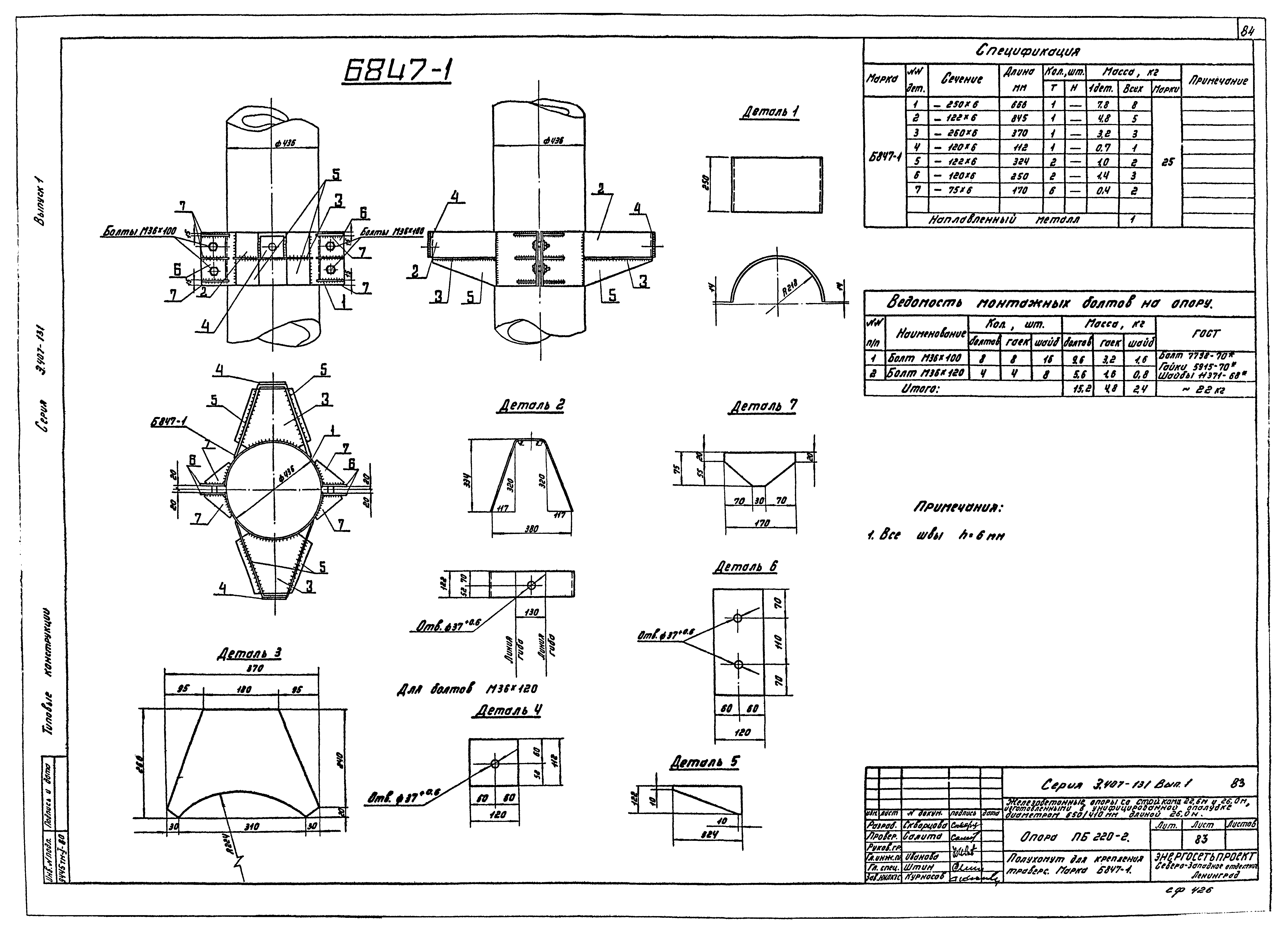
Скачать Серия 3.407-131 Выпуск 1. Рабочие чертежиДата актуализации: 01.01.2021
|
| Обозначение: | Серия 3.407-131 |
| Обозначение англ: | Series 3.407-131 |
| Статус: | заменен |
| Название рус.: | Выпуск 1. Рабочие чертежи |
| Дата добавления в базу: | 01.09.2013 |
| Дата актуализации: | 01.01.2021 |
| Дата введения: | 01.01.1980 |
| Дата окончания срока действия: | 01.08.1992 |
| Разработан: | Северо-западное отделение института Энергосетьпроект |
| Утверждён: | 16.07.1979 Минэнерго СССР (USSR Minenergo 48) |
| Чем заменён: |






































































































