Скачать Серия 3.407-96 Альбом II. Пояснительная записка, сметы, рабочие чертежи (для районов с толщиной стенки гололеда до 15 мм)Дата актуализации: 01.01.2021
|
| Обозначение: | Серия 3.407-96 |
| Обозначение англ: | Series 3.407-96 |
| Статус: | не определен законодательством |
| Название рус.: | Альбом II. Пояснительная записка, сметы, рабочие чертежи (для районов с толщиной стенки гололеда до 15 мм) |
| Дата добавления в базу: | 01.10.2014 |
| Дата актуализации: | 01.01.2021 |
| Дата введения: | 01.02.1974 |
| Дата окончания срока действия: | 30.06.2003 |
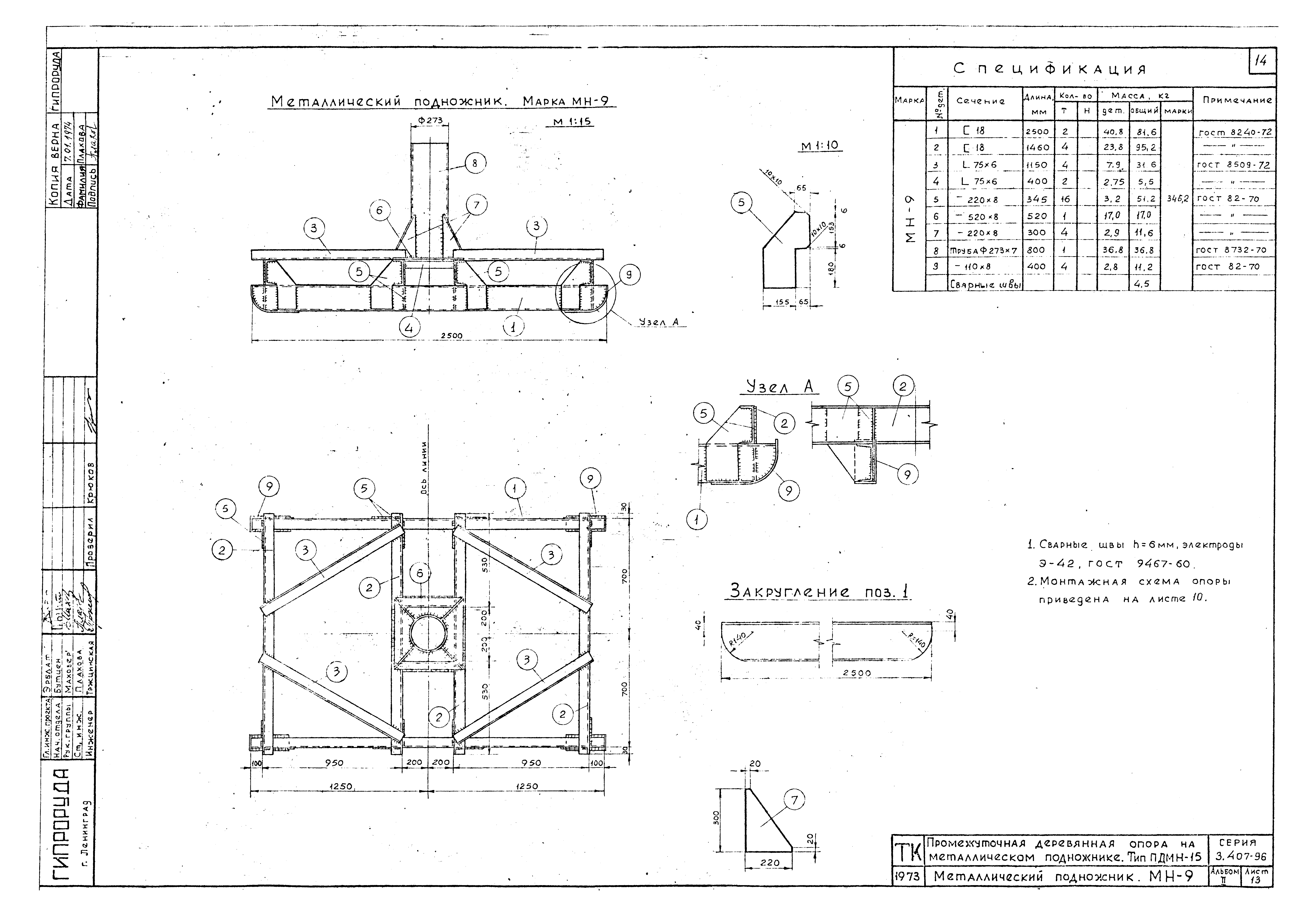
| Оглавление: | Пояснительная записка Машины для переноски опор. Общие виды и технические характеристики Монтажные таблицы натяжений и стрел провеса проводов. Провода марок А-16, А-25, А-35, А-50 Привязка продольной передвижной ВЛ до 1 кВ на рабочей площадке. Примеры 1, 2, 3, 4 и 5 Привязка поперечной передвижной ВЛ до 1 кВ на рабочей площадке. Примеры 6, 7, 8, 9 и 10 Промежуточные деревянные и металлические опоры. Сметы Угловые, анкерные и концевые деревянные и металлические опоры. Сметы Промежуточная деревянная опора на деревянном подножнике. Тип ПДДН-15. Монтажная схема Промежуточная деревянная опора на металлическом подножнике. Тип ПДМН-15. Монтажная схема Промежуточная деревянная опора на железобетонном подножнике. Тип ПДЖН-15. Монтажная схема Промежуточная деревянная опора на деревянном подножнике. Тип ПДДН-15. Деревянный подножник. Марка ДН-2 Промежуточная деревянная опора на металлическом подножнике. Тип ПДМН-15. Металлический подножник МН-9 Промежуточная деревянная опора на железобетонном подножнике. Тип ПДЖН-15. Железобетонный подножник. Марка ПЖ-3. Пригрузочная плита. Марка ПЖ-2 Промежуточные угловые, анкерные и концевые деревянные опоры. Деревянные детали Промежуточная деревянная опора на деревянном подножнике. Тип ПДДН-5. Марки МН-1, МН-2, МН-2А, МН-22. Болты с квадратной головкой Промежуточные деревянные и металлические опоры. Расположение изоляторов и кронштейна для светильника на опоре. Марки МН-3, МН-4 Промежуточная металлическая опора на металлическом подножнике. Тип ПММН-15. Монтажная схема Промежуточная металлическая опора на железобетонном подножнике. Тип ПМЖН-15. Монтажная схема Промежуточная металлическая опора. Тип ПММН-15 и ПМЖН-15. Ствол опоры. Марка МН-10. Траверса. Марка МН-11 Промежуточная металлическая опора на металлическом подножнике. Тип ПММН-15. Металлический подножник МН-18 Промежуточная металлическая опора на железобетонном подножнике. Тип ПМЖН-15. Железобетонный подножник. Марка ПЖ-5. Пригрузочная плита. Марка ПЖ-2 Угловая, анкерная и концевая деревянные опоры на деревянном подножнике. Тип УДДН-15. Монтажная схема Угловая, анкерная и концевая деревянные опоры на металлическом подножнике. Тип УДМН-15. Монтажная схема Угловая, анкерная и концевая деревянные опоры на железобетонном подножнике. Тип УДЖН-15. Монтажная схема Угловая, анкерная и концевая деревянные опоры на деревянном подножнике. Тип УДДН-15. Деревянный подножник. Марка ДН-4 Угловая, анкерная и концевая деревянные опоры на металлическом подножнике. Тип УДМН-15. Металлический подножник. Марка МН-16 Угловая, анкерная и концевая деревянные опоры на железобетонном подножнике. Тип УДЖН-15. Железобетонный подножник. Марка ПЖ-7 Промежуточные, угловые, анкерные и концевые деревянные опоры. Деревянные детали Угловая, анкерная и концевая деревянные опоры на деревянном подножнике. Тип УДДН-15. Марки МН-12, МН-13, МН-14. Болты с квадратной головкой Угловые, анкерные и концевые деревянные и металлические опоры. Расположение изоляторов и кронштейна для светильника на опоре. Марки МН-3, МН-4 Угловые, анкерные и концевые деревянные и металлические опоры. Оттяжки Угловые, анкерные и концевые деревянные и металлические опоры. Варианты крепления оттяжек в грунте Угловая, анкерная и концевая металлические опоры на металлическом подножнике. Тип УММН-15. Монтажная схема Угловая, анкерная и концевая металлические опоры на железобетонном подножнике. Тип УМЖН-15. Монтажная схема Угловые, анкерные и концевые металлические опоры. Тип УММН-15 и УМЖН-15. Ствол опоры. Марка МН-19. Траверса. Марка МН-11 Угловая, анкерная и концевая металлические опоры на металлическом подножнике. Тип УММН-15. Металлический подножник. Марка МН-21 Угловая, анкерная и концевая металлические опоры на железобетонном подножнике. Тип УМЖН-15. Железобетонный подножник. Марка ПЖ-11 |
| Разработан: | Гипроруда Минчермета СССР |
| Утверждён: | 13.11.1973 Минчермет СССР (USSR Minchermet 802) |





































