Скачать Серия 3.900-9 Выпуск 1. Опорные конструкции и средства крепления неизолированных трубопроводов к железобетонным колоннам. Рабочие чертежиДата актуализации: 01.01.2021
|
| Обозначение: | Серия 3.900-9 |
| Обозначение англ: | Series 3.900-9 |
| Статус: | не действует |
| Название рус.: | Выпуск 1. Опорные конструкции и средства крепления неизолированных трубопроводов к железобетонным колоннам. Рабочие чертежи |
| Дата добавления в базу: | 01.09.2013 |
| Дата актуализации: | 01.01.2021 |
| Дата введения: | 01.03.1987 |
| Дата окончания срока действия: | 01.03.1992 |
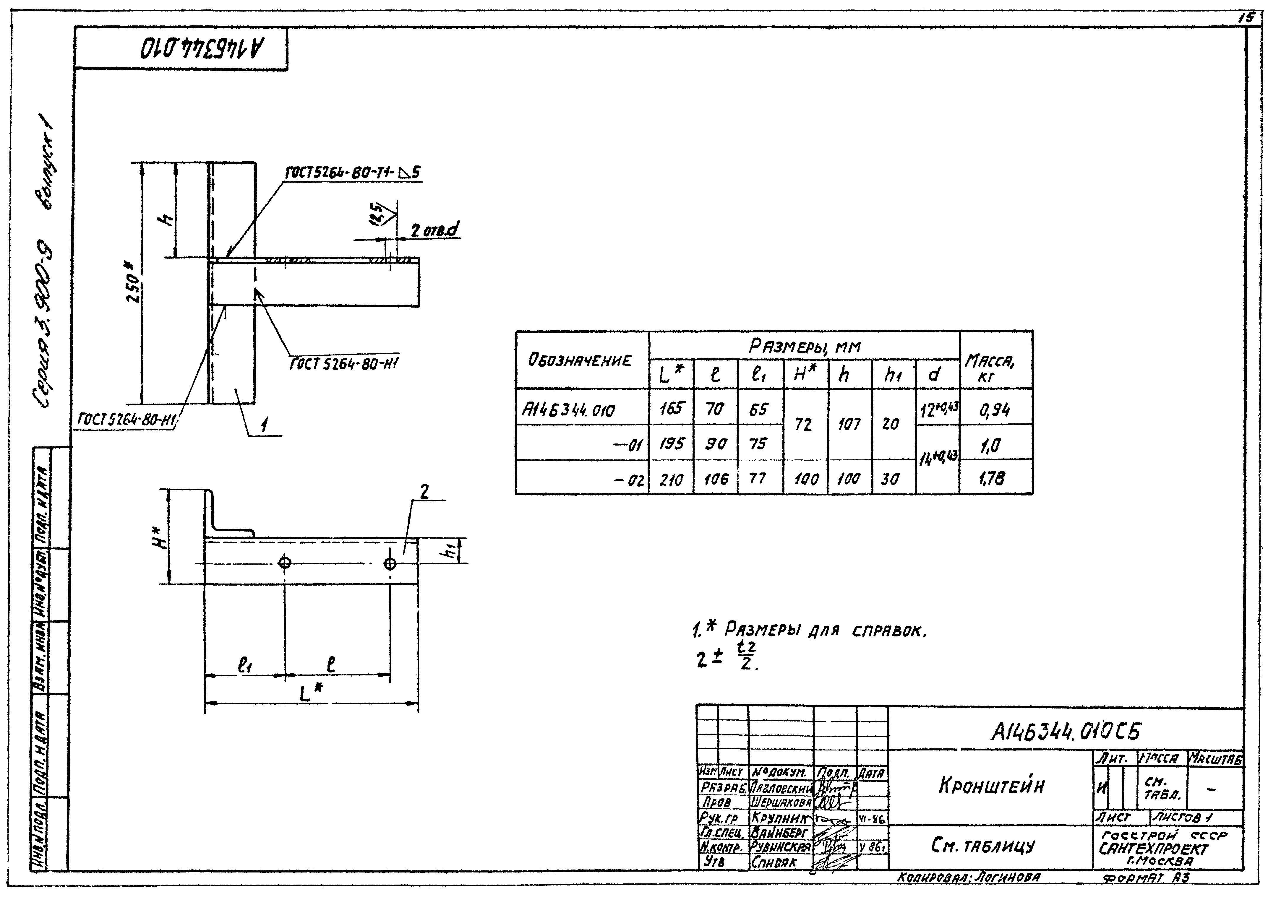
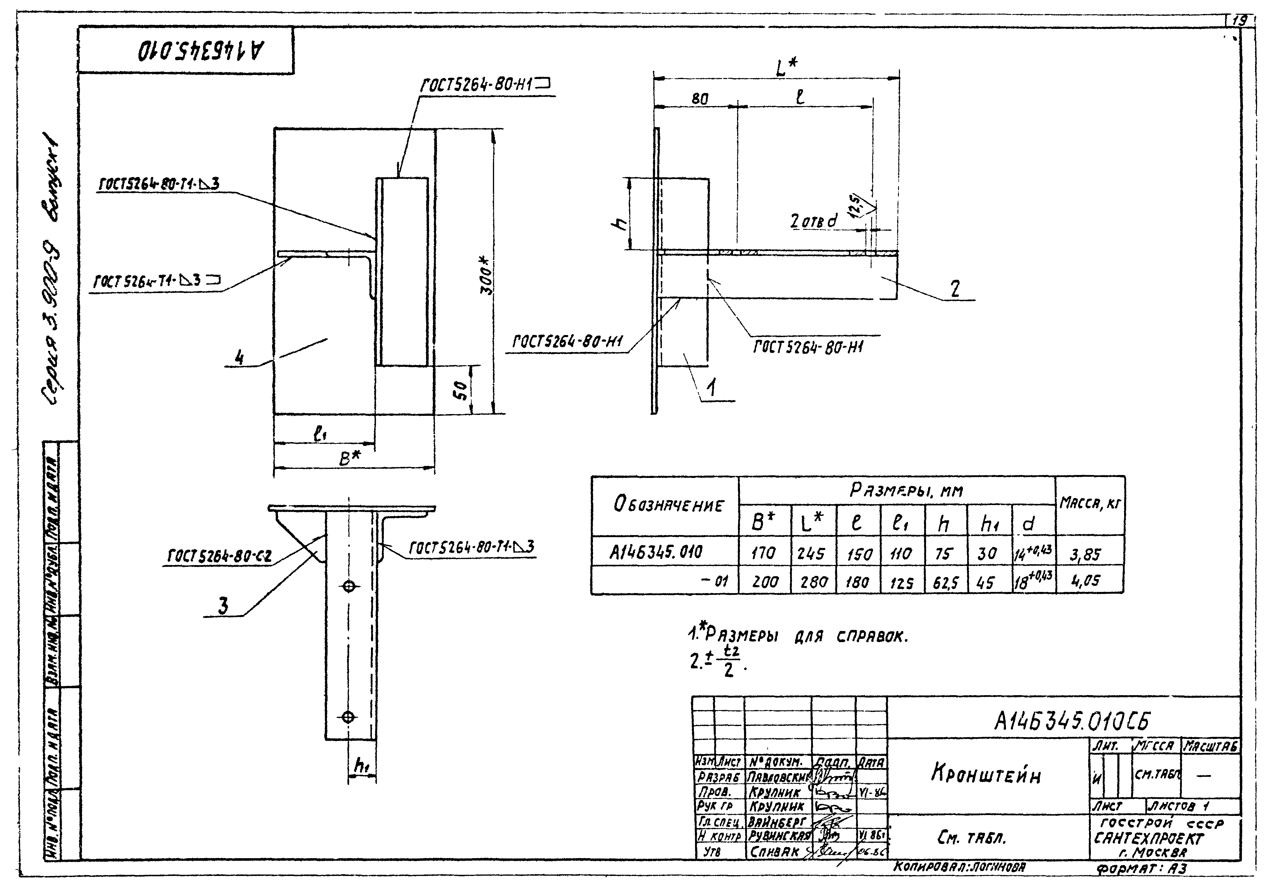
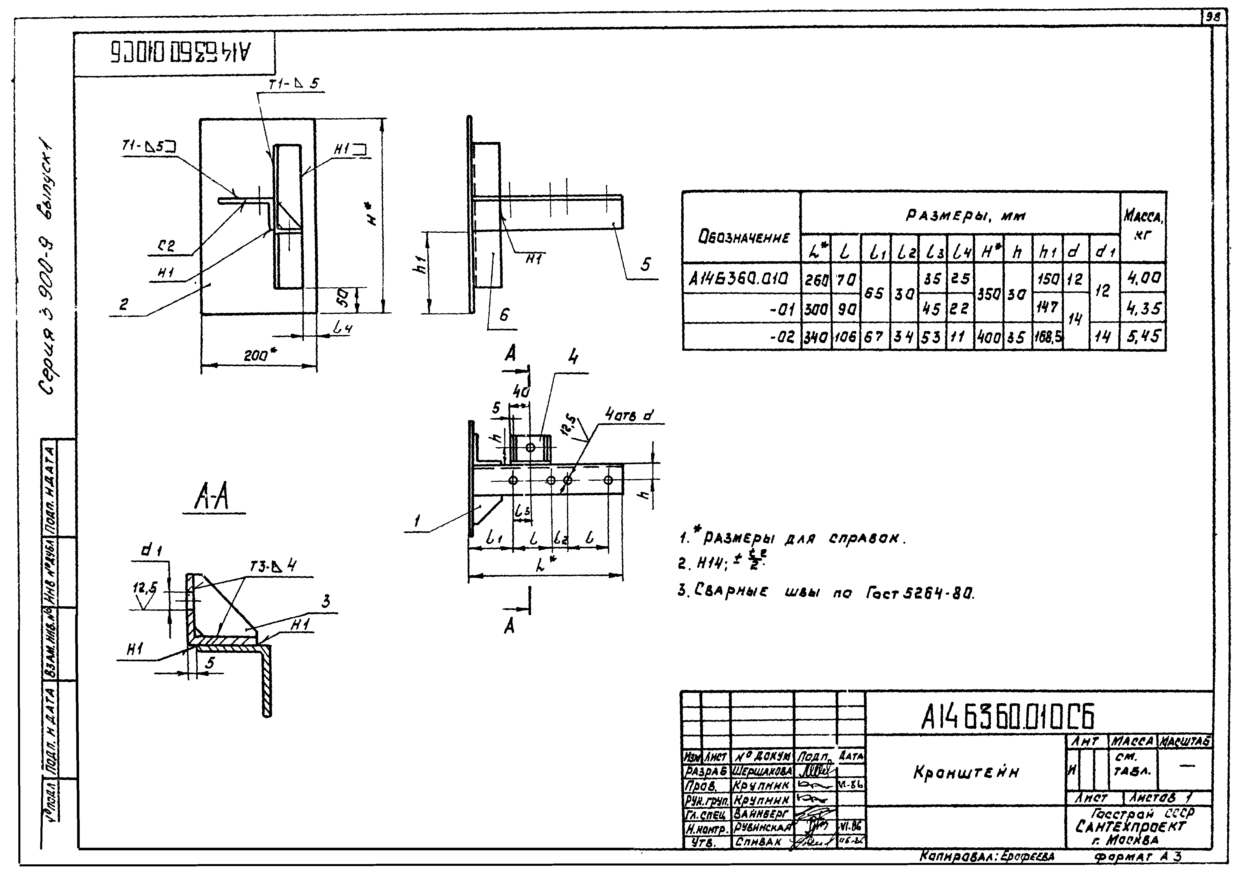
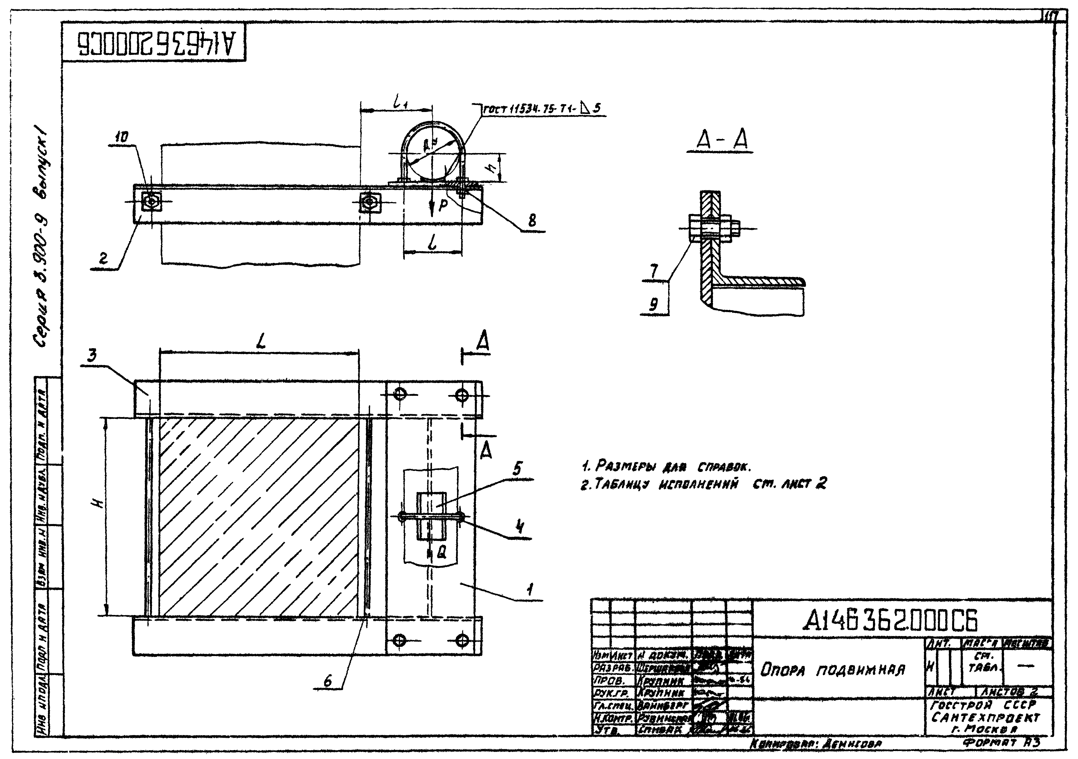
| Оглавление: | Содержание А14Б342.000 Опора подвижная А14Б342.000СБ Опора подвижная А14Б343.000 Опора подвижная А14Б343.010 Кронштейн А14Б343.010СБ Опора подвижная А14Б343.010 СБ Кронштейн А14Б343.005 Уголок А14Б344.000 Опора подвижная А14Б344.000 СБ Опора подвижная А14Б344.010 Кронштейн А14Б345.010 Кронштейн А14Б344.010СБ Кронштейн А14Б345.001 Косынка А14Б344001 Уголок А14Б345.000 Опора подвижная А14Б345.000СБ Опора подвижная А14Б345.010СБ Кронштейн А14Б346.000 Опора подвижная А14Б346.000СБ Опора подвижная А14Б347.000 Опора подвижная А14Б347.000СБ Опора подвижная А14Б347.010 Кронштейн А14Б348.001 Уголок А14Б347.010СБ Кронштейн А14Б347.001 Швеллер А14Б348.000 Опора подвижная двухрядная А14Б345.002 Плита А14Б348.000СБ Опора подвижная двухрядная А14Б348.010 Кронштейн А14Б348.010СБ Кронштейн А14Б349.000 Опора подвижная двухрядная А14Б349.000СБ Опора подвижная двухрядная А14Б350.000СБ Опора подвижная двухрядная А14Б351.000 Опора подвижная двухрядная А14Б351.000СБ Опора подвижная двухрядная А14Б351.010 Кронштейн А14Б351.001 Уголок А14Б351.010СБ Кронштейн А14Б352.000 Опора подвижная двухрядная А14Б352.000СБ Опора подвижная двухрядная А14Б352.010 Кронштейн А14Б343.002 Подушка А14Б352.010СБ Кронштейн А14Б352.001 Швеллер А14Б353.000 Опора подвижная двухрядная А14Б353.010 Кронштейн А14Б353.020 Подвеска А14Б353.000СБ Опора подвижная двухрядная А14Б353.010СБ Кронштейн А14Б353.020СБ Подвеска А14Б363.001 Уголок А14Б353.002 Косынка А14Б353.004 Тяга А14Б353.005 Ушко А14Б353.006 Серьга А14Б354.000 Опора подвижная двухрядная А14Б354.001 Уголок А14Б354.000СБ Опора подвижная двухрядная А14Б354.010 Кронштейн А14Б354.010СБ Кронштейн А14Б355.000 Опора подвижная двухрядная А14Б355.000СБ Опора подвижная двухрядная А14Б355.010 Кронштейн А14Б355.010СБ Кронштейн А14Б355.002 Швеллер А14Б355.001 Уголок А14Б356.000 Опора подвижная трехрядная А14Б356.000СБ Опора подвижная трехрядная А14Б357.000 Опора подвижная трехрядная А14Б357.000СБ Опора подвижная трехрядная А14Б357.010 Кронштейн А14Б363.001 Плита А14Б357.010СБ Кронштейн А14Б357.001 Уголок А14Б359.001 Уголок А14Б358.000 Опора подвижная трехрядная А14Б358.010 Кронштейн А14Б358.000СБ Опора подвижная трехрядная А14Б358.010СБ Кронштейн А14Б358.001 Швеллер А14Б359.000 Опора подвижная трехрядная А14Б359.000СБ Опора подвижная трехрядная А14Б359.010 Кронштейн А14Б359.010СБ Кронштейн А14Б360.000 Опора подвижная трехрядная А14Б360.000СБ Опора подвижная трехрядная А14Б360.010 Кронштейн А14Б360.010СБ Кронштейн А14Б343.006 Упор А14Б6360.001 Уголок А14Б361.000 Опора подвижная трехрядная А14Б353.007 Полухомут А14Б361.000СБ Опора подвижная трехрядная А14Б361.010 Кронштейн А14Б361.010СБ Кронштейн А14Б361.001 Швеллер А14Б362.000 Опора подвижная А14Б343.001 Хомут А14Б362.000СБ Опора подвижная А14Б362.010 Плита А14Б362.010СБ Плита А14Б362.020 Кронштейн А14Б362.020СБ Кронштейн А14Б363.002 Уголок А14Б362.001 Стяжка А14Б362.003 Полоса А14Б362.002 Плита А14Б362.006 Накладки А14Б362.005 Уголок А14Б363.000 Опора подвижная двухрядная А14Б363.000СБ Опора подвижная двухрядная А14Б363.010 Плита А14Б363.020 Кронштейн А14Б363.010СБ Плита А14Б363.020СБ Кронштейн |
| Разработан: | ГПИ Сантехпроект Госстроя СССР |
| Утверждён: | 11.07.1986 Главстройпроект Госстроя СССР (43) |
| Чем заменён: |









































































































































