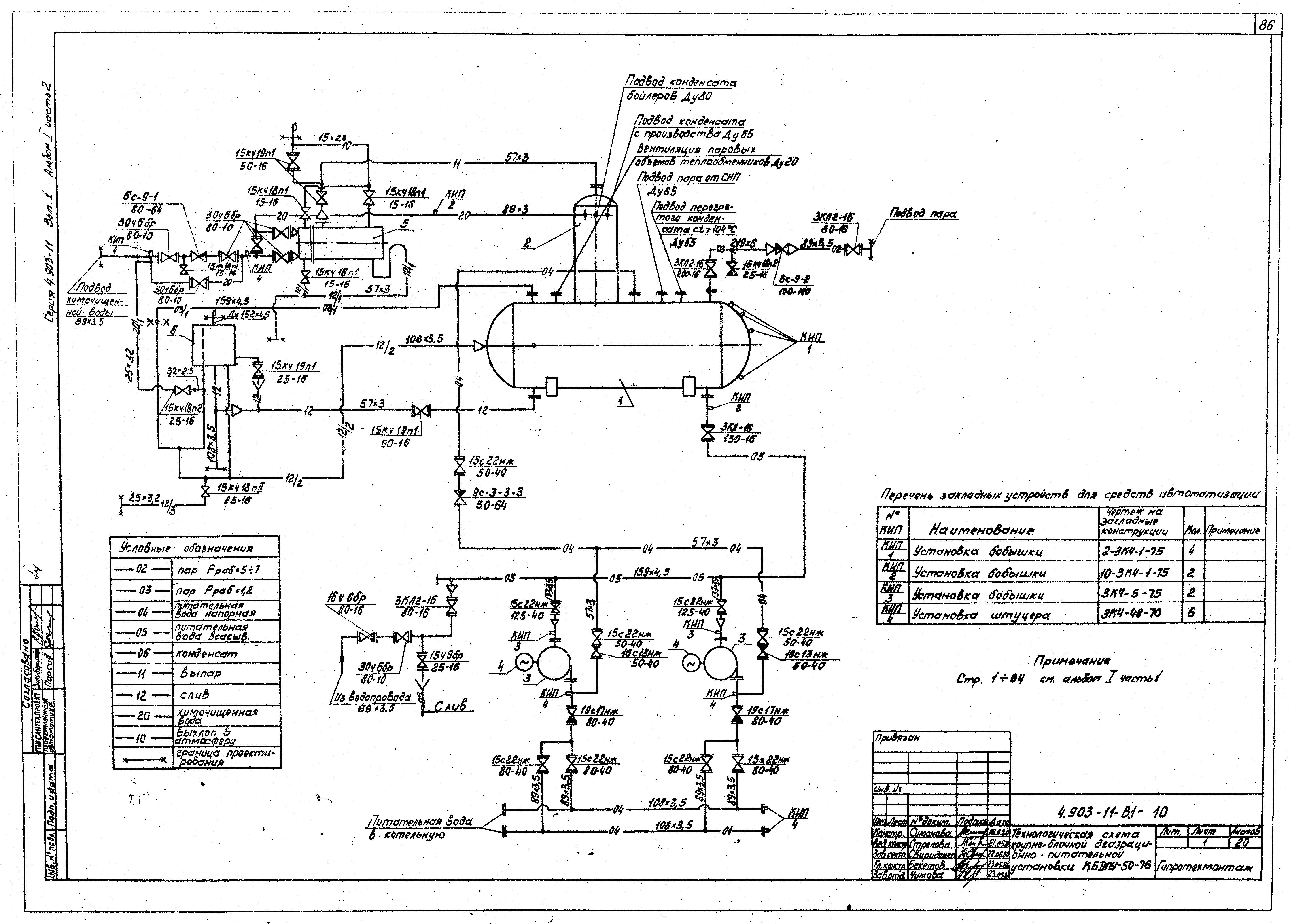
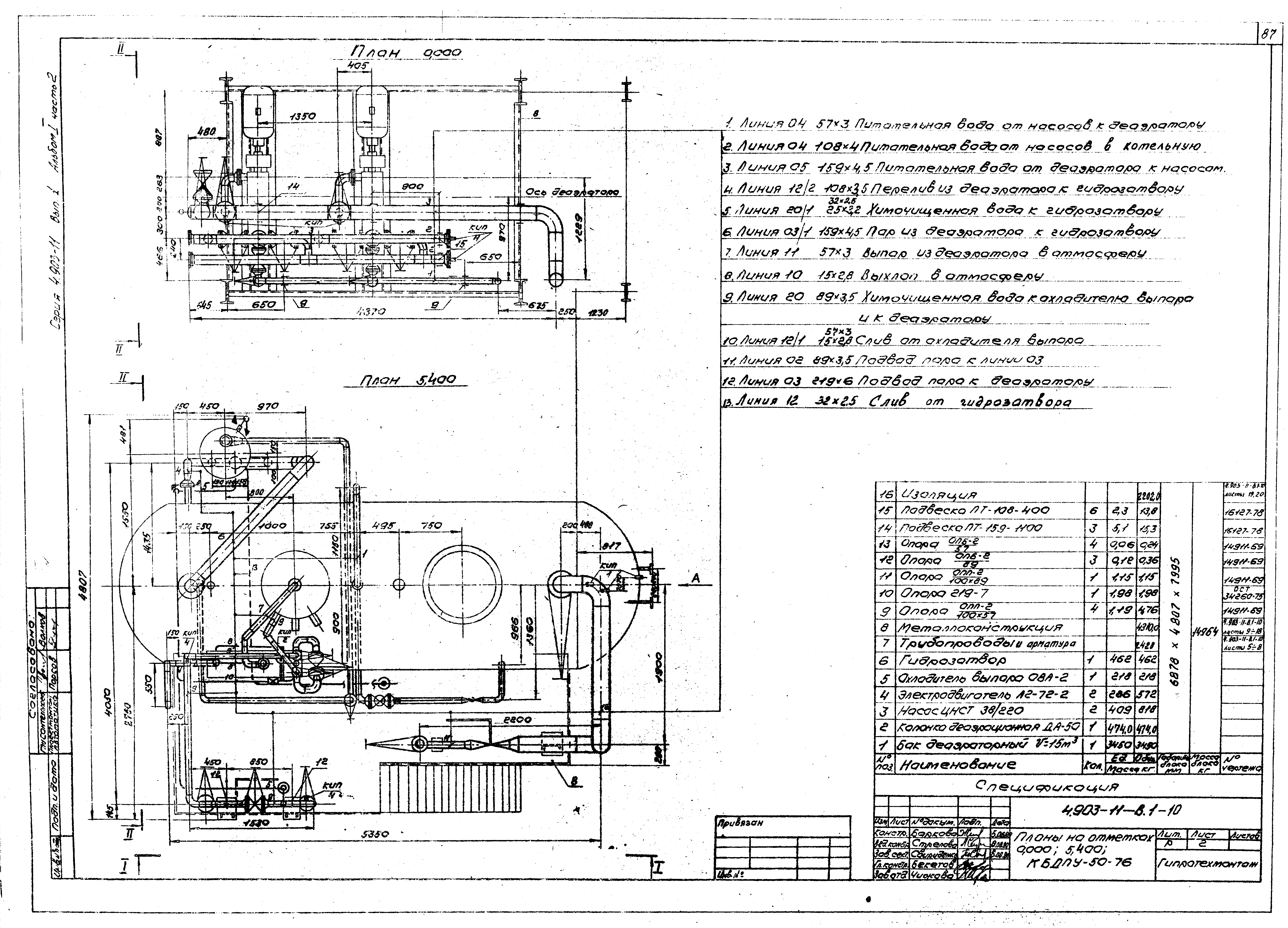
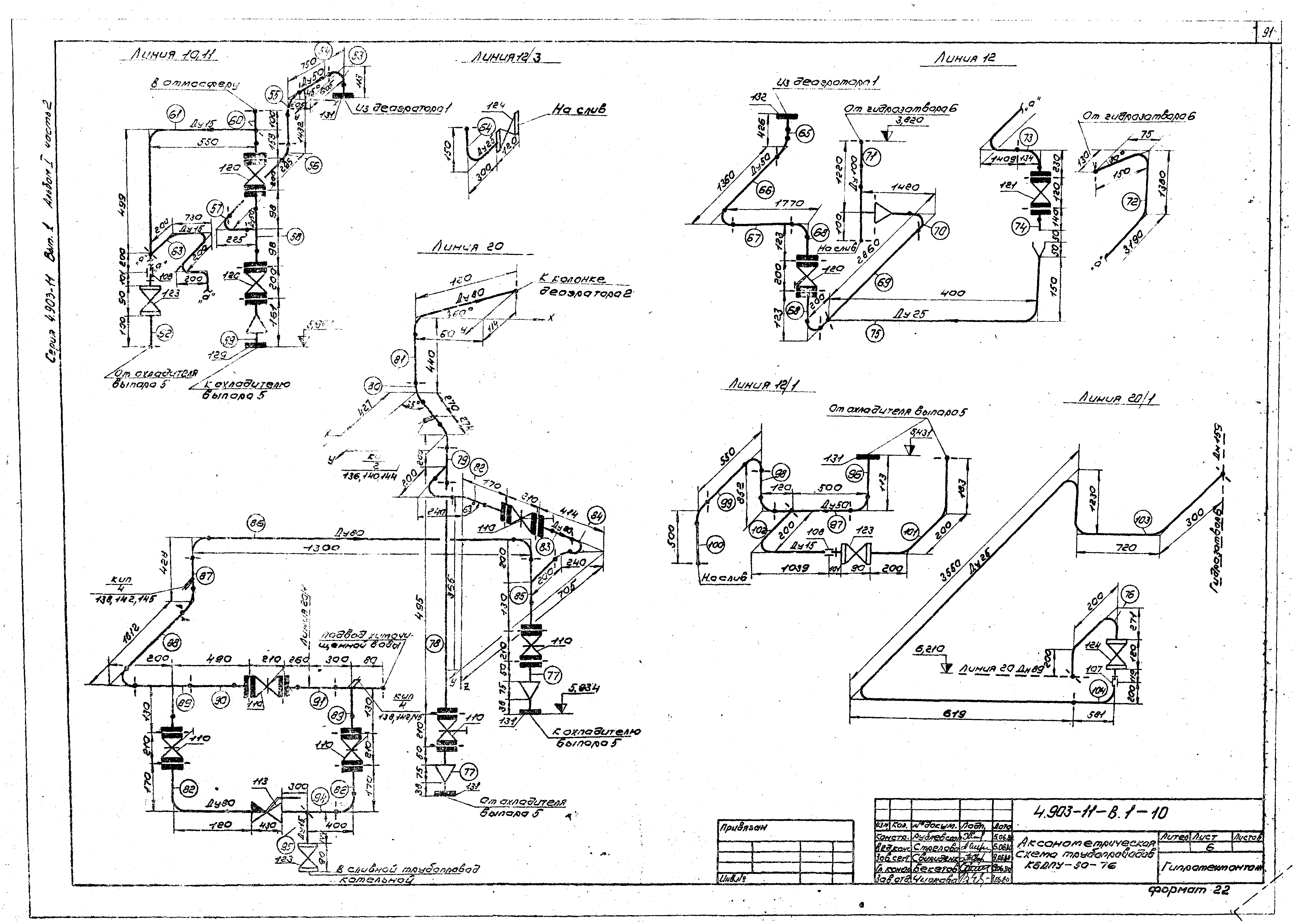
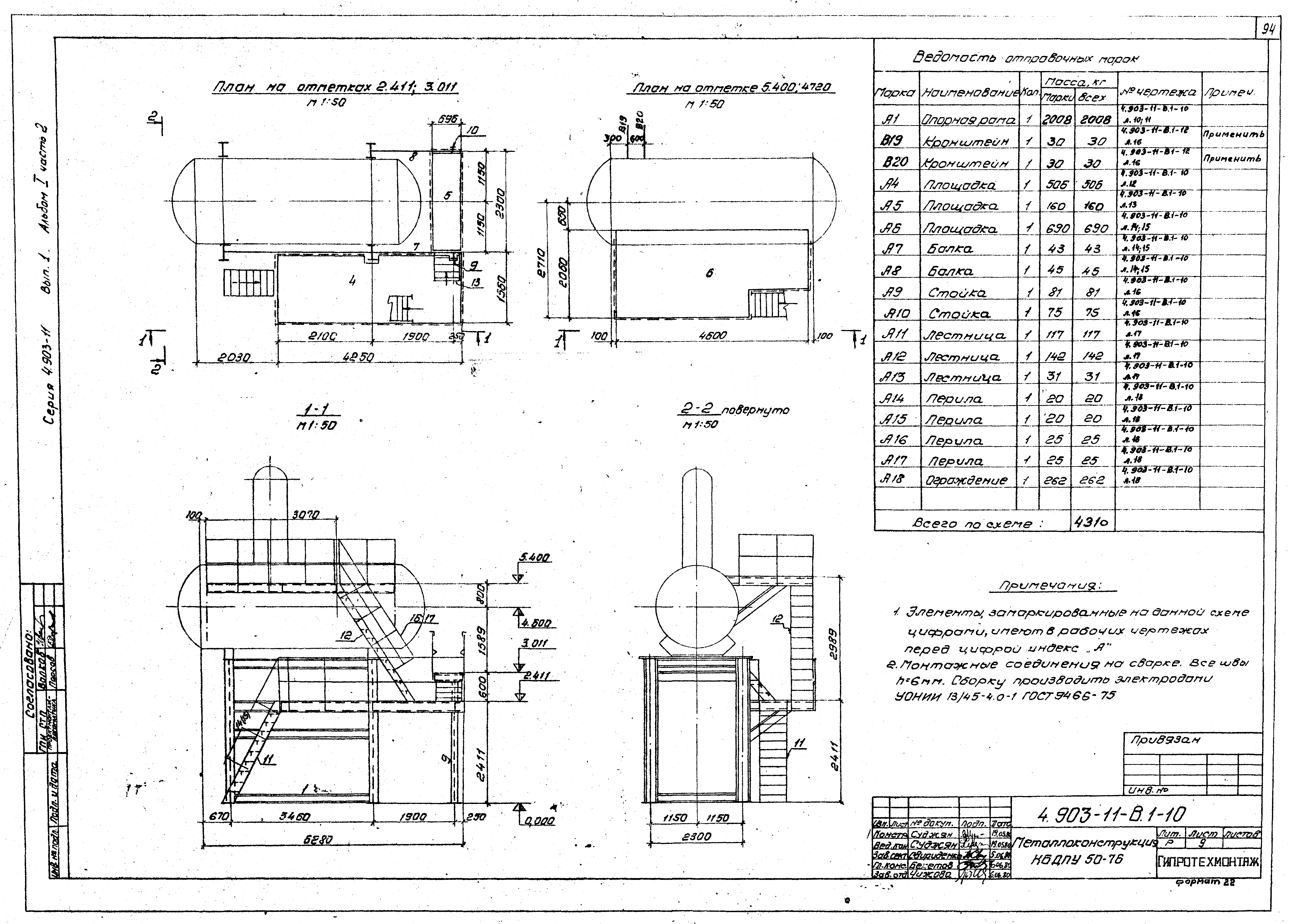
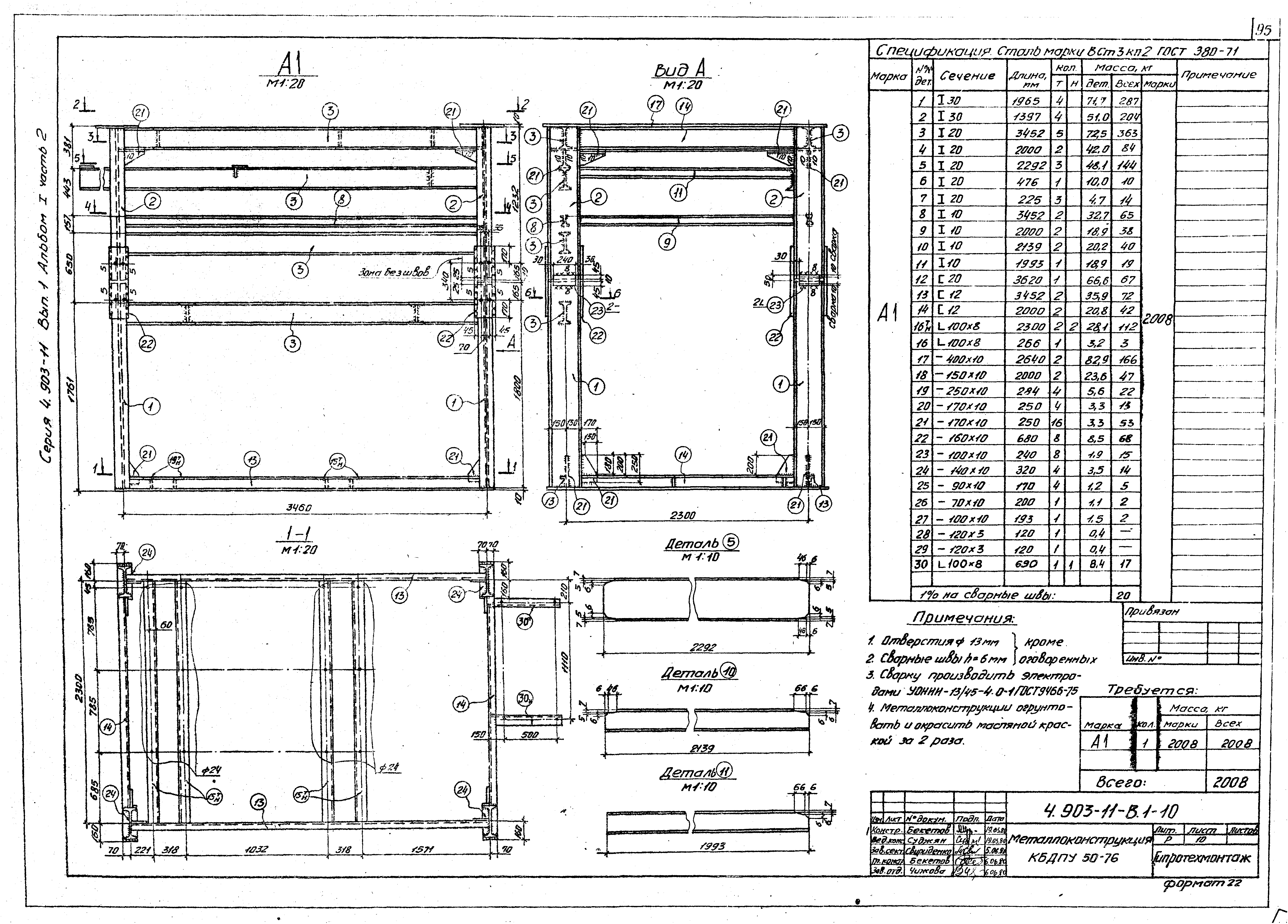
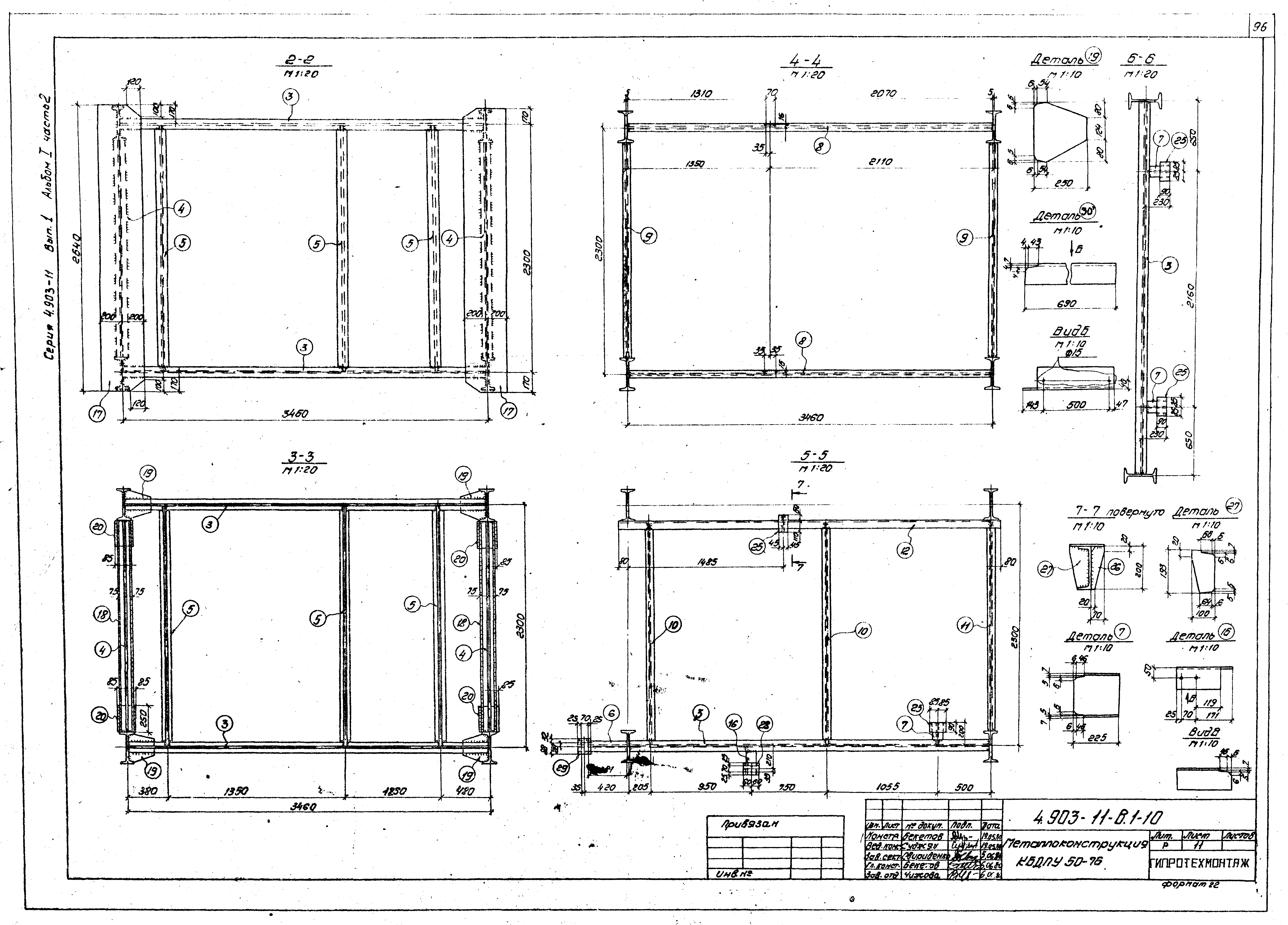
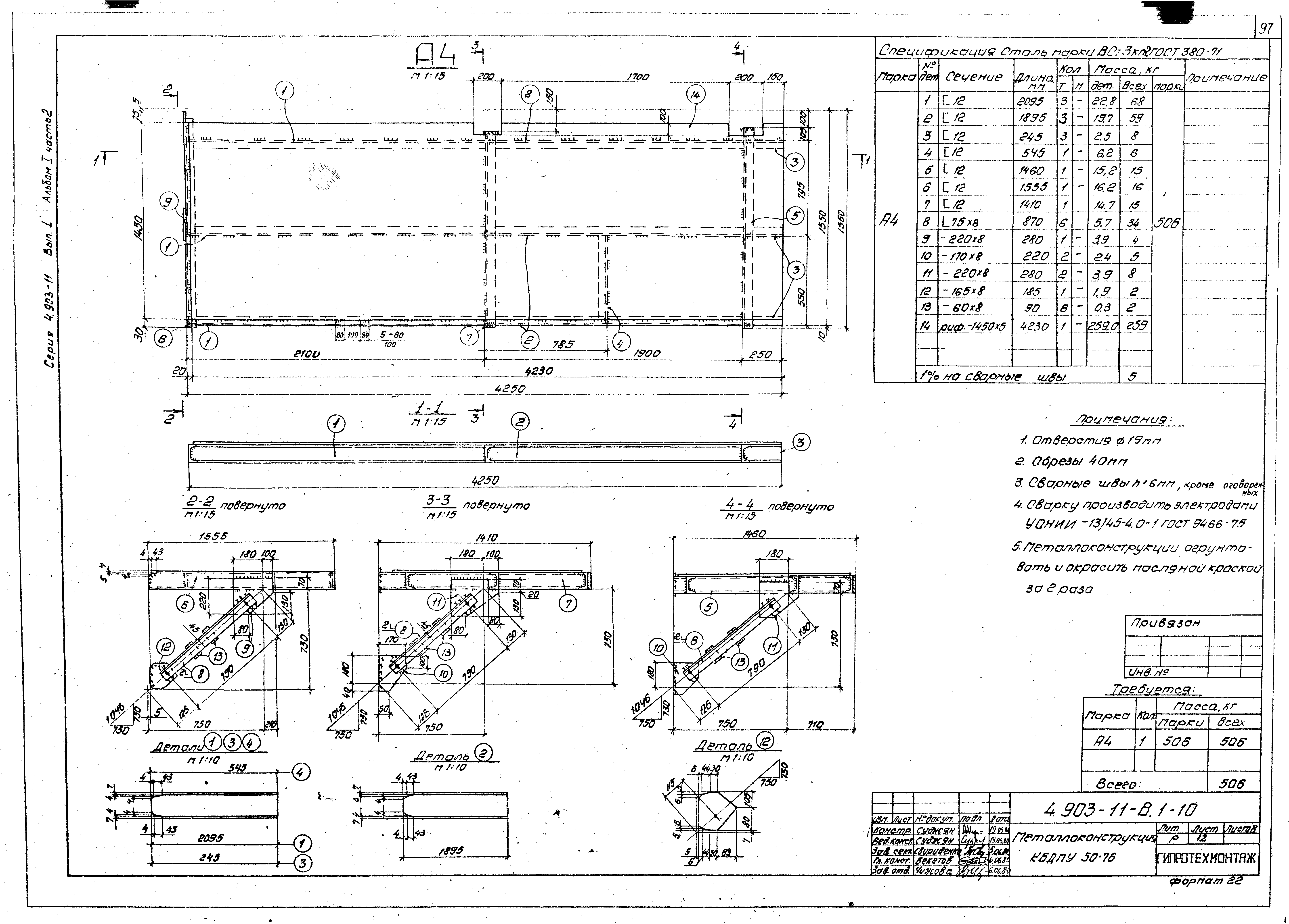
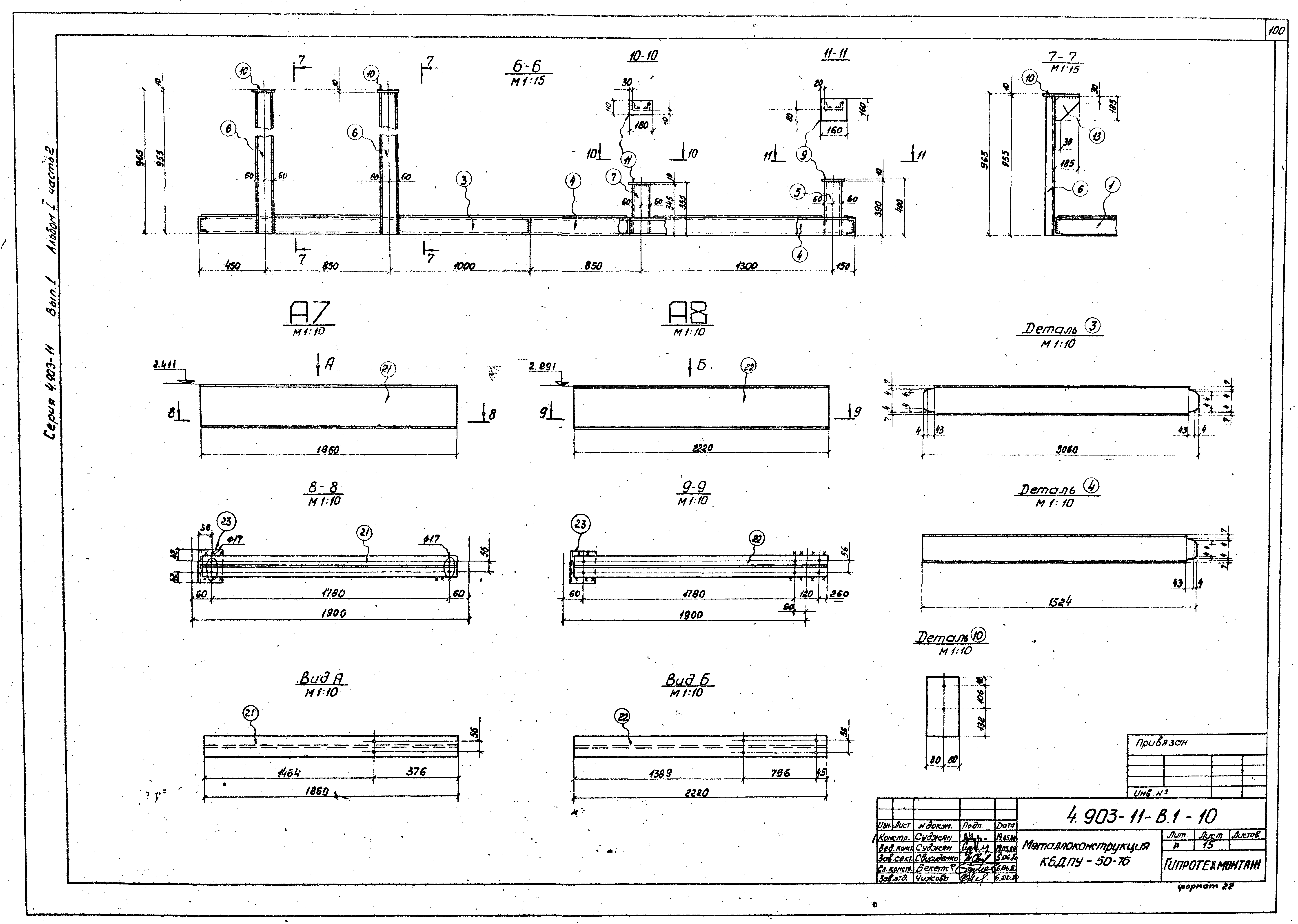
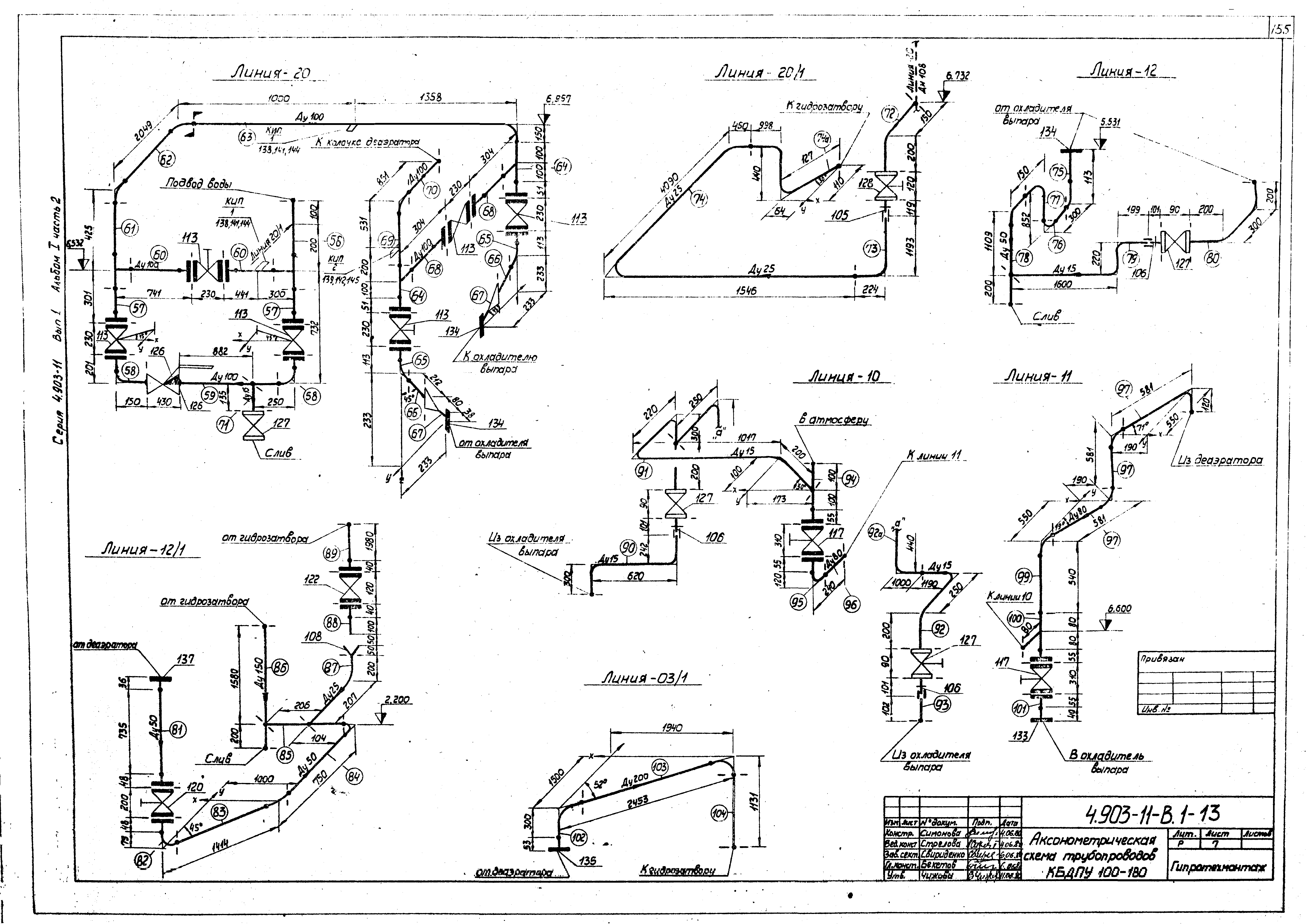
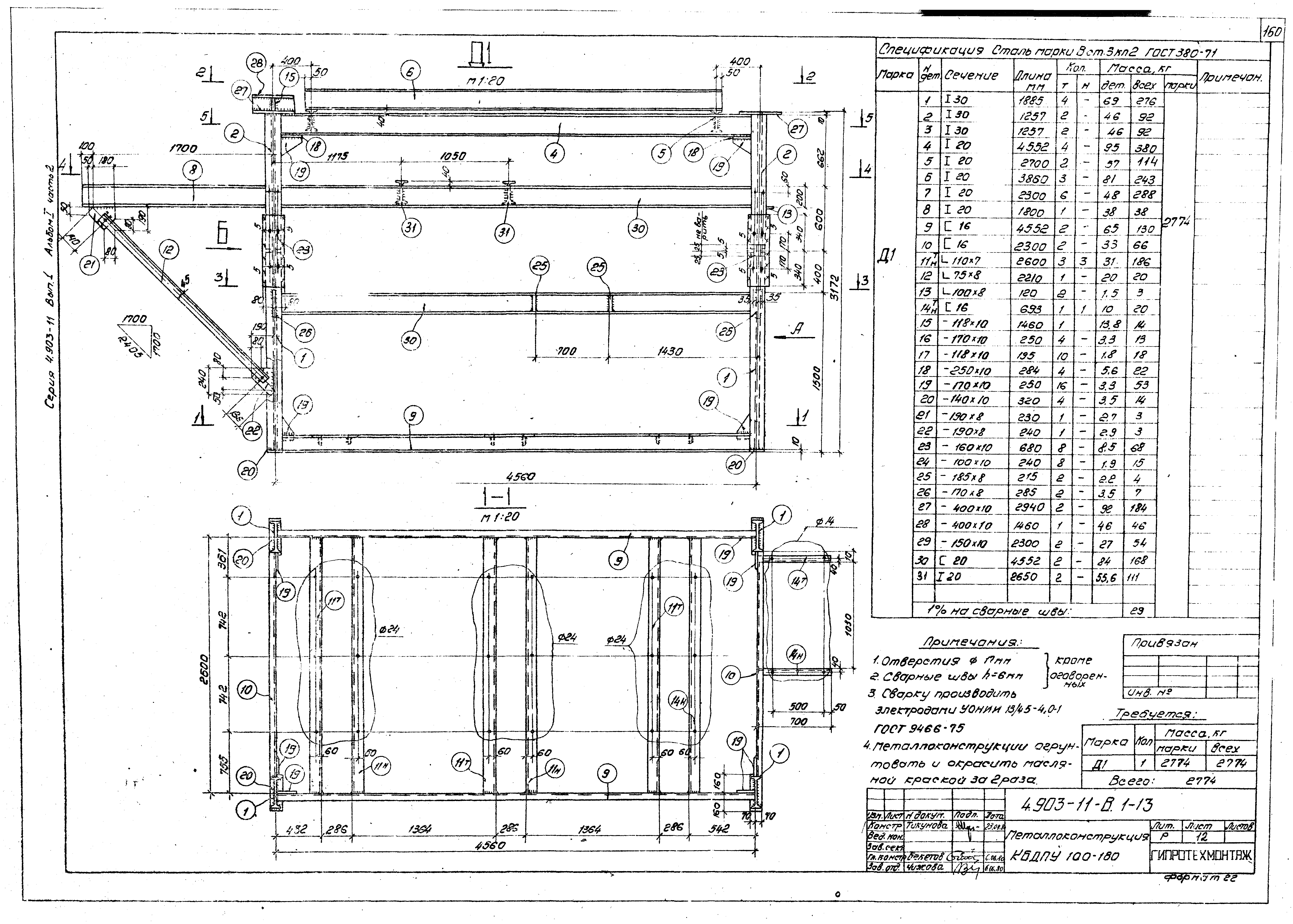
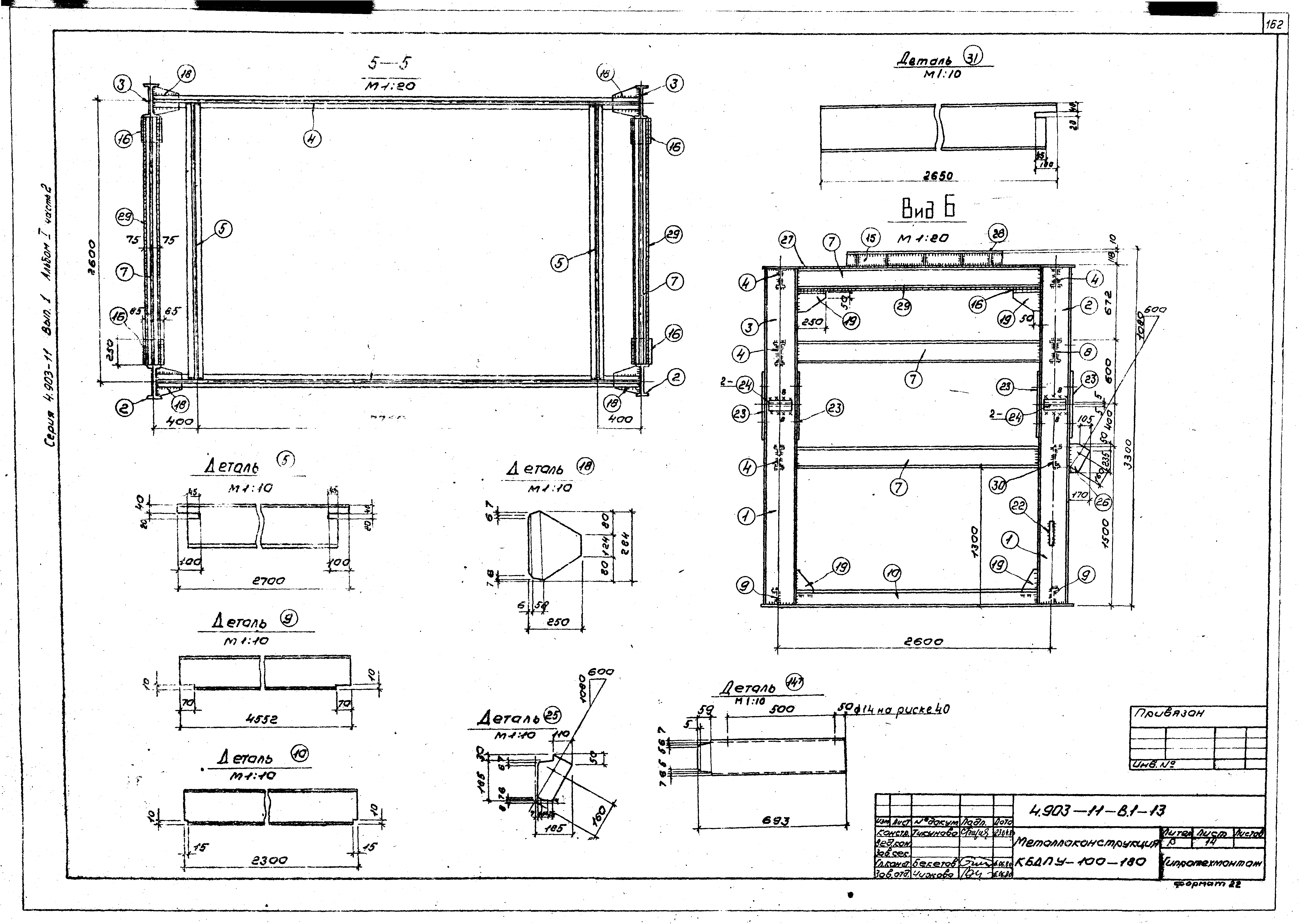
Скачать Серия 4.903-11 Альбом 1. Часть 2. Тепломеханическое оборудование и трубопроводы. Рабочие чертежиДата актуализации: 01.01.2021
|
| Обозначение: | Серия 4.903-11 |
| Обозначение англ: | Series 4.903-11 |
| Статус: | не определен законодательством |
| Название рус.: | Альбом 1. Часть 2. Тепломеханическое оборудование и трубопроводы. Рабочие чертежи |
| Дата добавления в базу: | 01.09.2013 |
| Дата актуализации: | 01.01.2021 |
| Дата введения: | 12.06.1980 |
| Дата окончания срока действия: | 30.06.2003 |
| Разработан: | Гипротехмонтаж Минмонтажспецстроя СССР |
| Утверждён: | 12.06.1980 Минмонтажспецстрой СССР (USSR Minmontazhspetsstroy ) |

















































































