Скачать Серия 4.902-8 Альбом II. Водосбросной колодец пропускной способностью до 1,0 куб. м/сек. Тип I высотой 3, 4, 5 и 6 мДата актуализации: 01.01.2021 Серия 4.902-8
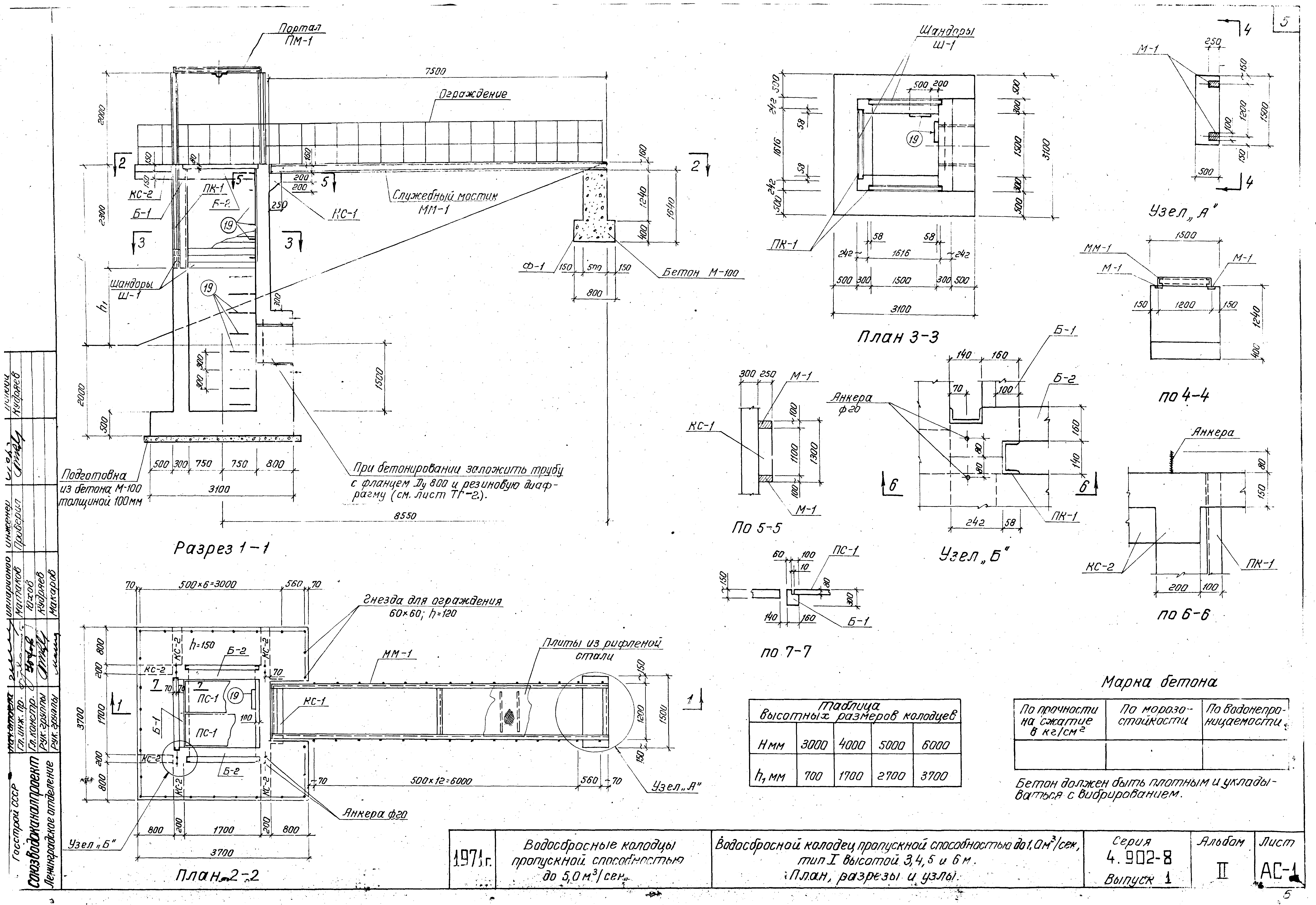
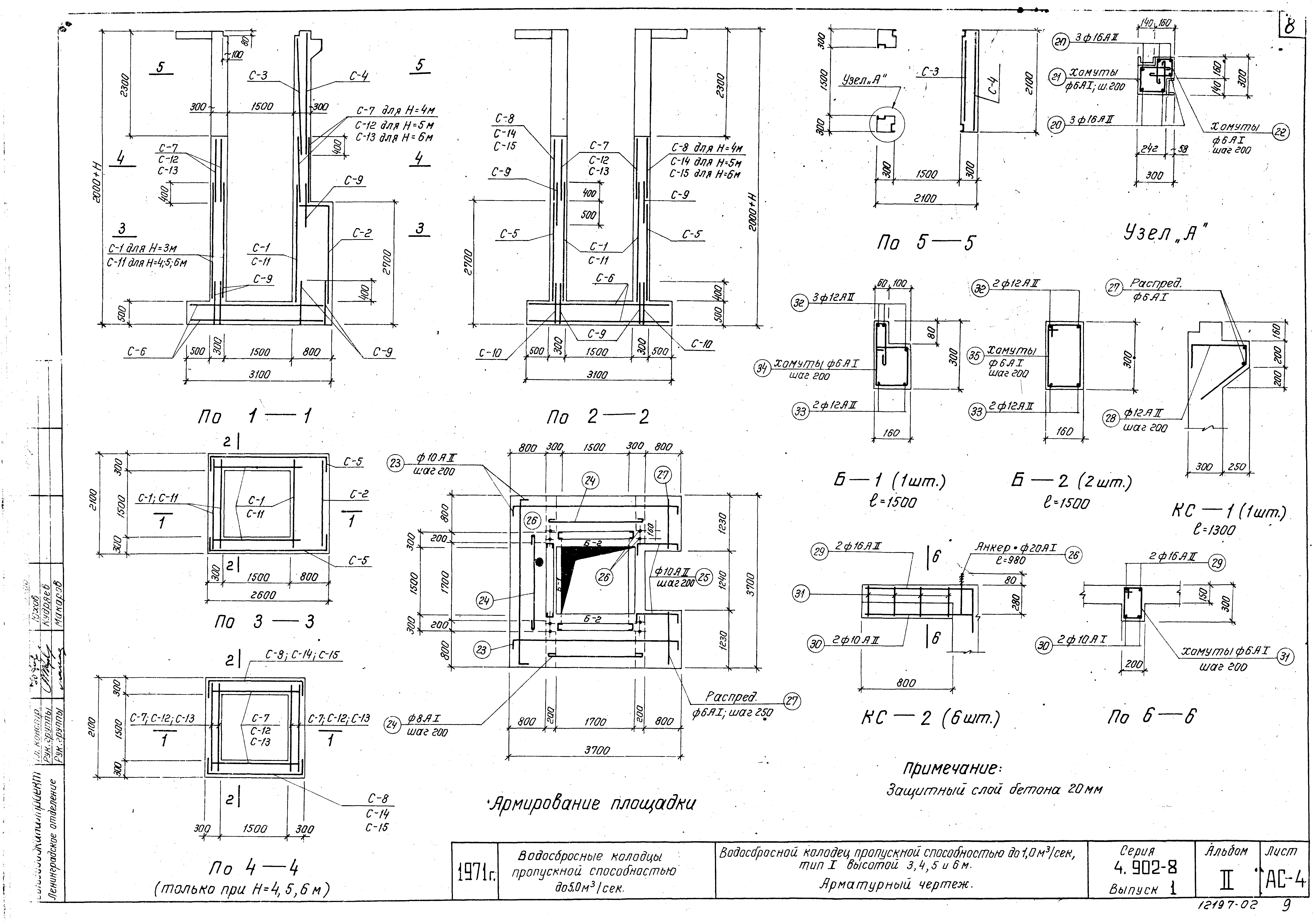
Альбом II. Водосбросной колодец пропускной способностью до 1,0 куб. м/сек. Тип I высотой 3, 4, 5 и 6 м| Обозначение: | Серия 4.902-8 | | Обозначение англ: | Series 4.902-8 | | Статус: | не действует | | Название рус.: | Альбом II. Водосбросной колодец пропускной способностью до 1,0 куб. м/сек. Тип I высотой 3, 4, 5 и 6 м | | Дата добавления в базу: | 01.09.2013 | | Дата актуализации: | 01.01.2021 | | Дата введения: | 15.08.1972 | | Дата окончания срока действия: | 01.02.1991 | | Разработан: | Союзводоканалпроект
| | Утверждён: | 28.06.1972 Главпромстройпроект Госстроя СССР (50)
|
                
|