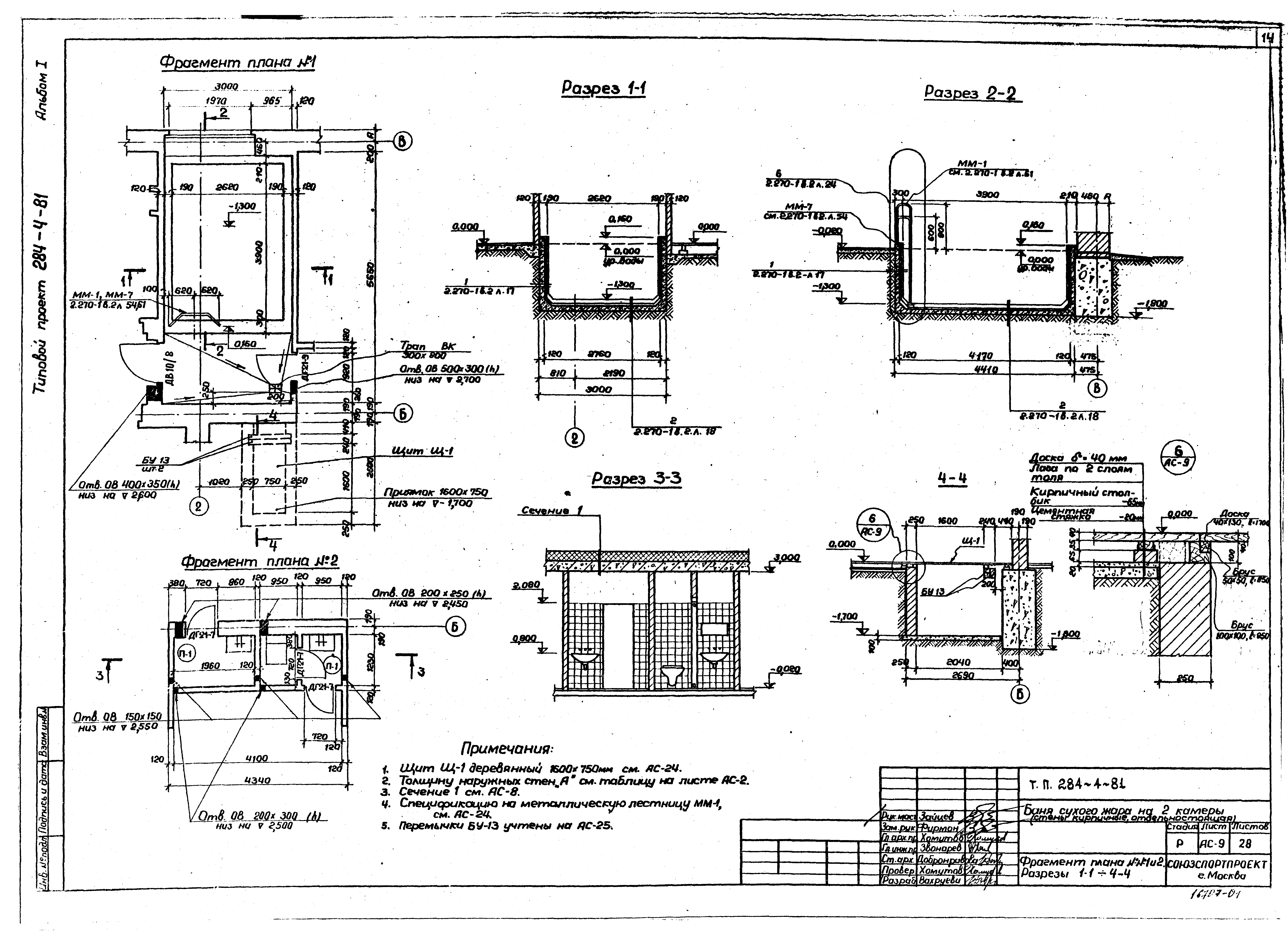
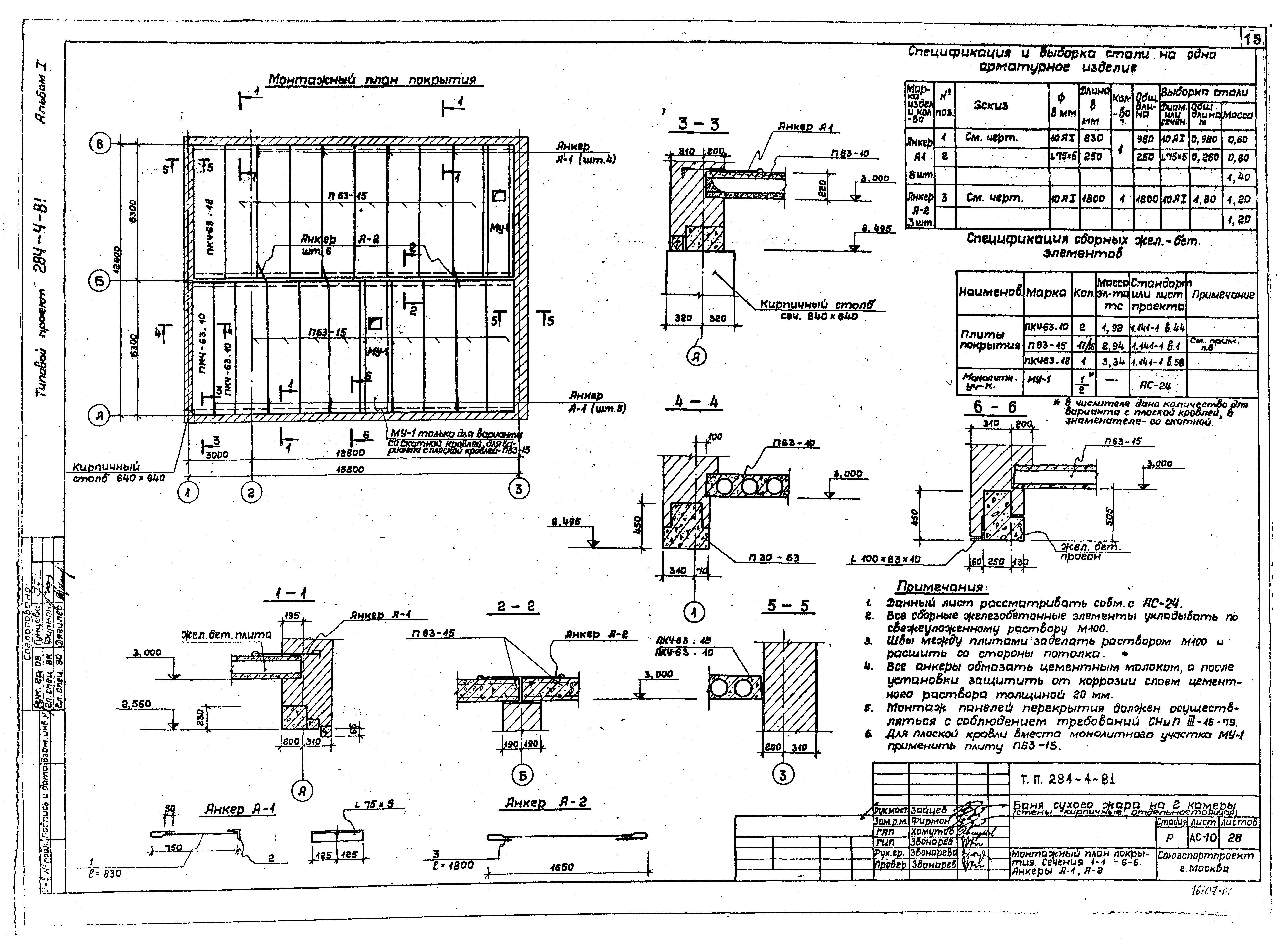
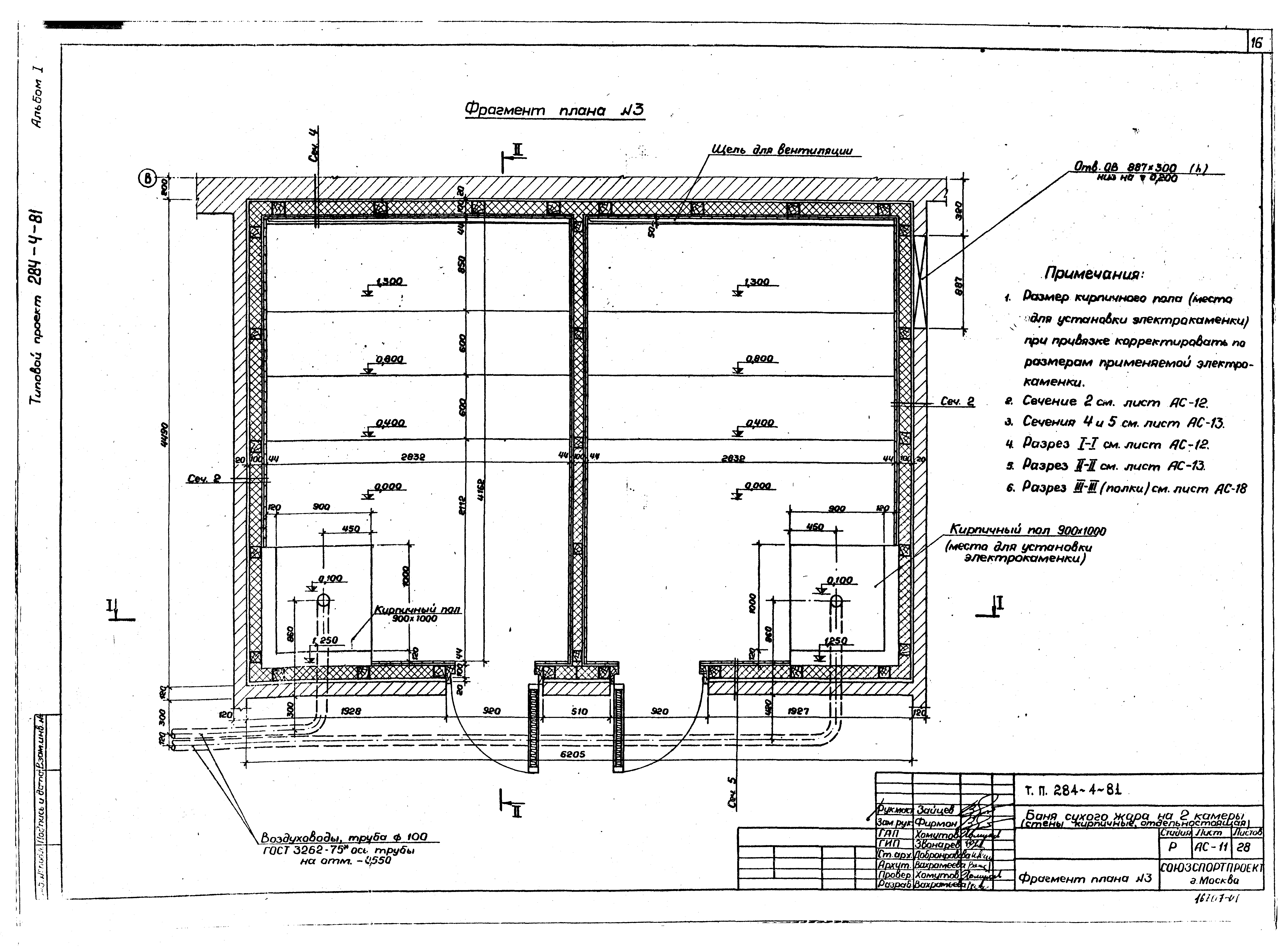
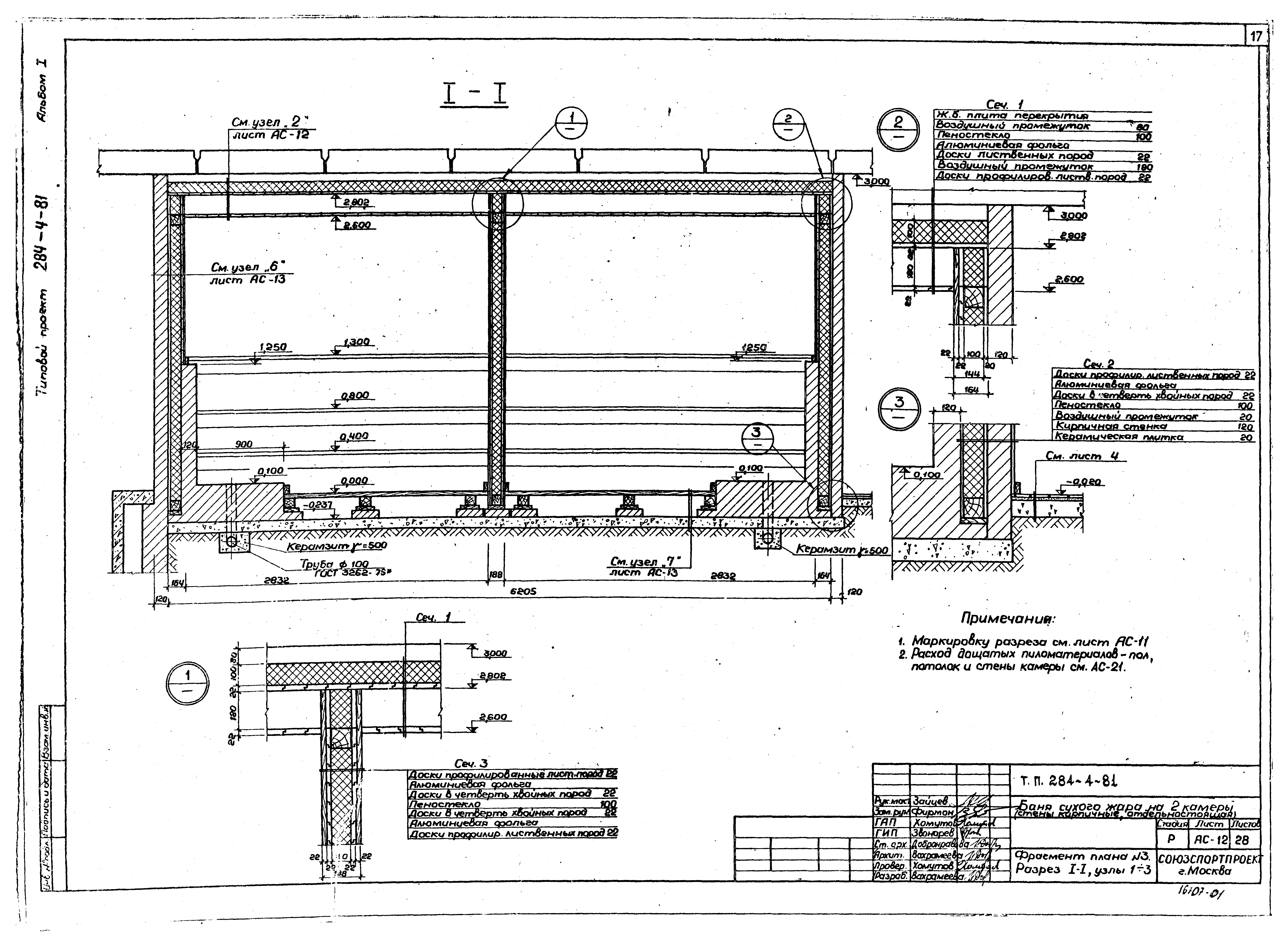
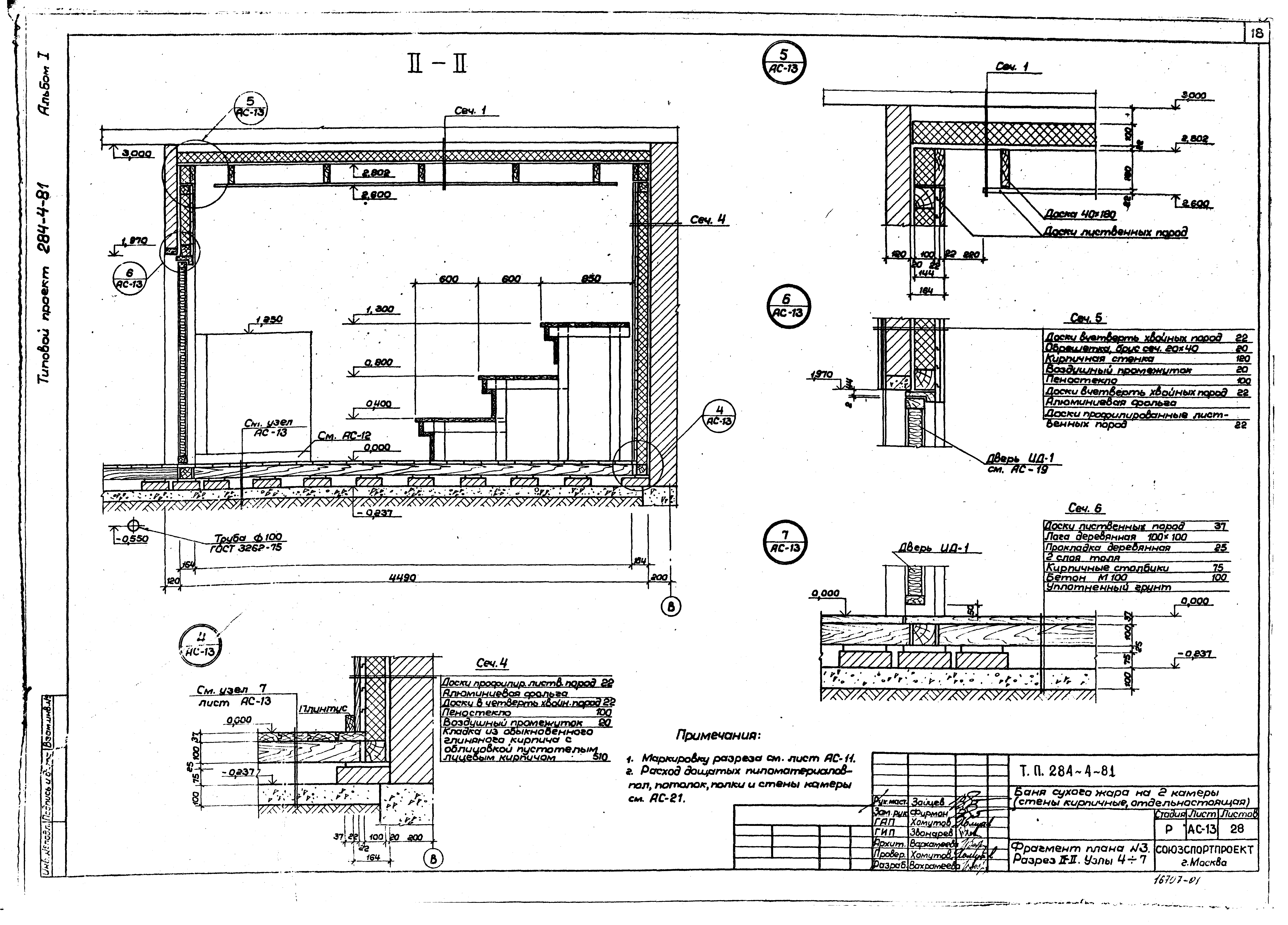
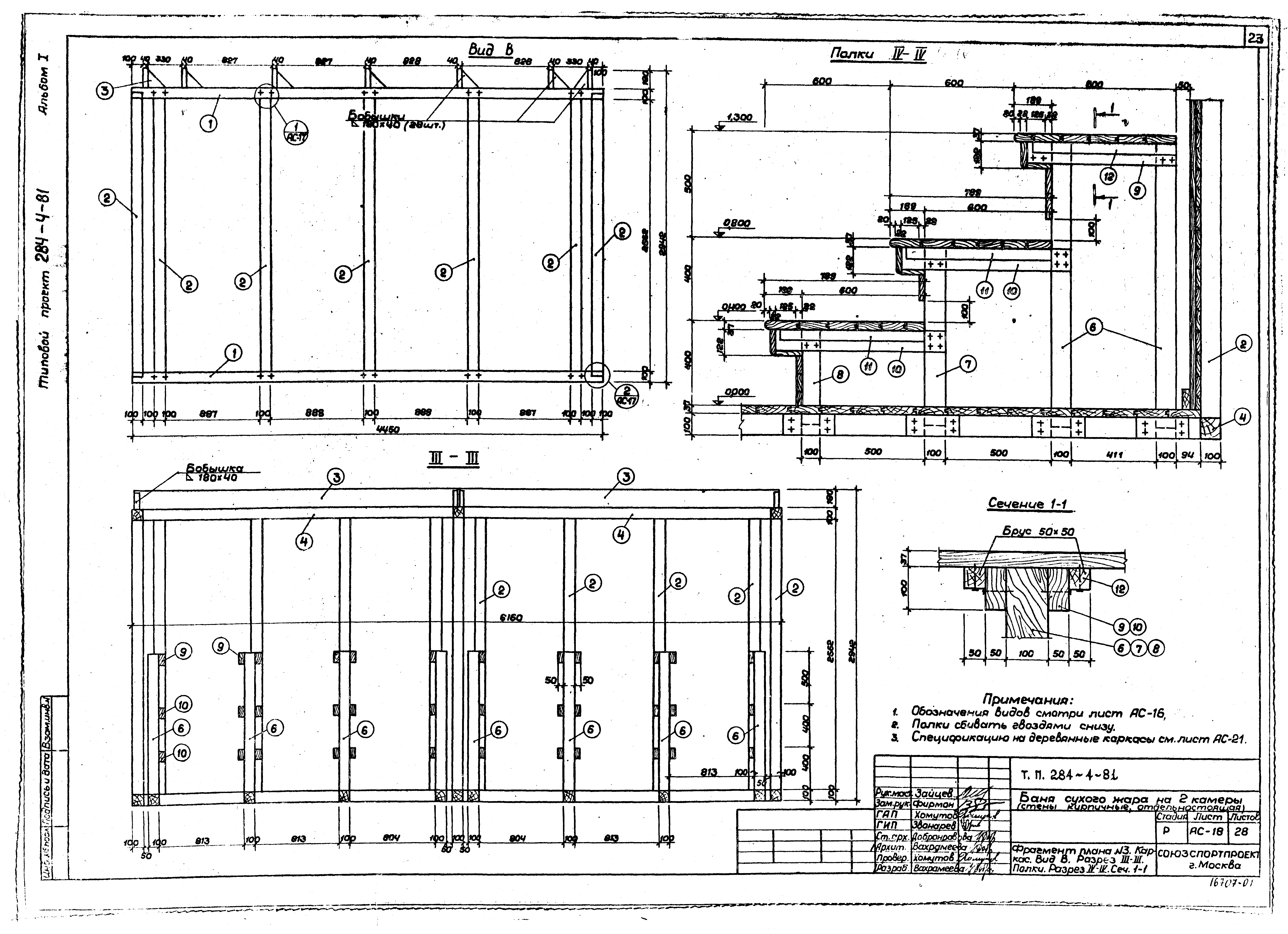
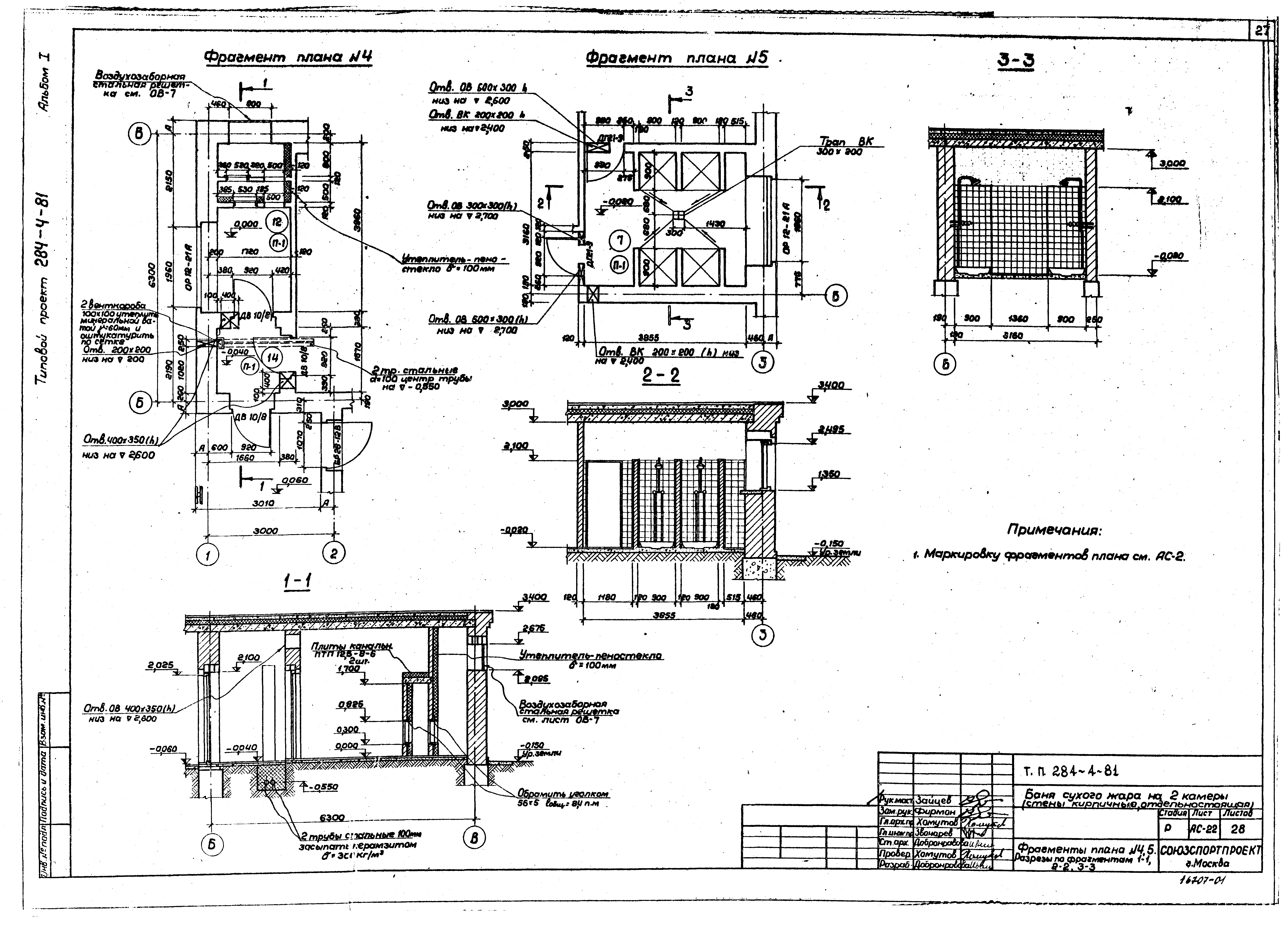
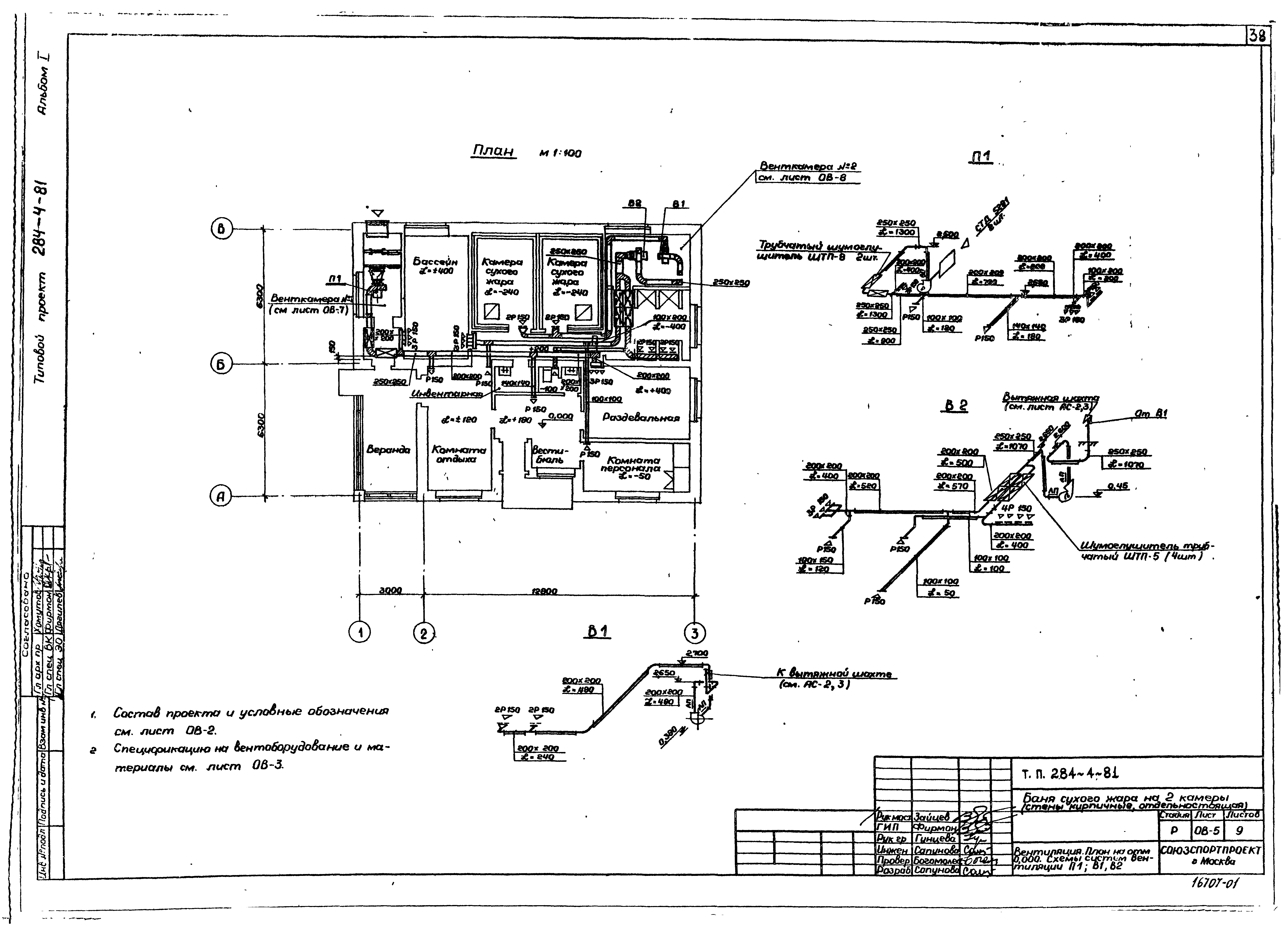
Скачать Типовой проект 284-4-81 Альбом I. Архитектурно-строительная, санитарно-техническая, электротехническая части и автоматикаДата актуализации: 01.01.2021 Типовой проект 284-4-81
Альбом I. Архитектурно-строительная, санитарно-техническая, электротехническая части и автоматика| Обозначение: | Типовой проект 284-4-81 | | Обозначение англ: | 284-4-81 | | Статус: | не определен законодательством | | Название рус.: | Альбом I. Архитектурно-строительная, санитарно-техническая, электротехническая части и автоматика | | Дата добавления в базу: | 01.09.2013 | | Дата актуализации: | 01.01.2021 | | Дата введения: | 09.01.1981 | | Дата окончания срока действия: | 30.06.2003 | | Разработан: | Союзспортпроект Спорткомитета СССР
| | Утверждён: | 27.11.1979 Госгражданстрой (Gosgrazhdanstroy 252)
|
                                                          
|