Скачать Серия 1.031.9-3.07 Выпуск 1. Перегородки. Рабочие чертежиДата актуализации: 01.01.2021
|
| Обозначение: | Серия 1.031.9-3.07 |
| Обозначение англ: | Series 1.031.9-3.07 |
| Статус: | не определен законодательством |
| Название рус.: | Выпуск 1. Перегородки. Рабочие чертежи |
| Дата добавления в базу: | 01.09.2013 |
| Дата актуализации: | 01.01.2021 |
| Дата введения: | 01.04.2007 |
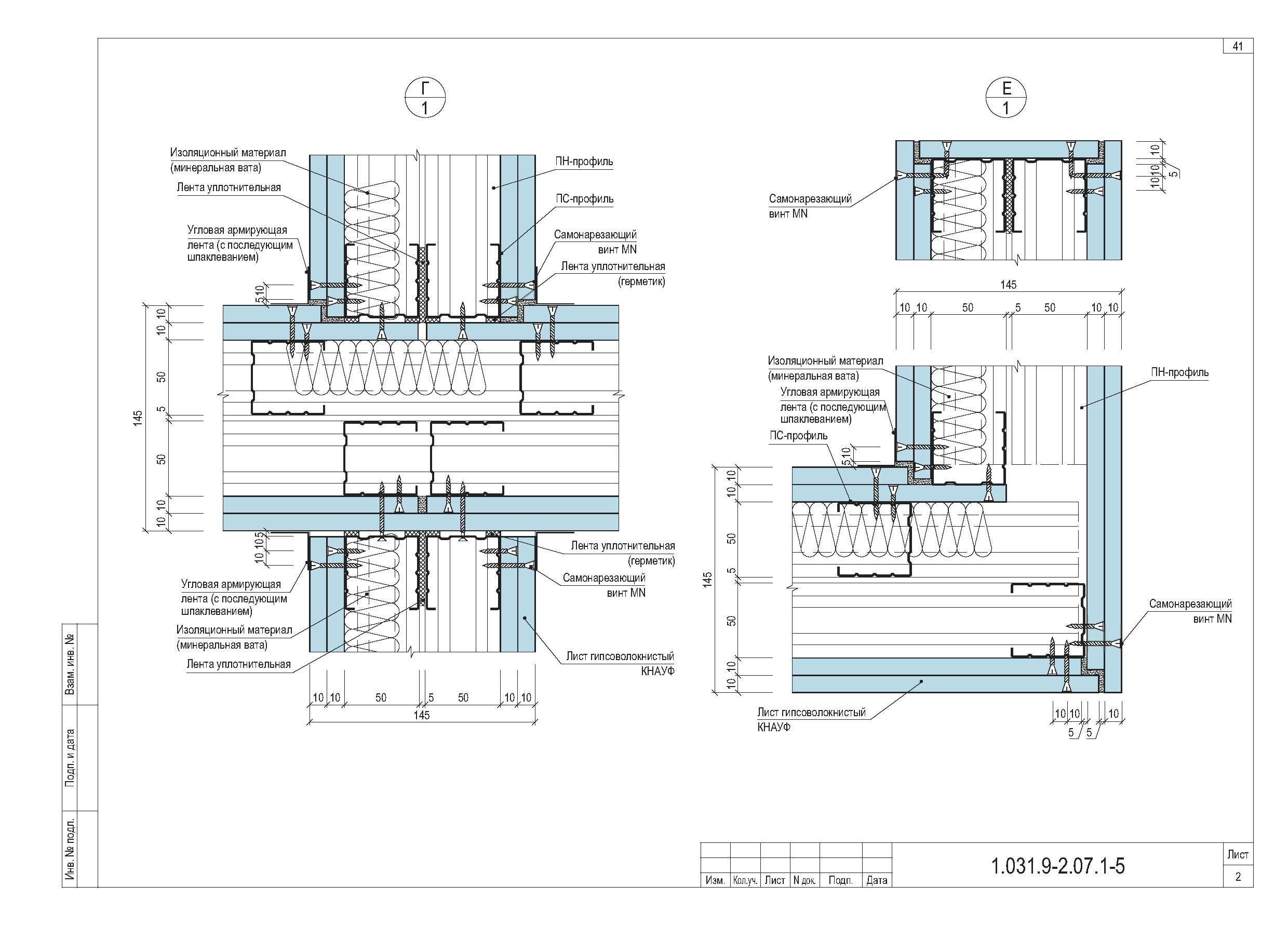
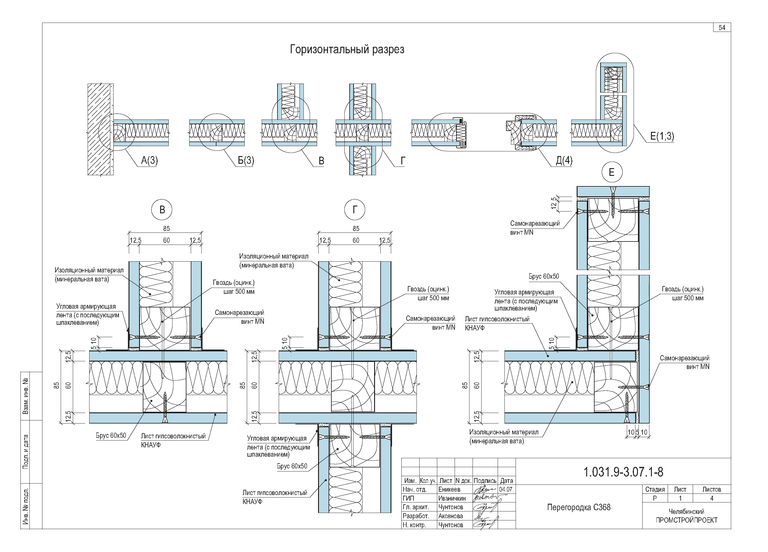
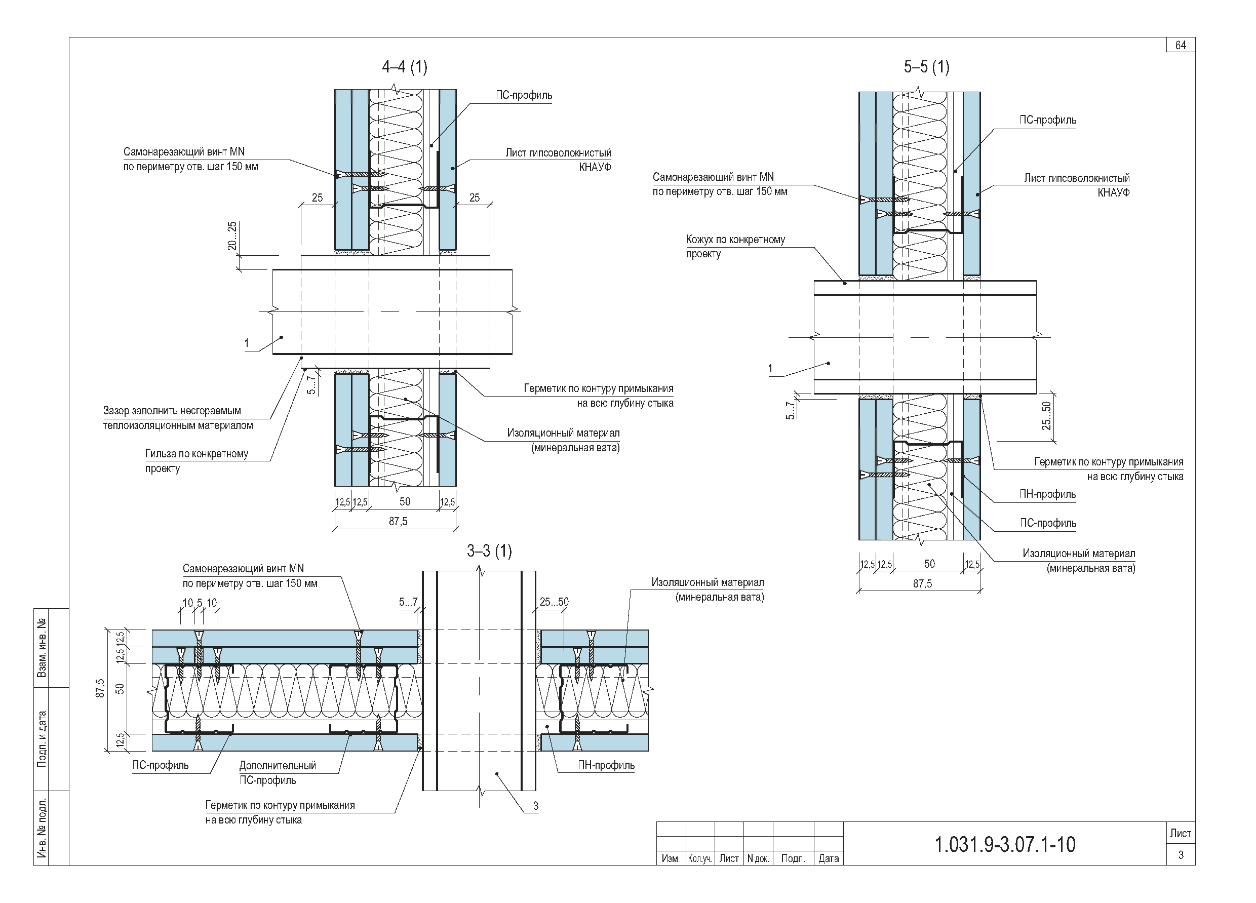
| Оглавление: | 1.031.9-3.07.1-ПЗ Пояснительная записка 1.031.9-3.07.1-1 Перегородка С361 1.031.9-3.07.1-2 Устройство проёма в металлическом каркасе, удлинение стоечных профилей 1.031.9-3.07.1-3 Перегородка С362 1.031.9-3.07.1-4 Перегородка С363 1.031.9-3.07.1-5 Перегородка С365 1.031.9-3.07.1-6 Перегородка С366 1.031.9-3.07.1-7 Перегородка С367 1.031.9-3.07.1-8 Перегородка С368 1.031.9-3.07.1-9 Перегородка С369 1.031.9-3.07.1-10 Сопряжение перегородок с коммуникационными трассами 1.031.9-3.07.1-11 Установка коробок под электрооборудование 1.031.9-3.07.1-12 Встроенный пожарный шкаф 1.031.9-3.07.1-13 Система для крепления навесного оборудования 1.031.9-3.07.1-П1 Приложение 1 1.031.9-3.07.1-П2 Приложение 2 |
| Разработан: | ОАО институт Челябинский Промстройпроект |
| Заменяет собой: |











































































