Скачать Типовой проект 901-6-99.89 Альбом 1. Пояснительная запискаДата актуализации: 01.01.2021
|
| Обозначение: | Типовой проект 901-6-99.89 |
| Обозначение англ: | 901-6-99.89 |
| Статус: | не определен законодательством |
| Название рус.: | Альбом 1. Пояснительная записка |
| Дата добавления в базу: | 01.09.2013 |
| Дата актуализации: | 01.01.2021 |
| Дата введения: | 29.11.1989 |
| Дата окончания срока действия: | 30.06.2003 |
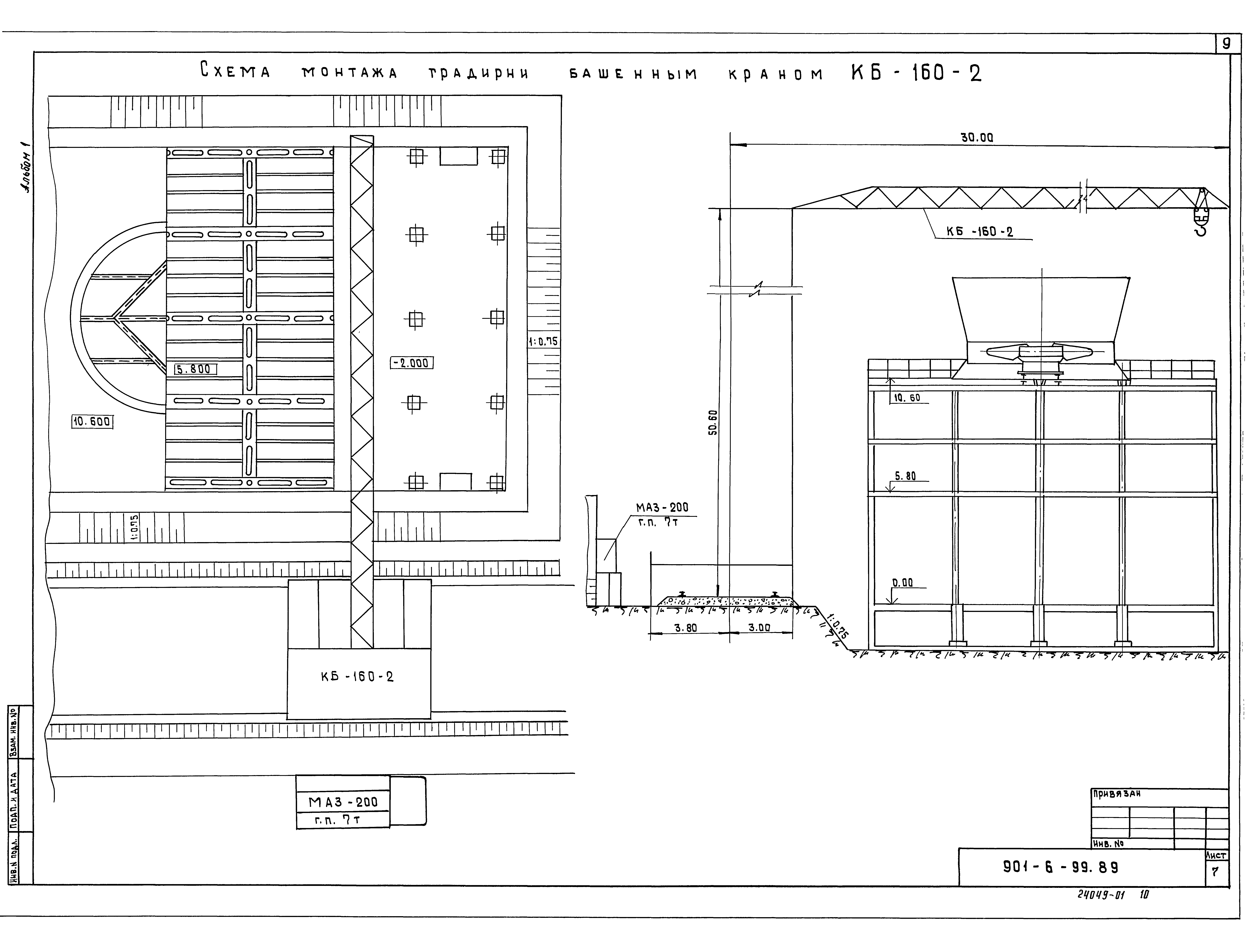
| Оглавление: | ТП 901-6-99.89 Общие положения ТП 901-6-99.89 Технологическое оборудование градирен ТП 901-6-99.89 Архитектурно-строительные решения ТП 901-6-99.89 Электротехническая часть ТП 901-6-99.89 Силовое электрооборудование ТП 901-6-99.89 Оперативный ток ТП 901-6-99.89 Конструктивная часть ТП 901-6-99.89 Электроосвещение ТП 901-6-99.89 Зануление и молниезащита ТП 901-6-99.89 Основные положения по производству работ. График производства работ ТП 901-6-99.89 Мероприятия по технике безопасности ТП 901-6-99.89 Охрана окружающей среды. ТП 901-6-99.89 Указания по привязке ТП 901-6-99.89 Указания по эксплуатации ТП 901-6-99.89 Техника - экономические показатели. |
| Разработан: | Союзводоканалпроект |
| Утверждён: | 13.10.1989 СоюзводоканалНИИпроект (SoyuzvodokanalNIIproject 29) |














