Скачать Типовой проект 901-3-249.88 Альбом 2. Архитектурно-строительные решения. Конструкции металлические. Организация строительства. Технология производства. Отопление и вентиляция. Силовое электрооборудование. Автоматизация. Электрическое освещение. Связь и сигнализация

Дата актуализации: 01.01.2021

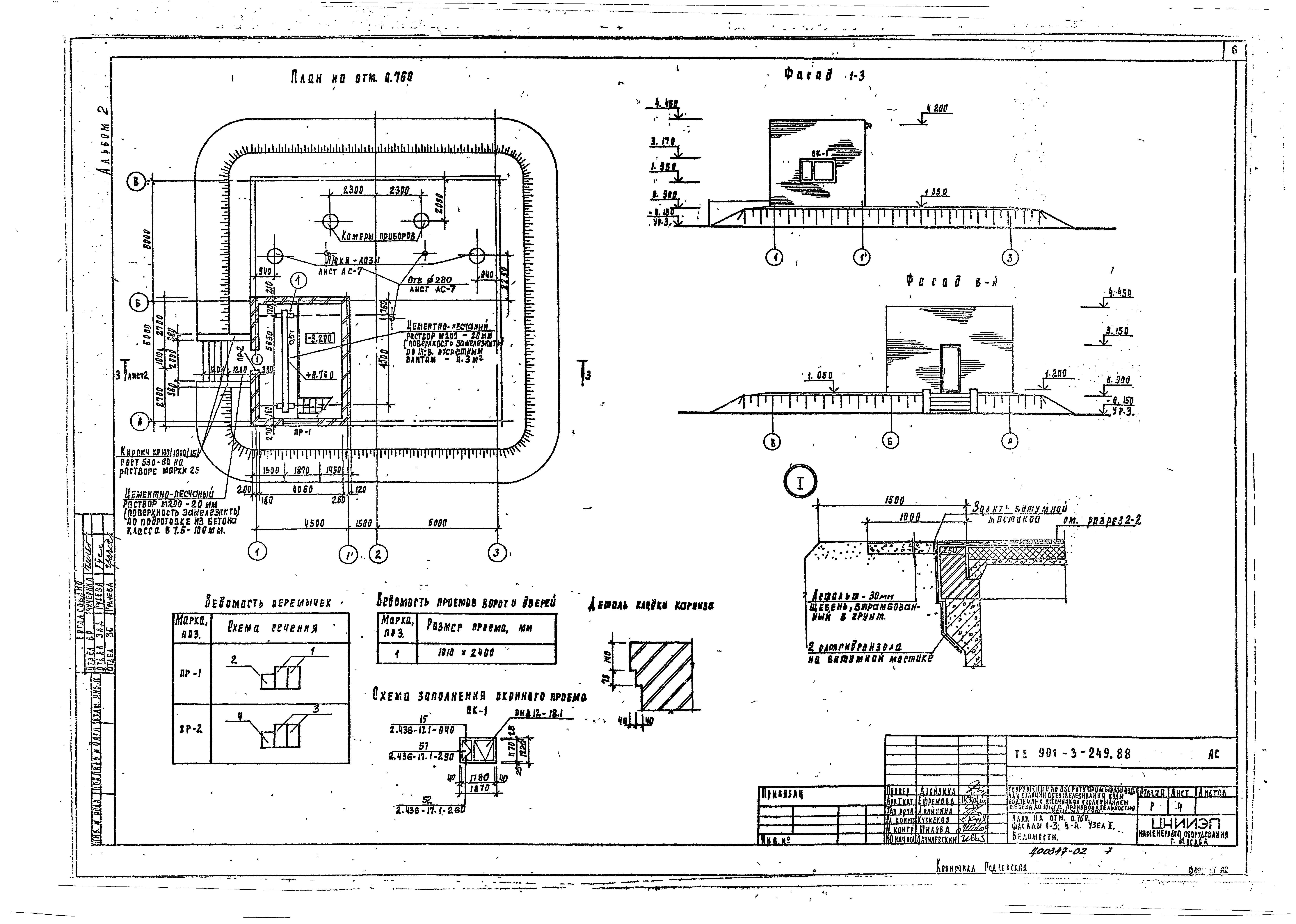
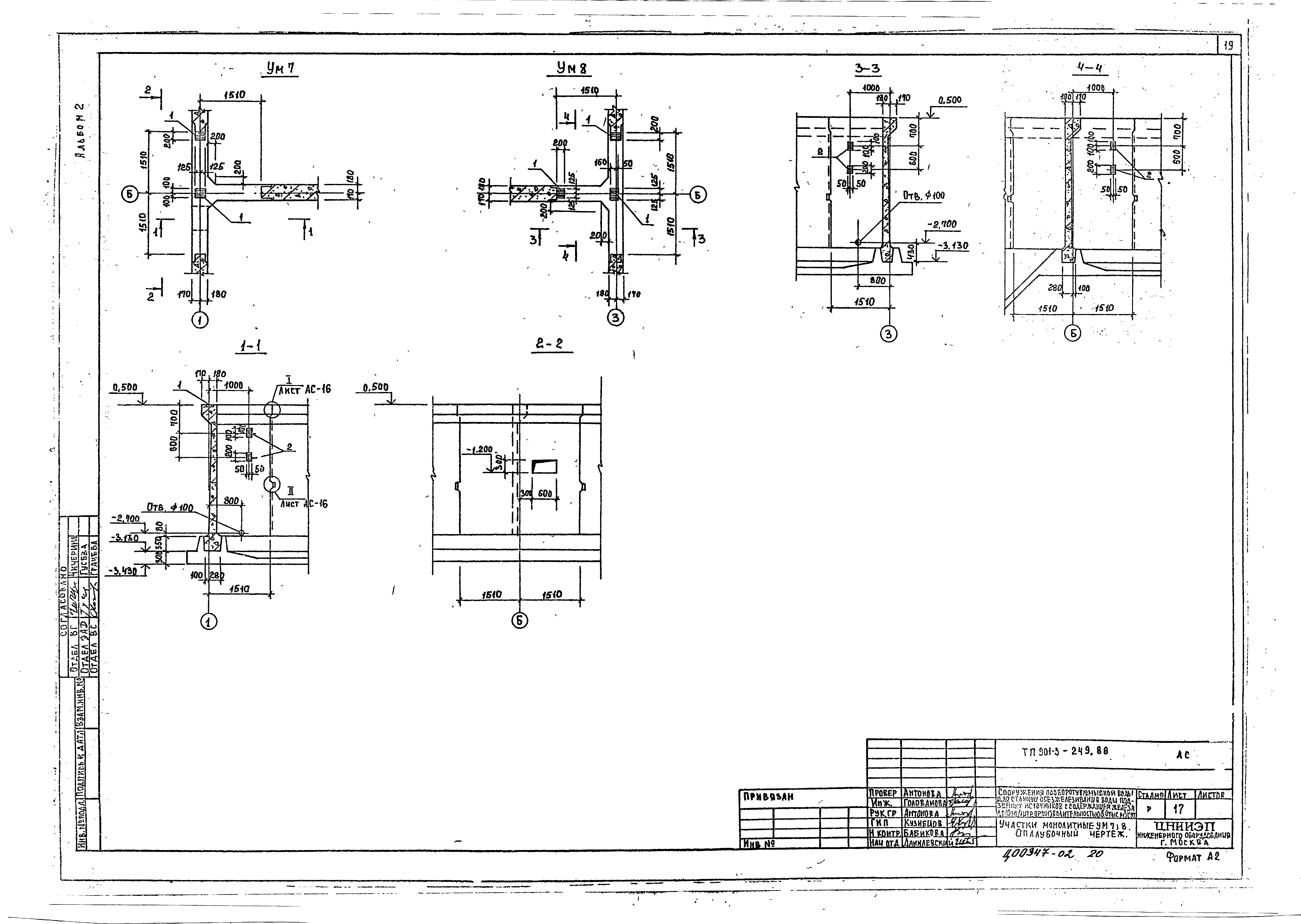
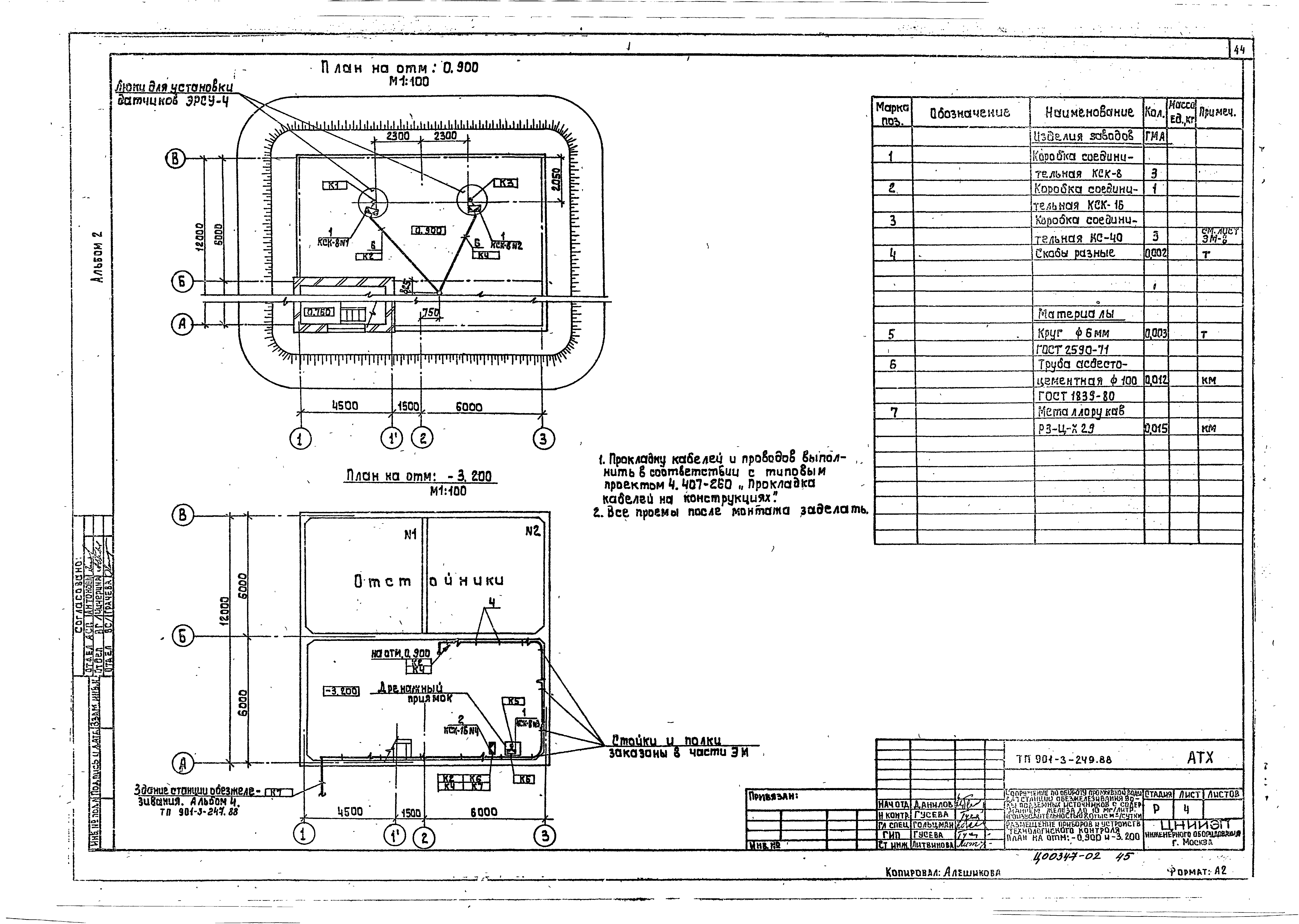
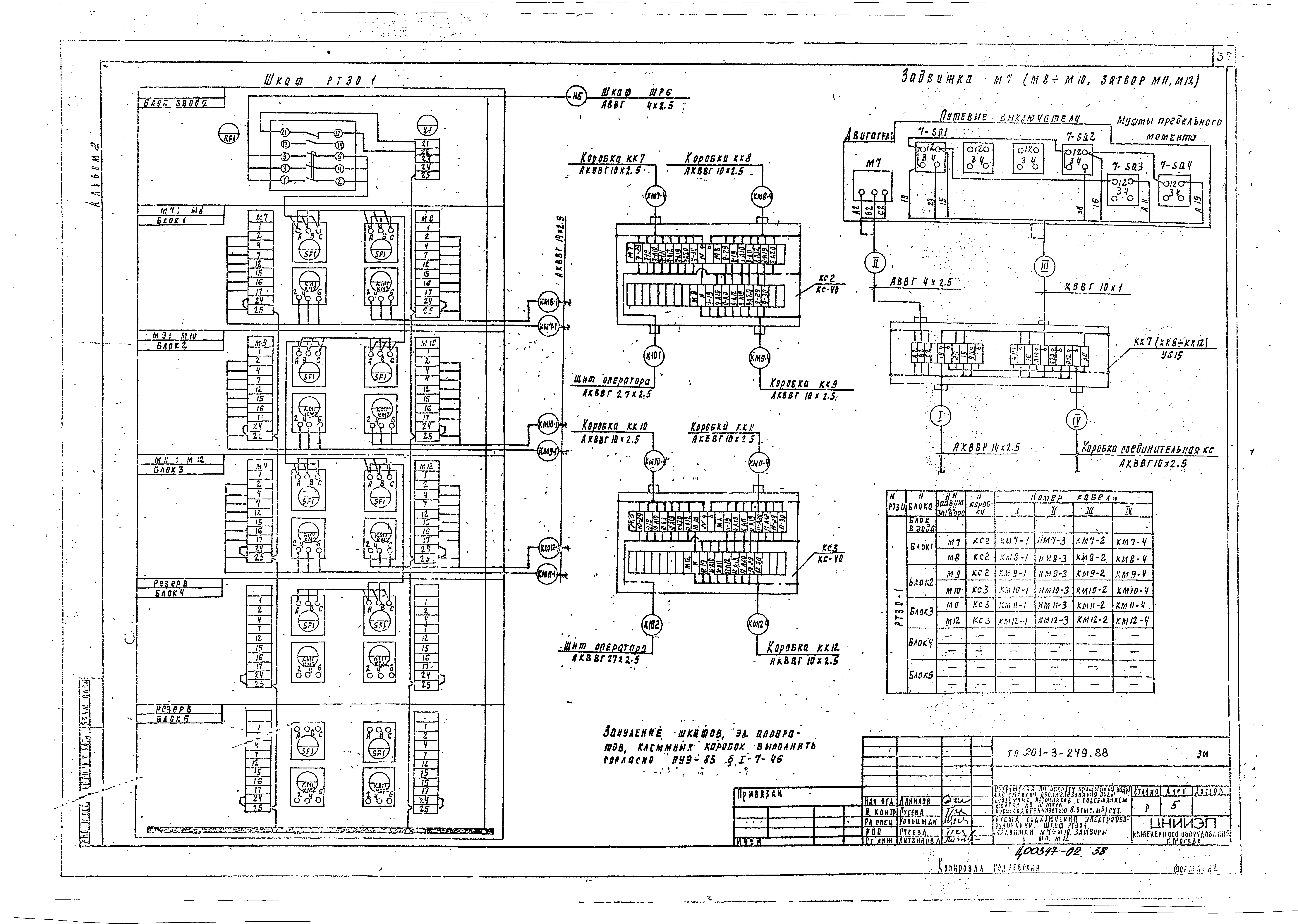
Типовой проект 901-3-249.88

Альбом 2. Архитектурно-строительные решения. Конструкции металлические. Организация строительства. Технология производства. Отопление и вентиляция. Силовое электрооборудование. Автоматизация. Электрическое освещение. Связь и сигнализация

Обозначение: Типовой проект 901-3-249.88
Обозначение англ: 901-3-249.88
Статус:не определен законодательством
Название рус.:Альбом 2. Архитектурно-строительные решения. Конструкции металлические. Организация строительства. Технология производства. Отопление и вентиляция. Силовое электрооборудование. Автоматизация. Электрическое освещение. Связь и сигнализация
Дата добавления в базу:01.09.2013
Дата актуализации:01.01.2021
Дата введения:28.09.1988
Дата окончания срока действия:30.06.2003
Разработан: ЦНИИЭП инженерного оборудования Госгражданстроя
Утверждён:18.11.1985 Госгражданстрой (Gosgrazhdanstroy 346)
Типовой проект 901-3-249.88Типовой проект 901-3-249.88Типовой проект 901-3-249.88Типовой проект 901-3-249.88Типовой проект 901-3-249.88Типовой проект 901-3-249.88Типовой проект 901-3-249.88Типовой проект 901-3-249.88Типовой проект 901-3-249.88Типовой проект 901-3-249.88Типовой проект 901-3-249.88Типовой проект 901-3-249.88Типовой проект 901-3-249.88Типовой проект 901-3-249.88Типовой проект 901-3-249.88Типовой проект 901-3-249.88Типовой проект 901-3-249.88Типовой проект 901-3-249.88Типовой проект 901-3-249.88Типовой проект 901-3-249.88Типовой проект 901-3-249.88Типовой проект 901-3-249.88Типовой проект 901-3-249.88Типовой проект 901-3-249.88Типовой проект 901-3-249.88Типовой проект 901-3-249.88Типовой проект 901-3-249.88Типовой проект 901-3-249.88Типовой проект 901-3-249.88Типовой проект 901-3-249.88Типовой проект 901-3-249.88Типовой проект 901-3-249.88Типовой проект 901-3-249.88Типовой проект 901-3-249.88Типовой проект 901-3-249.88Типовой проект 901-3-249.88Типовой проект 901-3-249.88Типовой проект 901-3-249.88Типовой проект 901-3-249.88Типовой проект 901-3-249.88Типовой проект 901-3-249.88Типовой проект 901-3-249.88Типовой проект 901-3-249.88Типовой проект 901-3-249.88Типовой проект 901-3-249.88Типовой проект 901-3-249.88Типовой проект 901-3-249.88