Скачать Типовой проект 290-1-35.83 Альбом I. Архитектурно-строительная частьДата актуализации: 01.01.2021
|
| Обозначение: | Типовой проект 290-1-35.83 |
| Обозначение англ: | 290-1-35.83 |
| Статус: | не определен законодательством |
| Название рус.: | Альбом I. Архитектурно-строительная часть |
| Дата добавления в базу: | 01.09.2013 |
| Дата актуализации: | 01.01.2021 |
| Дата введения: | 30.05.1983 |
| Дата окончания срока действия: | 30.06.2003 |
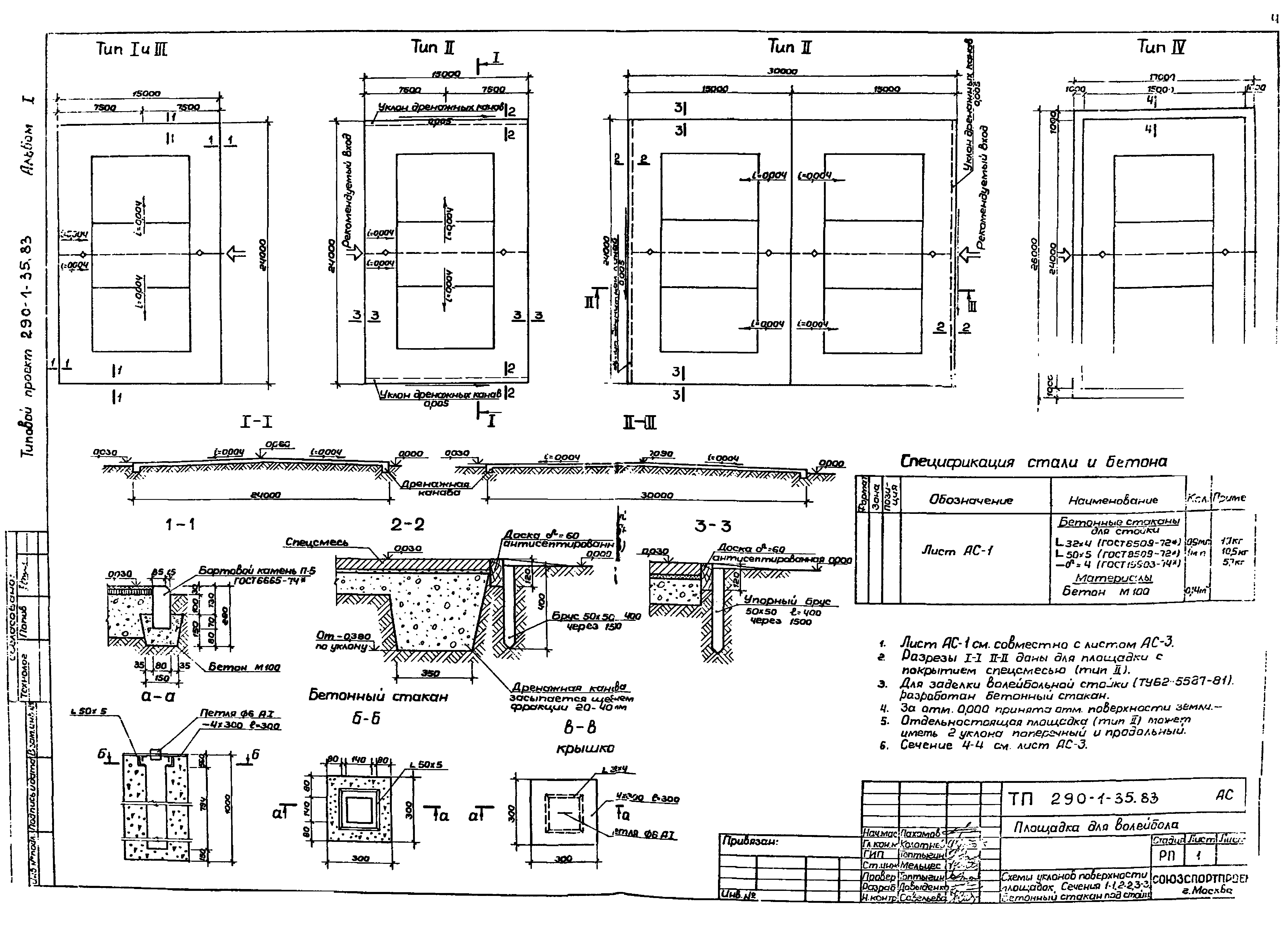
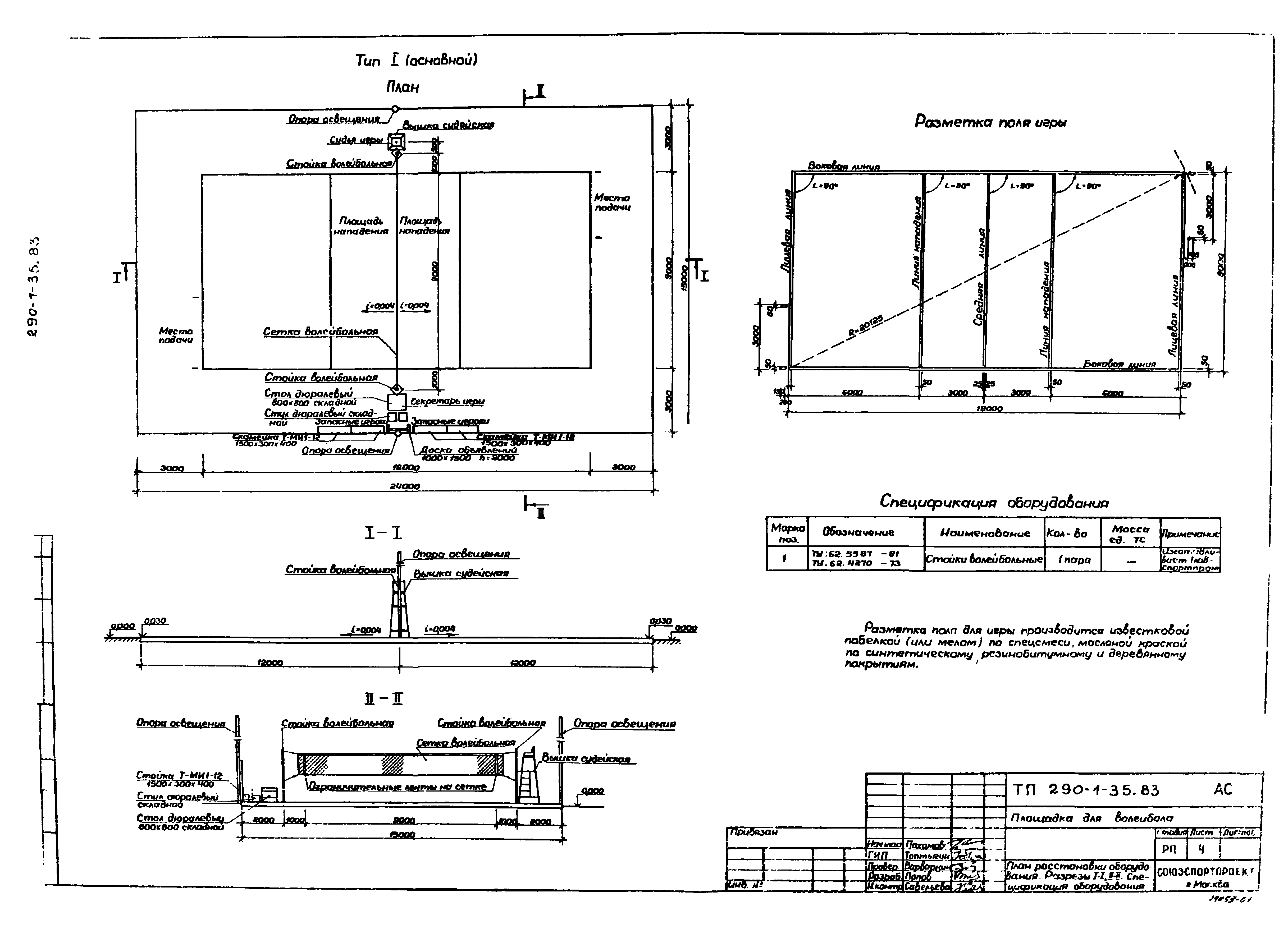
| Оглавление: | ТП 290-1-35.83 Титульный лист ТП 290-1-35.83 Общие данные (начало) ТП 290-1-35.83 Общие данные (окончание) ТП 290-1-35.83 АС Ведомость чертежей комплекта АС ТП 290-1-35.83 АС Схемы уклонов поверхности площадок. Сечения 1-1,2-2,3-3. Бетонный стакан под стойку ТП 290-1-35.83 АС Типы покрытий площадки ТП 290-1-35.83 АС План деревянного настила (тип 4). Сечение 4-4. Доска объявлений ТП 290-1-35.83 АС План расстановки оборудования. Разрезы 1-1;2-2. Спецификация и оборудование |
| Разработан: | Союзспортпроект Спорткомитета СССР |
| Утверждён: | 29.11.1982 Госгражданстрой (Gosgrazhdanstroy 319) |







